Информационная система
«Ёшкин Кот»

Скачать базу одним архивом
Скачать обновления
История создания базы
Карта сайта

Скачать Типовой проект 901-2-162.88 Альбом II. Архитектурно-строительные решения. Конструкции железобетонные. Конструкции металлические. Строительные изделия

Дата актуализации: 10.08.2017

Типовой проект 901-2-162.88

Альбом II. Архитектурно-строительные решения. Конструкции железобетонные. Конструкции металлические. Строительные изделия

Обозначение: Типовой проект 901-2-162.88
Обозначение англ: 901-2-162.88
Статус:не определен законодательством
Название рус.:Альбом II. Архитектурно-строительные решения. Конструкции железобетонные. Конструкции металлические. Строительные изделия
Дата добавления в базу:01.09.2013
Дата актуализации:05.05.2017
Дата введения:14.04.1988
Оглавление:Титульный лист
Содержание альбома
Архитектурно-строительные решения
АР-1 Общие данные
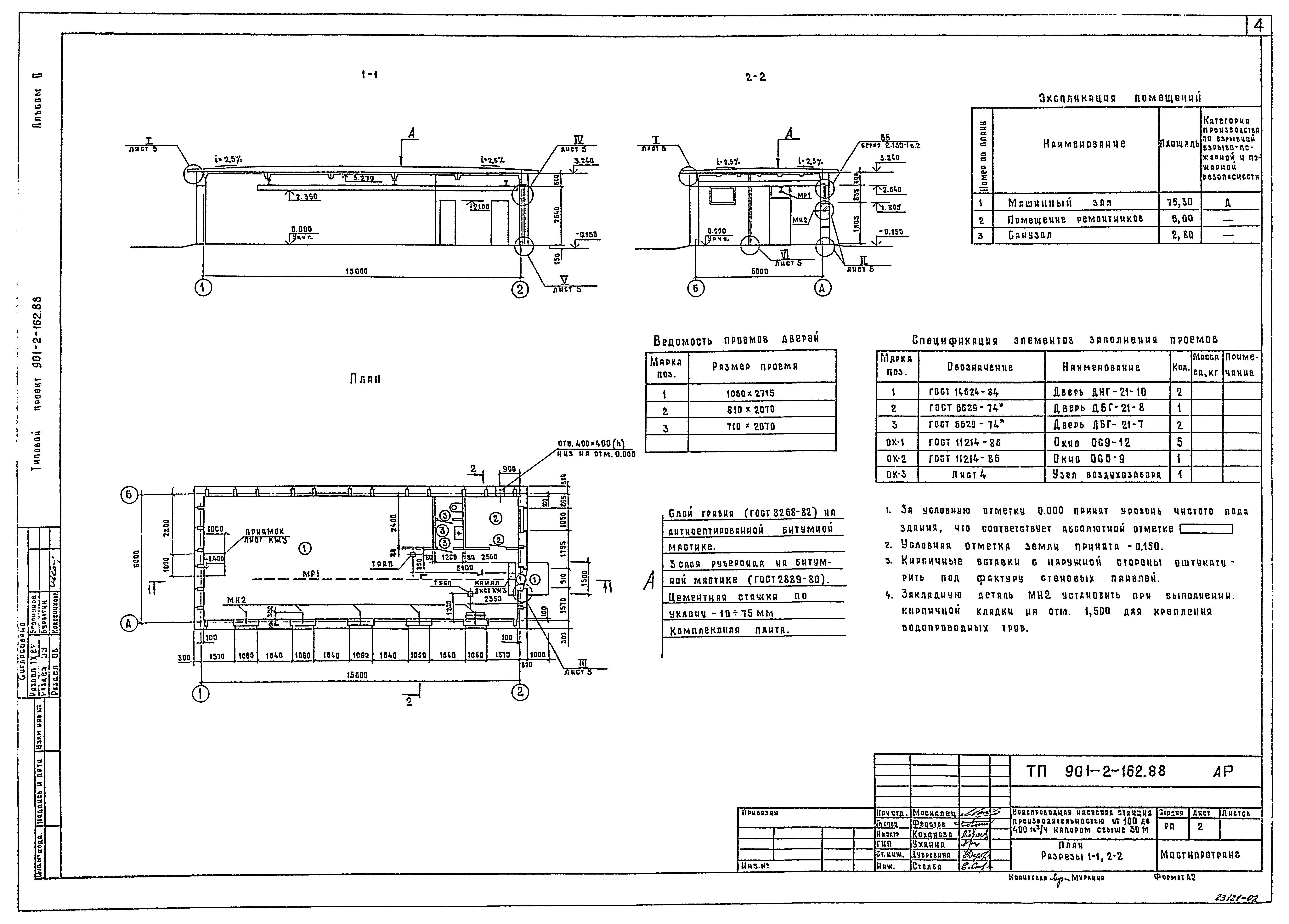
АР-2 План. Разрезы 1-1; 2-2
АР-3 Фасады
АР-4 План полов. План кровли. Фрагмент фасада №1
АР-5 Узлы I-VI
Конструкции железобетонные
КЖ-1 Общие данные
КЖ-2 План фундаментов
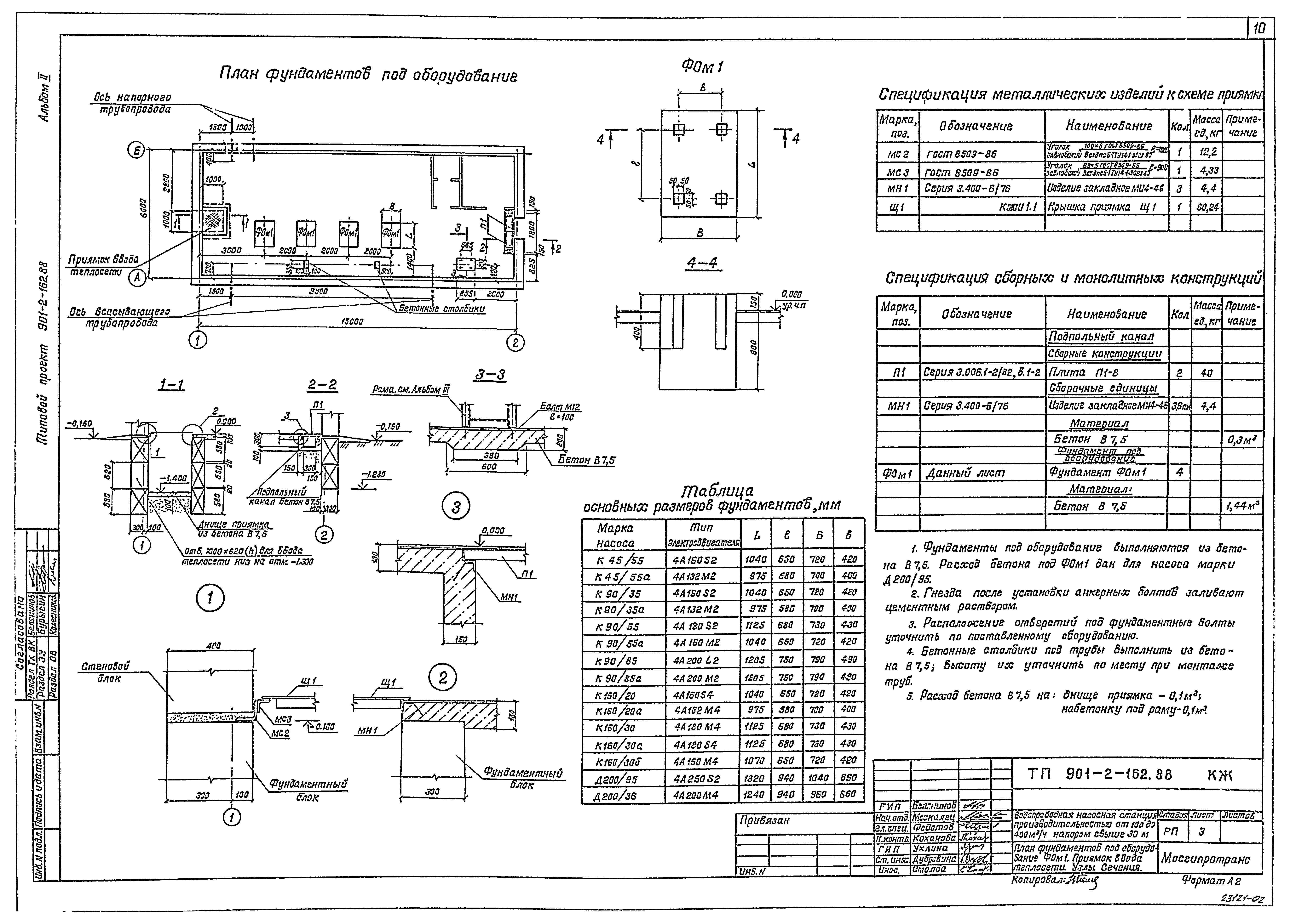
КЖ-3 План фундаментов по оборудование ФОМ 1. Приямок ввода теплосети. Узлы. Сечения
КЖ-4 Раскладка блоков наружных стен. Спецификация
КЖ-5 Маркировочный план покрытия. Маркировочная схема закладных элементов. Разрезы
Конструкции металлические
КМ-1 Общие данные
КМ-2 Схема расположения путей тали. Узлы
Строительные изделия
КЖИ.ТУ Технические условия
КЖИ.ОД Опись документов
КЖИ.1.1 Крышка приямка Щ-1
КЖИ.1.2 Рама Р1
КЖИ.1.3 Рама Р2
КЖИ.2.1 Изделие соединительное МС4
КЖИ.2.2 Изделие соединительное МС7, МС8
КЖИ.3.1 Изделия закладные МН3, МН4
Разработан: Проектно-изыскательский институт Мосгипротранс
Утверждён:14.04.1988 Министерство транспортного строительства СССР (USSR Ministry of Transport Construction МО-259)
Расположен в:Техническая документация Экология ГРАЖДАНСКОЕ СТРОИТЕЛЬСТВО Сооружение гидротехнических объектов Строительство Справочные документы Типовые строительные конструкции, изделия и узлы Общероссийский строительный каталог Промышленные предприятия, здания и сооружения Здания и сооружения санитарно-технические Водоснабжение Насосные станции Насосные станции водопроводные
Типовой проект 901-2-162.88Типовой проект 901-2-162.88Типовой проект 901-2-162.88Типовой проект 901-2-162.88Типовой проект 901-2-162.88Типовой проект 901-2-162.88Типовой проект 901-2-162.88Типовой проект 901-2-162.88Типовой проект 901-2-162.88Типовой проект 901-2-162.88Типовой проект 901-2-162.88Типовой проект 901-2-162.88Типовой проект 901-2-162.88Типовой проект 901-2-162.88Типовой проект 901-2-162.88Типовой проект 901-2-162.88Типовой проект 901-2-162.88Типовой проект 901-2-162.88

© 2013 Ёшкин Кот :-) Карта сайта