Информационная система
«Ёшкин Кот»

Скачать базу одним архивом
Скачать обновления
История создания базы
Карта сайта

Скачать Типовой проект 704-1-168.84 Альбом VI. Оборудование резервуара без понтона для высокозастывающих нефтей и нефтепродуктов

Дата актуализации: 10.08.2017

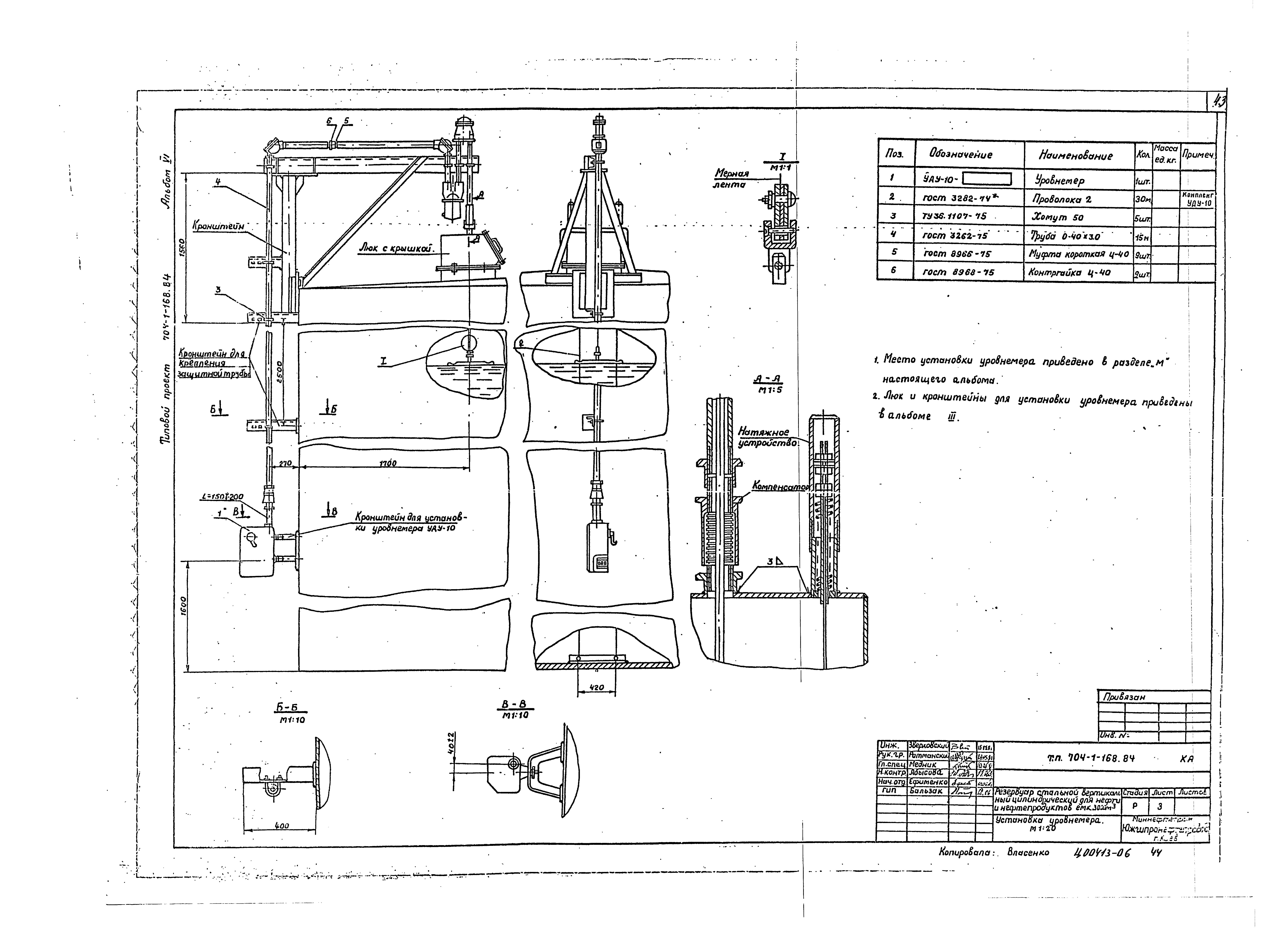
Типовой проект 704-1-168.84

Альбом VI. Оборудование резервуара без понтона для высокозастывающих нефтей и нефтепродуктов

Обозначение: Типовой проект 704-1-168.84
Обозначение англ: 704-1-168.84
Статус:не действует
Название рус.:Альбом VI. Оборудование резервуара без понтона для высокозастывающих нефтей и нефтепродуктов
Дата добавления в базу:01.09.2013
Дата актуализации:05.05.2017
Дата окончания срока действия:25.02.1998
Разработан: Южгипронефтепровод Миннефтепрома СССР
Утверждён:16.06.1983 Миннефтепром (Minnefteprom )
Расположен в:Техническая документация Экология ДОБЫЧА И ПЕРЕРАБОТКА НЕФТИ, ГАЗА И СМЕЖНЫЕ ПРОИЗВОДСТВА Оборудование для переработки нефти, нефтяных продуктов и природного газа Хранилища. Резервуары. Раздаточные устройства Строительство Справочные документы Типовые строительные конструкции, изделия и узлы Общероссийский строительный каталог Промышленные предприятия, здания и сооружения Предприятия, здания и сооружения складские Резервуары и склады для нефти и нефтепродуктов Резервуары стальные для нефти и нефтепродуктов
Типовой проект 704-1-168.84Типовой проект 704-1-168.84Типовой проект 704-1-168.84Типовой проект 704-1-168.84Типовой проект 704-1-168.84Типовой проект 704-1-168.84Типовой проект 704-1-168.84Типовой проект 704-1-168.84Типовой проект 704-1-168.84Типовой проект 704-1-168.84Типовой проект 704-1-168.84Типовой проект 704-1-168.84Типовой проект 704-1-168.84Типовой проект 704-1-168.84Типовой проект 704-1-168.84Типовой проект 704-1-168.84Типовой проект 704-1-168.84Типовой проект 704-1-168.84Типовой проект 704-1-168.84Типовой проект 704-1-168.84Типовой проект 704-1-168.84Типовой проект 704-1-168.84Типовой проект 704-1-168.84Типовой проект 704-1-168.84Типовой проект 704-1-168.84Типовой проект 704-1-168.84Типовой проект 704-1-168.84Типовой проект 704-1-168.84Типовой проект 704-1-168.84Типовой проект 704-1-168.84Типовой проект 704-1-168.84Типовой проект 704-1-168.84Типовой проект 704-1-168.84Типовой проект 704-1-168.84Типовой проект 704-1-168.84Типовой проект 704-1-168.84Типовой проект 704-1-168.84Типовой проект 704-1-168.84Типовой проект 704-1-168.84Типовой проект 704-1-168.84Типовой проект 704-1-168.84Типовой проект 704-1-168.84Типовой проект 704-1-168.84Типовой проект 704-1-168.84Типовой проект 704-1-168.84Типовой проект 704-1-168.84

© 2013 Ёшкин Кот :-) Карта сайта