| ||||||||||||||||||||||||||||
Скачать Серия 5.904-18 Выпуск 1. Рабочие чертежиДата актуализации: 10.08.2017
|
| Обозначение: | Серия 5.904-18 |
| Обозначение англ: | Series 5.904-18 |
| Статус: | заменен |
| Название рус.: | Выпуск 1. Рабочие чертежи |
| Дата добавления в базу: | 01.09.2013 |
| Дата актуализации: | 05.05.2017 |
| Дата введения: | 01.12.1988 |
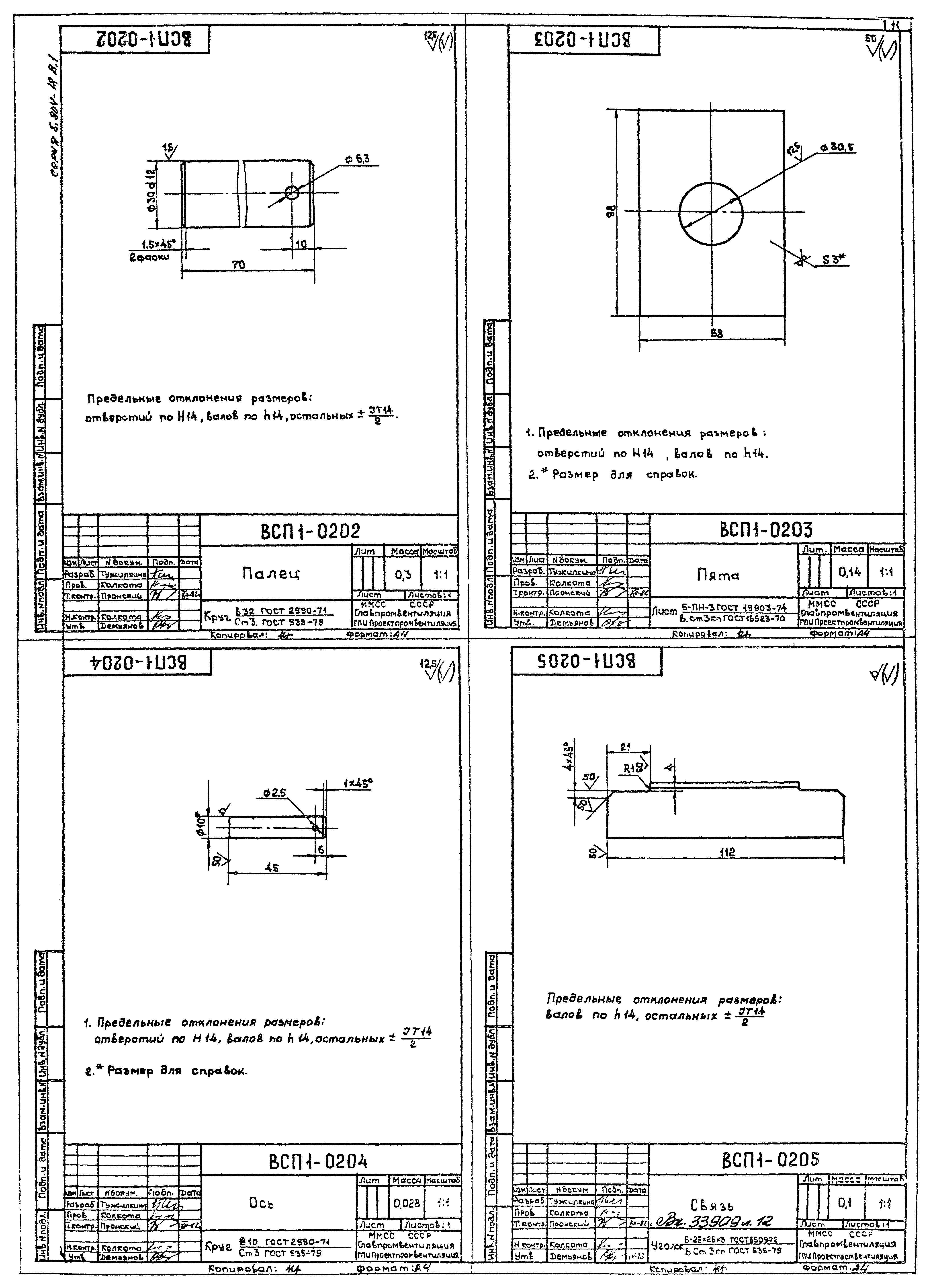
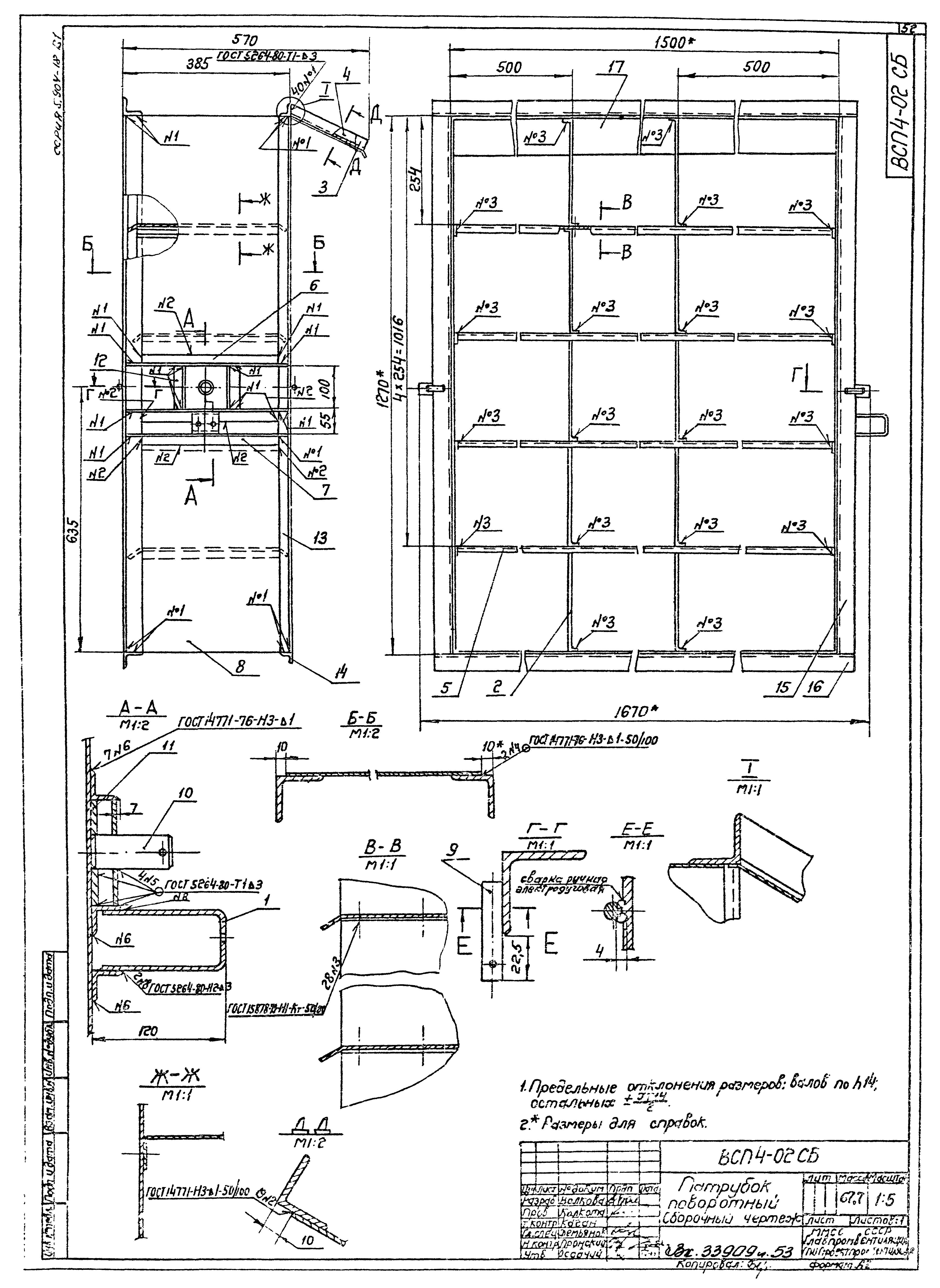
| Оглавление: | Титульный лист Содержание ВСП.Д1 Технические требования ВСП1 Воздухораспределитель для сосредоточенной подачи воздуха прямоструйный 500. Спецификация ВСП1-01 Патрубок. Спецификация ВСП1-0101 Угольник. Спецификация ВСП1СБ Воздухораспределитель для сосредоточенной подачи воздуха прямоструйный 500. Сборочный чертеж ВСП1-01СБ Патрубок. Сборочный чертеж ВСП1-01.02 Кронштейн. Деталь ВСП1-01.03 Угольник. Деталь ВСП1-01.04 Подкос. Деталь ВСП1-01.05 Подкос. Деталь ВСП2-00.03 Втулка. Деталь ВСП1-01.06 Стенка. Деталь ВСП1-02 Патрубок поворотный. Спецификация ВСП1-02.01 Кронштейн. Деталь ВСП1-02СБ Патрубок поворотный. Сборочный чертеж ВСП1-02.02 Палец. Деталь ВСП1-02.03 Пята. Деталь ВСП1-02.04 Ось. Деталь ВСП1-02.05 Связь. Деталь ВСП1-02.06 Ребро. Деталь ВСП1-02.07 Обечайка. Деталь ВСП1-02.10 Полка. Деталь ВСП1-02.11 Козырек. Деталь ВСП1-03СБ Заслонка. Сборочный чертеж ВСП1-03 Заслонка. Спецификация ВСП1-03.01 Связь. Деталь ВСП1-03.02 Связь. Деталь ВСП1-03.03 Полотно. Деталь ВСП1-03.04 Ось. Деталь ВСП1-04 Винт. Спецификация ВСП1-04СБ Винт. Сборочный чертеж ВСП1-04.01 Шпилька. Деталь ВСП1-04.02 Штырь. Деталь ВСП1-05 Поводок. Спецификация ВСП2-0001 Тяга. Деталь ВСП1-05.01 Кронштейн. Деталь ВСП1-05.02 Серьга. Деталь ВСП4-0001 Тяга. Деталь ВСП1-06 Кольцо. Деталь ВСП1-06.01 Втулка. Деталь ВСП1-06.02 Кольцо. Деталь ВСП4-0002 Втулка. Деталь ВСП1-07 Оседержатель. Спецификация ВСП1-07.01 Пластина. Деталь ВСП1-07.02 Пластина. Деталь ВСП1-0001 Тяга. Деталь ВСП1-0002 Втулка. Деталь ВСП1-0003 Ось. Деталь ВСП1-0004 Шайба. Деталь ВСП1-0005 Ось. Деталь ВСП1-0006 Втулка. Деталь ВСП1-0007 Втулка. Деталь ВСП5-0001 Тяга. Деталь ВСП2 Воздухораспределитель для сосредоточенной подачи воздуха прямоструйный 1000. Спецификация ВСП2 СБ Воздухораспределитель для сосредоточенной подачи воздуха прямоструйный 1000. Сборочный чертеж ВСП2-01 Патрубок. Спецификация ВСП2-01.01 Угольник. Деталь ВСП2-01.02 Кронштейн. Деталь ВСП2-01.03 Угольник. Деталь ВСП2-01СБ Патрубок. Сборочный чертеж ВСП2-01.04 Подкос ВСП2-01.05 Подкос ВСП2-01.06 Стенка ВСП2-0002 Ось ВСП2-02 Патрубок поворотный. Спецификация ВСП2-02.01 Палец. Деталь ВСП2-02.02 Пята. Деталь ВСП2-02.03 Связь. Деталь ВСП2-02СБ Патрубок поворотный. Сборочный чертеж ВСП2-02.04 Ребро. Деталь ВСП2-02.05 Обечайка. Деталь ВСП5-06.02 Косынка. Деталь ВСП2-02.08 Полка. Деталь ВСП2-02.12 Связь. Деталь ВСП2-03 Заслонка. Спецификация ВСП2-02.09 Козырек. Деталь ВСП2-03СБ Заслонка. Сборочный чертеж ВСП2-03.01 Связь. Деталь ВСП2-03.02 Связь. Деталь ВСП2-03.03 Полотно. Деталь ВСП2-04 Винт. Спецификация ВСП2-04СБ Винт. Сборочный чертеж ВСП2-04.01 Шпилька. Деталь ВСП3-02 Патрубок поворотный. Спецификация ВСП2-05 Поводок. Спецификация ВСП2-05.01 Кронштейн. Деталь ВСП2-07 Оседержатель. Спецификация ВСП2-06 Кольцо. Спецификация ВСП2-06.01 Кольцо. Деталь ВСП2-06.02 Втулка. Деталь ВСП3 Воздухораспределитель для сосредоточенной подачи воздуха прямоструйный 1200. Спецификация ВСП3СБ Воздухораспределитель для сосредоточенной подачи воздуха прямоструйный 1200. Сборочный чертеж ВСП3-01 Патрубок. Спецификация ВСП3-01.01 Угольник. Деталь ВСП3-01.02 Кронштейн. Деталь ВСП3-01.03 Угольник. Деталь ВСП3-01.СБ Патрубок. Сборочный чертеж ВСП2-07.01 Пластина. Деталь ВСП3-01.04 Подкос. Деталь ВСП3-01.05 Подкос. Деталь ВСП3-06 Стенка. Деталь ВСП3-02.СБ Патрубок поворотный. Сборочный чертеж ВСП3-02.01 Кронштейн. Деталь ВСП3-02.02 Палец. Деталь ВСП3-02.04 Связь. Деталь ВСП3-02.05 Ребро. Деталь ВСП3-02.06 Обечайка. Деталь ВСП3-02.09 Полка. Деталь ВСП3-02.10 Козырек. Деталь ВСП3-02.13 Связь. Деталь ВСП3-03СБ Заслонка. Сборочный чертеж ВСП3-03 Заслонка. Спецификация ВСП3-03.01 Связь. Деталь ВСП3-03.02 Связь. Деталь ВСП3-03.03 Полотно. Деталь ВСП3-05 Поводок. Сборочный чертеж ВСП3-05.01 Кронштейн. Деталь ВСП3-04СБ Винт. Сборочный чертеж ВСП3-04 Винт. Спецификация ВСП3-04.01 Шпилька. Деталь ВСП3-06 Оседержатель. Спецификация ВСП3-06.01 Планка. Деталь ВСП3-00.01 Тяга. Деталь ВСП3-00.03 Ось. Деталь ВСП4 Воздухораспределитель для сосредоточенной подачи воздуха прямоструйный 1600. Спецификация ВСП4-01Патрубок. Спецификация ВСП3-00.04 Втулка. Деталь ВСП4-СБ Воздухораспределитель для сосредоточенной подачи воздуха прямоструйный 1600. Сборочный чертеж ВСП4-01.СБ Патрубок. Сборочный чертеж ВСП4-01.01 Угольник. Деталь ВСП4-01.02 Угольник. Деталь ВСП4-01.03 Подкос. Деталь ВСП4-01.04 Подкос. Деталь ВСП4-01.05 Стенка. Деталь ВСП4-01.06 Стяжка. Деталь ВСП4-01.07 Стяжка. Деталь ВСП4-01.08 Кронштейн. Деталь ВСП4-02 Патрубок поворотный. Спецификация ВСП4-02.01 Кронштейн. Деталь ВСП4-02.02 Ребро. Деталь ВСП4-02.СБ Патрубок поворотный. Сборочный чертеж ВСП4-02.03 Жесткость. Деталь ВСП4-02.04 Жесткость. Деталь ВСП4-02.05 Полка. Деталь ВСП4-02.06 Связь. Деталь ВСП4-02.07 Связь. Деталь ВСП4-02.08 Обечайка. Деталь ВСП4-02.14 Козырек. Деталь ВСП4-02.15 Палец. Деталь ВСП4-03СБ Заслонка. Сборочный чертеж ВСП4-03 Заслонка. Спецификация ВСП4-03.01 Связь. Деталь ВСП4-04 Винт. Сборочный чертеж ВСП4-04 Винт. Спецификация ВСП4-04.01 Шпилька. Деталь ВСП4-05 Поводок. Спецификация ВСП4-05.01 Кронштейн. Деталь ВСП4-03.02 Связь. Деталь ВСП4-03.03 Полотно. Деталь ВСП4-06 Оседержатель. Спецификация ВСП4-06.01 Пластина. Деталь ВСП4-06.02 Косынка. Деталь ВСП4-06.03 Пластина. Деталь ВСП5 Воздухораспределитель для сосредоточенной подачи воздуха прямоструйный 2000. Спецификация ВСП5-01 Патрубок. Спецификация ВСП5-01.01 Угольник. Деталь ВСП5СБ Воздухораспределитель для сосредоточенной подачи воздуха прямоструйный 2000. Сборочный чертеж ВСП5-01СЕ Патрубок. Сборочный чертеж ВСП5-01.02 Угольник. Деталь ВСП5-01.03 Подкос. Деталь ВСП5-01.04 Подкос. Деталь ВСП5-01.05 Стенка. Деталь ВСП5-01.06 Стяжка. Деталь ВСП5-01.07 Стяжка. Деталь ВСП5-01.09 Угольник. Деталь ВСП5-01.10 Угольник. Деталь ВСП5-02 Патрубок поворотный. Спецификация ВСП5-02.01 Полка. Деталь ВСП5-02.02 Обечайка. Деталь ВСП5-02СБ Патрубок поворотный. Сборочный чертеж ВСП5-02.03 Связь. Деталь ВСП5-02.04 Связь. Деталь ВСП5-02.05 Ребро. Деталь ВСП5-02.06 Жесткость. Деталь ВСП5-03СБ Заслонка. Сборочный чертеж ВСП5-03 Заслонка. Спецификация ВСП5-03.01 Связь. Деталь ВСП5-03.02 Связь. Деталь ВСП5-03.03 Полотно. Деталь ВСП5-02.11Козырек. Деталь ВСП5-02.13 Жесткость. Деталь ВСП5-04 Винт. Спецификация ВСП5-04.01 Шпилька. Деталь ВСП5-04СБ Винт. Сборочный чертеж ВСП5-05 Поводок. Спецификация ВСП5-05.01 Кронштейн. Деталь ВСП5-06 Оседержатель. Спецификация ВСП5-06.01 Пластина. Деталь |
| Разработан: | ГПИ Проектпромвентиляция |
| Утверждён: | 09.09.1983 Главпромстройпроект Госстроя СССР (36) |
| Расположен в: | |
| Чем заменён: |






































































