Скачать Серия 3.501.2-139 Выпуск 3-3. Пролетные строения пролетами 66,0 - 77,0 м. Конструкции металлические. Узлы. Рабочие чертежиДата актуализации: 10.08.2017 Серия 3.501.2-139
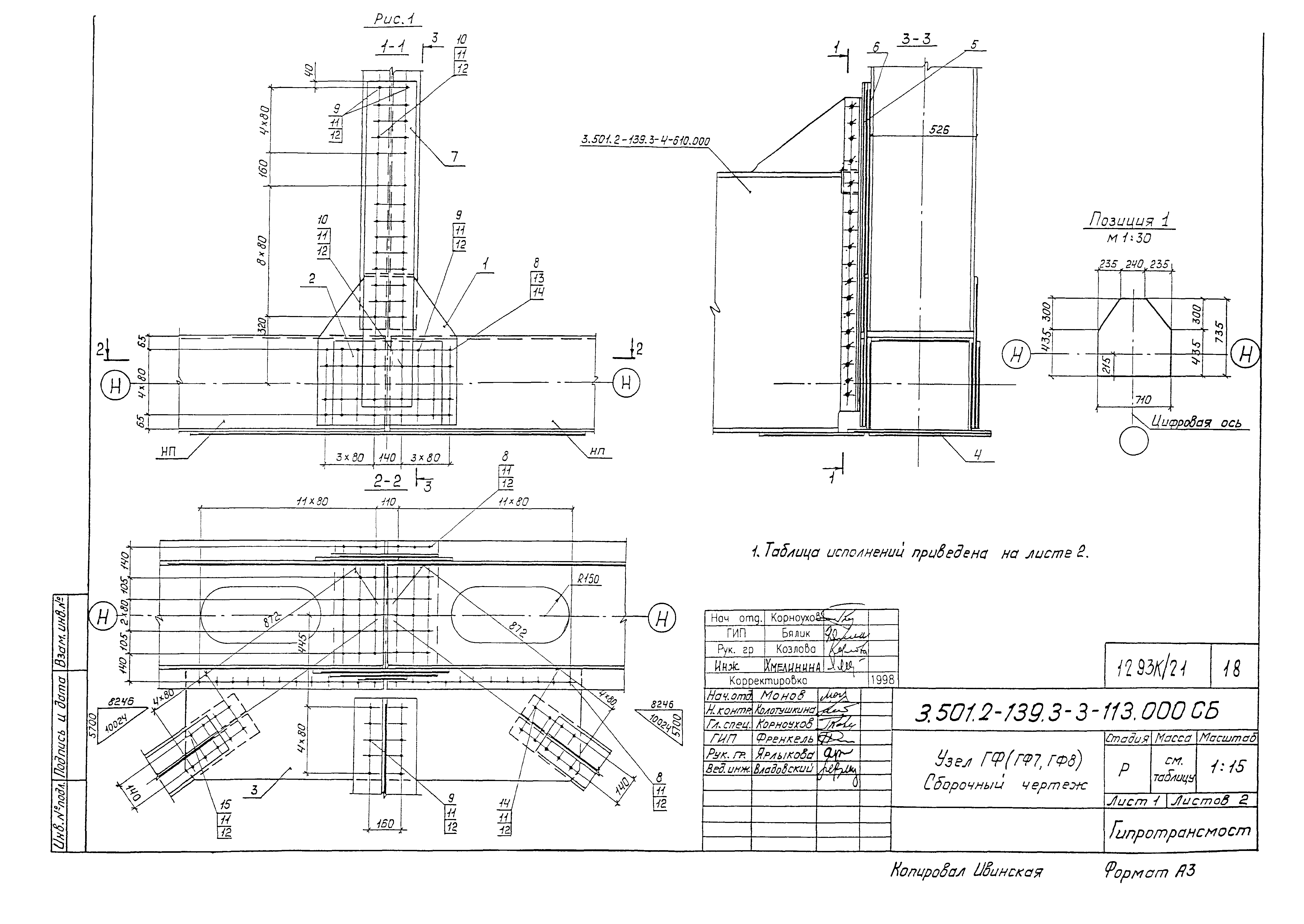
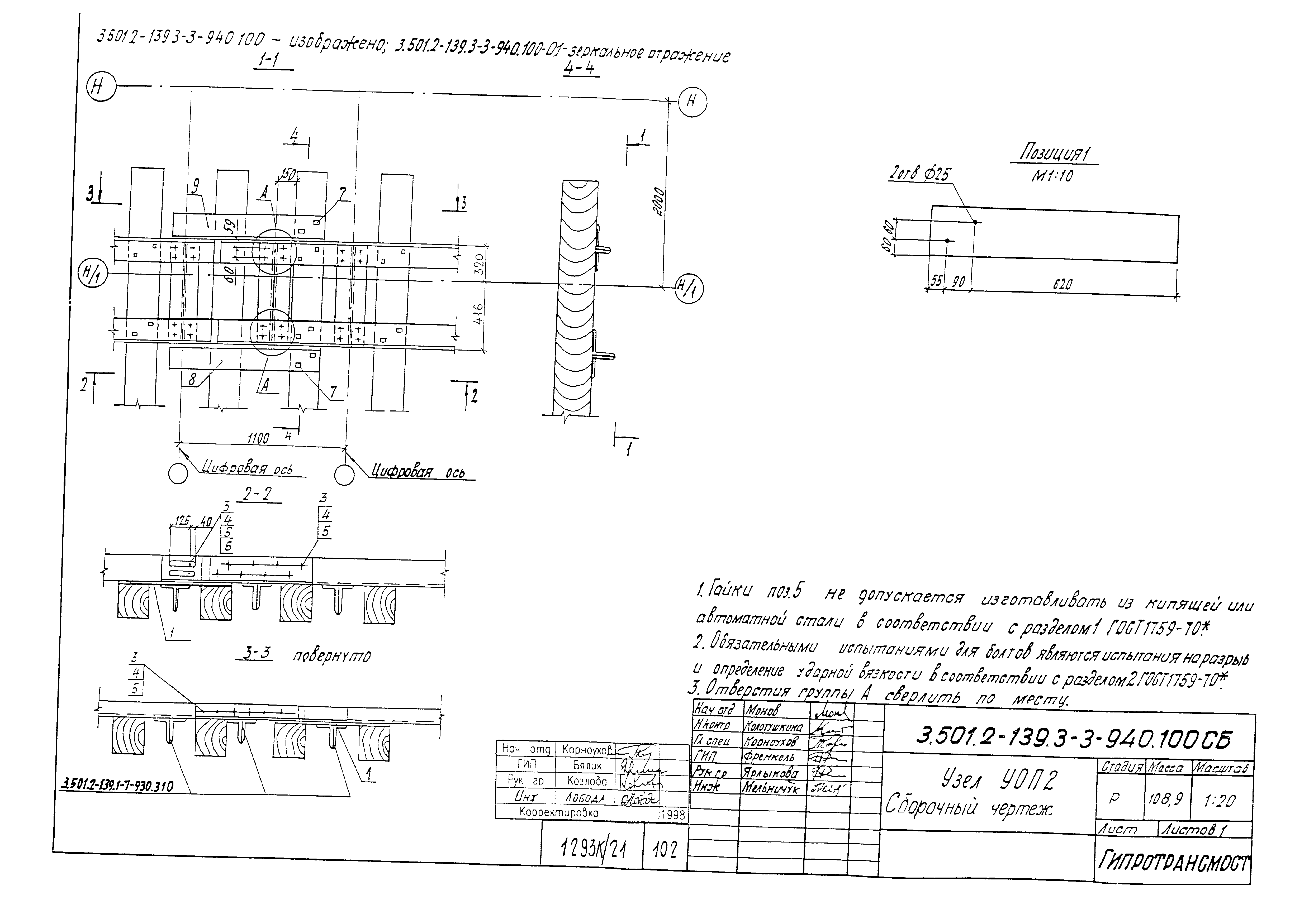
Выпуск 3-3. Пролетные строения пролетами 66,0 - 77,0 м. Конструкции металлические. Узлы. Рабочие чертежиОбозначение: | Серия 3.501.2-139 | Обозначение англ: | Series 3.501.2-139 | Статус: | не действует | Название рус.: | Выпуск 3-3. Пролетные строения пролетами 66,0 - 77,0 м. Конструкции металлические. Узлы. Рабочие чертежи | Дата добавления в базу: | 01.09.2013 | Дата актуализации: | 05.05.2017 | Дата введения: | 01.01.2006 | Оглавление: | 3.501.2-139.3-3-000.000 Содержание выпуска 3.501.2-139.3-3-000.000ТО Техническое описание 3.501.2-139.3-3-110.000 Узел ГФ1 3.501.2-139.3-3-110.000СБ Узел ГФ1. Сборочный чертеж 3.501.2-139.3-3-111.000 Узел ГФ (ГФ2…ГФ4) 3.501.2-139.3-3-111.000СБ Узел ГФ (ГФ2…ГФ4). Сборочный чертеж 3.501.2-139.3-3-112.000 Узел ГФ (ГФ5, ГФ6) 3.501.2-139.3-3-112.000СБ Узел ГФ (ГФ5, ГФ6). Сборочный чертеж 3.501.2-139.3-3-113.000 Узел ГФ (ГФ7, ГФ8) 3.501.2-139.3-3-113.000СБ Узел ГФ (ГФ7, ГФ8). Сборочный чертеж 3.501.2-139.3-3-114.000 Узел ГФ9 3.501.2-139.3-3-114.000СБ Узел ГФ9. Сборочный чертеж 3.501.2-139.3-3-115.000 Узел ГФ10 3.501.2-139.3-3-115.000СБ Узел ГФ10. Сборочный чертеж 3.501.2-139.3-3-116.000 Узел (ГФ11, ГФ12) 3.501.2-139.3-3-116.000СБ Узел (ГФ11, ГФ12). Сборочный чертеж 3.501.2-139.3-3-117.000 Узел ГФ13 3.501.2-139.3-3-117.000СБ Узел ГФ13. Сборочный чертеж 3.501.2-139.3-3-118.000 Узел ГФ14 3.501.2-139.3-3-118.000СБ Узел ГФ14. Сборочный чертеж 3.501.2-139.3-3-119.000 Узел ГФ15 3.501.2-139.3-3-119.000СБ Узел ГФ15. Сборочный чертеж 3.501.2-139.3-3-120.000 Узел ГФ16 3.501.2-139.3-3-120.000СБ Узел ГФ16. Сборочный чертеж 3.501.2-139.3-3-121.000 Узел (ГФ17, ГФ18) 3.501.2-139.3-3-121.000СБ Узел (ГФ17, ГФ18). Сборочный чертеж 3.501.2-139.3-3-204.000 Узел ПС1 3.501.2-139.3-3-205.000 Узел ПС2 3.501.2-139.3-3-306.000 Узел СР1 3.501.2-139.3-3-307.000 Узел СБ (СБ1, СБ2) 3.501.2-139.3-3-308.000 Узел СБ3 3.501.2-139.3-3-309.000 Узел ПСН1 3.501.2-139.3-3-310.000 Узел ПСН2 3.501.2-139.3-3-311.000 Узел ПСН3 3.501.2-139.3-3-312.000 Узел СНС1 3.501.2-139.3-3-404.000 Узел ПД1 3.501.2-139.3-3-405.000 Узел ППД1 3.501.2-139.3-3-503.000 Узел ПДР1 3.501.2-139.3-3-504.000 Узел ППС1 3.501.2-139.3-3-505.000 Узел ППС2 3.501.2-139.3-3-608.000 Узел СПЧ (СПЧ1…СПЧ3) 3.501.2-139.3-3-608.000СБ Узел СПЧ (СПЧ1…СПЧ3). Сборочный чертеж 3.501.2-139.3-3-609.000 Узел СПБ (СПБ1…СПБ4) 3.501.2-139.3-3-609.000СБ Узел СПБ (СПБ1…СПБ4). Сборочный чертеж 3.501.2-139.3-3-610.000 Узел СПБ (СПБ5…СПБ10) 3.501.2-139.3-3-610.000СБ Узел СПБ (СПБ5…СПБ10). Сборочный чертеж 3.501.2-139.3-3-611.000 Узел СПБ (СПБ11…СПБ14) 3.501.2-139.3-3-611.000СБ Узел СПБ (СПБ11…СПБ14). Сборочный чертеж 3.501.2-139.3-3-710.200 Узел УХ (УХ5, УХ6) 3.501.2-139.3-3-710.200СБ Узел УХ (УХ5, УХ6). Сборочный чертеж 3.501.2-139.3-3-803.000 Узел НС1 3.501.2-139.3-3-803.000СБ Узел НС1. Сборочный чертеж 3.501.2-139.3-3-804.000 Узел НС2 3.501.2-139.3-3-804.000СБ Узел НС2. Сборочный чертеж 3.501.2-139.3-3-805.000 Узел ВС (ВС1, ВС2) 3.501.2-139.3-3-805.000СБ Узел ВС (ВС1, ВС2). Сборочный чертеж 3.501.2-139.3-3-806.000 Узел СПБ (СПБ1, СПБ2) 3.501.2-139.3-3-806.000СБ Узел СПБ (СПБ1, СПБ2). Сборочный чертеж 3.501.2-139.3-3-807.000 Узел ВС3 3.501.2-139.3-3-807.000СБ Узел ВС3. Сборочный чертеж 3.501.2-139.3-3-808.000 Узел ВС4 3.501.2-139.3-3-808.000СБ Узел ВС4. Сборочный чертеж 3.501.2-139.3-3-809.000 Узел НСМ1 3.501.2-139.3-3-910.500 Узел УК1 3.501.2-139.3-3-910.600 Узел УК (УК2…УК4) 3.501.2-139.3-3-910.600СБ Узел УК (УК2…УК4). Сборочный чертеж 3.501.2-139.3-3-910.700 Узел УК (УК5, УК6) 3.501.2-139.3-3-910.700СБ Узел УК 5. Сборочный чертеж 3.501.2-139.3-3-910.700-01СБ Узел УК 6. Сборочный чертеж 3.501.2-139.3-3-910.800 Узел УК (УК7, УК8) 3.501.2-139.3-3-910.800СБ Узел УК (УК7, УК8). Сборочный чертеж 3.501.2-139.3-3-920.100 Ограждение перильное 3.501.2-139.3-3-920.100СБ Ограждение перильное ОП (ОП1, ОП2). Сборный чертеж 3.501.2-139.3-3-920.100-02СБ Ограждение перильное ОП (ОП3…ОП8). Сборочный чертеж 3.501.2-139.3-3-920.100-08СБ Ограждение перильное ОП9. Сборочный чертеж 3.501.2-139.3-3-920.100-09СБ Ограждение перильное ОП (ОП10…ОП12). Сборочный чертеж 3.501.2-139.3-3-940.100 Узел УОП2 3.501.2-139.3-3-940.100СБ Узел УОП2. Сборочный чертеж | Разработан: | Гипротрансмост
| Утверждён: | 23.05.1988 МПС СССР (USSR Ministry of Railroads А-1819у)
| Расположен в: |
| Заменяет собой: | |
                                                                                                     
|