Скачать Серия 3.501.2-139 Выпуск 2-5. Пролетные строения пролетами 88,0 - 110,0 м. Конструкции металлические. Узлы. Рабочие чертежиДата актуализации: 10.08.2017 Серия 3.501.2-139
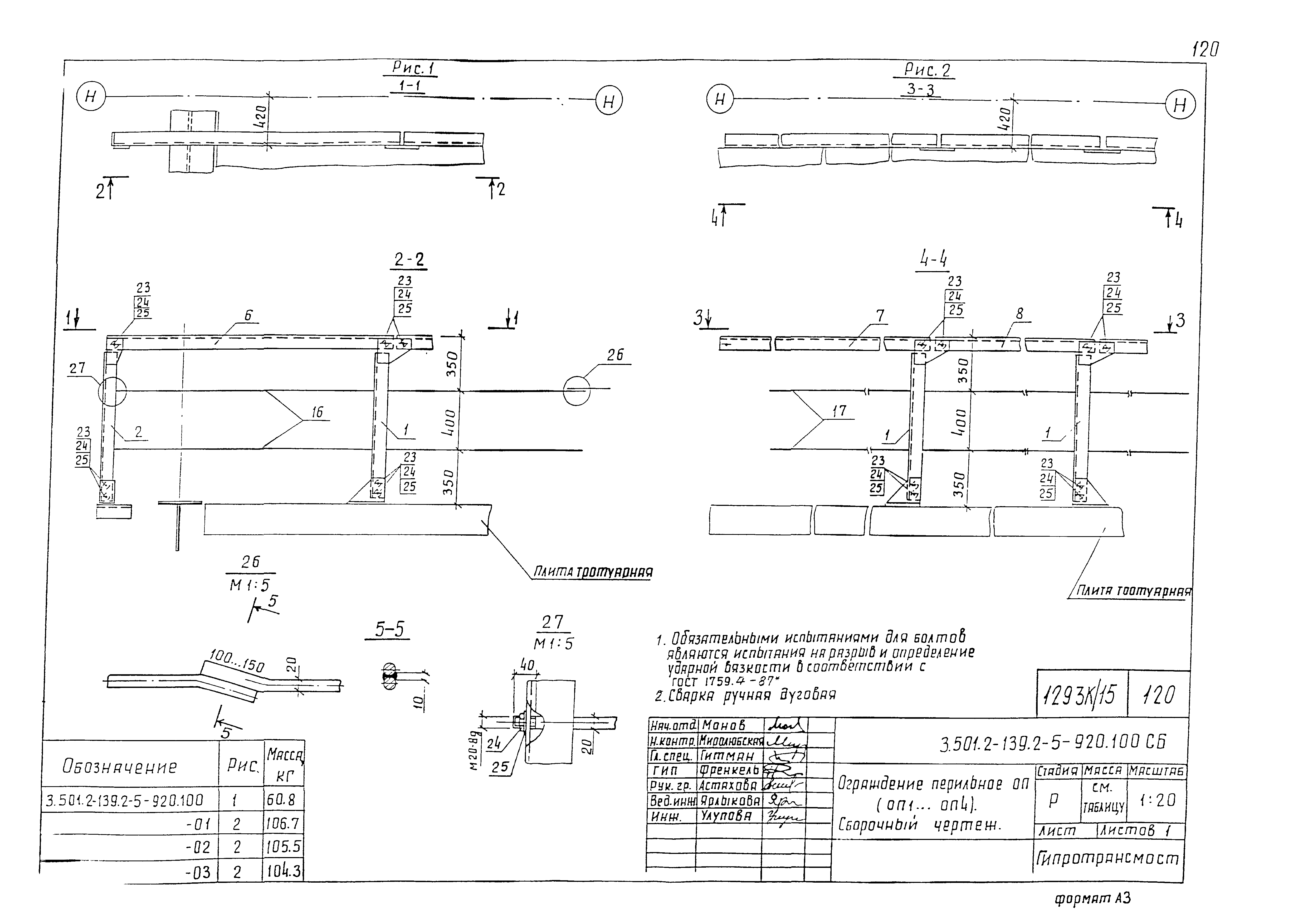
Выпуск 2-5. Пролетные строения пролетами 88,0 - 110,0 м. Конструкции металлические. Узлы. Рабочие чертежиОбозначение: | Серия 3.501.2-139 | Обозначение англ: | Series 3.501.2-139 | Статус: | не действует | Название рус.: | Выпуск 2-5. Пролетные строения пролетами 88,0 - 110,0 м. Конструкции металлические. Узлы. Рабочие чертежи | Дата добавления в базу: | 01.09.2013 | Дата актуализации: | 05.05.2017 | Дата введения: | 01.01.2006 | Оглавление: | 3.501.2-139.2-5-000.000 Содержание выпуска 3.501.2-139.2-5-000.000ТО Техническое описание 3.501.2-139.2-5-107.000 Узел ГФ (ГФ1, ГФ34) 3.501.2-139.2-5-107.000СБ Узел ГФ (ГФ1, ГФ34). Сборочный чертеж 3.501.2-139.2-5-108.000 Узел ГФ (ГФ2... ГФ4) 3.501.2-139.2-5-108.000СБ Узел ГФ (ГФ2... ГФ4). Сборочный чертеж 3.501.2-139.2-5-108.100 Компенсатор люков КЛ (КЛ2…КЛ4) 3.501.2-139.2-5-108.100СБ Компенсатор люков КЛ (КЛ2…КЛ4). Сборочный чертеж 3.501.2-139.2-5-108.200 Узел УГ (УГ1, УГ2) 3.501.2-139.2-5-108.200СБ Узел УГ (УГ1, УГ2). Сборочный чертеж 3.501.2-139.2-5-108.300 Узел УГ3 3.501.2-139.2-5-108.300СБ Узел УГ3. Сборочный чертеж 3.501.2-139.2-5-109.000 Узел ГФ5 3.501.2-139.2-5-109.000СБ Узел ГФ5. Сборочный чертеж 3.501.2-139.2-5-110.000 Узел ГФ6 3.501.2-139.2-5-110.000СБ Узел ГФ6. Сборочный чертеж 3.501.2-139.2-5-111.000 Узел ГФ (ГФ7…ГФ11) 3.501.2-139.2-5-111.000СБ Узел ГФ (ГФ7…ГФ11). Сборочный чертеж 3.501.2-139.2-5-112.000 Узел ГФ (ГФ12, ГФ13) 3.501.2-139.2-5-112.000СБ Узел ГФ (ГФ12, ГФ13). Сборочный чертеж 3.501.2-139.2-5-113.000 Узел ГФ14 3.501.2-139.2-5-113.000СБ Узел ГФ14. Сборочный чертеж 3.501.2-139.2-5-114.000 Узел ГФ15 3.501.2-139.2-5-114.000СБ Узел ГФ15. Сборочный чертеж 3.501.2-139.2-5-115.000 Узел ГФ (ГФ16, ГФ17). Сборочный чертеж 3.501.2-139.2-5-115.000СБ Узел ГФ (ГФ16, ГФ17). Сборочный чертеж 3.501.2-139.2-5-116.000 Узел ГФ (ГФ18, ГФ19) 3.501.2-139.2-5-116.000СБ Узел ГФ (ГФ18, ГФ19). Сборочный чертеж 3.501.2-139.2-5-117.000Узел ГФ (ГФ20...ГФ22) 3.501.2-139.2-5-117.000СБ Узел ГФ (ГФ20...ГФ22). Сборочный чертеж 3.501.2-139.2-5-118.000 Узел ГФ23 3.501.2-139.2-5-118.000СБ Узел ГФ23. Сборочный чертеж 3.501.2-139.2-5-119.000 Узел ГФ24 3.501.2-139.2-5-119.000СБ Узел ГФ24. Сборочный чертеж 3.501.2-139.2-5-120.000 Узел ГФ25 3.501.2-139.2-5-120.000СБ Узел ГФ25. Сборочный чертеж 3.501.2-139.2-5-121.000 Узел ГФ26 3.501.2-139.2-5-121.000СБ Узел ГФ26. Сборочный чертеж 3.501.2-139.2-5-122.000Узел ГФ27 3.501.2-139.2-5-122.000СБ Узел ГФ27. Сборочный чертеж 3.501.2-139.2-5-123.000 Узел ГФ (ГФ28, ГФ29) 3.501.2-139.2-5-123.000СБ Узел ГФ (ГФ28, ГФ29). Сборочный чертеж 3.501.2-139.2-5-124.000 Узел ГФ (ГФ30, ГФ31) 3.501.2-139.2-5-124.000СБ Узел ГФ (ГФ30, ГФ31). Сборочный чертеж 3.501.2-139.2-5-125.000 Узел ГФ32 3.501.2-139.2-5-125.000СБ Узел ГФ32. Сборочный чертеж 3.501.2-139.2-5-126.000 Узел ГФ33 3.501.2-139.2-5-126.000СБ Узел ГФ33. Сборочный чертеж 3.501.2-139.2-5-204.000 Узел ПС1 3.501.2-139.2-5-205.000 Узел ПС2 3.501.2-139.2-5-308.000 Узел СР (СР1, СР2) 3.501.2-139.2-5-309.000 Узел СБ1 3.501.2-139.2-5-310.000 Узел СБ2 3.501.2-139.2-5-311.000 Узел СРБ 3.501.2-139.2-5-312.000 Узел СНС 3.501.2-139.2-5-313.000 Узел ПСЗ 3.501.2-139.2-5-314.000 Узел ПС (ПС4…ПС6) 3.501.2-139.2-5-314.000СБ Узел ПС (ПС4…ПС6). Сборочный чертеж 3.501.2-139.2-5-404.000 Узел ПД1 3.501.2-139.2-5-405.000 Узел ПД2 3.501.2-139.2-5-406.000 Узел ППД1 3.501.2-139.2-5-503.000 Узел ПДС1 3.501.2-139.2-5-504.000 Узел ППС1 3.501.2-139.2-5-505.000 Узел ППС2 3.501.2-139.2-5-607.000 Узел СП4 (СП41…СП43) 3.501.2-139.2-5-607.000СБ Узел СП4 (СП41…СП43). Сборочный чертеж 3.501.2-139.2-5-608.000 Узел СПБ(СПБ1…СПБ4) 3.501.2-139.2-5-608.000СБ Узел СПБ(СПБ1…СПБ4). Сборочный чертеж 3.501.2-139.2-5-609.000 Узел СПБ(СПБ5…СПБ16) 3.501.2-139.2-5-609.000СБ Узел СПБ(СПБ5…СПБ16). Сборочный чертеж 3.501.2-139.2-5-720.100 Узел УПК (УПК1, УПК2) 3.501.2-139.2-5-720.200 Узел УПК (УПК3, УПК4) 3.501.2-139.2-5-720.300 Узел УПК5 3.501.2-139.2-5-770.100 Узел УКТ (УКТ1…УКТ3) 3.501.2-139.2-5-770.100СБ Узел УКТ (УКТ1…УКТ3). Сборочный чертеж 3.501.2-139.2-5-802.000 Узел НС1 3.501.2-139.2-5-802.000СБ Узел НС1. Сборочный чертеж 3.501.2-139.2-5-803.000 Узел ВС1 3.501.2-139.2-5-803.000СБ Узел ВС1. Сборочный чертеж 3.501.2-139.2-5-804.000 Узел ВС2 3.501.2-139.2-5-804.000СБ Узел ВС2. Сборочный чертеж 3.501.2-139.2-5-805.000 Узел СМБ (СМБ1, СМБ2) 3.501.2-139.2-5-805.000СБ Узел СМБ (СМБ1, СМБ2). Сборочный чертеж 3.501.2-139.2-5-806.000 Узел НС2 3.501.2-139.2-5-806.000СБ Узел НС2. Сборочный чертеж 3.501.2-139.2-5-807.000 Узел ВС3 3.501.2-139.2-5-807.000СБ Узел ВС3. Сборочный чертеж 3.501.2-139.2-5-808.000 Узел ВС4 3.501.2-139.2-5-808.000СБ Узел ВС4. Сборочный чертеж 3.501.2-139.2-5-910.500 Узел УК1 3.501.2-139.2-5-910.600 Узел УК (УК2, УК3) 3.501.2-139.2-5-910.600СБ Узел УК (УК2, УК3). Сборочный чертеж 3.501.2-139.2-5-910.600 Узел УК (УК4…УК6) 3.501.2-139.2-5-910.600СБ Узел УК (УК4…УК6). Сборочный чертеж 3.501.2-139.2-5-910.800 Узел УК7 3.501.2-139.2-5-920.100 Ограждение перильное 3.501.2-139.2-5-920.100СБ Ограждение перильное ОП (ОП1…ОП4). Сборочный чертеж 3.501.2-139.2-5-920.100-04СБ Ограждение перильное ОП (ОП5…ОП8). Сборочный чертеж 3.501.2-139.2-5-920.100-08СБ Ограждение перильное ОП9. Сборочный чертеж 3.501.2-139.2-5-920.100-09СБ Ограждение перильное ОП (ОП10…ОП13). Сборочный чертеж 3.501.2-139.2-5-940.100Узел УОП2 3.501.2-139.2-5-960.200Узел УОП4 3.501.2-139.2-5-960.300 Узел УОП5 | Разработан: | Гипротрансмост
| Утверждён: | 06.05.1987 МПС СССР (USSR Ministry of Railroads А-2593у)
| Расположен в: |
| Заменяет собой: | |
                                                                                                                       
|