| ||||||||||||||||||||||||||
Скачать Серия 2.130-1 Выпуск 21. Стены из крупных легкобетонных блоков для сельского строительства. Рабочие чертежиДата актуализации: 10.08.2017
|
| Обозначение: | Серия 2.130-1 |
| Обозначение англ: | Series 2.130-1 |
| Статус: | cправочные материалы, мп, тпр |
| Название рус.: | Выпуск 21. Стены из крупных легкобетонных блоков для сельского строительства. Рабочие чертежи |
| Дата добавления в базу: | 01.09.2013 |
| Дата актуализации: | 05.05.2017 |
| Дата введения: | 01.07.1980 |
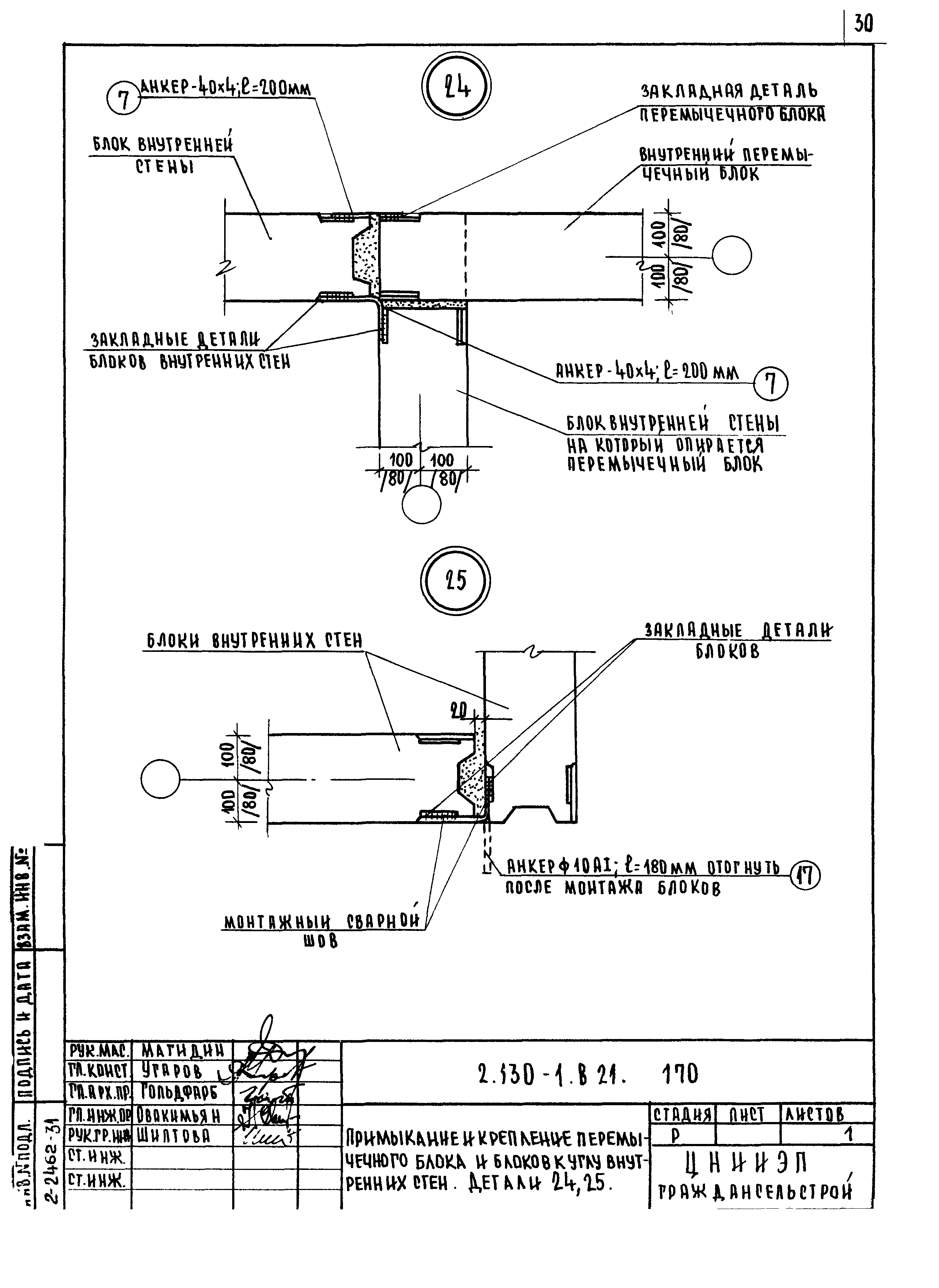
| Оглавление: | Содержание 2.130-1.В.21.00 ПЗ Пояснительная записка 2.130-1.В.21.00 ПЗ Схема 1. Раскладка блоков наружных стен при двухрядной разрезке. Маркировка деталей 2.130-1.В.21.00 ПЗ Схема 2. Раскладка блоков наружных стен при двухрядной разрезке. Маркировка деталей 2.130-1.В.21.00 ПЗ Схема 3. Раскладка блоков наружных стен при двухрядной разрезке. Маркировка деталей 2.130-1.В.21.00 ПЗ Схема 4. Раскладка блоков внутренних стен. Маркировка деталей 2.130-1.В.21.010 Примыкание и крепление цокольных, поясных или перемычных блоков в месте их стыка к плитам перекрытий. Детали 1, 6, 3, 4 2.130-1.В.21.020 Примыкание и крепление углового цокольного или поясного блока к плите перекрытия. Детали 2, 5, 7, 8 2.130-1.В.21.030 Примыкание и крепление угловых простеночных блоков. Деталь 9 2.130-1.В.21.040 Примыкание и крепление угловых поясных блоков лоджий. Деталь 10 2.130-1.В.21.050 Анкеровка в местах примыкания внутренних несущих стен углу наружных стен. Деталь 11 2.130-1.В.21.060 Анкеровка в местах примыкания 2 внутренних несущих стен углу наружных стен. Деталь 12 2.130-1.В.21.070 Анкеровка в местах примыкания плит лоджии к углу наружных стен. Деталь 13 2.130-1.В.21.070 Анкеровка в местах примыкания плит лоджии к углу наружных стен. Сечение 1-1 2.130-1.В.21.080 Анкеровка в местах примыкания 2 плит лоджии к углу наружных стен. Деталь 14 2.130-1.В.21.090 Анкеровка в местах примыкания плиты лоджии к углу наружной стене. Деталь 15 2.130-1.В.21.100 Примыкание и крепление боковой стены лоджии к простеночному блоку наружной стены. Деталь 16 2.130-1.В.21.110 Примыкание и крепление блоков внутренней несущей стены к блокам наружных стен в месте стыка. Деталь 17 2.130-1.В.21.120 Примыкание и крепление блока внутренней несущей стены к наружной стене. Деталь 18 2.130-1.В.21.130 Примыкание и крепление блока лестничной клетки к наружной стен. Деталь 19 2.130-1.В.21.140 Опирание и крепление перемычного блока к внутренней стене. Детали 20, 21 2.130-1.В.21.150 Примыкание и крепление блоков внутренних стен. Деталь 22 2.130-1.В.21.160 Примыкание и крепление блока лестничной клетки к блокам внутренних стен. Деталь 23 2.130-1.В.21.170 Примыкание и крепление перемычного блока и блоков к углу внутренних стен. Деталь 24, 25 2.130-1.В.21.180 Примыкание и крепление внутренних вентиляционных блоков. Деталь 26 2.130-1.В.21.190 Примыкание и крепление блоков наружных стен и панелям перекрытия опирающимся на вентиляционные блоки. Деталь 27 2.130-1.В.21.200 Примыкание и крепление блоков наружных стен в месте стыка к панелям перекрытия, опирающимся на вентблоки. Деталь 28 2.130-1.В.21.210 Анкеровка в местах примыкания вентиляционного блока к наружной стене. Деталь 29 2.130-1.В.21.220 Примыкание и крепление внутреннего вентиляционного блока к блоку внутренней стены Деталь 36 2.130-1.В.21.230 Примыкание и крепление подкарнизных блоков. Деталь 31 2.130-1.В.21.240 Примыкание и крепление угловых подкарнизных блоков. Деталь 32 2.130-1.В.21.250 Анкеровка в местах примыкания парапетных блоков. Деталь 33 2.130-1.В.21.260 Крепление карнизной плиты при совмещенной невент. крыше. Деталь 34 2.130-1.В.21.270 Крепление парапетного блока при совмещенной невент. крыше. Деталь 35 2.130-1.В.21.280 Спецификация стали закладных и соединительных элементов 2.130-1.В.21.290 Спецификация стали закладных и соединительных элементов 2.130-1.В.21.300 Спецификация стали закладных и соединительных элементов 2.130-1.В.21.310 Анкера - 1, 2, 3, 4 |
| Разработан: | ЦНИИЭП граждансельстрой |
| Утверждён: | 06.06.1980 Государственный комитет по гражданскому строительству (151) |
| Расположен в: |













































