| ||||||||||||||||||||||||||
Скачать Серия 2.130-1 Выпуск 18. Наружные ненесущие асбестоцементные стены 5 и 9 этажных крупнопанельных зданий со спаренными окнами и балконными дверямиДата актуализации: 10.08.2017
|
| Обозначение: | Серия 2.130-1 |
| Обозначение англ: | Series 2.130-1 |
| Статус: | cправочные материалы, мп, тпр |
| Название рус.: | Выпуск 18. Наружные ненесущие асбестоцементные стены 5 и 9 этажных крупнопанельных зданий со спаренными окнами и балконными дверями |
| Дата добавления в базу: | 01.09.2013 |
| Дата актуализации: | 05.05.2017 |
| Дата введения: | 01.06.1981 |
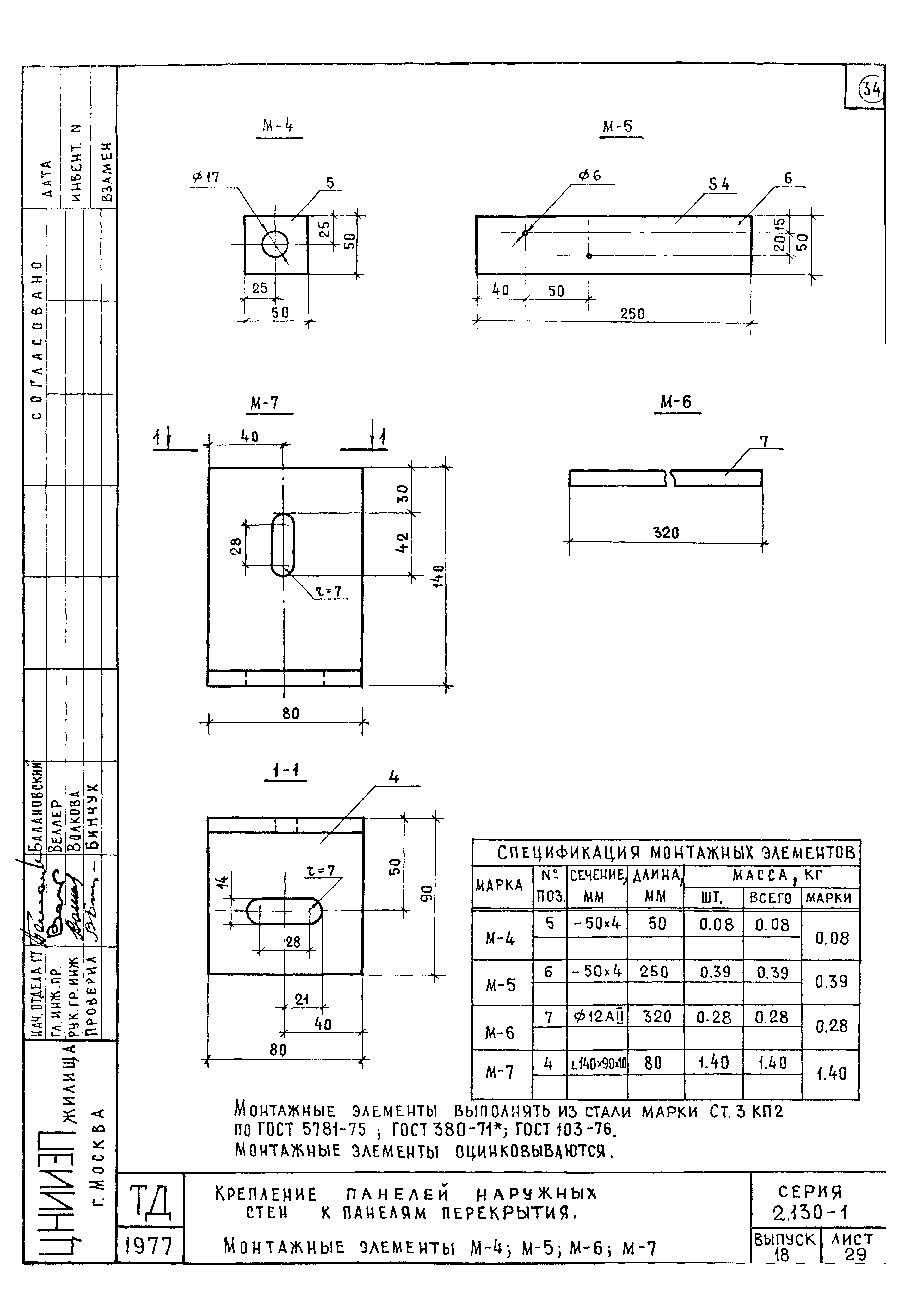
| Оглавление: | Содержание Пояснительная записка Крупнопанельные дома с большим и малым шагом поперечных стен. Фрагмент монтажных схем. Маркировка деталей Угловой стык панелей наружных стен. Деталь 1 Сопряжение панелей наружных стен и панелей перекрытия. Горизонтальный стык. Сечение 1-1 Сопряжение панелей наружных стен, цокольных панелей и панелей перекрытия. Горизонтальный стык. Сечение 1-1 Сопряжение парапетных панелей и панелей покрытия. Горизонтальный стык. Сечение 1-1 Стык панелей наружных и внутренних стен и стенок лоджий. Деталь 2 Сопряжение панелей наружных стен и панелей перекрытия. Горизонтальный стык лоджий. Сечение 2-2 Стык панелей наружных и внутренних стен и внутреннего угла ризалита и в лоджии. Деталь 3 Стык панелей наружных и внутренних стен и внутреннего угла ризалита и в лоджии. Деталь 3 /Вариант/ Стык панелей наружных и внутренних стен и внешнего угла ризалита и в лоджии. Деталь 4 Рядовой стык панелей наружных и внутренних стен. Деталь 5 Угловой стык панелей наружных стен. Деталь 6 Рядовой стык панелей наружных и внутренних стен. Деталь 7 Угловой стык панелей наружных стен. Деталь 8 Стык панелей наружных и внутренних стен у внутреннего угла лоджии. Деталь 9 Сопряжение утепляющий панелей лоджии, внутренних стеновых панелей и панелей перекрытия. Горизонтальный стык. Сечение 3-3 Стык панелей наружных и внутренних стен у внешнего угла лоджии. Деталь 10 Крепление панелей наружных стен к панелям перекрытия. Деталь 11 Крепление панелей наружных стен к панелям перекрытия. Разрез 4-4 Крепление панелей наружных стен к панелям перекрытия. Деталь 11 /Вариант/ Крепление панелей наружных стен к панелям перекрытия. Разрез 5-5 Крепление наружных утепляющих панелей лоджий и панелей внутренних стен. Деталь 12 Крепление наружных утепляющих панелей лоджий и панелей внутренних стен. Сечение 6-6 Крепление плит лоджии к панелям перекрытия. Деталь 13 Крепление плит лоджии к панелям перекрытия. Разрез 7-7 Крепление парапетных панелей к панелям покрытия. Деталь 14 Крепление панелей наружных стен к панелям перекрытия . Закладные детали панелей наружных стен /вариант/ ЗД-1; ЗД-2; ЗД-3 Крепление панелей наружных стен к панелям перекрытия. Монтажные элементы М-1; М-2; М-3 Крепление панелей наружных стен к панелям перекрытия. Монтажные элементы М-4; М-5; М-6; М-7 |
| Разработан: | ЦНИИЭП жилища |
| Утверждён: | 13.05.1981 Государственный комитет по гражданскому строительству (157) |
| Расположен в: |



































