| ||||||||||||||||||||||||||
Скачать Серия 2.130-1 Выпуск 17. Наружные однослойные стены 5 и 9 этажных крупнопанельных зданийДата актуализации: 10.08.2017
|
| Обозначение: | Серия 2.130-1 |
| Обозначение англ: | Series 2.130-1 |
| Статус: | cправочные материалы, мп, тпр |
| Название рус.: | Выпуск 17. Наружные однослойные стены 5 и 9 этажных крупнопанельных зданий |
| Дата добавления в базу: | 01.09.2013 |
| Дата актуализации: | 05.05.2017 |
| Дата введения: | 15.06.1976 |
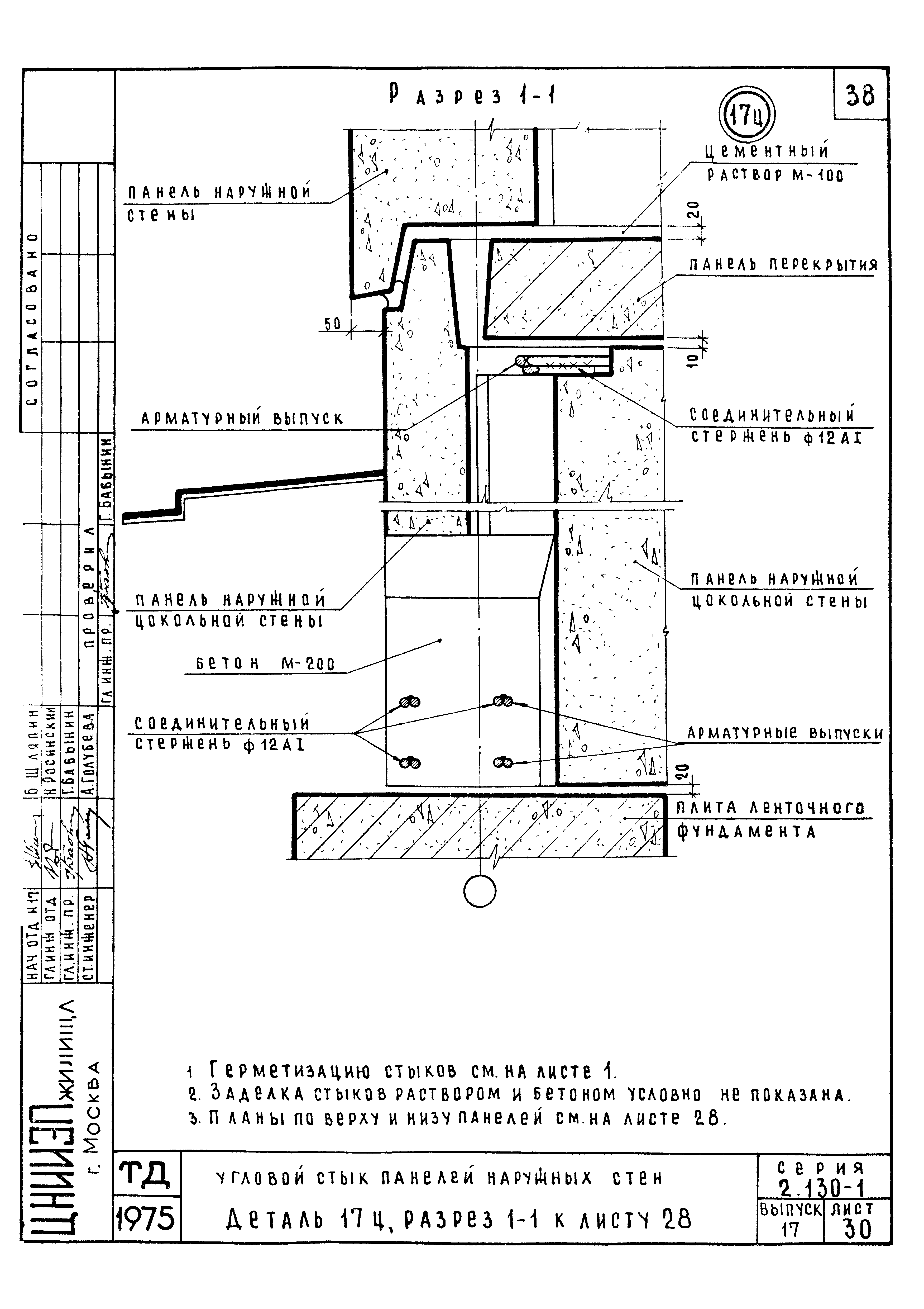
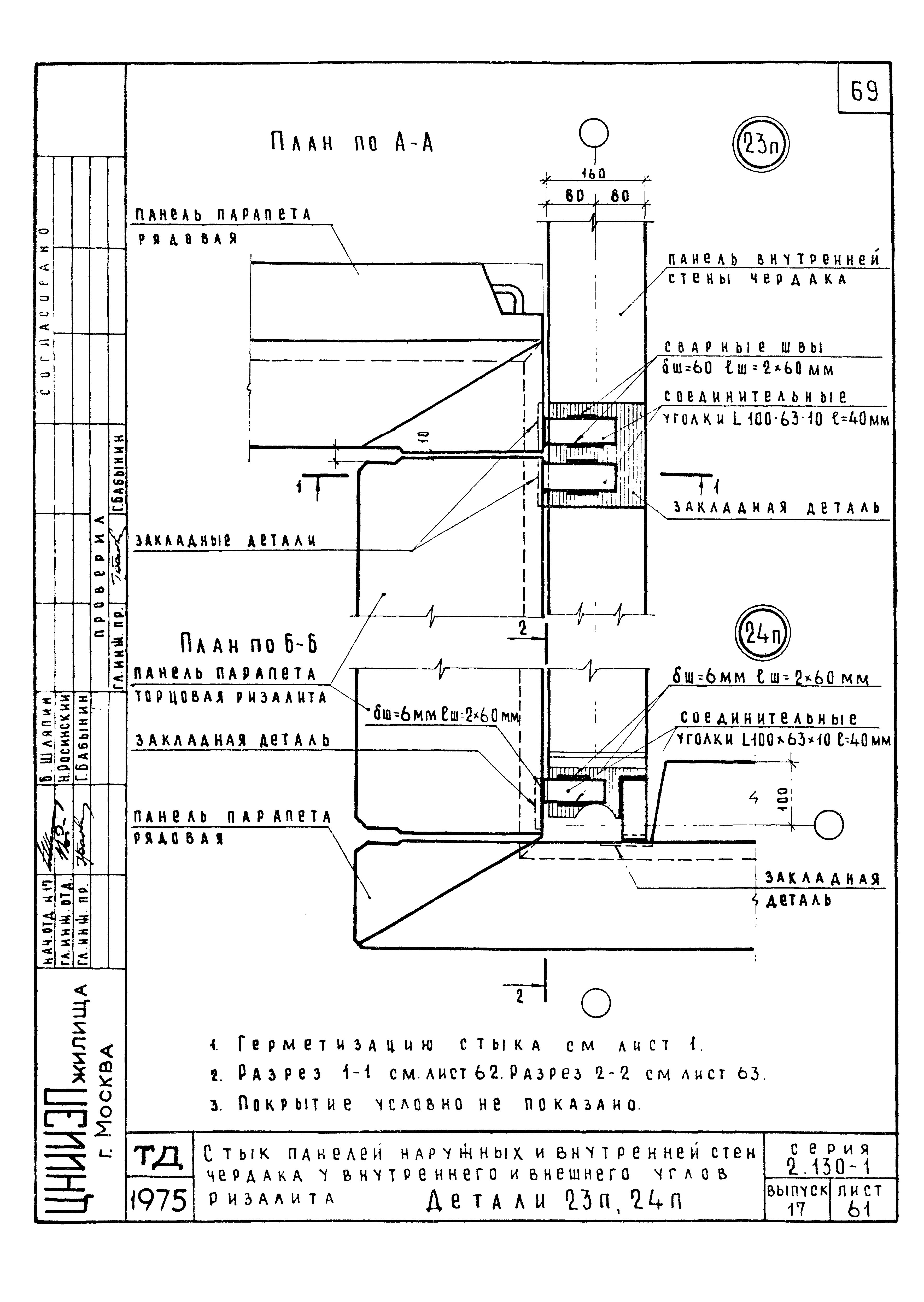
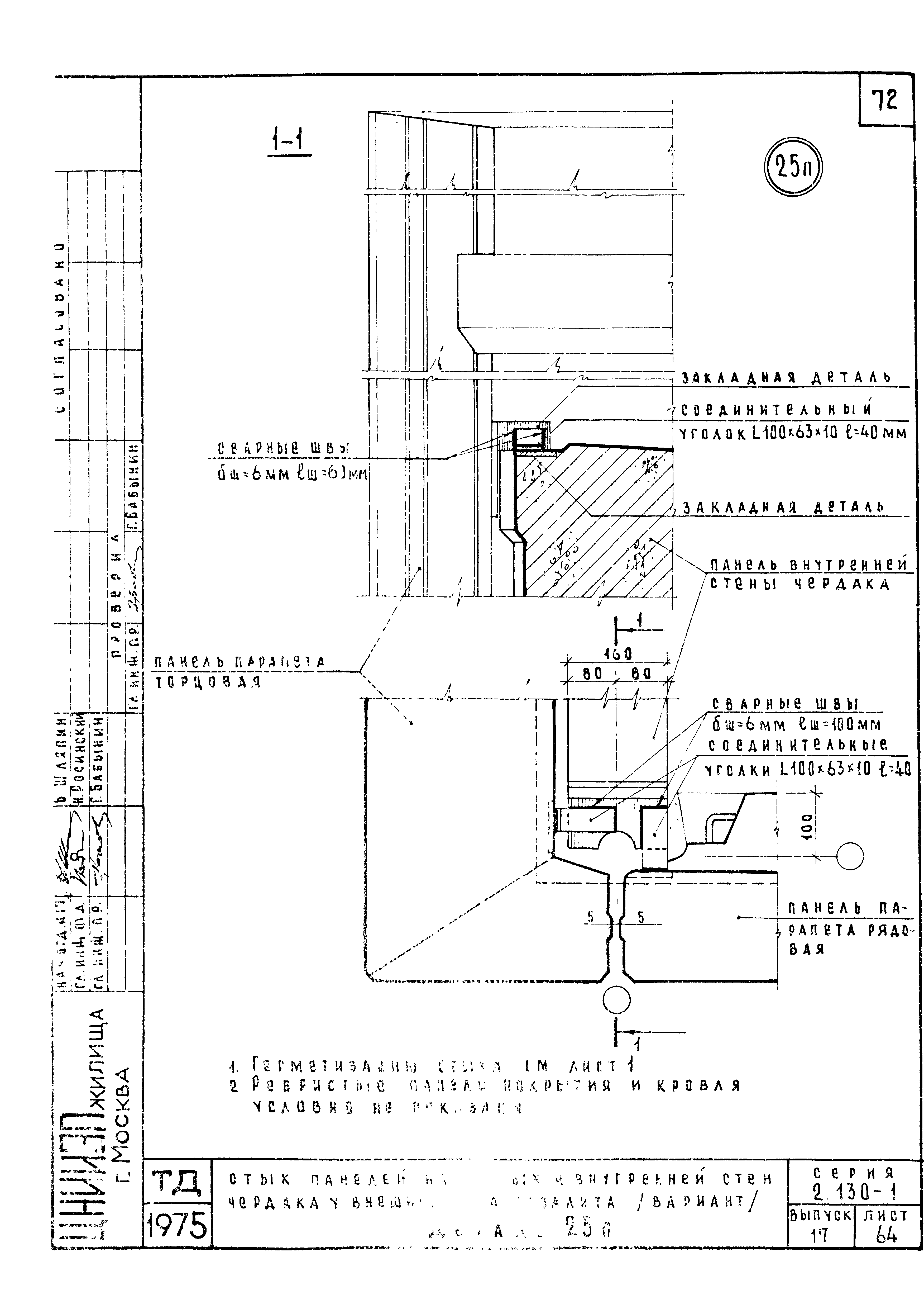
| Оглавление: | Содержание Пояснительная записка Герметизация стыков наружных стен. Детали 1/ 4; 1а/ 4а. Детали стыков наружных стен для крупнопанельных домов с шагом поперечных стен 2,4 -3,6 м "малый шаг" Фрагменты монтажных схем /"малый шаг"/. Маркировка деталей Сопряжение панелей наружных и внутренних стен и панели перекрытия. Вертикальный и горизонтальный стыки. Детали 5,5ц; 6 Сопряжение панелей наружных и внутренних стен и панели перекрытия. Горизонтальный стык. Деталь 6ц Угловой стык панелей наружных стен. Детали 7, 7ц Угловой стык панелей наружных стен. Деталь 7, разрез 1-1 к листу 5 Угловой стык панелей наружных стен. Деталь 7ц, разрез 1-1 к листу 5 Рядовой стык панелей наружных и внутренних стен. Детали 8, 8ц Рядовой стык панелей наружной и внутренней стен. Деталь 8, разрез 1-1 к листу 8 Рядовой стык панелей наружной и внутренней стен. Деталь 8ц, разрез 1-1 к листу 8 Стык панелей наружной и внутренней стен. Детали 9, 9ц Стык панелей наружной и внутренней стен. Деталь 9, разрез 1-1 к листу 11 Стык панелей наружной и внутренней стен. Деталь 9ц, разрез 1-1 к листу 11 Стык панелей наружных и внутренней стен и цоколя у внешнего угла ризалита. Детали 10, 10ц Стык панелей наружных и внутренней стен и цоколя у внешнего угла ризалита. Деталь 10, разрез 1-1 к листу 14 Стык панелей наружных и внутренней стен и цоколя у внешнего угла ризалита. Деталь 10ц, разрез 1-1 к листу 14 Стык панелей наружных и внутренней стен и цоколя у внешнего угла ризалита. Детали 11, 11ц Стык панелей наружных и внутренней стен и цоколя у внешнего угла ризалита. Деталь 11, разрез 1-1 к листу 17 Стык панелей наружных и внутренней стен и цоколя у внешнего угла ризалита. Деталь 11ц, разрез 1-1 к листу 17 Стык панелей наружных и внутренней стен и цоколя у внутреннего угла ризалита. Детали 12, 12ц Стык панелей наружной и внутренней стен и цоколя у внутреннего угла ризалита. Детали 12, 12ц, разрез 1-1 к листу 20 Стык панелей наружной и внутренней стен и стенки лоджии. Детали 13, 13ц Стык панелей наружной и внутренней стен и стенки лоджии. Детали 13, 13ц, разрез 1-1 к листу 22 Стык панелей наружной и внутренней стен в месте деформационного шва. Детали 14, 14ц Стык панелей наружной и внутренней стен в месте деформационного шва. Детали 14, 14ц, разрез 1-1 к листу 24 Детали наружных стен и цоколя для крупнопанельных домов с шагом поперечных стен 24/ 66 м. Большой и смешанный шаг Фрагменты монтажных схем /"большого и смешанного шага"/. Маркировка деталей Сопряжения панелей наружной и внутренней стен и панели перекрытия. Вертикальный и горизонтальный стыки. Детали 15; 15ц; 16; 16ц Угловой стык панелей наружных стен. Детали 17, 17ц Угловой стык панелей наружных стен. Детали 17, разрез 1-1 к листу 28. Деталь 18, разрез 1-1 к листу 31 Угловой стык панелей наружных стен. Деталь 17ц, разрез 1-1 к листу 28 Рядовой стык панелей наружной и внутренней стен. Детали 18, 18ц Рядовой стык панелей наружной и внутренней стен. Детали 18ц, разрез 1-1 к листу 31 Стык панелей наружной стены. Детали 19, 19ц Стык панелей наружной стены. Детали 19, 19ц. Разрез 1-1 к листу 33 Стык панелей наружной и внутренней стен у внутреннего и внешнего угла ризалита. Детали 20, 20ц; 21, 21ц Стык панелей наружной и внутренней стен у внутреннего угла ризалита. Детали 20, 20ц; Разрезы 1-1, 2-2 к листу 35 Стык панелей наружной и внутренней стен у внутреннего угла ризалита. Деталь 20ц, разрез 1-1 к листу 35 Стык панелей наружной и внутренней стен у внешнего угла ризалита. Деталь 21ц, разрез 2-2 к листу 35 Стык панелей наружной и внутренней стен у внешнего угла ризалита /Вариант/. Детали 22, 22ц Стык панелей наружной и внутренней стен и стенки лоджии. Детали 23, 23ц Стык панелей наружной и внутренней стен в месте деформационного шва. Детали 24, 24ц Стык панелей наружной и внутренней стен в месте деформационного шва. Детали 24, 24ц. Разрез 1-1 к листу 41 Детали стыков парапетов для совмещенных крыш крупнопанельных домов с шагом несущих поперечных стен 2,4/ 3,6 М. "Малый шаг" Фрагменты монтажных схем парапетов. Маркировка деталей Сопряжение панелей парапета, наружной стены перекрытия и покрытия. Вертикальный и горизонтальный стыки. Детали 5п, 6п Угловой стык панелей парапетов /для совмещенных крыш/. Деталь 7п, 8п Рядовой стык панелей парапетов /для совмещенных крыш/. Детали 9п, 10п Деталь 9п, разрез 1-1 к листу 46 Деталь 10п, разрез 1-1 к листу 46 Деталь 9п, 10п. Разрезы 2-2 к листу 46 Стык панелей парапетов у внешнего угла ризалита /для совмещенных крыш/. Детали 11п, 12п Стык панелей парапетов у внешнего угла ризалита /для совмещенных крыш/. Детали 13п, 14п Стык панелей парапетов у внешнего угла ризалита /для совмещенных крыш/. Детали 15п, 16п Стык панелей парапетов в месте деформационного шва /для совмещенных крыш/. Детали 17п, 18п Деталь 17п, разрез 1-1 к листу 53 Деталь 18п, разрез 2-2 к листу 53 Детали стыков парапетов для чердачных крыш малопанельных домов с шагом поперечных стен 2,4/ 6,6 м. /Малый и большой смешанные шаги "/ Сопряжение панелей наружных и внутренних стен чердака, перекрытия и покрытия. Детали 19п, 20п. Вертикальный и горизонтальный стыки Угловой стык панелей парапетов /для чердачных крыш/. Деталь 21п Деталь 21п, разрез 1-1 к листу 57 /для чердачный крыш/ Рядовой стык панелей наружной и внутренней стен чердака. Деталь 22п Деталь 22п разрез 1-1 к листу 59 /для чердачных крыш/ Стык панелей наружных и внутренней стен чердака у внутреннего и внешнего углов ризалита. Детали 23п, 24п Деталь 23п, разрез 1-1 к листу 51 /для чердачных крыш/ Деталь 24п, разрез 2-2 к листу 61 /для чердачных крыш/ Стык панелей наружных и внутренней стен чердака у внешнего угла ризалита /вариант/. Деталь 25п Стык панелей наружных и внутренних стен чердака в месте деформационного шва. Деталь 26п Деталь 26п. Раздел 1-1 к листу 65 /для чердачных крыш/ |
| Разработан: | ЦНИИЭП жилища |
| Утверждён: | 21.05.1976 Государственный комитет по гражданскому строительству (112) |
| Расположен в: |











































































