Информационная система
«Ёшкин Кот»

Скачать базу одним архивом
Скачать обновления
История создания базы
Карта сайта

Скачать РД 39-00147105-015-98 Правила капитального ремонта магистральных нефтепроводов

Дата актуализации: 10.08.2017

РД 39-00147105-015-98

Правила капитального ремонта магистральных нефтепроводов

Обозначение: РД 39-00147105-015-98
Обозначение англ: RD 39-00147105-015-98
Статус:действует
Название рус.:Правила капитального ремонта магистральных нефтепроводов
Дата добавления в базу:01.09.2013
Дата актуализации:05.05.2017
Дата введения:01.09.1998
Область применения:Документ устанавливает основные требования к капитальному ремонту линейной части магистральных нефтепроводов диаметром 219 … 1220 мм. Правила не распространяются на трубопроводы: проложенные через водные преграды, автомобильные и железные дороги, в тоннелях, на морских эстакадах; из нестальных труб; предназначенные для перекачки нефти с пологревом.
Оглавление:1 Общие положения
2 Виды и способы капитального ремонта подземных трубопроводов
3 Оценка технического состояния нефтепровода. Выбор вида ремонта
4 Организационно-техническая подготовка капитального ремонта
5 Земляные работы
6 Подъем, поддержание и укладка трубопроводов
7 Очистка наружной поверхности трубопровода
8 Сварочные работы
9 Противокоррозионная изоляция
10 Испытание отремонтированного участка нефтепровода
11 Контроль качества и приемка ремонтных работ
12 Порядок сдачи и ввод отремонтированного участка в эксплуатацию
13 Требования по безопасности труда
14 Требования пожарной безопасности
15 Охрана окружающей среды
Список использованной литературы
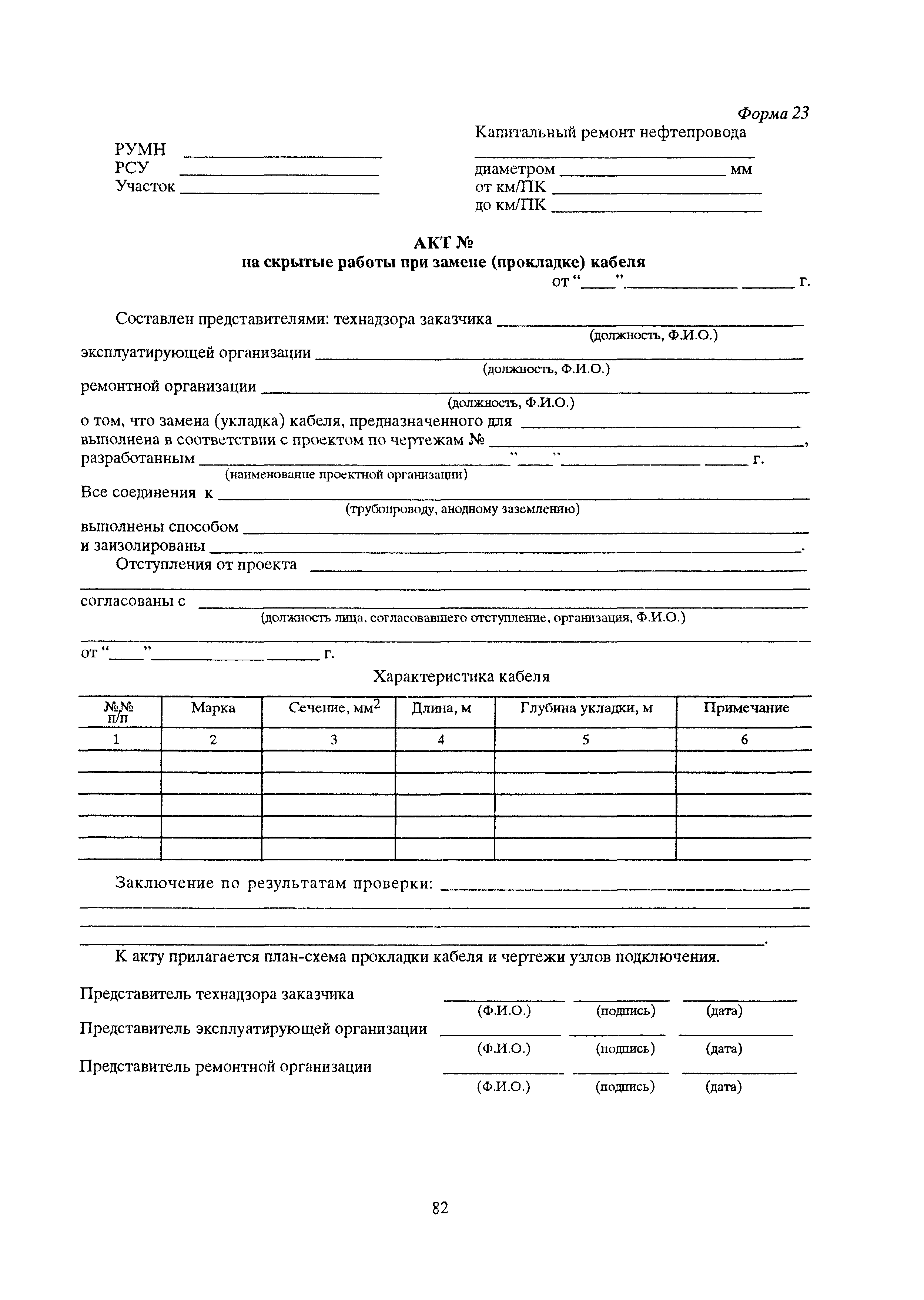
Приложение А Перечень и формы исполнительной документации при производстве капитального ремонта нефтепровода
Приложение Б Типовые технологические карты капитального ремонта магистральных нефтепроводов
   Б.1 Общие положения
   Б.2 Капитальный ремонт с заменой изоляционного покрытия
   Б.3 Капитальный ремонт с заменой труб
   Б.4 Выборочный ремонт
Разработан: ИПТЭР
Утверждён:29.06.1998 АК Транснефть (Transneft AK )
Принят:05.06.1998 Госгортехнадзор России (Russian Federation Gosgortekhnadzor 10-03/297)
Издан: ИПТЭР (1998 г. )
Расположен в:Техническая документация Строительство Нормативные документы Отраслевые и ведомственные нормативно-методические документы Проектирование и строительство объектов нефтяной и газовой промышленности
Заменяет собой:
  • «Правила капитального ремонта подземных трубопроводов» (1992 г.)
Нормативные ссылки:
РД 39-00147105-015-98РД 39-00147105-015-98РД 39-00147105-015-98РД 39-00147105-015-98РД 39-00147105-015-98РД 39-00147105-015-98РД 39-00147105-015-98РД 39-00147105-015-98РД 39-00147105-015-98РД 39-00147105-015-98РД 39-00147105-015-98РД 39-00147105-015-98РД 39-00147105-015-98РД 39-00147105-015-98РД 39-00147105-015-98РД 39-00147105-015-98РД 39-00147105-015-98РД 39-00147105-015-98РД 39-00147105-015-98РД 39-00147105-015-98РД 39-00147105-015-98РД 39-00147105-015-98РД 39-00147105-015-98РД 39-00147105-015-98РД 39-00147105-015-98РД 39-00147105-015-98РД 39-00147105-015-98РД 39-00147105-015-98РД 39-00147105-015-98РД 39-00147105-015-98РД 39-00147105-015-98РД 39-00147105-015-98РД 39-00147105-015-98РД 39-00147105-015-98РД 39-00147105-015-98РД 39-00147105-015-98РД 39-00147105-015-98РД 39-00147105-015-98РД 39-00147105-015-98РД 39-00147105-015-98РД 39-00147105-015-98РД 39-00147105-015-98РД 39-00147105-015-98РД 39-00147105-015-98РД 39-00147105-015-98РД 39-00147105-015-98РД 39-00147105-015-98РД 39-00147105-015-98РД 39-00147105-015-98РД 39-00147105-015-98РД 39-00147105-015-98РД 39-00147105-015-98РД 39-00147105-015-98РД 39-00147105-015-98РД 39-00147105-015-98РД 39-00147105-015-98РД 39-00147105-015-98РД 39-00147105-015-98РД 39-00147105-015-98РД 39-00147105-015-98РД 39-00147105-015-98РД 39-00147105-015-98РД 39-00147105-015-98РД 39-00147105-015-98РД 39-00147105-015-98РД 39-00147105-015-98РД 39-00147105-015-98РД 39-00147105-015-98РД 39-00147105-015-98РД 39-00147105-015-98РД 39-00147105-015-98РД 39-00147105-015-98РД 39-00147105-015-98РД 39-00147105-015-98РД 39-00147105-015-98РД 39-00147105-015-98РД 39-00147105-015-98РД 39-00147105-015-98РД 39-00147105-015-98РД 39-00147105-015-98РД 39-00147105-015-98РД 39-00147105-015-98РД 39-00147105-015-98РД 39-00147105-015-98РД 39-00147105-015-98РД 39-00147105-015-98РД 39-00147105-015-98РД 39-00147105-015-98РД 39-00147105-015-98РД 39-00147105-015-98РД 39-00147105-015-98РД 39-00147105-015-98РД 39-00147105-015-98РД 39-00147105-015-98РД 39-00147105-015-98РД 39-00147105-015-98РД 39-00147105-015-98РД 39-00147105-015-98РД 39-00147105-015-98РД 39-00147105-015-98РД 39-00147105-015-98РД 39-00147105-015-98РД 39-00147105-015-98РД 39-00147105-015-98РД 39-00147105-015-98РД 39-00147105-015-98РД 39-00147105-015-98РД 39-00147105-015-98РД 39-00147105-015-98РД 39-00147105-015-98РД 39-00147105-015-98РД 39-00147105-015-98РД 39-00147105-015-98РД 39-00147105-015-98РД 39-00147105-015-98РД 39-00147105-015-98РД 39-00147105-015-98РД 39-00147105-015-98РД 39-00147105-015-98РД 39-00147105-015-98РД 39-00147105-015-98РД 39-00147105-015-98РД 39-00147105-015-98РД 39-00147105-015-98РД 39-00147105-015-98РД 39-00147105-015-98РД 39-00147105-015-98РД 39-00147105-015-98РД 39-00147105-015-98РД 39-00147105-015-98РД 39-00147105-015-98РД 39-00147105-015-98РД 39-00147105-015-98РД 39-00147105-015-98РД 39-00147105-015-98РД 39-00147105-015-98РД 39-00147105-015-98РД 39-00147105-015-98РД 39-00147105-015-98РД 39-00147105-015-98РД 39-00147105-015-98РД 39-00147105-015-98РД 39-00147105-015-98РД 39-00147105-015-98РД 39-00147105-015-98РД 39-00147105-015-98РД 39-00147105-015-98РД 39-00147105-015-98РД 39-00147105-015-98РД 39-00147105-015-98РД 39-00147105-015-98РД 39-00147105-015-98РД 39-00147105-015-98РД 39-00147105-015-98РД 39-00147105-015-98РД 39-00147105-015-98РД 39-00147105-015-98РД 39-00147105-015-98РД 39-00147105-015-98РД 39-00147105-015-98РД 39-00147105-015-98РД 39-00147105-015-98РД 39-00147105-015-98РД 39-00147105-015-98РД 39-00147105-015-98РД 39-00147105-015-98РД 39-00147105-015-98РД 39-00147105-015-98РД 39-00147105-015-98РД 39-00147105-015-98РД 39-00147105-015-98РД 39-00147105-015-98РД 39-00147105-015-98РД 39-00147105-015-98РД 39-00147105-015-98РД 39-00147105-015-98РД 39-00147105-015-98РД 39-00147105-015-98РД 39-00147105-015-98РД 39-00147105-015-98РД 39-00147105-015-98РД 39-00147105-015-98РД 39-00147105-015-98РД 39-00147105-015-98РД 39-00147105-015-98РД 39-00147105-015-98РД 39-00147105-015-98РД 39-00147105-015-98РД 39-00147105-015-98РД 39-00147105-015-98РД 39-00147105-015-98РД 39-00147105-015-98РД 39-00147105-015-98РД 39-00147105-015-98РД 39-00147105-015-98РД 39-00147105-015-98РД 39-00147105-015-98

© 2013 Ёшкин Кот :-) Карта сайта