| ||||||||||||||||||||||||||||
Скачать НП 2.2-71 Здания учебно-воспитательного назначения. Помещения образовательных школДата актуализации: 10.08.2017
|
| Обозначение: | НП 2.2-71 |
| Обозначение англ: | NP 2.2-71 |
| Статус: | не действует |
| Название рус.: | Здания учебно-воспитательного назначения. Помещения образовательных школ |
| Дата добавления в базу: | 01.09.2013 |
| Дата актуализации: | 05.05.2017 |
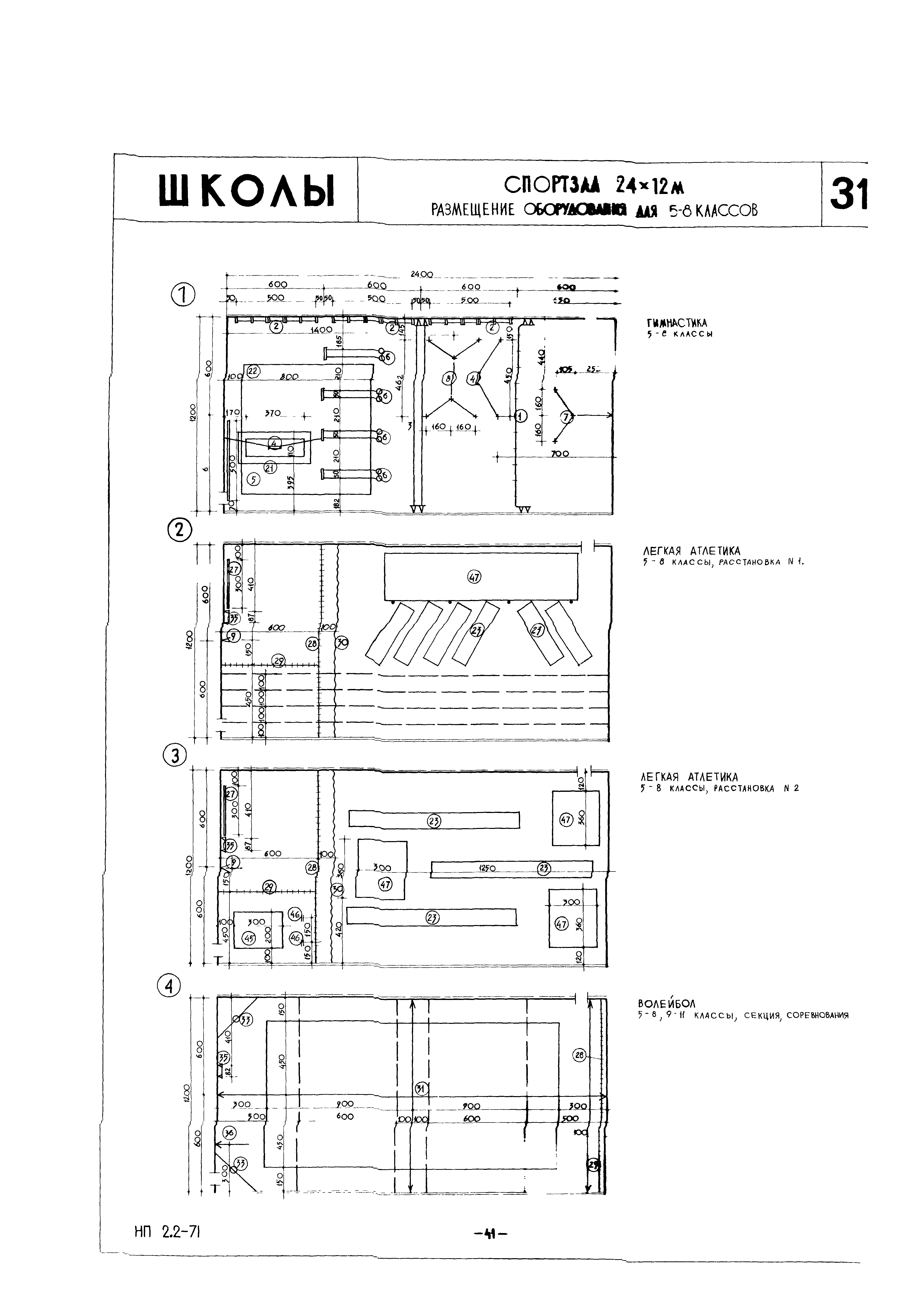
| Оглавление: | I. Исходные данные. Учебные помещения 1. Схема взаимосвязи помещений 2. Исходные данные. Нормативы 3-4. Класс. Учебный кабинет. Нормативы 5. Класс. Учебный кабинет.40 мест. Конструкция стен 6. Класс. Учебный кабинет. 36 мест. Конструкция стен. Естественное освещение 7. Кабинет черчения 8. Класс. Учебный кабинет. Мебель и оборудование 9. Класс. Учебный кабинет. Искусственное освещение 10. Класс. Внутренняя отделка 11. Лаборатории химии, физики, биологии. Нормативы 12. Лаборатории химии, физики, биологии. Конструкция стен 13. Лаборатории химии, физики, биологии. Мебель и оборудование (1) 14. Лаборатории химии, физики, биологии. Мебель и оборудование (2) II. Учебно-производственные помещения 15. Мастерская обработки металла 16. Мастерская обработки древесины 17. Кабинет домоводства III. Вспомогательные помещения 18. Библиотека. Исходные габариты 19. Библиотека. Планировка 20. Библиотека. Планировка 21. Комната общественных организаций 22. Помещения для педагогов 23. Помещения для педагогов IV. Спортивные залы 24. Спортивные залы. Основные положения для проектирования 25. Спортивные залы. Оборудование и инвентарь 26. Спортзал 18x9 м. Размещение закрепляемого оборудования 27. Спортзал 18x9 м. Размещение оборудования для I-IУ и У-УIII классов 28. Спортзал 18x9 м. Размещение оборудования для IX-XI классов, для секций, соревнований, зачетов 29. Спортзал 24x12 м. Размещение закрепляемого оборудования 30. Спортзал 24x12 м. Размещение оборудования для I-IУ классов, для секций 31. Спортзал 24x12 м. Размещение оборудования для У-УIII классов 32. Спортзал 24x12 м. Размещение оборудования для III-УIII и IX-XI классов, для секций, соревнований, зачетов 33. Спортзал 24x12 м. Размещение оборудования для IX-XI классов, для секций 34. Спортзал 12x12 м. Размещение оборудования для I-IУ классов 35. Спортзал 30x15 м. Размещение закрепляемого оборудования 36. Спортзал 30x15 м. Размещение оборудования для I-IУ классов 37. Спортзал 30x15 м. Размещение оборудования для У-УIII классов 38. Спортзал 30x15 м. Размещение оборудования для III-УIII и IX-XI классов, для секций, соревнований, зачетов 39. Спортзал 30x15 м. Размещение оборудования для У-УIII и IX-XI классов, для секций, соревнований, экзаменов 40. Спортивные залы. Электротехническое оборудование 41. Спортивные залы. Санитарно-техническое оборудование V. Пищеблок 42. Пищеблок. Основные положения для проектирования 43. Пищеблок. Нормативы. Мебель 44. Пищеблок. Номенклатура технологического оборудования 45. Монтажные схемы теплового, холодильного и механического оборудования 46. Пищеблок (тип I) для школ на 320 учащихся 47. Пищеблок (тип I) для школ на 640 учащихся 48. Пищеблок (тип I) для школ на 960 учащихся 49. Пищеблок (тип I) для школ на 1280 учащихся 50. Пищеблок (тип I) для школ на 1600 учащихся 51. Пищеблок (тип II) для школ на 30, 40-60 классов |
| Разработан: | Союзспортпроект Спорткомитета СССР Гипропрос Госстроя РСФСР Гипроторг ЦНИИЭП жилища |
| Утверждён: | 28.06.1971 Госгражданстрой (Gosgrazhdanstroy 114) |
| Принят: | 28.06.1971 Госгражданстрой (Gosgrazhdanstroy 114) |
| Расположен в: | |
| Заменяет собой: |
|




























































