| ||||||||||||||||||||||||||
Скачать НП 1.2-67 Помещения жилых корпусов гостиницДата актуализации: 10.08.2017
|
| Обозначение: | НП 1.2-67 |
| Обозначение англ: | NP 1.2-67 |
| Статус: | действует |
| Название рус.: | Помещения жилых корпусов гостиниц |
| Дата добавления в базу: | 01.09.2013 |
| Дата актуализации: | 05.05.2017 |
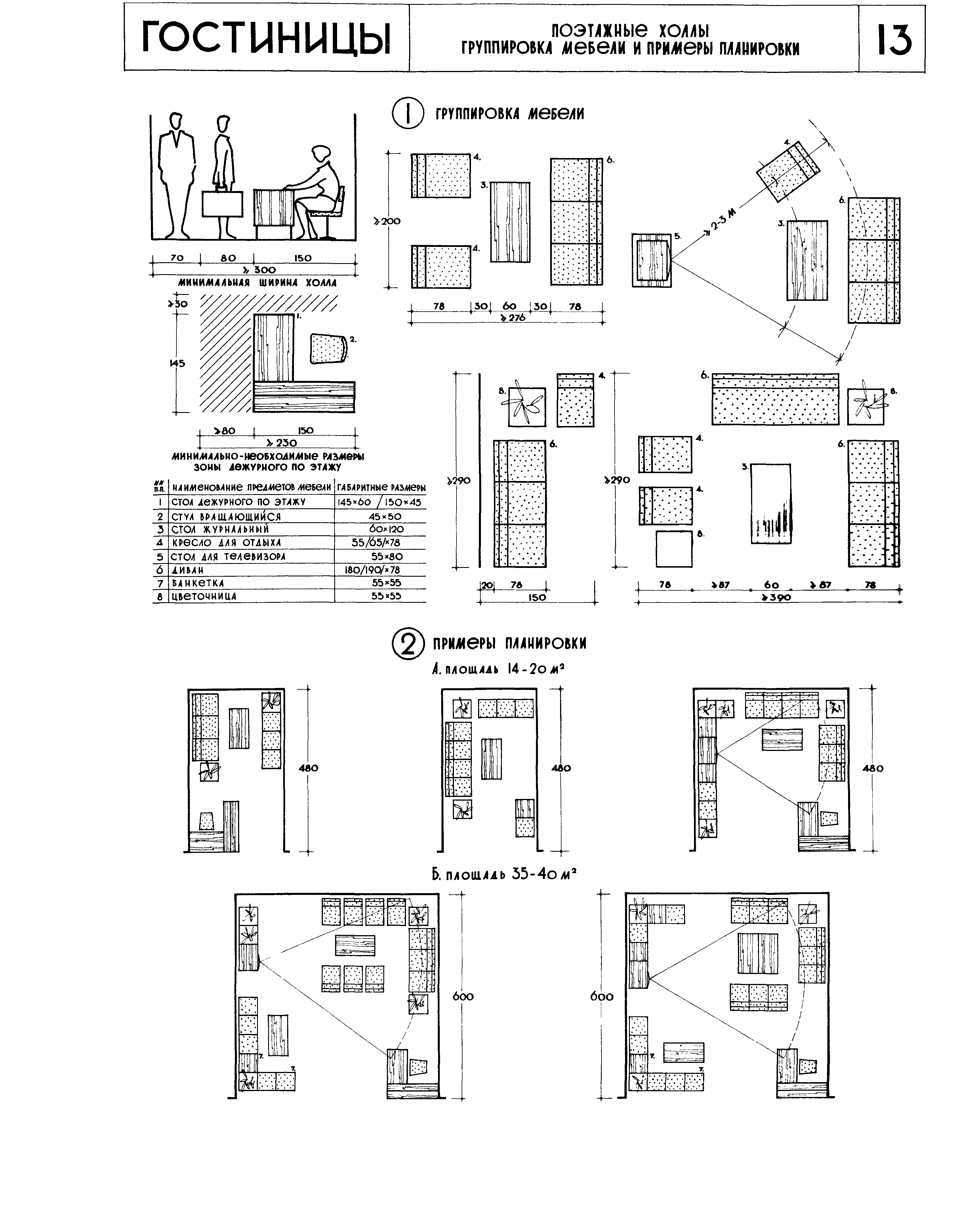
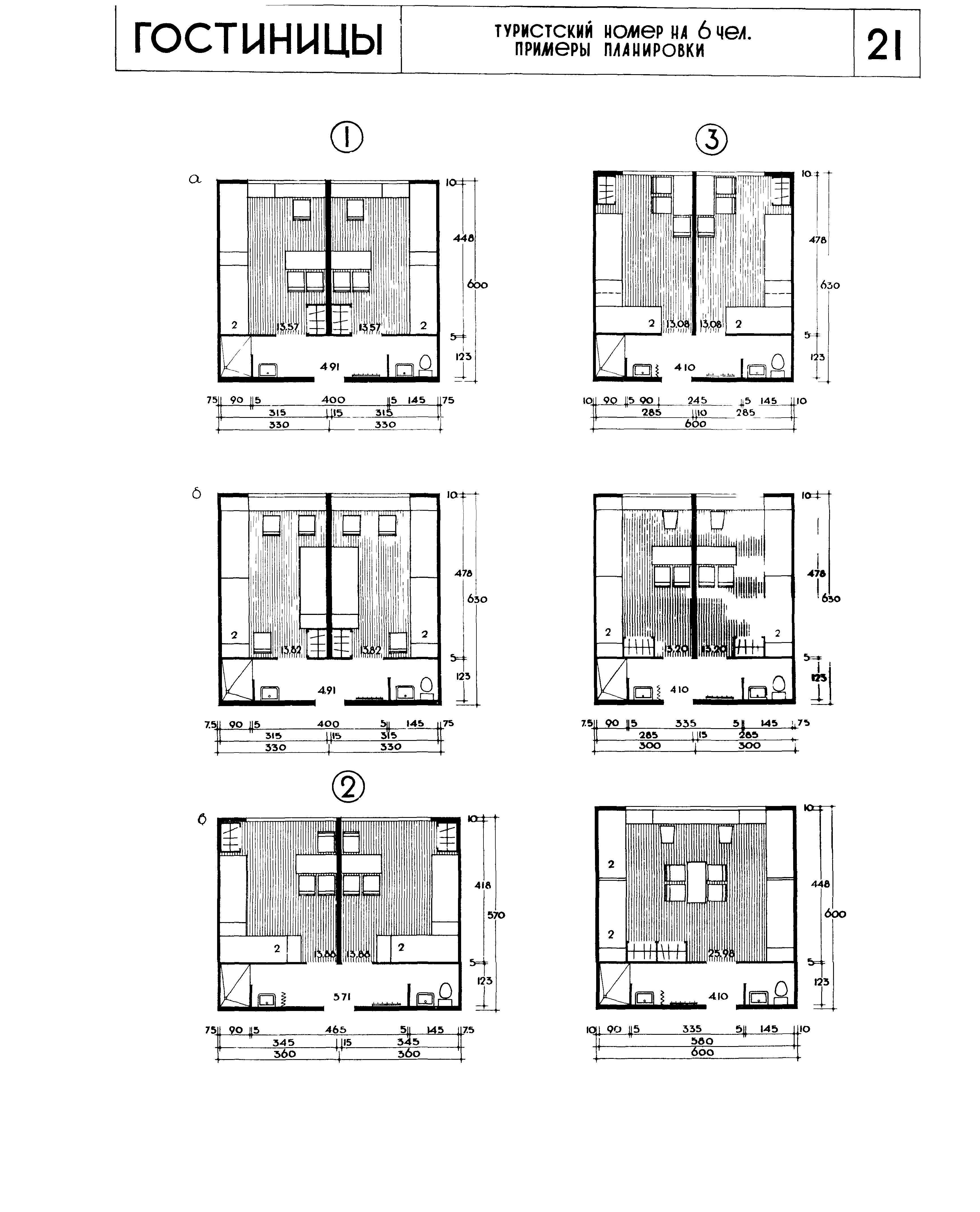
| Оглавление: | Раздел 1. Помещения жилых корпусов гостиниц, оборудование, мебель Лист 1. Исходные данные 2. Исходные габариты 3. Жилой номер. Наборы мебели 4-5. Жилой номер. Типы мебели 6. Жилой номер. Группировка мебели 7. Жилой номер. Встроенные шкафы 8. Жилой номер на 1 чел. Расстановка мебели 9. Жилой номер на 2 чел. Расстановка мебели 10. Санитарный узел. Оборудование 11. Жилой номер. Санитарный узел 12. Передняя жилого номера. Примеры планировки Раздел 2. Примеры планировки А. Группы помещений 13. Поэтажный холл. Группировка мебели 14. Жилой номер на 1 чел. с умывальником 15. Жилой номер на 1 чел. с санузлом 16. Жилой номер на 2 чел. (дубль) 17. Жилой номер на 2-3 чел. (люкс) 18. Жилой номер на 3 чел. (туристский) 19. Жилой номер на 4 чел. (туристский) 20. Жилой номер на 5 чел. (туристский) 21. Жилой номер на 6 чел. (туристский) 22. Обслуживающие помещения 23. Санитарные узлы общие поэтажные 24. Душевые общие поэтажные 25. Лифтовые и поэтажные холлы Б. Жилые корпуса 26. Здания с поперечными несущими стенами, шаг 330 см 27. То же, с шагом 300 см 28. Здания с продольными несущими стенами, шаг 600 см 29. Здания каркасной конструкции. Шаг 600 см 30. То же, шаг 750 см |
| Разработан: | ЦНИИЭП учебных зданий Госгражданстроя ЦНИИЭП жилища |
| Утверждён: | 21.12.1966 ЦНИИЭП жилища (TsNIIEPzhilishcha ) |
| Издан: | ЦНИИЭПжилища (1967 г. ) |
| Расположен в: |







































