Информационная система
«Ёшкин Кот»

Скачать базу одним архивом
Скачать обновления
История создания базы
Карта сайта

Скачать Серия 1.020-1/87 Выпуск 2-7. Колонны для зданий с высотами этажей 4.8, 4.8(6.0) и 3.6(4.8) м. Рабочие чертежи

Дата актуализации: 10.08.2017

Серия 1.020-1/87

Выпуск 2-7. Колонны для зданий с высотами этажей 4.8, 4.8(6.0) и 3.6(4.8) м. Рабочие чертежи

Обозначение: Серия 1.020-1/87
Обозначение англ: Series 1.020-1/87
Статус:не определен законодательством
Название рус.:Выпуск 2-7. Колонны для зданий с высотами этажей 4.8, 4.8(6.0) и 3.6(4.8) м. Рабочие чертежи
Дата добавления в базу:01.09.2013
Дата актуализации:05.05.2017
Дата введения:25.12.1991
Область применения:Выпуск содержит рабочие чертежи железобетонных колонн сечением 400х400 мм для зданий с высотой этажа 4.8 м.
Оглавление:1.020-1/87.2-7 00 Содержание
1.020-1/87.2-7 ТТ Технические требования
1.020-1/87.2-7 К001 Колонна 1КВД 48-2.22. Опалубочный чертеж
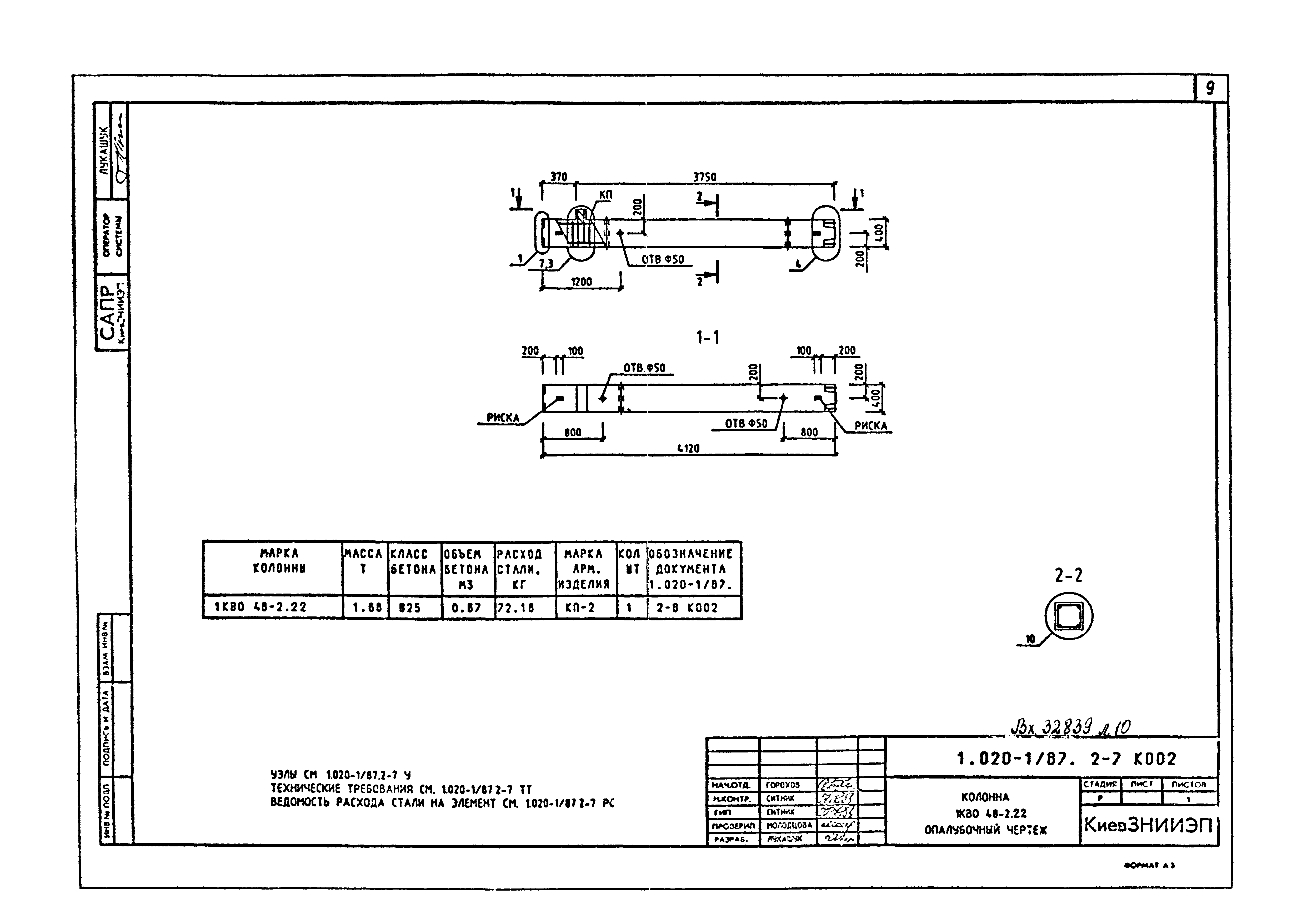
1.020-1/87.2-7 К002 Колонна 1КВО 48-2.22. Опалубочный чертеж
1.020-1/87.2-7 К003 Колонна 1КВ 48-22. Опалубочный чертеж
1.020-1/87.2-7 К004 Колонна 2КВД 48-2.22. Опалубочный чертеж
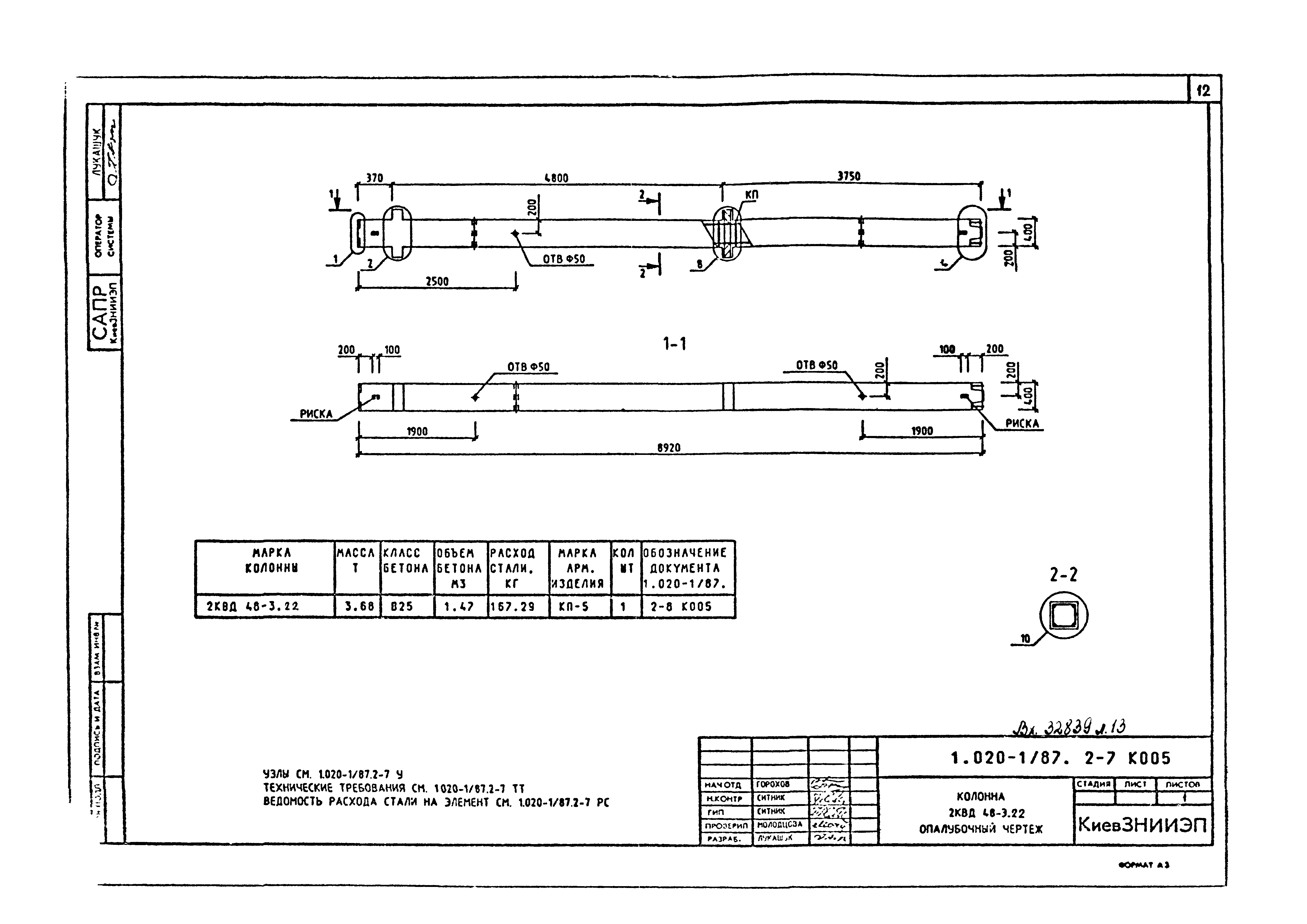
1.020-1/87.2-7 К005 Колонна 2КВД 48-3.22. Опалубочный чертеж
1.020-1/87.2-7 К006 Колонна 2КВО 48-2.22. Опалубочный чертеж
1.020-1/87.2-7 К007 Колонна 2КВО 48-3.22, 2КВО 48-3.26. Опалубочный чертеж
1.020-1/87.2-7 К008 Колонна 2КВ 48-22, 2КВ 48-26. Опалубочный чертеж
1.020-1/87.2-7 К009 Колонна 3КВД 48-2.22. Опалубочный чертеж
1.020-1/87.2-7 К010 Колонна 3КВД 48-3.22, 3КВД 48-3.28. Опалубочный чертеж
1.020-1/87.2-7 К011 Колонна 3КВО 48-2.22. Опалубочный чертеж
1.020-1/87.2-7 К012 Колонна 3КВО 48-3.22, 3КВО 48-3.26, 3КВО 48-3.28. Опалубочный чертеж
1.020-1/87.2-7 К013 Колонна 3КВ 48-22, 3КВ 48-26, 3КВ 48-28. Опалубочный чертеж
1.020-1/87.2-7 К014 Колонна 1КСД 48-2.22, 1КСД 48-2.28, 1КСД 48-2.32. Опалубочный чертеж
1.020-1/87.2-7 К015 Колонна 1КСД 48-3.22, 1КСД 48-3.28, 1КСД 48-3.32. Опалубочный чертеж
1.020-1/87.2-7 К016 Колонна 1КСО 48-2.22, 1КСО 48-2.28, 1КСО 48-2.32. Опалубочный чертеж
1.020-1/87.2-7 К017 Колонна 1КСО 48-3.22, 1КСО 48-3.28, 1КСО 48-3.32. Опалубочный чертеж
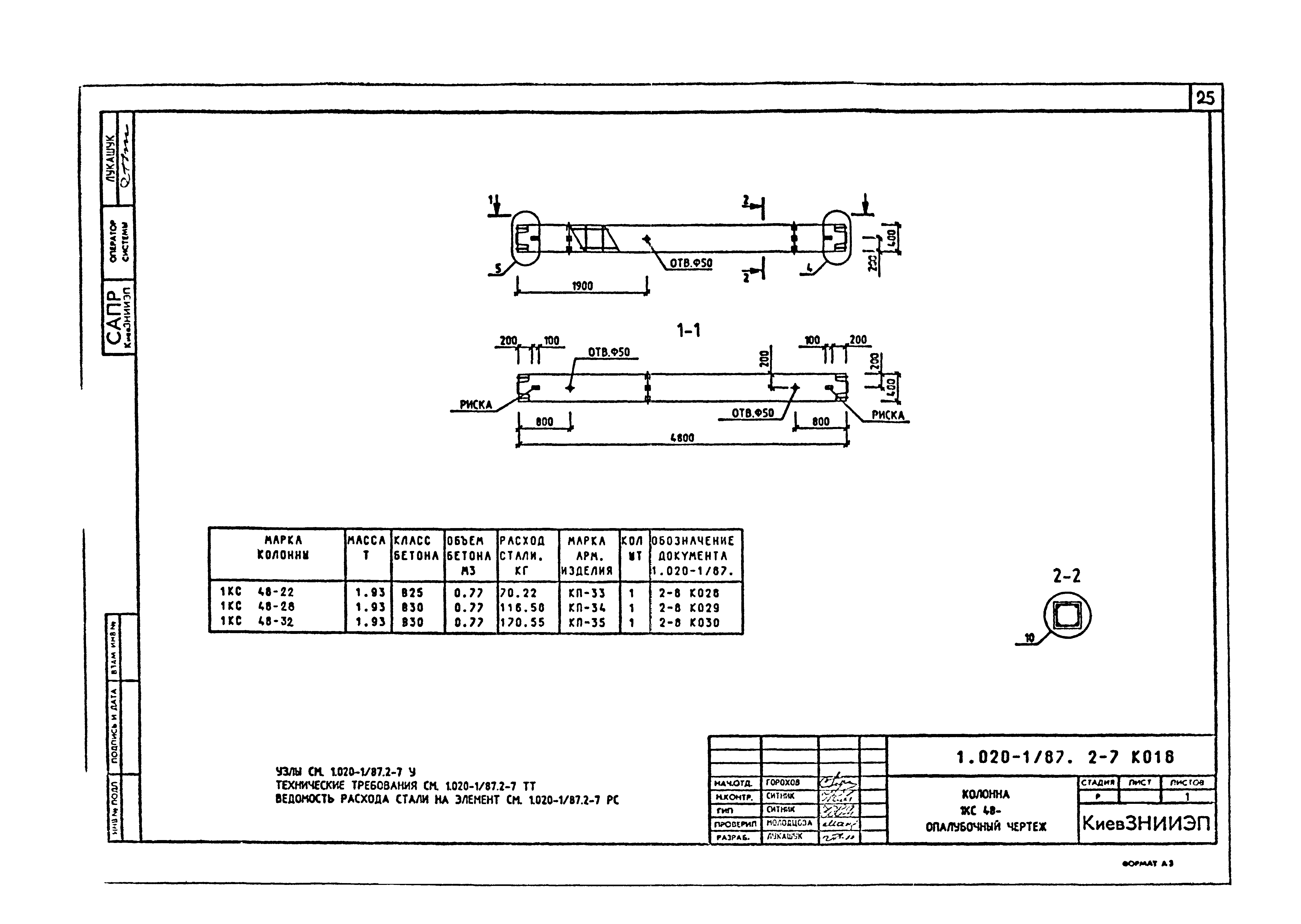
1.020-1/87.2-7 К018 Колонна 1КС 48-22, 1КС 48-28, 1КС 48-32. Опалубочный чертеж
1.020-1/87.2-7 К019 Колонна 2КСД 48-2.22. Опалубочный чертеж
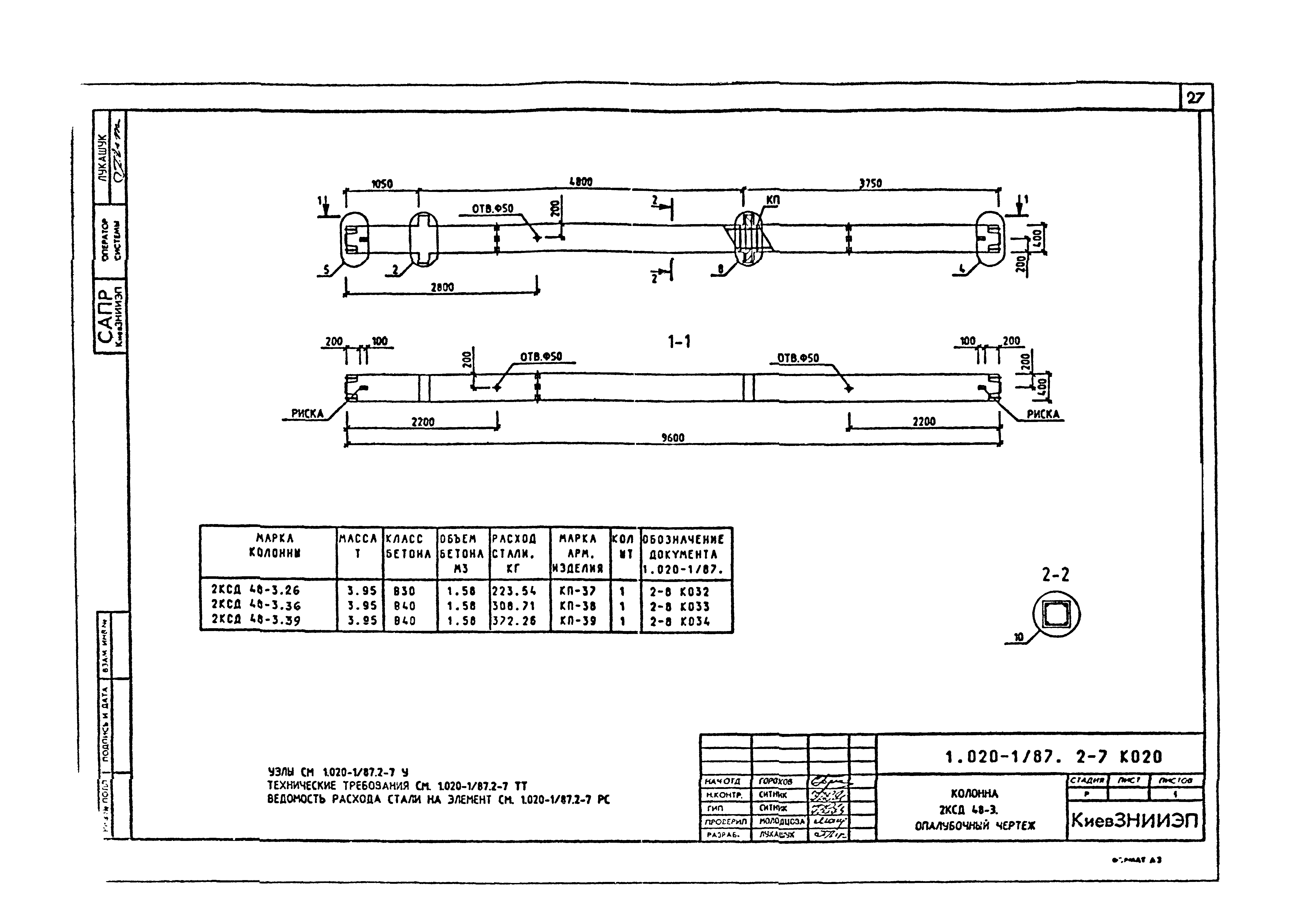
1.020-1/87.2-7 К020 Колонна 2КСД 48-3.26, 2КСД 48-3.36, 2КСД 48-3.39. Опалубочный чертеж
1.020-1/87.2-7 К021 Колонна 2КСО 48-2.22. Опалубочный чертеж
1.020-1/87.2-7 К022 Колонна 2КСО 48-3.26, 2КСО 48-3.28, 2КСО 48-3.36. Опалубочный чертеж
1.020-1/87.2-7 К023 Колонна 2КС 48-22, 2КС 48-26, 2КС 48-28, 2КС-48-36. Опалубочный чертеж
1.020-1/87.2-7 К024 Колонна 2КНД 48-2.22. Опалубочный чертеж
1.020-1/87.2-7 К025 Колонна 2КНД 48-2.22/26, 2КНД 48-2.28/31, 2КНД 48-2.36/42. Опалубочный чертеж
1.020-1/87.2-7 К026 Колонна 2КНД 48-3.22/26, 2КНД 48-3.28/31, 2КНД 48-3.30/35, 2КНД 48-3.36/52, 2КНД 48-3.39/51. Опалубочный чертеж
1.020-1/87.2-7 К027 Колонна 2КНД 48-3.46/54, 2КНД 48-3.52/60. Опалубочный чертеж
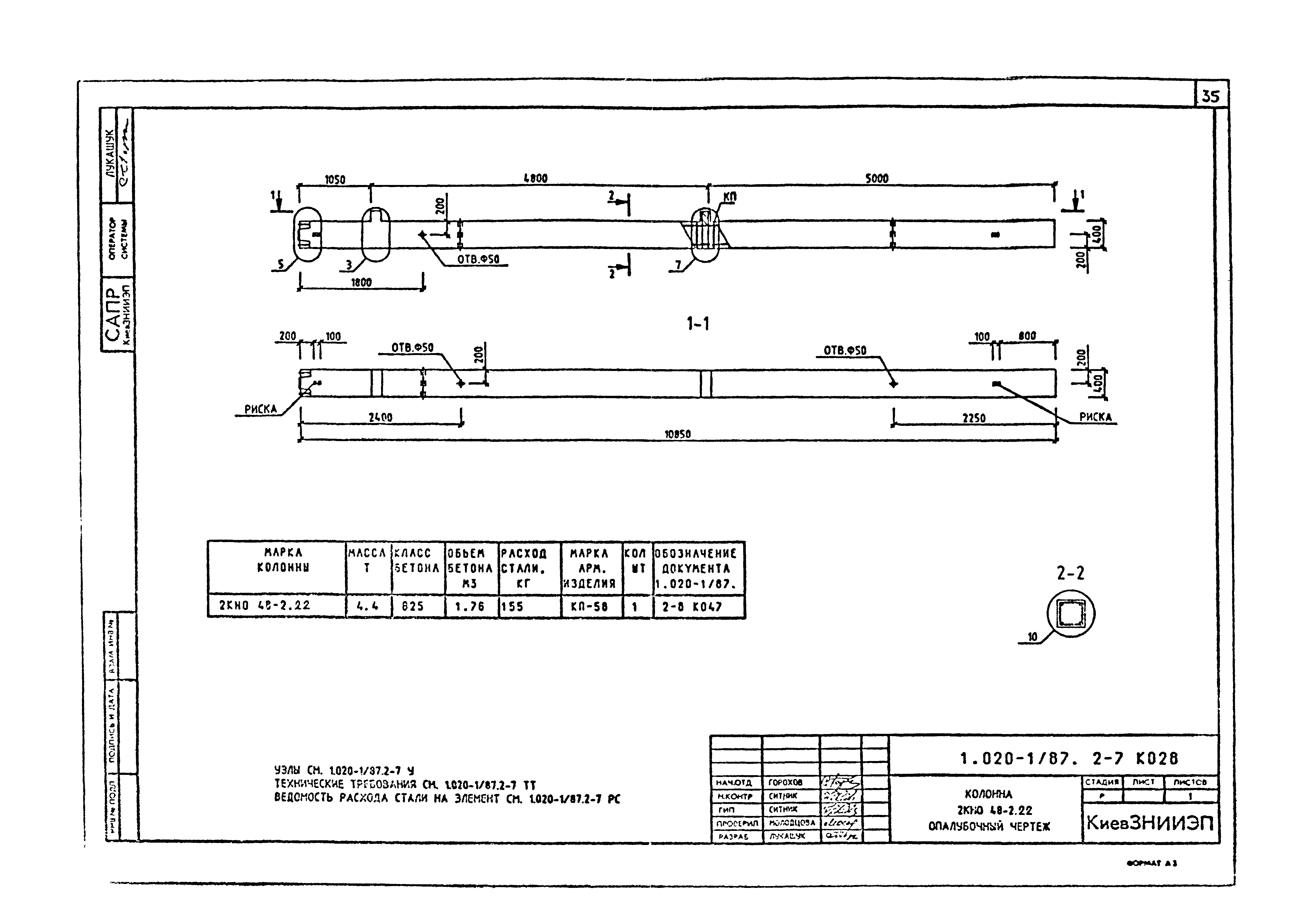
1.020-1/87.2-7 К028 Колонна 2КНО 48-2.22. Опалубочный чертеж
1.020-1/87.2-7 К029 Колонна 2КНО 48-2.22/26, 2КНО 48-2.28/31, 2КНО 48-2.36/42. Опалубочный чертеж
1.020-1/87.2-7 К030 Колонна 2КНО 48-3.22/26, 2КНО 48-3.28/31, 2КНО 48-3.36/42, 2КНО 48-3.42/47. Опалубочный чертеж
1.020-1/87.2-7 К031 Колонна 2КНО 48-3.52/60. Опалубочный чертеж
1.020-1/87.2-7 К032 Колонна 2КН 48-22. Опалубочный чертеж
1.020-1/87.2-7 К033 Колонна 2КН 48-22/26, 2КН 48-28/31, 2КН 48-36/42, 2КН 48-42/47. Опалубочный чертеж
1.020-1/87.2-7 К034 Колонна 2КНД 48(60)-2.21. Опалубочный чертеж
1.020-1/87.2-7 К035 Колонна 2КНД 48(60)-2.22/24, 2КНД 48(60)-2.28/39, 2КНД 48(60)-2.36/38. Опалубочный чертеж
1.020-1/87.2-7 К036 Колонна 2КНД 48(60)-3.21. Опалубочный чертеж
1.020-1/87.2-7 К037 Колонна 2КНД 48(60)-3.22/24, 2КНД 48(60)-3.28/29, 2КНД 48(60)-3.30/33, 2КНД 48(60)-3.36/38, 2КНД 48(60)-3.39/47. Опалубочный чертеж
1.020-1/87.2-7 К038 Колонна 2КНД 48(60)-3.55/59. Опалубочный чертеж
1.020-1/87.2-7 К039 Колонна 2КНО 48(60)-2.21. Опалубочный чертеж
1.020-1/87.2-7 К040 Колонна 2КНО 48(60)-2.22/24, 2КНО 48(60)-2.28/29, 2КНО 48(60)-2.30/33, 2КНО 48(60)-2.39. Опалубочный чертеж
1.020-1/87.2-7 К041 Колонна 2КНО 48(60)-3.21. Опалубочный чертеж
1.020-1/87.2-7 К042 Колонна 2КНО 48(60)-3.22/24, 2КНО 48(60)-3.28/29, 2КНО 48(60)-3.30/33, 2КНО 48(60)-3.36/38, 2КНО 48(60)-3.39, 2КНО 48(60)-3.42/45. Опалубочный чертеж
1.020-1/87.2-7 К043 Колонна 2КНО 48(60)-3.55/59. Опалубочный чертеж
1.020-1/87.2-7 К044 Колонна 2КН 48(60)-21. Опалубочный чертеж
1.020-1/87.2-7 К045 Колонна 2КН 48(60)-22/24, 2КН 48(60)-28/29, 2КН 48(60)-30/33, 2КН 48(60)-39, 2КН 48(60)-42/45. Опалубочный чертеж
1.020-1/87.2-7 К046 Колонна 2КБД 48-2.22. Опалубочный чертеж
1.020-1/87.2-7 К047 Колонна 2КБД 48-2.31. Опалубочный чертеж
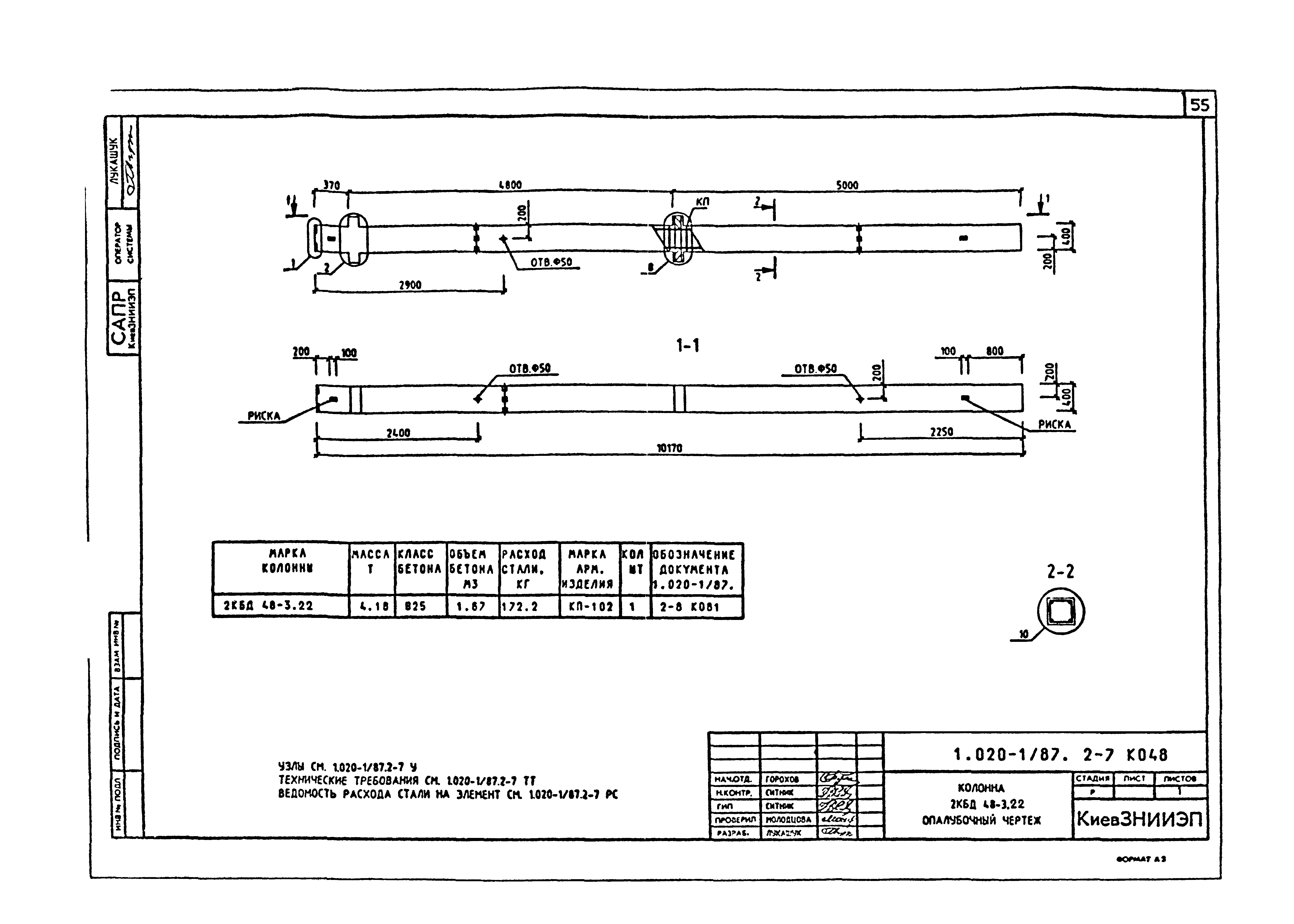
1.020-1/87.2-7 К048 Колонна 2КБД 48-3.22. Опалубочный чертеж
1.020-1/87.2-7 К049 Колонна 2КБД 48-3.31. Опалубочный чертеж
1.020-1/87.2-7 К050 Колонна 2КБО 48-2.22. Опалубочный чертеж
1.020-1/87.2-7 К051 Колонна 2КБО 48-2.31. Опалубочный чертеж
1.020-1/87.2-7 К052 Колонна 2КБО 48-3.22, 2КБО 48-3.26. Опалубочный чертеж
1.020-1/87.2-7 К053 Колонна 2КБО 48-3.31. Опалубочный чертеж
1.020-1/87.2-7 К054 Колонна 2КБ 48-22, КБ 48-26. Опалубочный чертеж
1.020-1/87.2-7 К055 Колонна 3КБД 48-2.22. Опалубочный чертеж
1.020-1/87.2-7 К056 Колонна 3КБД 48-2.28/34. Опалубочный чертеж
1.020-1/87.2-7 К057 Колонна 3КБД 48-3.22. Опалубочный чертеж
1.020-1/87.2-7 К058 Колонна 3КБД 48-3.25/29, 3КБД 48-3.28/34. Опалубочный чертеж
1.020-1/87.2-7 К059 Колонна 3КБО 48-2.22. Опалубочный чертеж
1.020-1/87.2-7 К060 Колонна 3КБО 48-2.28/34. Опалубочный чертеж
1.020-1/87.2-7 К061 Колонна 3КБО 48-3.22, 3КБО 48-3.26. Опалубочный чертеж
1.020-1/87.2-7 К062 Колонна 3КБО 48-3.28/34. Опалубочный чертеж
1.020-1/87.2-7 К063 Колонна 3КБ 48-22, 3КБ 48-26. Опалубочный чертеж
1.020-1/87.2-7 К064 Колонна 2КНД 36(48)-2.22. Опалубочный чертеж
1.020-1/87.2-7 К065 Колонна 2КНД 36(48)-2.22/26, 2КНД 36(48)-2.28/31, 2КНД 36(48)-2.36/42. Опалубочный чертеж
1.020-1/87.2-7 К066 Колонна 2КНД 36(48)-3.22. Опалубочный чертеж
1.020-1/87.2-7 К067 Колонна 2КНД 36(48)-3.22/26, 2КНД 36(48)-3.28/31, 2КНД 36(48)-3.30/35, 2КНД 36(48)-3.36/42, 2КНД 36(48)-38/51. Опалубочный чертеж
1.020-1/87.2-7 К068 Колонна 2КНД 36(48)-3.46/54. Опалубочный чертеж
1.020-1/87.2-7 К069 Колонна 2КНО 36(48)-2.22. Опалубочный чертеж
1.020-1/87.2-7 К070 Колонна 2КНО 36(48)-2.22/26, 2КНО 36(48)-2.28/31. Опалубочный чертеж
1.020-1/87.2-7 К071 Колонна 2КНО 36(48)-3.22. Опалубочный чертеж
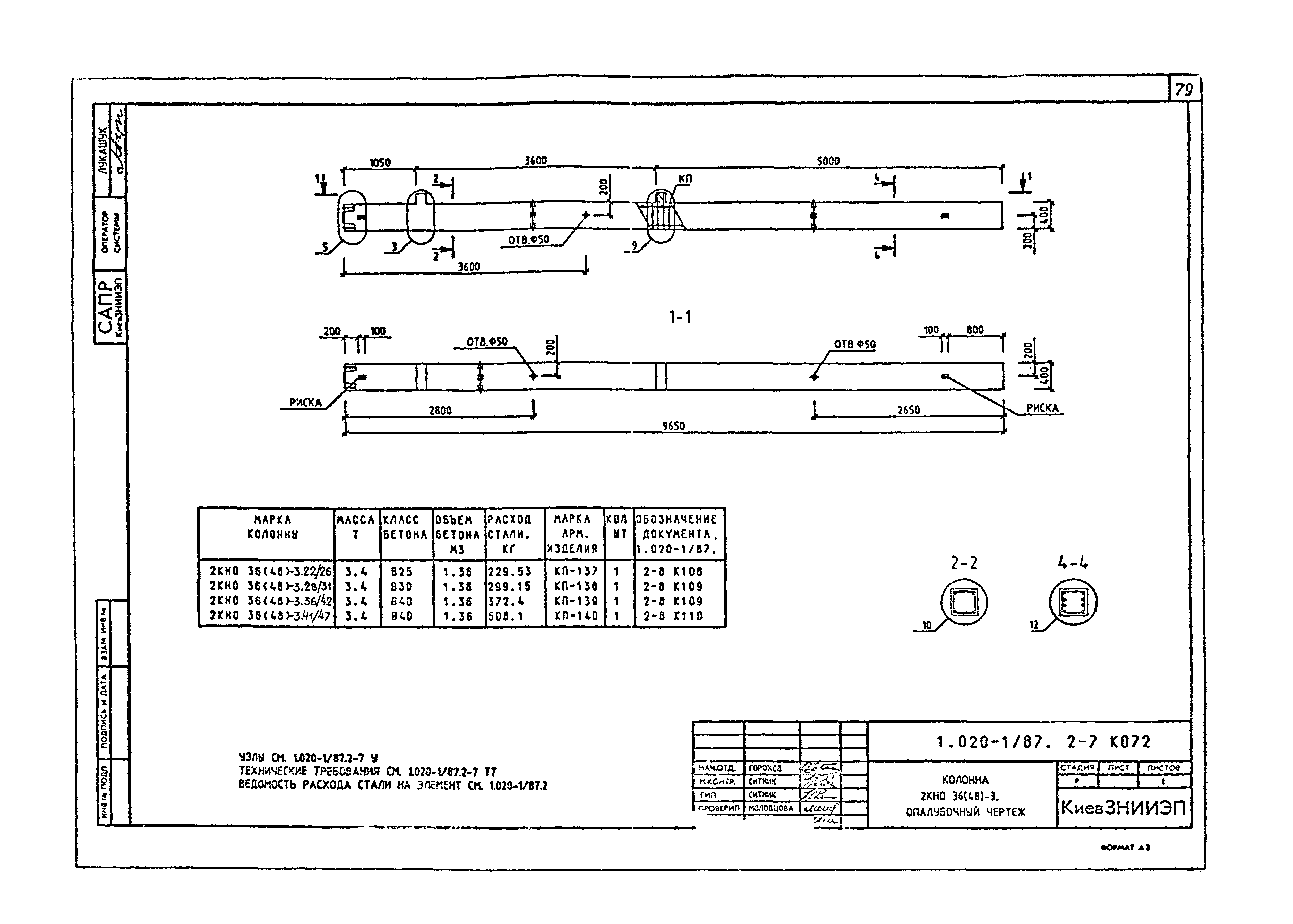
1.020-1/87.2-7 К072 Колонна 2КНО 36(48)-3.22/26, 2КНО 36(48)-3.28/31, 2КНО 36(48)-3.36/42, 2КНО 36(48)-3.41/47. Опалубочный чертеж
1.020-1/87.2-7 К073 Колонна 2КНО 36(48)-3.52/60. Опалубочный чертеж
1.020-1/87.2-7 К074 Колонна 2КН 36(48)-22. Опалубочный чертеж
1.020-1/87.2-7 К075 Колонна 2КН 36(48)-22/26, 2КН 36(48)-28/31, 2КН 36(48)-36/42, 2КН36(48)-41/47. Опалубочный чертеж
1.020-1/87.2-7 К076 Колонна 2КСО 48-3.22. Опалубочный чертеж
1.020-1/87.2-7 К077 Колонна 2КНО 48-3.22. Опалубочный чертеж
1.020-1/87.2-7 РС Ведомость расхода стали на элемент
1.020-1/87.2-7 У Узлы
Разработан: НИИЖБ Госстроя СССР
ЦНИИпромзданий
КиевЗНИИЭП
ГСПИ-10
ЦНИИЭП ТБЗ и ТК
Утверждён:12.12.1990 Госстрой СССР (Государственный комитет Совета Министров СССР по делам строительства) (USSR Gosstroy АЧ-15)
Расположен в:Техническая документация Экология СТРОИТЕЛЬНЫЕ МАТЕРИАЛЫ И СТРОИТЕЛЬСТВО Строительство Торговые и промышленные здания Общественные здания Строительство Справочные документы Типовые строительные конструкции, изделия и узлы Общероссийский строительный каталог Строительные конструкции, изделия и узлы зданий и сооружений для всех видов строительства Конструкции, изделия и узлы зданий Несущие конструкции двухэтажных и многоэтажных зданий Каркасные здания
Серия 1.020-1/87Серия 1.020-1/87Серия 1.020-1/87Серия 1.020-1/87Серия 1.020-1/87Серия 1.020-1/87Серия 1.020-1/87Серия 1.020-1/87Серия 1.020-1/87Серия 1.020-1/87Серия 1.020-1/87Серия 1.020-1/87Серия 1.020-1/87Серия 1.020-1/87Серия 1.020-1/87Серия 1.020-1/87Серия 1.020-1/87Серия 1.020-1/87Серия 1.020-1/87Серия 1.020-1/87Серия 1.020-1/87Серия 1.020-1/87Серия 1.020-1/87Серия 1.020-1/87Серия 1.020-1/87Серия 1.020-1/87Серия 1.020-1/87Серия 1.020-1/87Серия 1.020-1/87Серия 1.020-1/87Серия 1.020-1/87Серия 1.020-1/87Серия 1.020-1/87Серия 1.020-1/87Серия 1.020-1/87Серия 1.020-1/87Серия 1.020-1/87Серия 1.020-1/87Серия 1.020-1/87Серия 1.020-1/87Серия 1.020-1/87Серия 1.020-1/87Серия 1.020-1/87Серия 1.020-1/87Серия 1.020-1/87Серия 1.020-1/87Серия 1.020-1/87Серия 1.020-1/87Серия 1.020-1/87Серия 1.020-1/87Серия 1.020-1/87Серия 1.020-1/87Серия 1.020-1/87Серия 1.020-1/87Серия 1.020-1/87Серия 1.020-1/87Серия 1.020-1/87Серия 1.020-1/87Серия 1.020-1/87Серия 1.020-1/87Серия 1.020-1/87Серия 1.020-1/87Серия 1.020-1/87Серия 1.020-1/87Серия 1.020-1/87Серия 1.020-1/87Серия 1.020-1/87Серия 1.020-1/87Серия 1.020-1/87Серия 1.020-1/87Серия 1.020-1/87Серия 1.020-1/87Серия 1.020-1/87Серия 1.020-1/87Серия 1.020-1/87Серия 1.020-1/87Серия 1.020-1/87Серия 1.020-1/87Серия 1.020-1/87Серия 1.020-1/87Серия 1.020-1/87Серия 1.020-1/87Серия 1.020-1/87Серия 1.020-1/87Серия 1.020-1/87Серия 1.020-1/87Серия 1.020-1/87Серия 1.020-1/87Серия 1.020-1/87Серия 1.020-1/87Серия 1.020-1/87Серия 1.020-1/87Серия 1.020-1/87Серия 1.020-1/87Серия 1.020-1/87Серия 1.020-1/87Серия 1.020-1/87Серия 1.020-1/87Серия 1.020-1/87Серия 1.020-1/87Серия 1.020-1/87Серия 1.020-1/87Серия 1.020-1/87Серия 1.020-1/87Серия 1.020-1/87Серия 1.020-1/87Серия 1.020-1/87Серия 1.020-1/87Серия 1.020-1/87Серия 1.020-1/87Серия 1.020-1/87Серия 1.020-1/87Серия 1.020-1/87Серия 1.020-1/87Серия 1.020-1/87Серия 1.020-1/87Серия 1.020-1/87Серия 1.020-1/87Серия 1.020-1/87Серия 1.020-1/87Серия 1.020-1/87Серия 1.020-1/87Серия 1.020-1/87Серия 1.020-1/87Серия 1.020-1/87Серия 1.020-1/87Серия 1.020-1/87Серия 1.020-1/87Серия 1.020-1/87Серия 1.020-1/87Серия 1.020-1/87Серия 1.020-1/87

© 2013 Ёшкин Кот :-) Карта сайта