Скачать Серия 1.020-1/87 Выпуск 2-9. Колонны для зданий с высотами этажей 6.0, 5.4 и 6.0(7.2) м. Рабочие чертежиДата актуализации: 10.08.2017 Серия 1.020-1/87
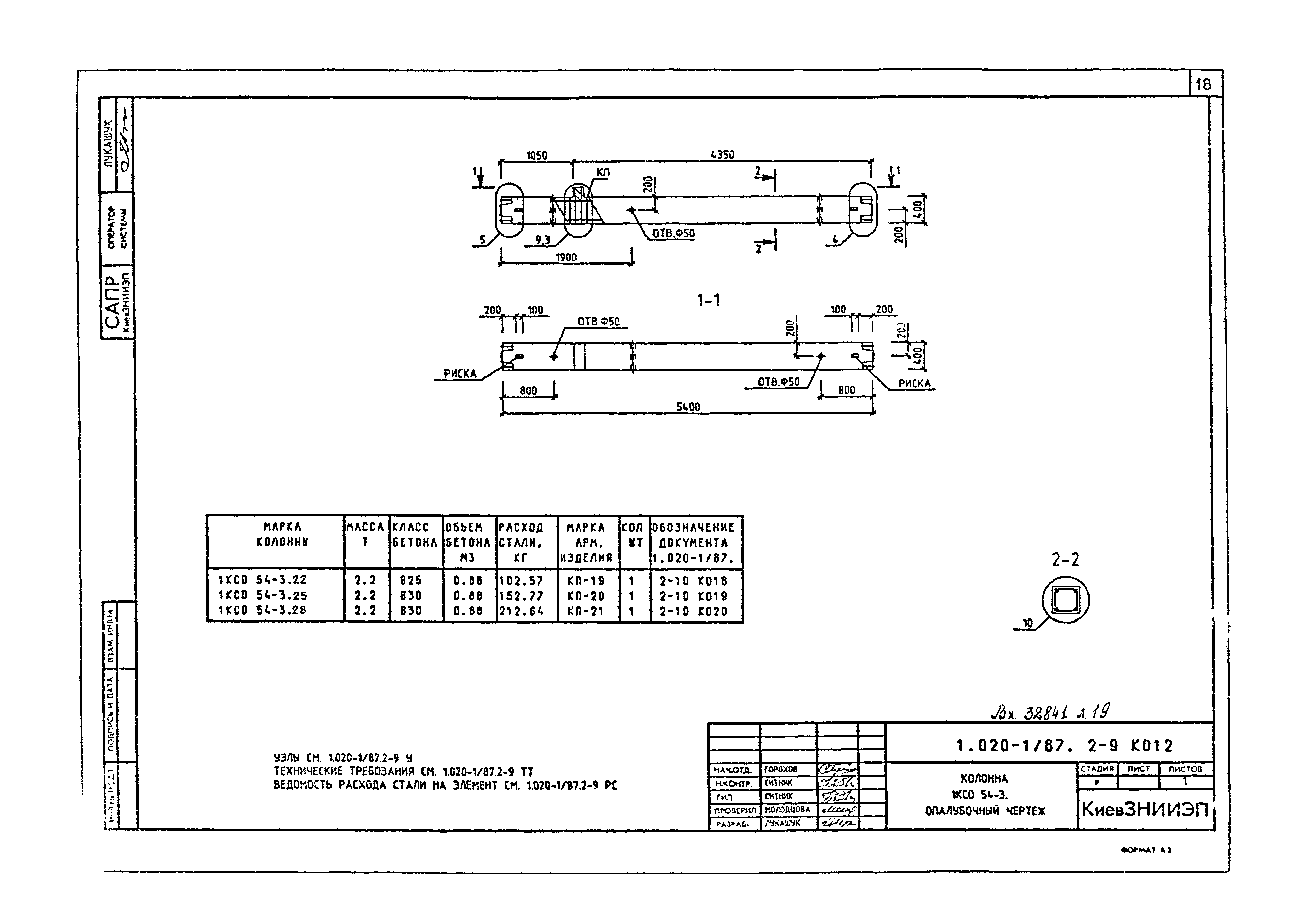
Выпуск 2-9. Колонны для зданий с высотами этажей 6.0, 5.4 и 6.0(7.2) м. Рабочие чертежиОбозначение: | Серия 1.020-1/87 | Обозначение англ: | Series 1.020-1/87 | Статус: | не определен законодательством | Название рус.: | Выпуск 2-9. Колонны для зданий с высотами этажей 6.0, 5.4 и 6.0(7.2) м. Рабочие чертежи | Дата добавления в базу: | 01.09.2013 | Дата актуализации: | 05.05.2017 | Дата введения: | 25.12.1991 | Область применения: | Выпуск содержит рабочие чертежи железобетонных колонн сечением 400х400 мм для зданий с высотами этажей 5.4 м и 6.0 м. | Оглавление: | 1.020-1/87.2-9 00 Содержание 1.020-1/87.2-9 ТТ Технические требования 1.020-1/87.2-9 К001 Колонна 1КВД 54-2.22. Опалубочный чертеж 1.020-1/87.2-9 К002 Колонна 1КВО 54-2.22. Опалубочный чертеж 1.020-1/87.2-9 К003 Колонна 1КВД 60-2.21. Опалубочный чертеж 1.020-1/87.2-9 К004 Колонна 1КВО 60-2.21. Опалубочный чертеж 1.020-1/87.2-9 К005 Колонна 2КВД 60-2.21. Опалубочный чертеж 1.020-1/87.2-9 К006 Колонна 2КВД 60-3.21. Опалубочный чертеж 1.020-1/87.2-9 К007 Колонна 2КВО 60-2.21. Опалубочный чертеж 1.020-1/87.2-9 К008 Колонна 2КВО 60-3.21, 2КВО 60-3.25. Опалубочный чертеж 1.020-1/87.2-9 К009 Колонна 1КСД 54-2.22, 1КСД 54-2.25, 1КСД 54-2.29, 1КСД 54-2.38. Опалубочный чертеж 1.020-1/87.2-9 К010 Колонна 1КСД 54-3.22, 1КСД 54-3.25, 1КСД 54-3.29, 1КСД 54-3.38. Опалубочный чертеж 1.020-1/87.2-9 К011 Колонна 1КСО 54-2.22, 1КСО 54-2.25, 1КСО 54-2.28. Опалубочный чертеж 1.020-1/87.2-9 К012 Колонна 1КСО 54-3.22, 1КСО 54-3.25, 1КСО 54-3.28. Опалубочный чертеж 1.020-1/87.2-9 К013 Колонна 1КСД 60-2.21, 1КСД 60-2.24, 1КСД 60-2.28, 1КСД 60-2.37. Опалубочный чертеж 1.020-1/87.2-9 К014 Колонна 1КСД 60-3.21, 1КСД 60-3.24, 1КСД 60-3.28, 1КСД 60-3.37. Опалубочный чертеж 1.020-1/87.2-9 К015 Колонна 1КСО 60-2.21, 1КСО 60-2.26, 1КСД 60-2.31. Опалубочный чертеж 1.020-1/87.2-9 К016 Колонна 1КСО 60-3.21, 1КСО 60-3.26, 1КСО 60-3.31. Опалубочный чертеж 1.020-1/87.2-9 К017 Колонна 2КСД 60-2.21, 2КСД 60-2.24. Опалубочный чертеж 1.020-1/87.2-9 К018 Колонна 2КСД 60-3.21, 2КСД 60-3.24, 2КСД 60-3.31. Опалубочный чертеж 1.020-1/87.2-9 К019 Колонна 2КСО 60-2.21, 2КСО 60-2.26. Опалубочный чертеж 1.020-1/87.2-9 К020 Колонна 2КСО 60-3.21, 2КСО 60-3.26, 2КСО 60-3.29. Опалубочный чертеж 1.020-1/87.2-9 К021 Колонна 1КНД 60-2.21. Опалубочный чертеж 1.020-1/87.2-9 К022 Колонна 2КНД 60-2.21/24, 2КНД 60-2.24/27, 2КНД 60-2.29/36. Опалубочный чертеж 1.020-1/87.2-9 К023 Колонна 2КНД 60-3.21. Опалубочный чертеж 1.020-1/87.2-9 К024 Колонна 2КНД 60-3.21/24, 2КНД 60-3.24/27, 2КНД 60-3.29/30, 2кнд 60-3.29/36. Опалубочный чертеж 1.020-1/87.2-9 К025 Колонна 2КНД 60-3.34/38, 2КНД 60-3.35/47, 2КНД 60-3.43/49. Опалубочный чертеж 1.020-1/87.2-9 К026 Колонна 2КНО 60-2.21. Опалубочный чертеж 1.020-1/87.2-9 К027 Колонна 2КНО 60-2.22/26, 2КНО 60-2.25/28, 2КНО 60-2.28/33. Опалубочный чертеж 1.020-1/87.2-9 К028 Колонна 2КНО 60-2.28/33, 2КНО 60-3.21. Опалубочный чертеж 1.020-1/87.2-9 К029 Колонна 2КНО 60-3.22/26, 2КНО 60-3.25/28, 2КНО 60-3.28/33, 2КНО 60-3.37/38, 2КНО 60-3.40/43, 2КНО 60-3.47/59. Опалубочный чертеж 1.020-1/87.2-9 К030 Колонна 2КНД 60(72)-2.21/39. Опалубочный чертеж 1.020-1/87.2-9 К031 Колонна 2КНД 60(72)-2.25, 2КНД 60(72)-2.28, 2КНД 60(72)-2.37/34. Опалубочный чертеж 1.020-1/87.2-9 К032 Колонна 2КНД 60(72)-3.25, 2КНД 60(72)-3.28, 2КНД 60(72)-3.37/34, 2КНД 60(72)-3.47/52. Опалубочный чертеж 1.020-1/87.2-9 К033 Колонна 2КНО 60(72)-2.21/19. Опалубочный чертеж 1.020-1/87.2-9 К034 Колонна 2КНО 60(72)-2.25, 2КНО 60(72)-2.28, 2КНО 60(72)-2.37/34. Опалубочный чертеж 1.020-1/87.2-9 К035 Колонна 2КНО 60(72)-3.25, 2КНО 60(72)-3.28, 2КНД 60(72)-3.37/34, 2КНО 60(72)-3.40/41, 2КНО 60(72)-3.47/52. Опалубочный чертеж 1.020-1/87.2-9 К036 Колонна 2КБД 60-2.21. Опалубочный чертеж 1.020-1/87.2-9 К037 Колонна 2КБД 60-3.21, 2КБД 60-3.22. Опалубочный чертеж 1.020-1/87.2-9 К038 Колонна 2КБО 60-2.21, 2КБО 60-2.25. Опалубочный чертеж 1.020-1/87.2-9 К039 Колонна 2КБО 60-3.21, 2КБО 60-3.25, 2КБО 60-3.26. Опалубочный чертеж 1.020-1/87.2-9 РС Ведомость расхода стали на элемент 1.020-1/87.2-9 У Узлы | Разработан: | НИИЖБ Госстроя СССР ЦНИИпромзданий КиевЗНИИЭП ГСПИ-10 ЦНИИЭП ТБЗ и ТК
| Утверждён: | 12.12.1990 Госстрой СССР (Государственный комитет Совета Министров СССР по делам строительства) (USSR Gosstroy АЧ-15)
| Расположен в: |
|
                                                              
|