Информационная система
«Ёшкин Кот»

Скачать базу одним архивом
Скачать обновления
История создания базы
Карта сайта

Скачать Серия 2.440-1 Выпуск 3. Узлы колонн и подкрановых балок

Дата актуализации: 10.08.2017

Серия 2.440-1

Выпуск 3. Узлы колонн и подкрановых балок

Обозначение: Серия 2.440-1
Обозначение англ: Series 2.440-1
Статус:действует
Название рус.:Выпуск 3. Узлы колонн и подкрановых балок
Дата добавления в базу:01.09.2013
Дата актуализации:05.05.2017
Дата введения:01.07.1984
Оглавление:2.440-1.3 КМ л.1.1- 1.3 Пояснительная записка
2.440-1.3 КМ л.2 Общие указания
2.440-1.3 КМ л.3 Маркировка узлов неразрезных подкрановых балок
2.440-1.3 КМ л.4 Маркировка узлов ступенчатых колонн без прохода вдоль крановых путей и узлов колонн у температурного шва
2.440-1.3 КМ л.5 Маркировка узлов ступенчатых колонн с проходом вдоль крановых путей и упора
2.440-1.3 КМ л.6 Маркировка узлов колонн постоянного сечения
2.440-1.3 КМ л.7 Маркировка узлов опирания подкрановых балок на железобетонные колонны
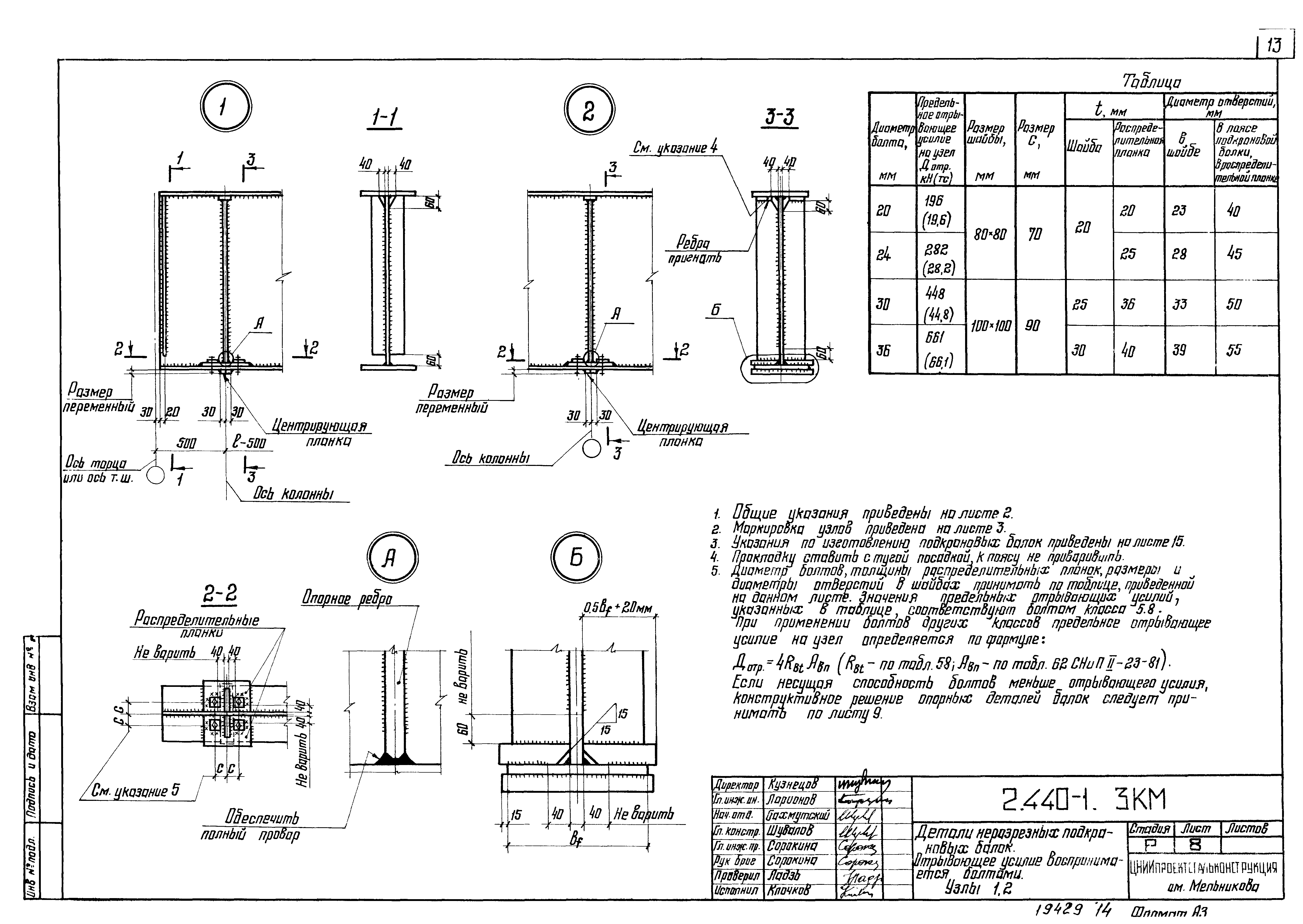
2.440-1.3 КМ л.8 Детали неразрезных подкрановых балок. Отрывающее усилие воспринимается болтами. Узлы 1; 2
2.440-1.3 КМ л.9 Детали неразрезных подкрановых балок. Отрывающее усилие воспринимается сварными швами. Узлы 3-5
2.440-1.3 КМ л.10 Монтажные стыки неразрезных подкрановых балок на высокопрочных болтах. Узлы 6; 7
2.440-1.3 КМ л.11 Монтажные стыки верхних поясов неразрезных подкрановых балок на высокопрочных болтах. Разрезы 1-1
2.440-1.3 КМ л.12 Монтажные стыки нижних поясов неразрезных подкрановых балок на высокопрочных болтах. Разрезы 2-2
2.440-1.3 КМ л.13 Рекомендации по расчету монтажных стыков неразрезных подкрановых балок на высокопрочных болтах
2.440-1.3 КМ л.14 Расположение отверстий в верхних поясах подкрановых балок и в ж.д. рельсах
2.440-1.3 КМ л.15 Указания по изготовлению сварных подкрановых балок
2.440-1.3 КМ л.16 Упор. Узел 8. Рекомендации по расчету упоров
2.440-1.3 КМ л.17 Опирание балок на ступенчатую колонну. Отрывающее усилие воспринимается болтами. Узел 9
2.440-1.3 КМ л.18 Опирание балок на ступенчатую колонну. Отрывающее усилие воспринимается болтами. Узел 10
2.440-1.3 КМ л.19 Опирание балок на ступенчатую колонну. Отрывающее усилие воспринимается сварными швами. Узел 11
2.440-1.3 КМ л.20 Опирание балок на ступенчатую колонну. Отрывающее усилие воспринимается сварными швами. Узел 12
2.440-1.3 КМ л.21 Опирание балок на ступенчатую колонну. Проход в стенке колонны. Отрывающее усилие воспринимается болтами. Узел 13
2.440-1.3 КМ л.22 Опирание балок на ступенчатую колонну. Проход в стенке колонны. Отрывающее усилие воспринимается болтами. Узел 14
2.440-1.3 КМ л.23 Опирание балок на ступенчатую колонну. Проход в стенке колонны. Отрывающее усилие воспринимается сварными швами. Узел 15
2.440-1.3 КМ л.24 Опирание балок на ступенчатую колонну. Проход в стенке колонны. Отрывающее усилие воспринимается сварными швами. Узел 16
2.440-1.3 КМ л.25 Опирание балок с двумя опорными ребрами на ступенчатую колонну. Проход в стенке колонны. Отрывающее усилие воспринимается сварными швами. Узел 17
2.440-1.3 КМ л.26 Опирание балок с двумя опорными ребрами на ступенчатую колонну. Проход в стенке колонны. Отрывающее усилие воспринимается сварными швами. Узел 18
2.440-1.3 КМ л.27 Монтажный стык надкрановой и подкрановой части колонны. Узлы 19; 20
2.440-1.3 КМ л.28 Рекомендации по расчету траверсы ступенчатой колонны правого ряда
2.440-1.3 КМ л.29 Рекомендации по расчету траверсы и прохода в стенке ступенчатой колонны среднего ряда
2.440-1.3 КМ л.30 Рекомендации по расчету ребер жесткости траверсы ступенчатой колонны
2.440-1.3 КМ л.31 Рекомендации по расчету сварных швов траверсы колонны и стыковой накладки
2.440-1.3 КМ л.32 Рекомендации по расчету креплений подкрановых балок к колоннам
2.440-1.3 КМ л.33 Опирание балок на колонну постоянного сечения. Узел 21
2.440-1.3 КМ л.34 Опирание балок на колонну постоянного сечения. Узел 22
2.440-1.3 КМ л.35 Опирание балок на колонну постоянного сечения с проходом в стенке колонны. Узел 23
2.440-1.3 КМ л.36 Рекомендации по расчету консоли и стенки колонны постоянного сечения
2.440-1.3 КМ л.37 Рекомендации по расчету сварных подкрановых консолей колонн постоянного сечения
2.440-1.3 КМ л.38 Опирание балок на железобетонную колонну. Узлы 24; 25
2.440-1.3 КМ л.39 Опирание балок разной высоты на ступенчатую на колонну. Узел 26
2.440-1.3 КМ л.40 Опирание балок разной высоты на ступенчатую на колонну. Узел 27
2.440-1.3 КМ л.41 Рекомендации по расчету узла опирания балок разной высоты на стальную колонну
2.440-1.3 КМ л.42 Опирание балок разной высоты на железобетонную на колонну. Узел 28
2.440-1.3 КМ л.43 Опирание балок разной высоты на ступенчатую на колонну. Узел 29
2.440-1.3 КМ л.44 Рекомендации по расчету подставки под неразрезные подкрановые балки
2.440-1.3 КМ л.45 Рекомендации по расчету подставки под неразрезные подкрановые балки устанавливаемые в связевой панели
2.440-1.3 КМ л.46 Базы ступенчатых колонн. Узел 30
2.440-1.3 КМ л.47 Базы колонн постоянного сечения. Узлы 31; 32. Базы ступенчатых колонн у температурного шва , Узел 33
2.440-1.3 КМ л.48 Рекомендации по расчету баз ступенчатых колонн (начало)
2.440-1.3 КМ л.49 Рекомендации по расчету баз ступенчатых колонн (окончание)
2.440-1.3 КМ л.50 Рекомендации по расчету баз колонн постоянного сечения (начало)
2.440-1.3 КМ л.51 Рекомендации по расчету баз колонн постоянного сечения (окончание)
2.440-1.3 КМ л.52 Рекомендации по расчету фундаментальных болтов колонн постоянного сечения и анкерных плиток
Разработан: ЦНИИпроектстальконструкция
Утверждён:22.12.1983 Госстрой СССР (Государственный комитет Совета Министров СССР по делам строительства) (USSR Gosstroy 326)
Издан: ЦИТП Госстроя СССР (CITP, Gosstroy (USSR) 1984 г. )
Расположен в:Техническая документация Строительство Справочные документы Типовые строительные конструкции, изделия и узлы Общероссийский строительный каталог Строительные конструкции, изделия и узлы зданий и сооружений для всех видов строительства Конструкции, изделия и узлы зданий Несущие конструкции одноэтажных зданий Узлы и детали сопряжения железобетонных и стальных конструкций
Заменяет собой:
Серия 2.440-1Серия 2.440-1Серия 2.440-1Серия 2.440-1Серия 2.440-1Серия 2.440-1Серия 2.440-1Серия 2.440-1Серия 2.440-1Серия 2.440-1Серия 2.440-1Серия 2.440-1Серия 2.440-1Серия 2.440-1Серия 2.440-1Серия 2.440-1Серия 2.440-1Серия 2.440-1Серия 2.440-1Серия 2.440-1Серия 2.440-1Серия 2.440-1Серия 2.440-1Серия 2.440-1Серия 2.440-1Серия 2.440-1Серия 2.440-1Серия 2.440-1Серия 2.440-1Серия 2.440-1Серия 2.440-1Серия 2.440-1Серия 2.440-1Серия 2.440-1Серия 2.440-1Серия 2.440-1Серия 2.440-1Серия 2.440-1Серия 2.440-1Серия 2.440-1Серия 2.440-1Серия 2.440-1Серия 2.440-1Серия 2.440-1Серия 2.440-1Серия 2.440-1Серия 2.440-1Серия 2.440-1Серия 2.440-1Серия 2.440-1Серия 2.440-1Серия 2.440-1Серия 2.440-1Серия 2.440-1Серия 2.440-1Серия 2.440-1Серия 2.440-1Серия 2.440-1Серия 2.440-1

© 2013 Ёшкин Кот :-) Карта сайта