Скачать КПО 09.16.01.09-04 Краны мостовые, подвесные и талиДата актуализации: 10.08.2017 КПО 09.16.01.09-04
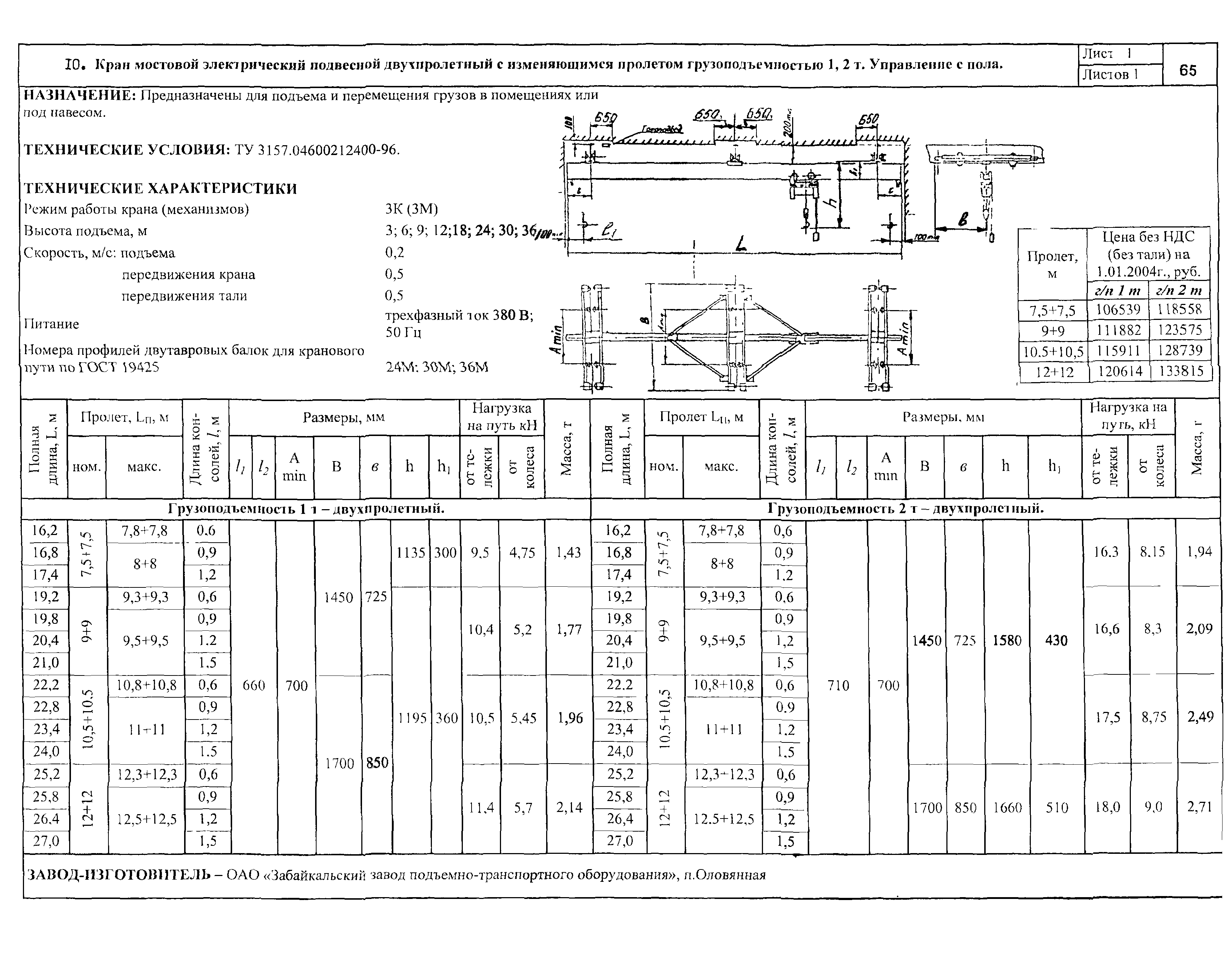
Краны мостовые, подвесные и талиОбозначение: | КПО 09.16.01.09-04 | Обозначение англ: | 09.16.01.09-04 | Статус: | действует | Название рус.: | Краны мостовые, подвесные и тали | Дата добавления в базу: | 01.09.2013 | Дата актуализации: | 05.05.2017 | Оглавление: | 1. Краны мостовые опорные 2. Краны мостовые электрические общего назначения с двумя крюками 3. Краны мостовые специальные, грейферные и контейнерные 4. Краны мостовые электрические подвесные 5. Краны мостовые ручные опорные и подвесные 6. Краны мостовые электрические, ручные опорные и подвесные взрывобезопасные 7. Тали электрические 8. Тали ручные 9. Адреса заводов-изготовителей | Разработан: | 31 ГПИ специального строительства Минобороны Координационный центр по ценообразованию и сметному нормированию в строительстве
| Утверждён: | 01.01.2004 31 ГПИ СС Минобороны России
| Расположен в: |
| Заменяет собой: | | Чем заменён: | | Нормативные ссылки: | |
                                                                                                                      
|