Информационная система
«Ёшкин Кот»

Скачать базу одним архивом
Скачать обновления
История создания базы
Карта сайта

Скачать КО 01.04.14-05 Котлы

Дата актуализации: 10.08.2017

КО 01.04.14-05

Котлы

Обозначение: КО 01.04.14-05
Обозначение англ: KO 01.04.14-05
Статус:действует
Название рус.:Котлы
Дата добавления в базу:01.09.2013
Дата актуализации:05.05.2017
Дата введения:01.01.2005
Оглавление:1. Котлы водогрейные
   1.1. Котлы стальные водогрейные
      1.1.1. Котлы стальные водогрейные автоматизированные типа УРАЛ
      1.1.2. Котел стальной водогрейный типа «НИИСТУ-5»
      1.1.3. Котлы стальные водогрейные типа «ВК-3»
      1.1.4. Котлы стальные водогрейные жаротрубные типа ЭВЖК
      1.1.5. Котлы водогрейные жаротрубные типа КВЖ
      1.1.6. Котлы стальные водогрейные жаротрубные типа КВа
      1.1.7. Котлы стальные водогрейные типа «Бежица»
      1.1.8. Котлы стальные водогрейные типа КВа-ЭЭ
      1.1.9. Котлы отопительные стальные водогрейные автоматизированные типа КСВа и КСВаУ
      1.1.10. Котлы отопительные водогрейные типа «БРАТСК-М» с механической топкой
      1.1.11. Котлы стальные водогрейные типа «Десна»
      1.1.12. Котлы стальные водогрейные типа СарЗЭМ (промышленные)
      1.1.13. Котлы водогрейные для сжигания твердого топлива
      1.1.14. Котлы водогрейные для сжигания жидкого и газообразного топлива
      1.1.15. Котлы стальные водогрейные типа КВ-Г (КВ-ГМ, КВ-Ж)
      1.1.16. Котел стальной водогрейный типа КСВм-1,16К «ВК-6»
      1.1.17. Котлы стальные водогрейные АВТОМАТИЗИРОВАННЫЕ типа «ВК-21», «ВК-22», «ВК-34», «ВК-31»
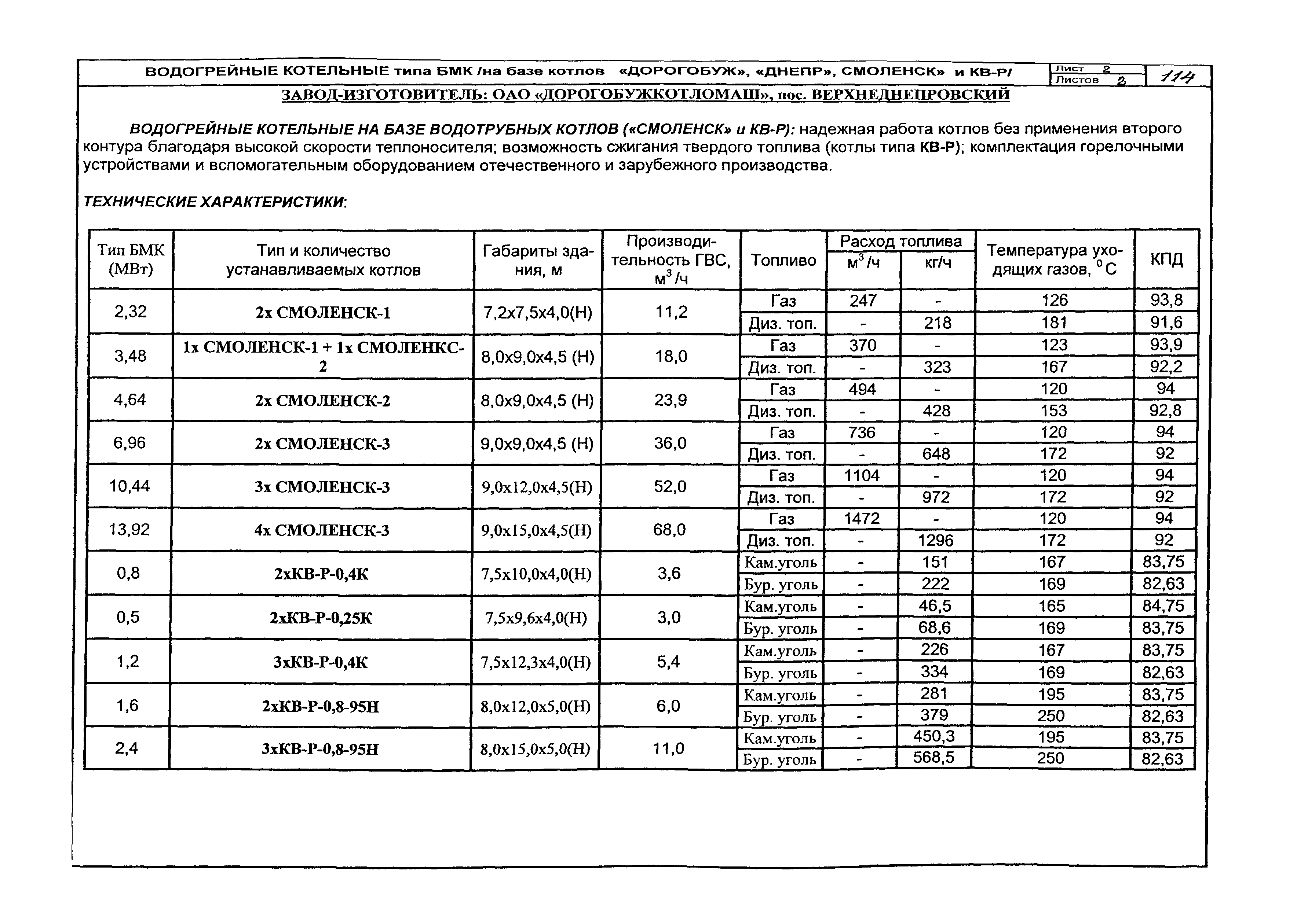
      1.1.18. Котлы стальные водогрейные типа «СМОЛЕНСК», «ДНЕПР», «ДОРОГОБУЖ» и КВ-Р
      1.1.19. Котлы стальные водогрейные типа ЭНЕРКО
      1.1.20. Котел стальной водогрейный типа ТГ-3-95 инж. Ломакина
   1.2. Котлы чугунные водогрейные
      1.2.1. Котел чугунный водогрейный с ручной топкой типа КВс-0,43К
      1.2.2. Котлы чугунные отопительные водогрейные более 100 кВт
2. Котлы паровые
   2.1. Котлы паровые для сжигания жидкого и газообразного топлива
   2.2. Котлы паровые для сжигания твердого топлива
   2.3. Котлы паровые для сжигания нетрадиционных видов топлива (лузга, древесные отходы, фрезерный торф)
   2.4. Котлы паровые (чертежи)
   2.5. Котлы отопительные стальные паровые типа КПа
   2.6. Котлы паровые типа Д
   2.7. Котлы паровые типа Е
   2.8. Котлы паровые типа БЭМ
   2.9. Котлы паровые жаротрубные типа КПЖ
   2.10. Пароводогрейный котел типа АПВ-3
3. Котлы бытовые
   3.1. Котлы бытовые чугунные
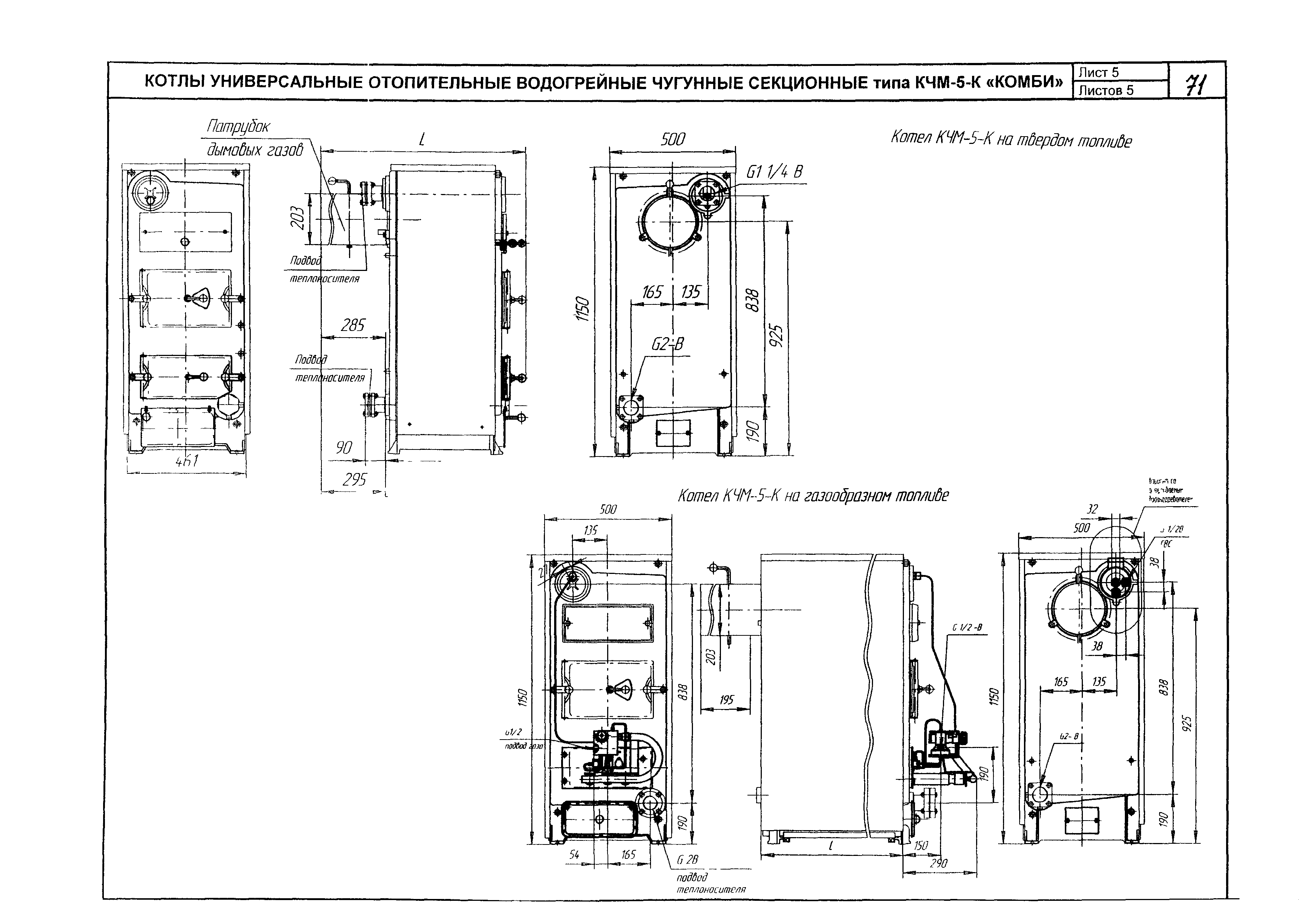
      3.1.1. Котлы универсальные отопительные водогрейные чугунные секционные типа КЧМ-5-К «КОМБИ»
      3.1.2. Котлы газовые отопительные водогрейные чугунные секционные типа КЧМ-7 «ГНОМ»
      3.1.3. Котлы чугунные отопительные водогрейные типа КЧМ-2М «ЖАРОК»
      3.1.4. Котлы секционные чугунные
      3.1.5. Котел чугунный автоматизированный типа КЧВа-0,25 «УНИВЕРСАЛ-5М»
   3.2. Котлы бытовые стальные
      3.2.1. Котлы отопительные водогрейные стальные типа КС-ТГ и КС-ТГВ
      3.2.2. Котлы отопительные водогрейные стальные типа «ХОПЕР»
      3.2.3. Котлы отопительные бытовые
      3.2.4. Котлы отопительные бытовые типа БЭМ
      3.2.5. Котлы отопительные водогрейные бытовые типа «МАСТЕР»
      3.2.6. Котлы стальные водогрейные типа СарЗЭМ (бытовые)
      3.2.7. Котлы отопительные водогрейные для бытовых нужд
      3.2.8. Котел отопительный стальной водогрейный бытовой типа КОВ-СГ-43
      3.2.9. Отопительные аппараты бытовые типа КОГВ, АКГВ
      3.2.10. Котлы отопительные водогрейные стальные типа КС-5
      3.2.11. Котлы стальные отопительные типа «ГЕФГЕСТ»
4. Котельные транспортабельные
   4.1. Транспортабельные водогрейные котельные типа ТОУ
   4.2. Транспортабельные блочные водогрейные котельные типа ТБТВК-КСВ, ТБГ(Ж)К
   4.3. Установки котельные транспортабельные автоматизированные типа «Деснянка»
   4.4. Установки котельные транспортабельные автоматизированные типа УКТА «КАСКАД»
   4.5. Котельные блочные транспортабельные автоматизированные типа «ХОПЕР»
   4.6. Водогрейные автоматизированные транспортабельные котельные типа КАТ
   4.7. Цена водогрейных автоматизированных транспортабельных котельных типа КАТ
   4.8. Котельные автоматизированные транспортабельные на газе и жидком топливе типа КАТ и котельные механизированные транспортабельные на твердом топливе типа КМТ
   4.9. Установки котельные передвижные типа «УКП»
   4.10. Водогрейные котельные типа БАК/на базе котлов «ДОРОГОБУЖ», «ДНЕПР», «СМОЛЕНСК» и КВ-Р/
   4.11. Котельные твердотопливные мобильные (КТМ)
   4.12. Водогрейные блочно-модульные и транспортабельные котельные установки типа МКУ-В
   4.13. Паровые блочно-модульные и транспортабельные котельные установки типа МКУ-П
   4.14. Блочные котельные типа ТКМ
   4.15. Блок-модульные котельные типа БМК
   4.16. Блок-модульная котельная 3-х секционная
   4.17. Блочно-модульные котельные типа «Виток»
   4.18. Транспортабельные парогенерирующие установки типа ТПГУ
   4.19. Мобильные котельные (аварийные)
5. Адреса и телефоны заводов-изготовителей
Разработан: 31 ГПИ специального строительства Минобороны
Координационный центр по ценообразованию и сметному нормированию в строительстве
Утверждён:01.01.2005 31 ГПИ СС Минобороны России
Расположен в:Техническая документация Строительство Справочные документы Каталоги
Заменяет собой:
  • КО 01.04.13-01 «Котлы»
КО 01.04.14-05КО 01.04.14-05КО 01.04.14-05КО 01.04.14-05КО 01.04.14-05КО 01.04.14-05КО 01.04.14-05КО 01.04.14-05КО 01.04.14-05КО 01.04.14-05КО 01.04.14-05КО 01.04.14-05КО 01.04.14-05КО 01.04.14-05КО 01.04.14-05КО 01.04.14-05КО 01.04.14-05КО 01.04.14-05КО 01.04.14-05КО 01.04.14-05КО 01.04.14-05КО 01.04.14-05КО 01.04.14-05КО 01.04.14-05КО 01.04.14-05КО 01.04.14-05КО 01.04.14-05КО 01.04.14-05КО 01.04.14-05КО 01.04.14-05КО 01.04.14-05КО 01.04.14-05КО 01.04.14-05КО 01.04.14-05КО 01.04.14-05КО 01.04.14-05КО 01.04.14-05КО 01.04.14-05КО 01.04.14-05КО 01.04.14-05КО 01.04.14-05КО 01.04.14-05КО 01.04.14-05КО 01.04.14-05КО 01.04.14-05КО 01.04.14-05КО 01.04.14-05КО 01.04.14-05КО 01.04.14-05КО 01.04.14-05КО 01.04.14-05КО 01.04.14-05КО 01.04.14-05КО 01.04.14-05КО 01.04.14-05КО 01.04.14-05КО 01.04.14-05КО 01.04.14-05КО 01.04.14-05КО 01.04.14-05КО 01.04.14-05КО 01.04.14-05КО 01.04.14-05КО 01.04.14-05КО 01.04.14-05КО 01.04.14-05КО 01.04.14-05КО 01.04.14-05КО 01.04.14-05КО 01.04.14-05КО 01.04.14-05КО 01.04.14-05КО 01.04.14-05КО 01.04.14-05КО 01.04.14-05КО 01.04.14-05КО 01.04.14-05КО 01.04.14-05КО 01.04.14-05КО 01.04.14-05КО 01.04.14-05КО 01.04.14-05КО 01.04.14-05КО 01.04.14-05КО 01.04.14-05КО 01.04.14-05КО 01.04.14-05КО 01.04.14-05КО 01.04.14-05КО 01.04.14-05КО 01.04.14-05КО 01.04.14-05КО 01.04.14-05КО 01.04.14-05КО 01.04.14-05КО 01.04.14-05КО 01.04.14-05КО 01.04.14-05КО 01.04.14-05КО 01.04.14-05КО 01.04.14-05КО 01.04.14-05КО 01.04.14-05КО 01.04.14-05КО 01.04.14-05КО 01.04.14-05КО 01.04.14-05КО 01.04.14-05КО 01.04.14-05КО 01.04.14-05КО 01.04.14-05КО 01.04.14-05КО 01.04.14-05КО 01.04.14-05КО 01.04.14-05КО 01.04.14-05КО 01.04.14-05КО 01.04.14-05КО 01.04.14-05КО 01.04.14-05КО 01.04.14-05КО 01.04.14-05КО 01.04.14-05КО 01.04.14-05КО 01.04.14-05КО 01.04.14-05КО 01.04.14-05КО 01.04.14-05КО 01.04.14-05КО 01.04.14-05КО 01.04.14-05КО 01.04.14-05КО 01.04.14-05КО 01.04.14-05КО 01.04.14-05КО 01.04.14-05КО 01.04.14-05

© 2013 Ёшкин Кот :-) Карта сайта