Информационная система
«Ёшкин Кот»

Скачать базу одним архивом
Скачать обновления
История создания базы
Карта сайта

Скачать Рекомендации Рекомендации по проектированию и применению для строительства и реконстукции зданий в г. Москве фасадной системы с вентилируемым воздушным зазором СЕМ-СИСТЕМА

Дата актуализации: 10.08.2017

Рекомендации

Рекомендации по проектированию и применению для строительства и реконстукции зданий в г. Москве фасадной системы с вентилируемым воздушным зазором "СЕМ-СИСТЕМА"

Обозначение: Рекомендации
Обозначение англ: Recommendations
Статус:действует
Название рус.:Рекомендации по проектированию и применению для строительства и реконстукции зданий в г. Москве фасадной системы с вентилируемым воздушным зазором "СЕМ-СИСТЕМА"
Дата добавления в базу:01.09.2013
Дата актуализации:05.05.2017
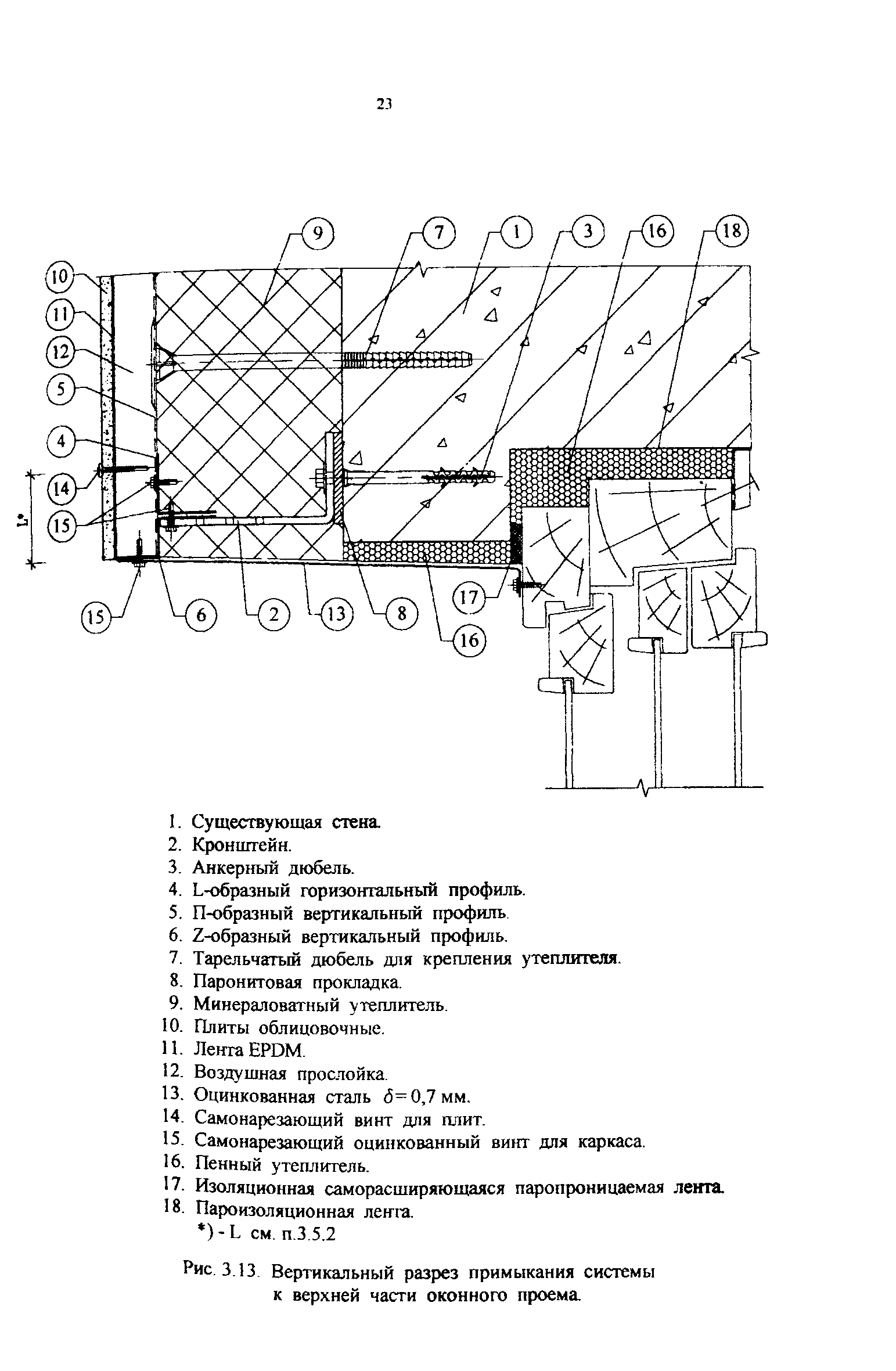
Область применения:Рекомендации являются методическим и справочным пособием для разработки проектов наружной отделки и утепления зданий и сооружений с применением навесной фасадной системы с вентилируемым воздушным зазором "СЕМ-СИСТЕМА".
Оглавление:1 Введение
2 Назнчание и область применения
3 Конструктивное решение системы
4 Исходные данные для проектирования системы
5 Определение основных параметров системы
6 Прочностные расчеты
7 Теплотехнические расчеты
8 Состав проектно-сметной документации
9 технико-экономические показатели
10 Основные положения по производству работ и системе контроля качества
11 Правила эксплуатации системы
12 Перечень нормативных документов и литературы
Разработан: ЦНИИЭП жилища
Утверждён:11.01.2005 Москомархитектура (Moskomarkhitektura 1)
Издан: НИАЦ (2005 г. )
Расположен в:Техническая документация Экология СТРОИТЕЛЬНЫЕ МАТЕРИАЛЫ И СТРОИТЕЛЬСТВО Строительные элементы Стены. Перегородки. Фасады Строительство Нормативные документы Нормативные документы субъектов Российской Федерации Нормативные документы г. Москвы
Нормативные ссылки:
Рекомендации Рекомендации Рекомендации Рекомендации Рекомендации Рекомендации Рекомендации Рекомендации Рекомендации Рекомендации Рекомендации Рекомендации Рекомендации Рекомендации Рекомендации Рекомендации Рекомендации Рекомендации Рекомендации Рекомендации Рекомендации Рекомендации Рекомендации Рекомендации Рекомендации Рекомендации Рекомендации Рекомендации Рекомендации Рекомендации Рекомендации Рекомендации Рекомендации Рекомендации Рекомендации Рекомендации Рекомендации Рекомендации Рекомендации Рекомендации Рекомендации Рекомендации Рекомендации Рекомендации Рекомендации Рекомендации Рекомендации Рекомендации Рекомендации Рекомендации Рекомендации Рекомендации Рекомендации Рекомендации Рекомендации Рекомендации Рекомендации Рекомендации Рекомендации Рекомендации Рекомендации Рекомендации Рекомендации Рекомендации Рекомендации Рекомендации Рекомендации Рекомендации Рекомендации Рекомендации Рекомендации Рекомендации Рекомендации Рекомендации

© 2013 Ёшкин Кот :-) Карта сайта