Информационная система
«Ёшкин Кот»

Скачать базу одним архивом
Скачать обновления
История создания базы
Карта сайта

Скачать КТП 1.10.2001 Укладка черного щебня щебнераспределителем Д-337А

Дата актуализации: 10.08.2017

КТП 1.10.2001

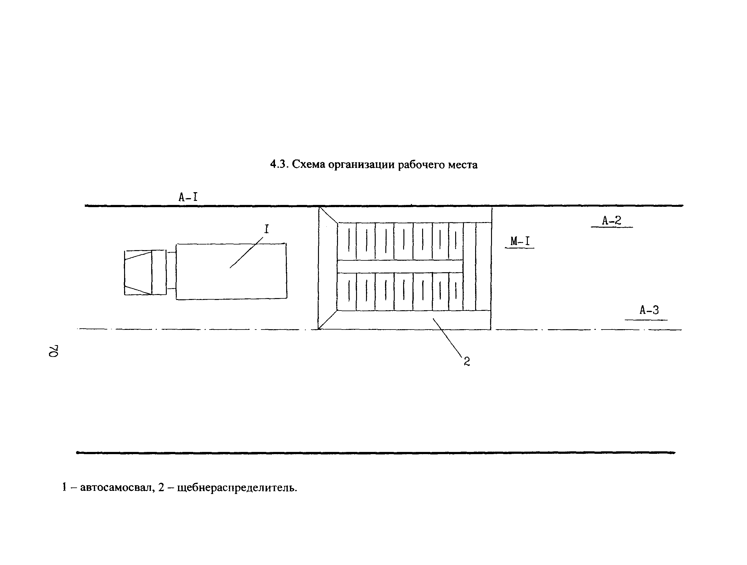
Укладка черного щебня щебнераспределителем Д-337А

Обозначение: КТП 1.10.2001
Обозначение англ: 1.10.2001
Статус:не установлен срок действия
Название рус.:Укладка черного щебня щебнераспределителем Д-337А
Дата добавления в базу:01.09.2013
Дата актуализации:05.05.2017
Дата введения:01.01.2001
Область применения:Карта предназначена для рациональной организации труда рабочих при укладке черного щебня слоем 6 см щебнераспределителем Д-337 при ремонте дорожных покрытий.
Оглавление:1 Область и эффективность применения карты
2 Подготовка и условия выполнения процесса
3 Исполнители, предметы и орудия труда
4 Технология и организация процесса
5 Приемы труда
Разработан: ГП Центроргтруд Росавтодора
Утверждён:01.01.2001 Росавтодор (Rosavtodor )
Издан: ГП Центроргтруд Росавтодора (2001 г. )
Расположен в:Техническая документация Экология ГРАЖДАНСКОЕ СТРОИТЕЛЬСТВО Строительство дорог Сооружение дорог Строительство Справочные документы Технологические карты Автомобильные дороги Нормативные документы Отраслевые и ведомственные нормативно-методические документы Проектирование и строительство автомобильных дорог Национальные стандарты Проектирование, строительство, ремонт и содержание автомобильных дорог Организация строительства Ремонт, содержание, эксплуатация автомобильных дорог
Заменяет собой:
  • КТ 7.05.89
КТП 1.10.2001КТП 1.10.2001КТП 1.10.2001КТП 1.10.2001КТП 1.10.2001КТП 1.10.2001КТП 1.10.2001

© 2013 Ёшкин Кот :-) Карта сайта