| ||||||||||||||||||||||||||||
Скачать Пособие к СНиП 2.08.01-89 Проектирование жилых зданий. Объемно-планировочные решенияДата актуализации: 10.08.2017
|
| Обозначение: | Пособие к СНиП 2.08.01-89 |
| Обозначение англ: | SNIP Handbook 2.08.01-89 |
| Статус: | привязан к неактуализированному документу |
| Название рус.: | Проектирование жилых зданий. Объемно-планировочные решения |
| Дата добавления в базу: | 01.09.2013 |
| Дата актуализации: | 05.05.2017 |
| Дата введения: | 01.10.2003 |
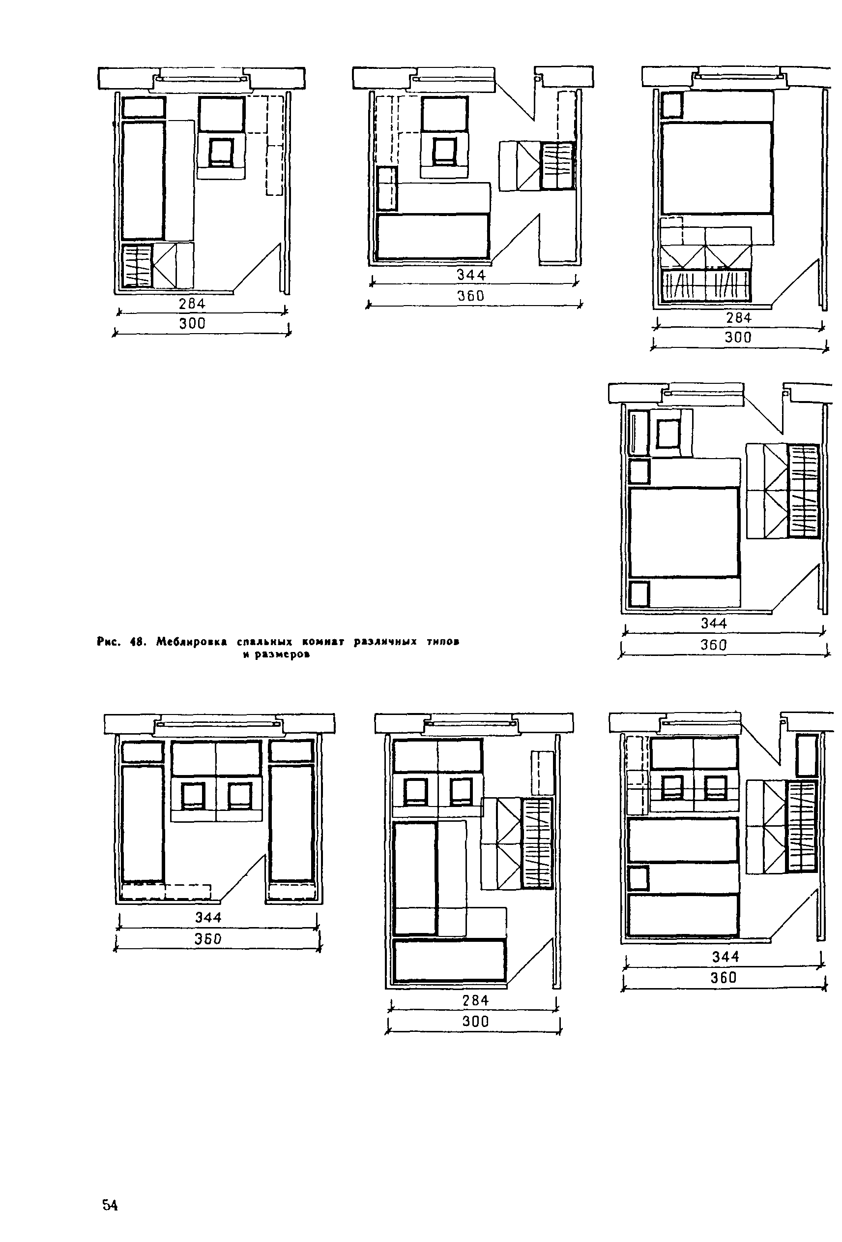
| Оглавление: | 1. Общие положения 2. Объемно-планировочные и конструктивные решения. Хозяйственные постройки 3. Квартиры 4. Помещения общежитий Приложение Расчет вертикального транспорта (лифтов) |
| Разработан: | ЦНИИЭП граждансельстрой НПО Лифтмаш ЦНИИЭП жилища |
| Утверждён: | 01.01.1991 ЦНИИЭП жилища (TsNIIEPzhilishcha ) |
| Издан: | Стройиздат (1991 г. ) |
| Расположен в: |




































































































