Обозначение: | РД 34.20.596-97 |
Обозначение англ: | RD 34.20.596-97 |
Статус: | действует |
Название рус.: | Методические указания по консервации тепломеханического оборудования с применением пленкообразующих аминов |
Название англ.: | Procedural Guidelines for Preservation of Thermal-Mechanical Equipment Using Film-Forming Amines - (Amendment to RD 34 -20 -591-97) |
Дата добавления в базу: | 01.09.2013 |
Дата актуализации: | 05.05.2017 |
Область применения: | Документ предназначен для эксплуатационного персонала ТЭС, водогрейных котельных, персонала наладочных предприятий, заводов-изготовителей энергетического оборудования, проектных и научно-исследовательских организаций. |
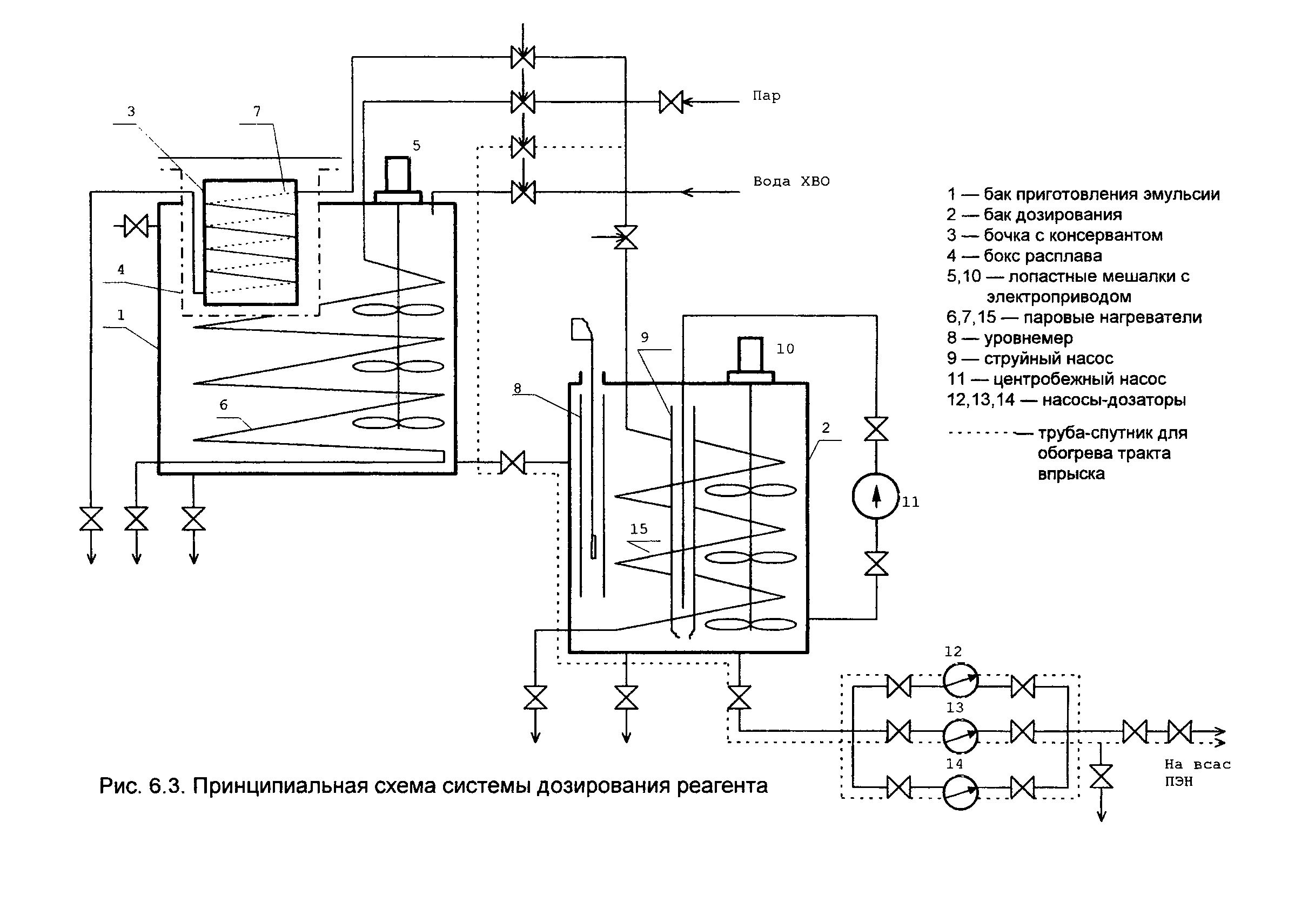
Оглавление: | 1. Общие положения 2. Сведения о консерванте 3. Консервация теплоэнергетических блоков 3.1 Подготовка к консервации 3.2. Перечень контролируемых и регистрируемых параметров 3.3. Указания на проведение работ по консервации 4. Консервация энергетических и водогрейных котлов 4.1.Барабанные котлы 4.1.1.Подготовкак консервации 4.1.2. Перечень контролируемых и регистрируемых параметров 4.1.3. Консервация из “холодного” состояния. Указания по проведению работ при консервации . 4.1.4. Консервация при останове. Указания по проведению работ при консервации 4.2. Прямоточные котлы 4.2.1. Подготовка к консервации 4.2.2. Перечень контролируемых и регистрируемых параметров 4.2.3. Указания по проведению работ при консервации 4.3. Водогрейные котлы 4.3.1. Подготовка к консервации 4.3.2. Перечень контролируемых и регистрируемых параметров 4.3.3. Указания по проведению работ при консервации 5. Консервация паровых турбин 5.1.Вариант 1 5.2.Вариант 2 5.3.Вариант 3 6. Системы дозирования 6.1. Принципиальная схема приготовления и дозирования консерванта при помощи шестеренчатого насос 6.2. Принципиальная схема дозирования консерванта по методу выдавливания 6.3. Система приготовления и дозирования эмульсии 7. Техника безопасности. Экология |
Разработан: | РАО ЕЭС России Московский энергетический институт ВНИИ и ПКИ атомного энергетического машиностроения
|
Утверждён: | 01.06.1998 РАО ЕЭС России (UES of Russia RAO )
|
Издан: | МЭИ (1997 г. )
|
Расположен в: |
|
Нормативные ссылки: |   ГОСТ 12.1.005-88 «Система стандартов безопасности труда. Общие санитарно-гигиенические требования к воздуху рабочей зоны» ГОСТ 6732.1-89 «Красители органические, продукты промежуточные для красителей, вещества текстильно-вспомогательные. Приемка» ГОСТ 6732.2-89 «Красители органические, продукты промежуточные для красителей, вещества текстильно-вспомогательные. Методы отбора проб» ГОСТ 6732.3-89 «Красители органические, продукты промежуточные для красителей, вещества текстильно-вспомогательные. Упаковка» ГОСТ 6732.4-89 «Красители органические, продукты промежуточные для красителей, вещества текстильно-вспомогательные. Маркировка» ГОСТ 6732.5-89 «Красители органические, продукты промежуточные для красителей, вещества текстильно-вспомогательные. Транспортирование»  РД 34.20.501-95 «Правила технической эксплуатации электрических станций и сетей Российской Федерации» СанПиН 4630-88 «Санитарные правила и нормы охраны поверхностных вод от загрязнения»
|