| ||||||||||||||||||||||||||||||||||
Скачать ГОСТ 13661-92 Совместимость технических средств электромагнитная. Пассивные помехоподавляющие фильтры и элементы. Методы измерения вносимого затуханияДата актуализации: 10.08.2017
|
| Обозначение: | ГОСТ 13661-92 |
| Обозначение англ: | GOST 13661-92 |
| Статус: | действует |
| Название рус.: | Совместимость технических средств электромагнитная. Пассивные помехоподавляющие фильтры и элементы. Методы измерения вносимого затухания |
| Название англ.: | Electromagnetic compatibility of technical equipment. Passive filters and elements for interference suppression. Methods of inserted damping measuring |
| Дата добавления в базу: | 01.09.2013 |
| Дата актуализации: | 05.05.2017 |
| Дата введения: | 01.01.1993 |
| Область применения: | Стандарт распространяется на конденсаторы, дроссели, резисторы и пассивные фильтры, используемые для подавления электромагнитных помех. И устанавливает методы измерения вносимого ими затухания: без рабочего тока в полосе частот 0,01-1000 МГц при несимметричной схеме измерения и в полосе частот 0,01-30 МГц при симметричной схме измерения; припрохождении рабочего тока до 50 А в полосе частот 0,1-100 МГц при нессиметричной схеме измерения и в полосе частот 0,1-30 МГц при симметричной схеме измерения, а также под напряжением на нагрузке до 2 кВ в полосе частот 10-100 МГц. Стандарт не распространяется на кабели и провода для подавления электромагнитных помех длиной более 0,5 м. |
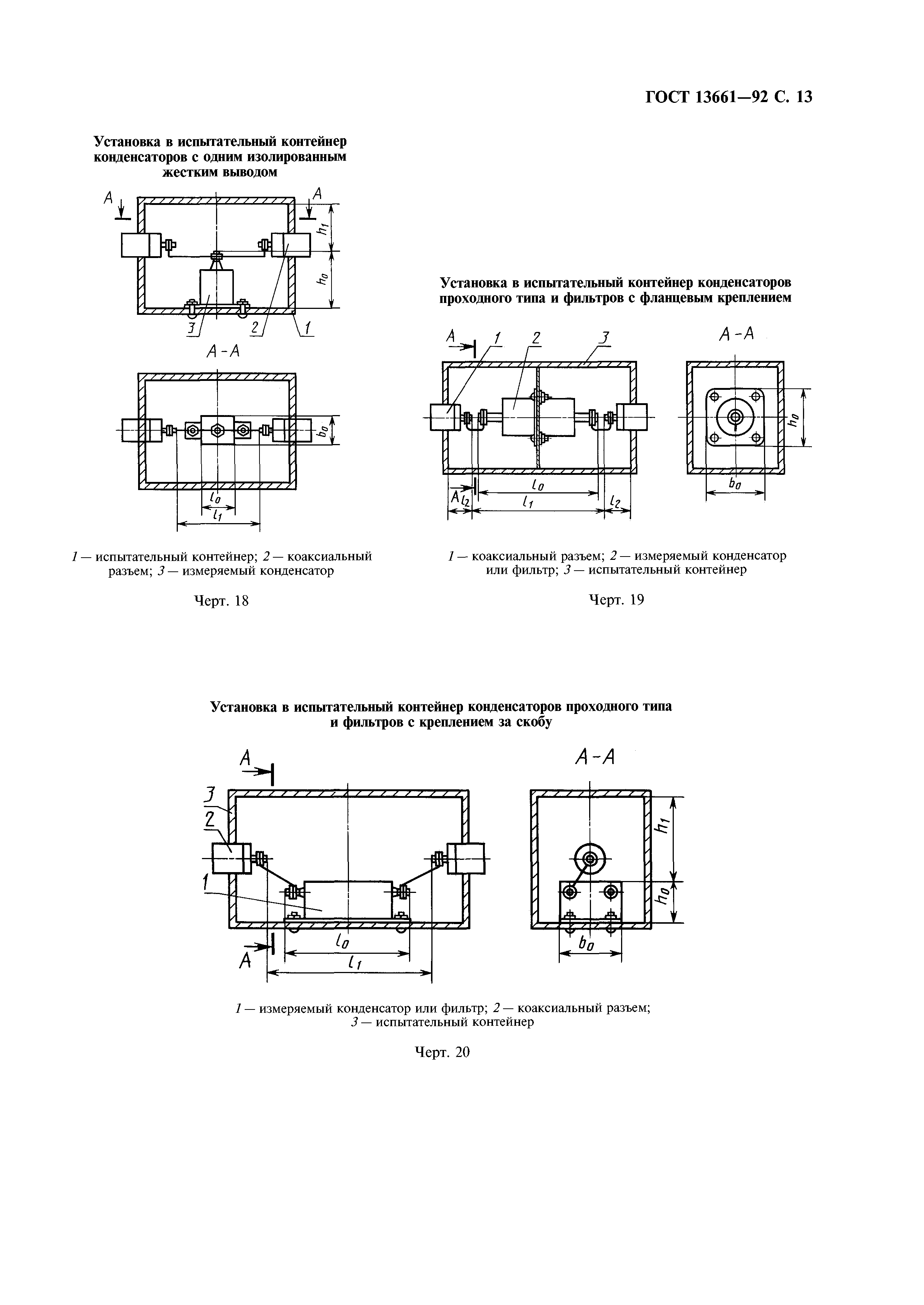
| Оглавление: | 1 Общие положения 2 Аппаратура и оборудование 3 Подготовка к измерениям 4 Проведение измерений 5 Представление результатов Приложение 1 Схемы измерения вносимого затухания Приложение 2 Методы измерения вносимого затухания, рассчитанные на наихудший случай Приложение 3 Схемы разделительных устройств и прмеры их включения в различные схемы измерений Приложение 4 Приборы для измерения вносимого затухания элементов и фильтров Приложение 5 Конструкция и габаритные размеры испытательного контейнера при установке в него помехоподавляющих элементов и фильтров Приложение 6 Методы поверки схемы измерения Приложение 7 Измерение переходного затухания между отдельными проводами многопроводного фильтра с несвязанными цепями |
| Разработан: | ТК 30 Электромагнитная совместимость технических средств |
| Утверждён: | 14.01.1992 Госстандарт СССР (USSR Gosstandart 12) |
| Издан: | Издательство стандартов (1992 г. ) ИПК Издательство стандартов (2004 г. ) |
| Расположен в: | |
| Заменяет собой: |
|






















