| ||||||||||||||||||||||||
Скачать Технические решения утепления наружных ограждений домов первых массовых серийДата актуализации: 10.08.2017 |
| Статус: | действует |
| Название рус.: | Технические решения утепления наружных ограждений домов первых массовых серий |
| Название англ.: | Designs for Insulation of Exterior Enclosure of Housing from Early Mass Construction |
| Дата добавления в базу: | 01.09.2013 |
| Дата актуализации: | 05.05.2017 |
| Дата введения: | 10.11.1998 |
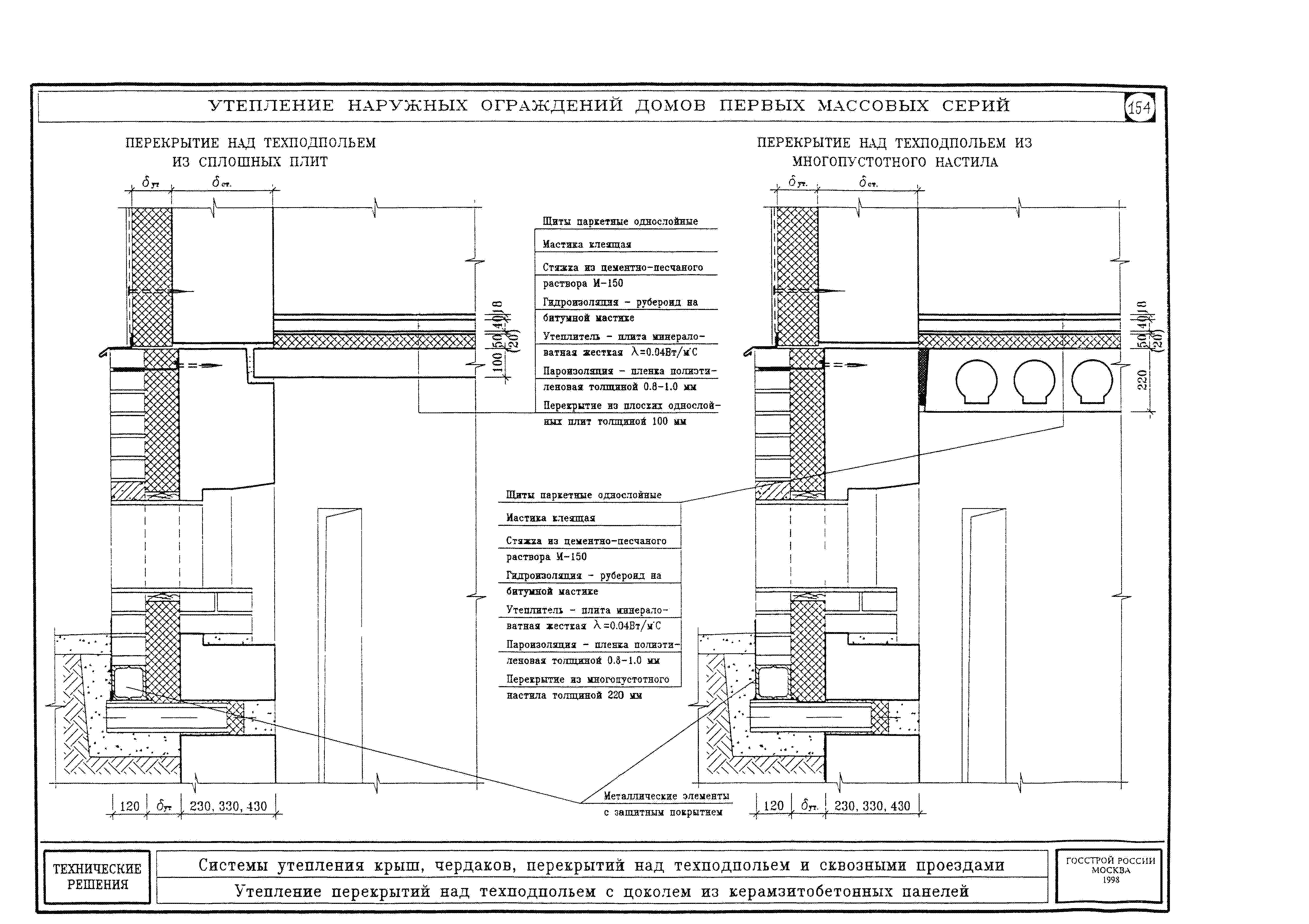
| Оглавление: | Пояснительная записка 1. Общая часть 2. Пятиэтажные дома первых массовых серий 3. Конструктивные решения систем утепления 3.1. Общие положения 3.2. Классификация систем наружного утепления 3.3. Системы утепления с оштукатуриванием фасадов 3.4. Системы утепления с защитным экраном ("Вентилируемый фасад") 3.5. Утепление стен с облицовкой кирпичом 3.6. Система утепления стен деревянных домов 3.7. Системы утепления крыш, чердаков, перекрытий над техподпольем и сквозными проездами 3.8. Повышение теплозащиты окон 3.9. Расчет крепежных элементов 4. Теплотехническая часть 4.1. Теплотехнические расчеты наружных стен. Методика и пример расчета 4.2. Методика и пример расчета чердачных перекрытий 4.3. Теплотехнический расчет техподполья 4.4. Расчет влажностного режима наружных ограждений. Методика и пример расчета 5. Эффективные утеплители 5.1. Общие требования 5.2. Номенклатура материалов для утепления стен, крыш и перекрытий 5.3. Физико-технические характеристики рекомендуемых материалов 6. Технико-экономическая оценка повышения теплозащиты жилых домов 6.1. Общие положения 6.2. Стены наружные 6.3. Крыши 6.4. Перекрытие над техподпольем 6.5. Окна 7. Нормативная база |
| Разработан: | ЦНИИЭП жилища |
| Утверждён: | 10.11.1998 Госстрой России (Russian Federation Gosstroy 8) |
| Расположен в: |

































































































































































