Информационная система
«Ёшкин Кот»

Скачать базу одним архивом
Скачать обновления
История создания базы
Карта сайта

Скачать ГОСТ 25097-2002 Блоки оконные деревоалюминиевые. Технические условия

Дата актуализации: 10.08.2017

ГОСТ 25097-2002

Блоки оконные деревоалюминиевые. Технические условия

Обозначение: ГОСТ 25097-2002
Обозначение англ: GOST 25097-2002
Статус:действует
Название рус.:Блоки оконные деревоалюминиевые. Технические условия
Название англ.:Windows from wood and aluminium. Specifications
Дата добавления в базу:01.09.2013
Дата актуализации:05.05.2017
Дата введения:01.03.2003
Область применения:Стандарт распространяется на оконные и балконные дверные блоки деревоалюминиевые раздельной и спаренной конструкции со стеклами и стеклопакетами для зданий и сооружений различного назначения. Область применения конкретных типов изделий устанавливают в зависимости от условий эксплуатации в соответствии с действующими строительными нормами с учетом требований ГОСТ 23166 и настоящего стандарта. Стандарт не распространяется на деревянные оконные блоки с алюминиевой облицовкой и алюминиевые оконные блоки с деревянной облицовкой, а также на изделия специального назначения в части дополнительных требований к пожаробезопасности, защиты от взлома и др. Стандарт может быть применен для целей сертификации.
Оглавление:Область применения
2 Нормативные ссылки
3 Термины и определения
4 Классификация и условное обозначение
5 Технические требования
    5.1 Общие положения
    5.2 Требования к предельным отклонениям размеров и формы
    5.3 Характеристики
    5.4 Требования к деревянным деталям
    5.5 Требования к профилям из алюминиевых сплавов
    5.6 Требования к комплектующим деталям и их установке
    5.7 Комплектность и маркировка
6 Правила приемки
7 Методы контроля
    7.1 Приемочный контроль и методы контроля при приемо-сдаточных испытаниях
    7.2 Методы контроля при проведении периодических испытаний
8 Упаковка, тренспортирование и хранение
9 Гарантии изготовителя
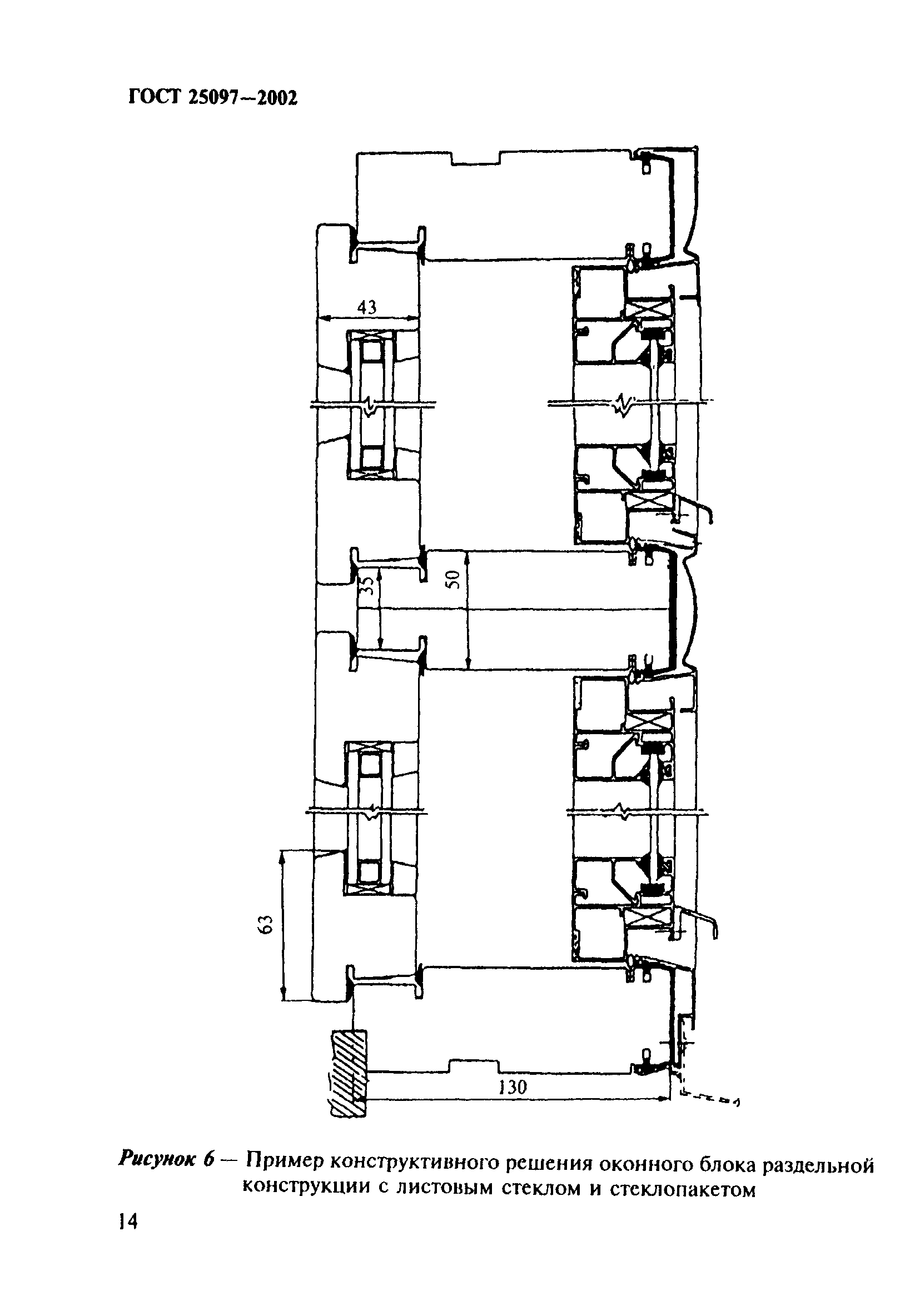
Приложение А Рекомендуемые конструктивные решения
Приложение Б Рекомендации по монтажу
Приложение В Сведения о разработчиках стандарта
Разработан: НИУПЦ Межрегиональный институт окна
МНТКС
ОАО ВНИИДМАШ
ОАО ДОК-1
Утверждён:02.09.2002 Госстрой России (Russian Federation Gosstroy 118)
Издан: ГУП ЦПП (CPP GUP 2003 г. )
Расположен в:Техническая документация Электроэнергия СТРОИТЕЛЬНЫЕ МАТЕРИАЛЫ И СТРОИТЕЛЬСТВО Строительные элементы Двери и окна Экология СТРОИТЕЛЬНЫЕ МАТЕРИАЛЫ И СТРОИТЕЛЬСТВО Строительные элементы Двери и окна Строительство Нормативные документы Документы Системы нормативных документов в строительстве Нормативные документы на строительные конструкции и изделия к.56 Окна, двери, ворота и приборы к ним
Заменяет собой:
Нормативные ссылки:
ГОСТ 25097-2002ГОСТ 25097-2002ГОСТ 25097-2002ГОСТ 25097-2002ГОСТ 25097-2002ГОСТ 25097-2002ГОСТ 25097-2002ГОСТ 25097-2002ГОСТ 25097-2002ГОСТ 25097-2002ГОСТ 25097-2002ГОСТ 25097-2002ГОСТ 25097-2002ГОСТ 25097-2002ГОСТ 25097-2002ГОСТ 25097-2002ГОСТ 25097-2002ГОСТ 25097-2002ГОСТ 25097-2002ГОСТ 25097-2002ГОСТ 25097-2002ГОСТ 25097-2002ГОСТ 25097-2002ГОСТ 25097-2002ГОСТ 25097-2002ГОСТ 25097-2002ГОСТ 25097-2002ГОСТ 25097-2002ГОСТ 25097-2002ГОСТ 25097-2002ГОСТ 25097-2002ГОСТ 25097-2002ГОСТ 25097-2002ГОСТ 25097-2002ГОСТ 25097-2002ГОСТ 25097-2002ГОСТ 25097-2002ГОСТ 25097-2002ГОСТ 25097-2002ГОСТ 25097-2002ГОСТ 25097-2002ГОСТ 25097-2002ГОСТ 25097-2002ГОСТ 25097-2002ГОСТ 25097-2002ГОСТ 25097-2002ГОСТ 25097-2002ГОСТ 25097-2002ГОСТ 25097-2002ГОСТ 25097-2002ГОСТ 25097-2002ГОСТ 25097-2002ГОСТ 25097-2002ГОСТ 25097-2002ГОСТ 25097-2002ГОСТ 25097-2002ГОСТ 25097-2002ГОСТ 25097-2002ГОСТ 25097-2002

© 2013 Ёшкин Кот :-) Карта сайта