Информационная система
«Ёшкин Кот»

Скачать базу одним архивом
Скачать обновления
История создания базы
Карта сайта

Скачать Рекомендации Методические рекомендации по реконструкции и модернизации инженерного оборудования жилых домов первых массовых серий

Дата актуализации: 10.08.2017

Рекомендации

Методические рекомендации по реконструкции и модернизации инженерного оборудования жилых домов первых массовых серий

Обозначение: Рекомендации
Обозначение англ: Recommendations
Статус:действует
Название рус.:Методические рекомендации по реконструкции и модернизации инженерного оборудования жилых домов первых массовых серий
Название англ.:Recommended Practice for Rehabilitation and Modernization of Utilities of Residential Occupancies of Early Mass Production Series
Дата добавления в базу:01.09.2013
Дата актуализации:05.05.2017
Дата введения:10.11.1998
Область применения:Альбом предназначен для использования при проведении проектных работ по реконструкции и модернизации фонда жилых домов первых массовых серий. Предлагаемые технические решения могут быть применены при разработке проектов капитального ремонта без изменения объемно-планировочных решений и с перепланировкой квартир и секций в пределах существующего здания, а также реконструкции жилого дома с организацией мансардных помещений при надстройке от одного до четырех этажей - т.е. Практически для всех возможных вариантов преобразования пятиэтажного жилого фонда первых массовых серий.
Оглавление:1. Общая пояснительная записка
2. Исходные данные по инженерному оборудованию жилых зданий серий 1-464, 1-468, 1-447, 1-335
   2.1. Система канализации
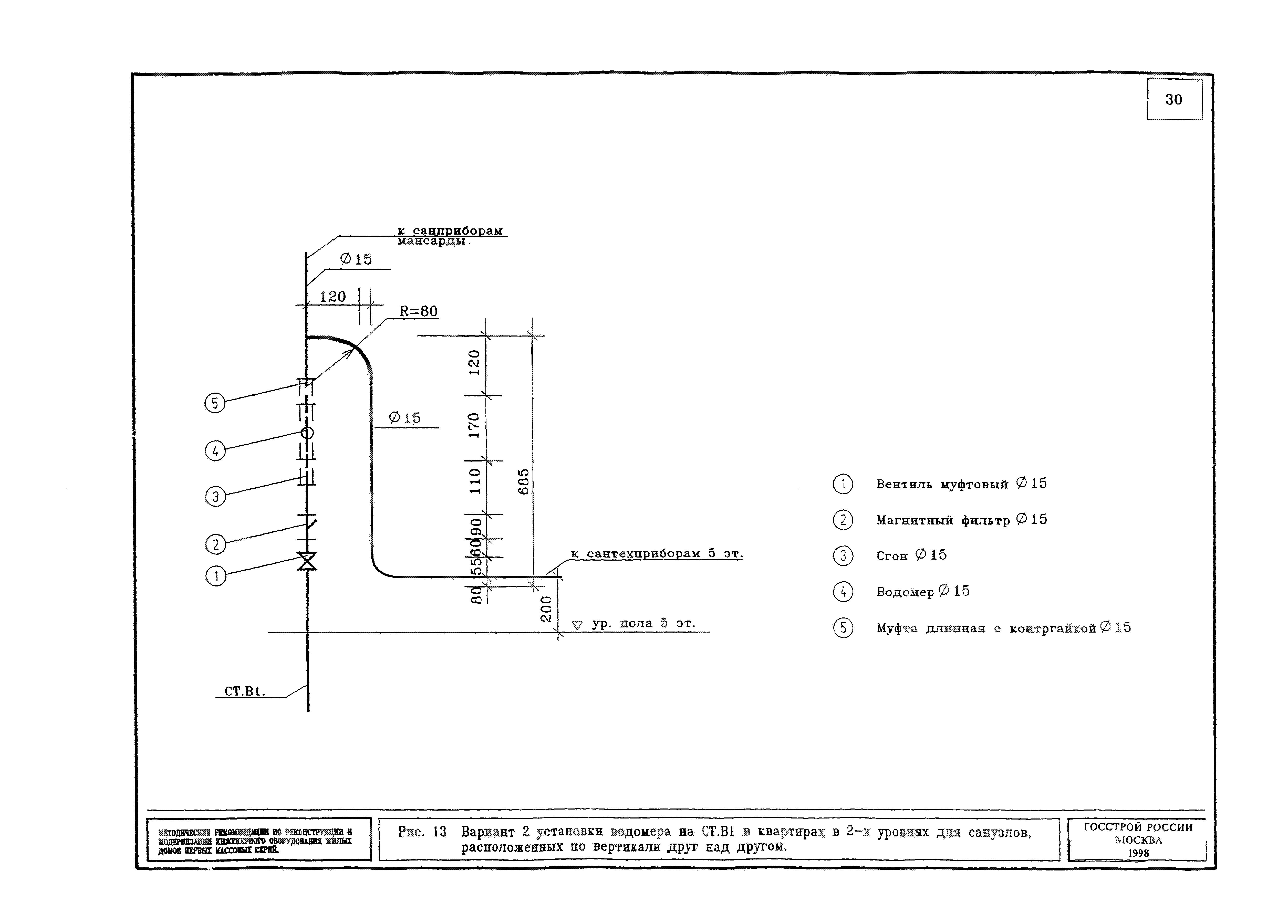
   2.2. Система горячего и холодного водоснабжения
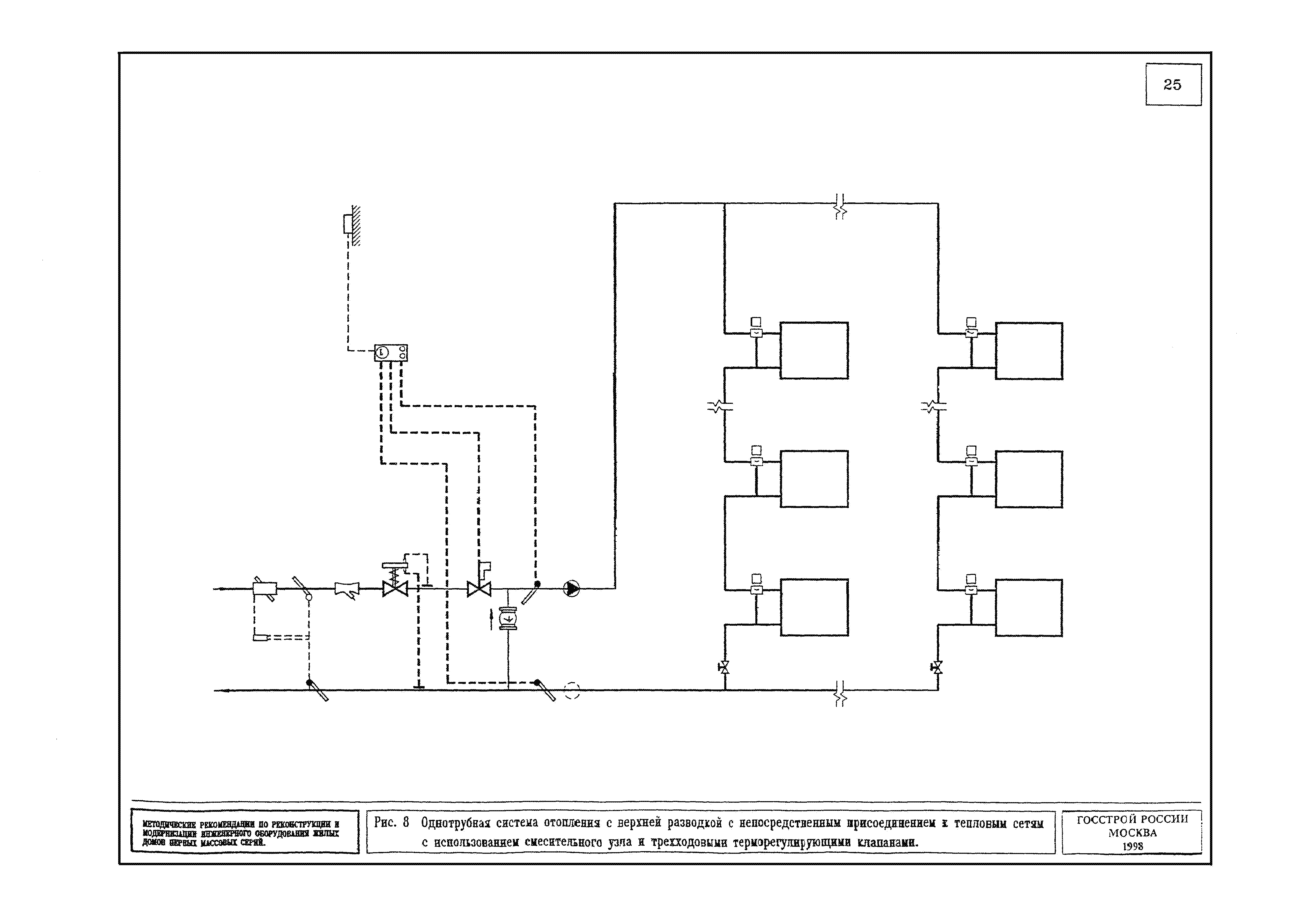
   2.3. Система отопления
   2.4. Система электроснабжения и связи
   2.5. Система газоснабжения
3. Системы инженерного оборудования при капитальном ремонте жилых зданий первых массовых серий с утепленными наружными стенами
   3.1. Система канализации
   3.2. Система горячего и холодного водоснабжения
   3.3. Система отопления
   3.4. Система электроснабжения и связи
   3.5. Система газоснабжения
   3.6. Система водотока
4. Системы инженерного оборудования при реконструкции и модернизации зданий первых массовых серий с образованием мансардного жилища
   4.1. Система канализации
   4.2. Система горячего и холодного водоснабжения
   4.3. Система отопления
   4.4. Система электроснабжения и связи
   4.5. Система газоснабжения
5. Системы инженерного оборудования при реконструкции зданий с увеличением помещений и модернизацией квартир первого этажа для различного назначения
Список использованной литературы
Разработан: Научно-производственная компания Здание
Управление архитектуры Госстроя России
Утверждён:10.11.1998 Госстрой России (Russian Federation Gosstroy 8)
Издан: ЦНИИЭПжилища (1998 г. )
Расположен в:Техническая документация Экология СТРОИТЕЛЬНЫЕ МАТЕРИАЛЫ И СТРОИТЕЛЬСТВО Установки в зданиях Инженерное оборудование зданий в целом Строительство Справочные документы Директивные письма, положения, рекомендации и др.
Рекомендации Рекомендации Рекомендации Рекомендации Рекомендации Рекомендации Рекомендации Рекомендации Рекомендации Рекомендации Рекомендации Рекомендации Рекомендации Рекомендации Рекомендации Рекомендации Рекомендации Рекомендации Рекомендации Рекомендации Рекомендации Рекомендации Рекомендации Рекомендации Рекомендации Рекомендации Рекомендации Рекомендации Рекомендации Рекомендации Рекомендации Рекомендации Рекомендации Рекомендации Рекомендации Рекомендации Рекомендации Рекомендации Рекомендации Рекомендации Рекомендации Рекомендации Рекомендации

© 2013 Ёшкин Кот :-) Карта сайта