Информационная система
«Ёшкин Кот»

Скачать базу одним архивом
Скачать обновления
История создания базы
Карта сайта

Скачать ГОСТ 23331-78 Аэродромы. Дневная маркировка искусственных покрытий

Дата актуализации: 10.08.2017

ГОСТ 23331-78

Аэродромы. Дневная маркировка искусственных покрытий

Обозначение: ГОСТ 23331-78
Обозначение англ: GOST 23331-78
Статус:действует
Название рус.:Аэродромы. Дневная маркировка искусственных покрытий
Название англ.:Aerodromes. Daylight marking of artifical covers
Дата добавления в базу:01.09.2013
Дата актуализации:05.05.2017
Дата введения:01.01.1980
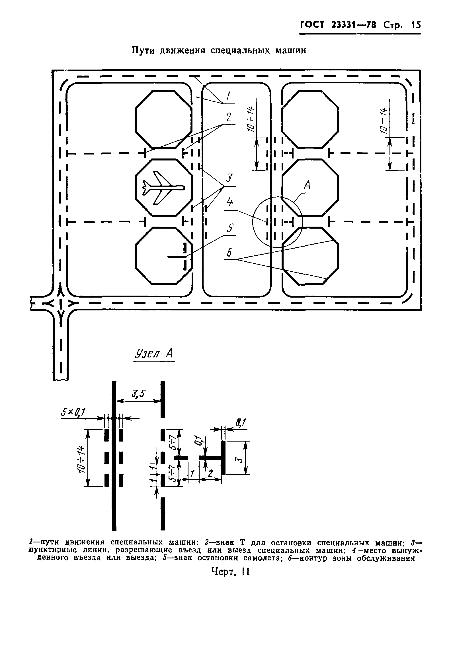
Область применения:Стандарт распространяется на аэродромы с искусственными покрытиями и устанавливает дневную маркировку искусственных покрытий строящихся и эксплуатируемых аэродромов
Оглавление:1 Общие положения
2 Маркировка искусственных взлетно-посадочных полос (ИВПП)
3 Маркировка рулежных дорожек (РД)
4 Маркировка мест стоянки (МС) и перрона
Разработан: Министерство гражданской авиации СССР
Утверждён:27.10.1978 Госстандарт СССР (USSR Gosstandart 2801)
Издан: Издательство стандартов (1979 г. )
Расположен в:Техническая документация Электроэнергия ГРАЖДАНСКОЕ СТРОИТЕЛЬСТВО Сооружение аэропортов Экология ГРАЖДАНСКОЕ СТРОИТЕЛЬСТВО Сооружение аэропортов Строительство Стандарты Другие государственные стандарты, применяемые в строительстве Гражданское строительство
ГОСТ 23331-78ГОСТ 23331-78ГОСТ 23331-78ГОСТ 23331-78ГОСТ 23331-78ГОСТ 23331-78ГОСТ 23331-78ГОСТ 23331-78ГОСТ 23331-78ГОСТ 23331-78ГОСТ 23331-78ГОСТ 23331-78ГОСТ 23331-78ГОСТ 23331-78ГОСТ 23331-78ГОСТ 23331-78ГОСТ 23331-78ГОСТ 23331-78ГОСТ 23331-78ГОСТ 23331-78ГОСТ 23331-78ГОСТ 23331-78

© 2013 Ёшкин Кот :-) Карта сайта