Информационная система
«Ёшкин Кот»

Скачать базу одним архивом
Скачать обновления
История создания базы
Карта сайта

Скачать Рекомендации Рекомендации по реконструкции и модернизации существующего фонда школьных зданий в соответствии с современными педагогическими требованиями

Дата актуализации: 10.08.2017

Рекомендации

Рекомендации по реконструкции и модернизации существующего фонда школьных зданий в соответствии с современными педагогическими требованиями

Обозначение: Рекомендации
Обозначение англ: Recommendations
Статус:действует
Название рус.:Рекомендации по реконструкции и модернизации существующего фонда школьных зданий в соответствии с современными педагогическими требованиями
Название англ.:Recommended Practice for Rehabilitation and Modernization of Existing School Buildings in Conformance with Current Pedagogical Requirements
Дата добавления в базу:01.09.2013
Дата актуализации:05.05.2017
Дата введения:01.07.1997
Область применения:Рекомендации разработаны как дополнение к нормативным документам в строительстве, действующим на территории г. Москвы, и распространяются на проектирование реконструкции и модернизации существующего фонда зданий общеобразовательных школ.
Оглавление:1 Область применения
2 Общие положения
3 Целевая номенклатура видов и типов зданий, примерные составы и площади помещений к ним
4 Сопоставление состава и площадей помещений типовых проектов и целевых типов учебных заведений
5 Оценка классных помещений типовых проектов по учебной технологии
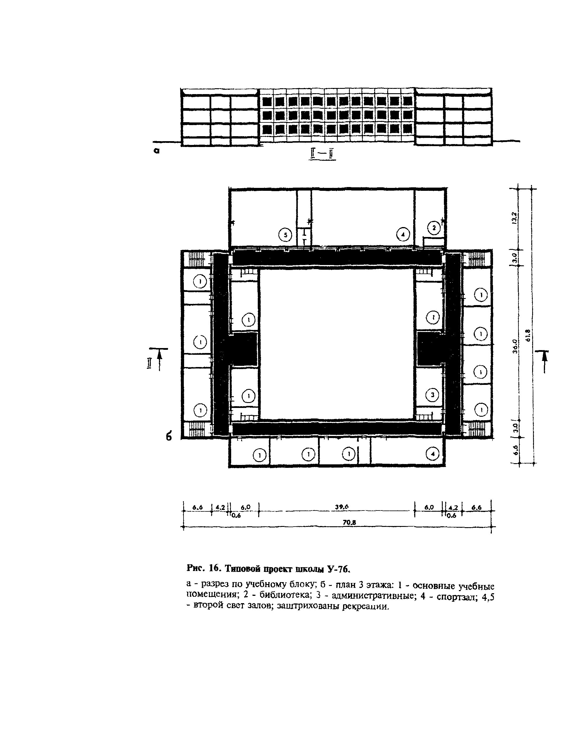
6 Характеристика типовых проектов
7 Структурный анализ состава и площадей помещений целевых программ и типовых проектов школьных зданий
8 Методика расчета дефицита площадей и возможностей приспособления типового проекта к новой педагогической технологии
9 Основные направления преобразования типовых проектов школьных зданий
10 Модернизация школьных зданий (без изменения планировочных габаритов)
11 Реконструкция школьных зданий (с изменением планировочных габаритов)
12 Номенклатура типов универсальных блоков-пристроек
Приложение 1 Примерный состав и площади помещений общеобразовательных учреждений по целевой программе
Приложение 2 Примерный перечень учебной мебели и оборудования классов-кабинетов
Приложение 3 Сокращения и условные обозначения
Приложение 4 Структурная карта учебных групп помещений целевых типов учебных зданий при расчетной наполняемости учебных групп 20 учащихся
Разработан: Институт общественных зданий
Утверждён:01.07.1997 Москомархитектура (Moskomarkhitektura 24)
Принят: Мосгосэкспертиза (Mosgorekspertiza )
Москомархитектура (Moskomarkhitektura )
Московский Комитет образования (Moscow Committee on Education )
Издан: ГУП НИАЦ (1997 г. )
Расположен в:Техническая документация Экология СТРОИТЕЛЬНЫЕ МАТЕРИАЛЫ И СТРОИТЕЛЬСТВО Строительство Общественные здания Строительство Нормативные документы Нормативные документы субъектов Российской Федерации Нормативные документы г. Москвы
Нормативные ссылки:
Рекомендации Рекомендации Рекомендации Рекомендации Рекомендации Рекомендации Рекомендации Рекомендации Рекомендации Рекомендации Рекомендации Рекомендации Рекомендации Рекомендации Рекомендации Рекомендации Рекомендации Рекомендации Рекомендации Рекомендации Рекомендации Рекомендации Рекомендации Рекомендации Рекомендации Рекомендации Рекомендации Рекомендации Рекомендации Рекомендации Рекомендации Рекомендации Рекомендации Рекомендации Рекомендации Рекомендации Рекомендации Рекомендации Рекомендации Рекомендации Рекомендации Рекомендации Рекомендации Рекомендации Рекомендации Рекомендации Рекомендации Рекомендации Рекомендации Рекомендации Рекомендации Рекомендации Рекомендации Рекомендации Рекомендации Рекомендации Рекомендации Рекомендации Рекомендации Рекомендации Рекомендации Рекомендации Рекомендации Рекомендации Рекомендации Рекомендации Рекомендации Рекомендации Рекомендации Рекомендации Рекомендации Рекомендации Рекомендации Рекомендации Рекомендации Рекомендации Рекомендации Рекомендации Рекомендации Рекомендации Рекомендации Рекомендации Рекомендации Рекомендации Рекомендации Рекомендации Рекомендации Рекомендации Рекомендации Рекомендации Рекомендации Рекомендации Рекомендации Рекомендации Рекомендации Рекомендации Рекомендации Рекомендации Рекомендации Рекомендации Рекомендации Рекомендации Рекомендации

© 2013 Ёшкин Кот :-) Карта сайта