Информационная система
«Ёшкин Кот»

Скачать базу одним архивом
Скачать обновления
История создания базы
Карта сайта

Скачать ГОСТ 18853-73 Ворота деревянные распашные для производственных зданий и сооружений. Технические условия

Дата актуализации: 10.08.2017

ГОСТ 18853-73

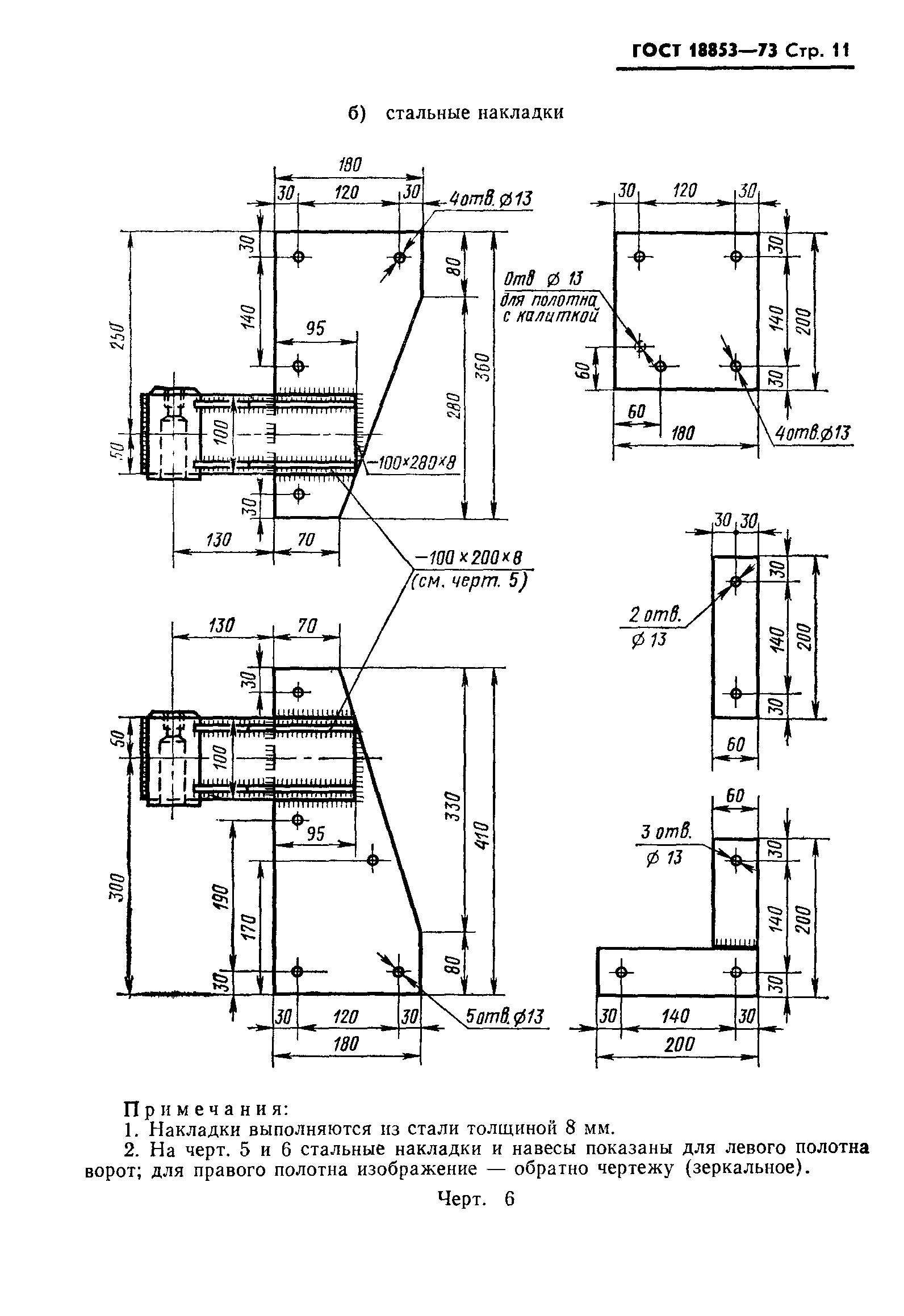
Ворота деревянные распашные для производственных зданий и сооружений. Технические условия

Обозначение: ГОСТ 18853-73
Обозначение англ: GOST 18853-73
Статус:действует
Название рус.:Ворота деревянные распашные для производственных зданий и сооружений. Технические условия
Название англ.:Swing wooden gates for industrial buildings and structures. Specifications
Дата добавления в базу:01.09.2013
Дата актуализации:05.05.2017
Дата введения:01.07.1974
Оглавление:1 Типы и размеры
2 Технические требования
3 Правила приемки и методы испытаний
4 Маркировка, хранение и транспортирование
Приложение 1 Пример установки ворот в проемах с железобетонным каркасом
Приложение 2 Пример крепления обрамления проемов ворот к кирпичной стене
Разработан: ЦНИИЭП граждансельстрой
ГипроНИсельхоз (Институт Гипронисельхоз )
Утверждён:29.05.1973 Госстрой СССР (Государственный комитет Совета Министров СССР по делам строительства) (USSR Gosstroy 79)
Издан: Издательство стандартов (1985 г. )
Расположен в:Техническая документация Электроэнергия СТРОИТЕЛЬНЫЕ МАТЕРИАЛЫ И СТРОИТЕЛЬСТВО Строительные элементы Двери и окна Экология СТРОИТЕЛЬНЫЕ МАТЕРИАЛЫ И СТРОИТЕЛЬСТВО Строительные элементы Двери и окна Строительство Нормативные документы Документы Системы нормативных документов в строительстве Нормативные документы на строительные конструкции и изделия к.56 Окна, двери, ворота и приборы к ним
Нормативные ссылки:
ГОСТ 18853-73ГОСТ 18853-73ГОСТ 18853-73ГОСТ 18853-73ГОСТ 18853-73ГОСТ 18853-73ГОСТ 18853-73ГОСТ 18853-73ГОСТ 18853-73ГОСТ 18853-73ГОСТ 18853-73ГОСТ 18853-73ГОСТ 18853-73ГОСТ 18853-73ГОСТ 18853-73ГОСТ 18853-73ГОСТ 18853-73ГОСТ 18853-73ГОСТ 18853-73

© 2013 Ёшкин Кот :-) Карта сайта