| ||||||||||||||||||||||||||||||||||||||
Скачать ГОСТ 21.511-83 Система проектной документации для строительства. Автомобильные дороги. Земляное полотно и дорожная одежда. Рабочие чертежиДата актуализации: 10.08.2017
|
| Обозначение: | ГОСТ 21.511-83 |
| Обозначение англ: | GOST 21.511-83 |
| Статус: | отменен в рф |
| Название рус.: | Система проектной документации для строительства. Автомобильные дороги. Земляное полотно и дорожная одежда. Рабочие чертежи |
| Название англ.: | System of design documents for construction. Motor-ways. Embankment and road pavement. Working drawings |
| Дата добавления в базу: | 01.09.2013 |
| Дата актуализации: | 05.05.2017 |
| Дата введения: | 01.06.1997 |
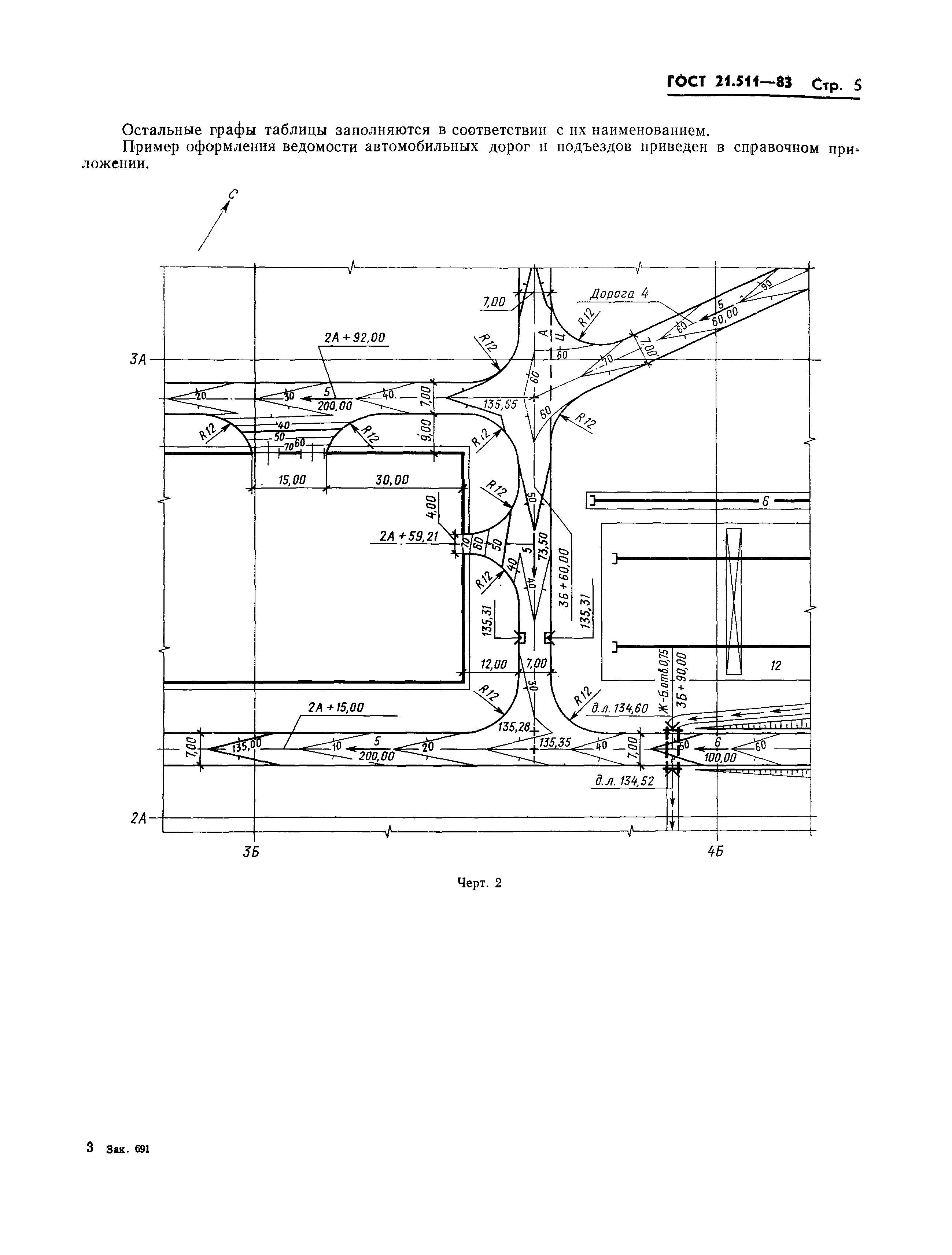
| Область применения: | Стандарт устанавливает состав и правила оформления рабочих чертежей земляного полотна и дорожной одежды новых и реконструируемых автомобильных дорог. |
| Оглавление: | 1 Общие положения 2 Общие даннве по рабочим чертежам 3 План автомобильных дорог 4 План организации рельефа 5 Продольный профиль 6 Поперечные профили земляного полотна 7 Поперечные прфили конструкции земляного полотна 8 Продольные профили водоотводных и нагорных канав Приложение (справочное) Пример оформления ведомости автомобильных дорог и подъездов |
| Разработан: | Промтрансниипроект Госстроя СССР Проектный институт № 2 Госстроя СССР Государственный институт по проектированию и изысканию автомобильных дорог Союздорпроект Минтрансстроя Гипрокоммундортранс Минжилкомхоза РСФСР |
| Утверждён: | 02.11.1983 Госстрой СССР (Государственный комитет Совета Министров СССР по делам строительства) (USSR Gosstroy 300) |
| Издан: | Издательство стандартов (1984 г. ) |
| Расположен в: | |
| Список изменений: | |
| Заменяет собой: | |
| Чем заменён: |





























Текстовое изменение № 1 от 01.01.1986