Информационная система
«Ёшкин Кот»

Скачать базу одним архивом
Скачать обновления
История создания базы
Карта сайта

Скачать Типовой проект 503-4-46.87 Профилакторий для постового обслуживания 200 грузовых автомобилей

Дата актуализации: 10.08.2017

Типовой проект 503-4-46.87

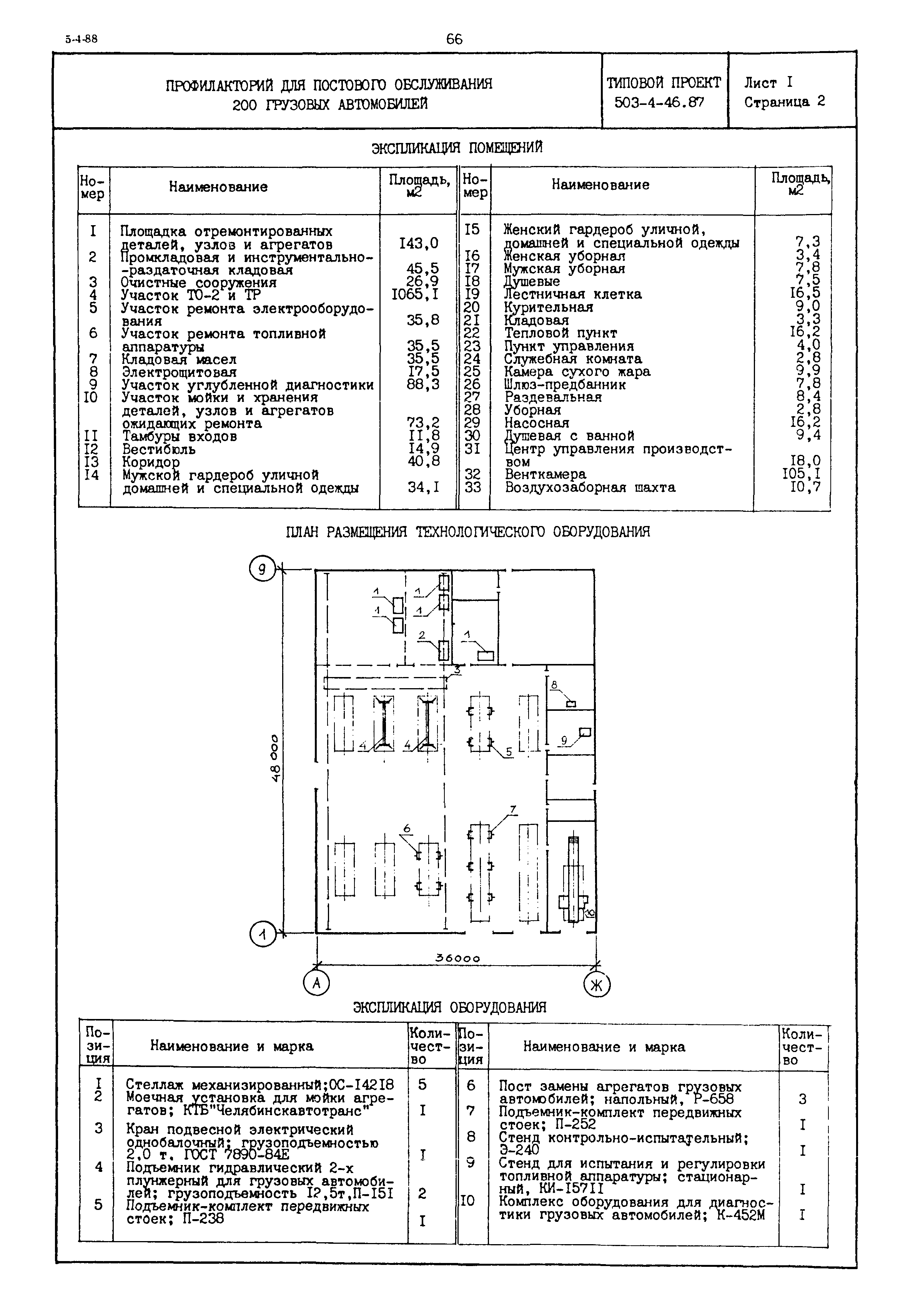
Профилакторий для постового обслуживания 200 грузовых автомобилей

Обозначение: Типовой проект 503-4-46.87
Обозначение англ: 503-4-46.87
Статус:не определен законодательством
Название рус.:Профилакторий для постового обслуживания 200 грузовых автомобилей
Дата добавления в базу:01.02.2017
Дата актуализации:05.05.2017
Дата введения:15.09.1987
Область применения:Профилакторий предназначается для углубленной диагностики, постовых работ по второму техническому обслуживанию и текущему ремонту 100 автомобилей ЗИЛ-130 и 100 автопоездов в составе тягача КамАЗ-5410 и полуприцепа 9370
Расположен в:Техническая документация
Типовой проект 503-4-46.87Типовой проект 503-4-46.87Типовой проект 503-4-46.87Типовой проект 503-4-46.87Типовой проект 503-4-46.87

© 2013 Ёшкин Кот :-) Карта сайта