Информационная система
«Ёшкин Кот»

Скачать базу одним архивом
Скачать обновления
История создания базы
Карта сайта

Скачать Типовой проект 503-4-35.86 Производственный корпус централизованного текущего ремонта 1000 автомобилей КамАЗ в год (с применением легких металлических конструкций)

Дата актуализации: 10.08.2017

Типовой проект 503-4-35.86

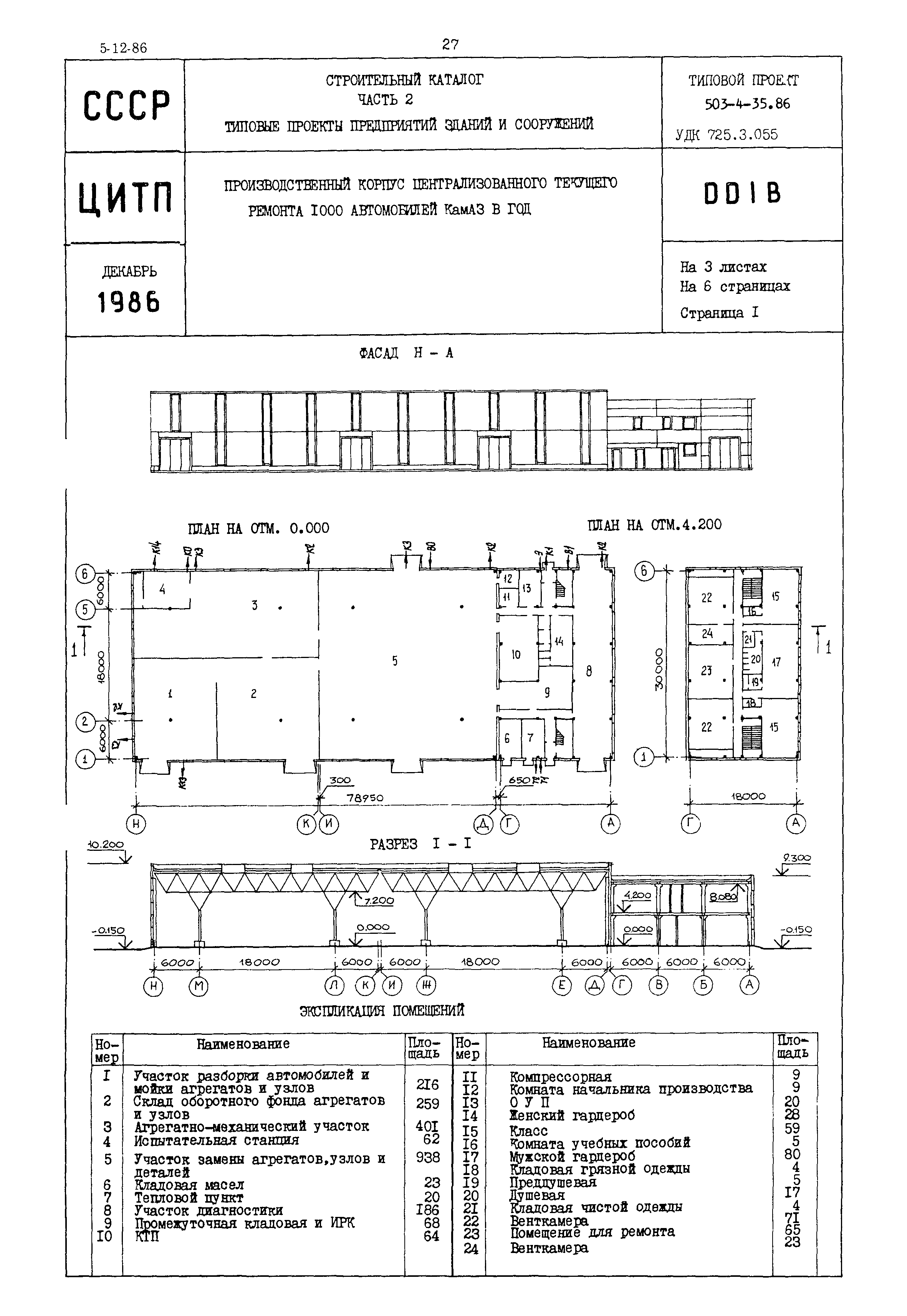
Производственный корпус централизованного текущего ремонта 1000 автомобилей КамАЗ в год (с применением легких металлических конструкций)

Обозначение: Типовой проект 503-4-35.86
Обозначение англ: 503-4-35.86
Статус:не определен законодательством
Название рус.:Производственный корпус централизованного текущего ремонта 1000 автомобилей КамАЗ в год (с применением легких металлических конструкций)
Дата добавления в базу:01.02.2017
Дата актуализации:05.05.2017
Дата введения:27.03.1985
Область применения:Корпус предусматривает централизованное выполнение замены двигателей, агрегатов, узлов и деталей, разборки после списания, текущего ремонта двигателей, агрегатов, узлов, электрооборудования, аппаратов тормозной системы автомобилей КамАЗ с годовым пробегом единицы подвижного состава 65 тыс. км при II категории условий эксплуатации
Расположен в:Техническая документация
Типовой проект 503-4-35.86Типовой проект 503-4-35.86Типовой проект 503-4-35.86Типовой проект 503-4-35.86Типовой проект 503-4-35.86Типовой проект 503-4-35.86

© 2013 Ёшкин Кот :-) Карта сайта