Информационная система
«Ёшкин Кот»

Скачать базу одним архивом
Скачать обновления
История создания базы
Карта сайта

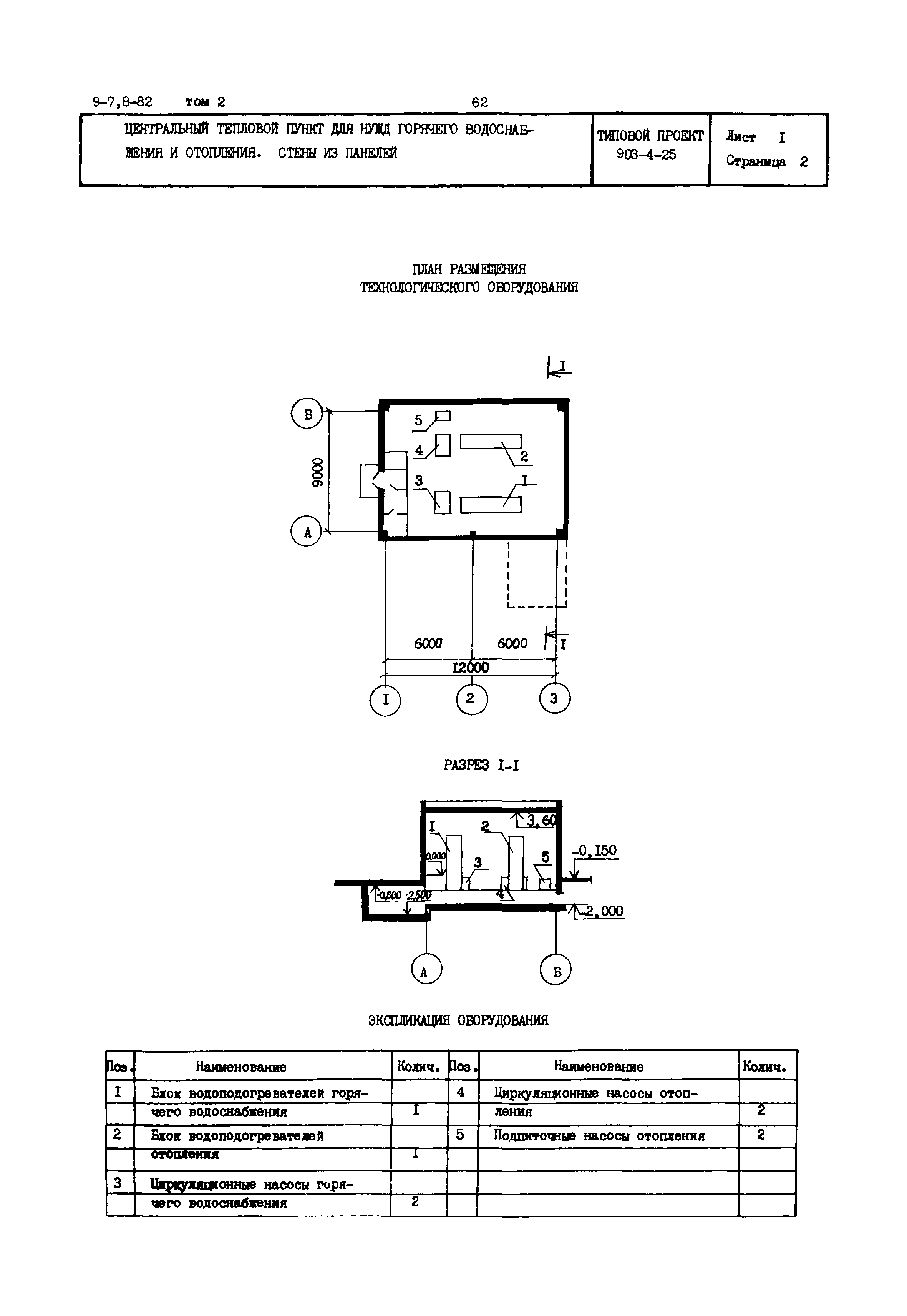
Скачать Типовой проект 903-4-25 ЦТП для нужд горячего водоснабжения и отопления. Стены из панелей

Дата актуализации: 10.08.2017

Типовой проект 903-4-25

ЦТП для нужд горячего водоснабжения и отопления. Стены из панелей

Обозначение: Типовой проект 903-4-25
Обозначение англ: 903-4-25
Статус:действует
Название рус.:ЦТП для нужд горячего водоснабжения и отопления. Стены из панелей
Дата добавления в базу:01.02.2017
Дата актуализации:05.05.2017
Область применения:ЦТП сооружается при вводе распределительных тепловых сетей на территорию жилых кварталов и общественных сооружений для учета отпускаемого тепла, обеспечения горячей водой зданий высотой до 16 этажей, подключения зданий по независимой схеме, подключения зданий по зависимой схеме, контроля и регулирования параметров теплоносителя и организации дополнительного регулирования отпуска тепла
Расположен в:Техническая документация
Типовой проект 903-4-25Типовой проект 903-4-25Типовой проект 903-4-25Типовой проект 903-4-25Типовой проект 903-4-25Типовой проект 903-4-25Типовой проект 903-4-25

© 2013 Ёшкин Кот :-) Карта сайта