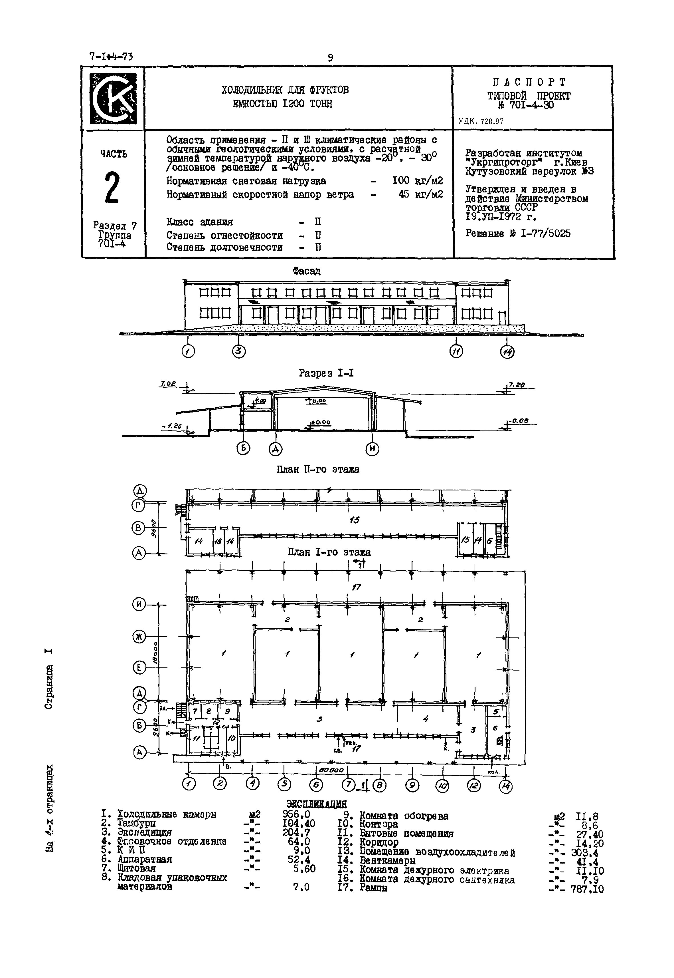
Скачать Типовой проект 701-4-30 Холодильник для фруктов емкостью 1200 тоннДата актуализации: 10.08.2017 Типовой проект 701-4-30
Холодильник для фруктов емкостью 1200 тоннОбозначение: | Типовой проект 701-4-30 | Обозначение англ: | 701-4-30 | Статус: | действует | Название рус.: | Холодильник для фруктов емкостью 1200 тонн | Дата добавления в базу: | 01.10.2014 | Дата актуализации: | 05.05.2017 | Расположен в: |
|
  
|