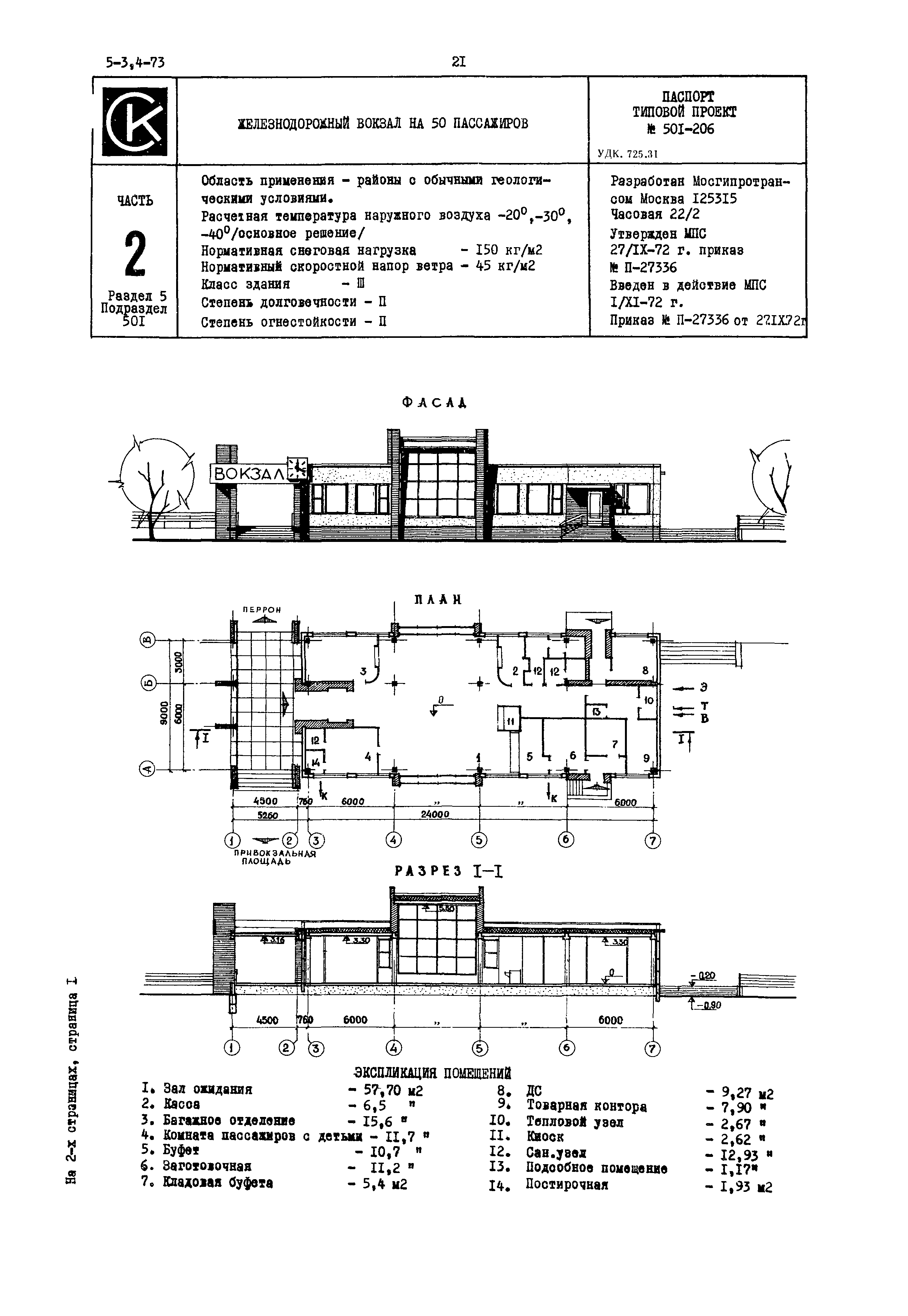
Скачать Типовой проект 501-206 Железнодорожный вокзал на 50 пассажировДата актуализации: 10.08.2017 Типовой проект 501-206
Железнодорожный вокзал на 50 пассажировОбозначение: | Типовой проект 501-206 | Обозначение англ: | 501-206 | Статус: | действует | Название рус.: | Железнодорожный вокзал на 50 пассажиров | Дата добавления в базу: | 01.10.2014 | Дата актуализации: | 05.05.2017 | Расположен в: |
|

|