Скачать Типовой проект 411-2-87 Мебельная фабрика мощностью 1,5 - 2,0 млн. рублей продукции в годДата актуализации: 10.08.2017 Типовой проект 411-2-87
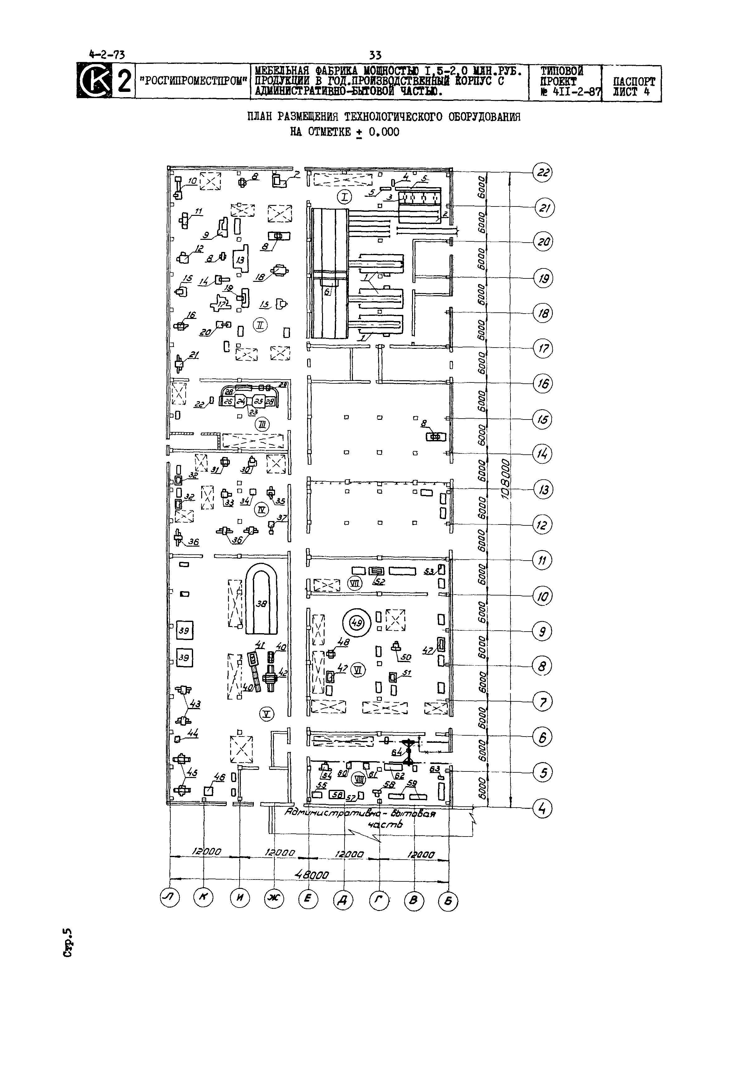
Мебельная фабрика мощностью 1,5 - 2,0 млн. рублей продукции в годОбозначение: | Типовой проект 411-2-87 | Обозначение англ: | 411-2-87 | Статус: | действует | Название рус.: | Мебельная фабрика мощностью 1,5 - 2,0 млн. рублей продукции в год | Дата добавления в базу: | 01.10.2014 | Дата актуализации: | 05.05.2017 | Расположен в: |
| Список изменений: | |
       
Текстовое изменение поправка

Текстовое изменение № 2 от 01.07.1987
 
Текстовое изменение № 3 от 01.03.1989
 
|