Информационная система
«Ёшкин Кот»

Скачать базу одним архивом
Скачать обновления
История создания базы
Карта сайта

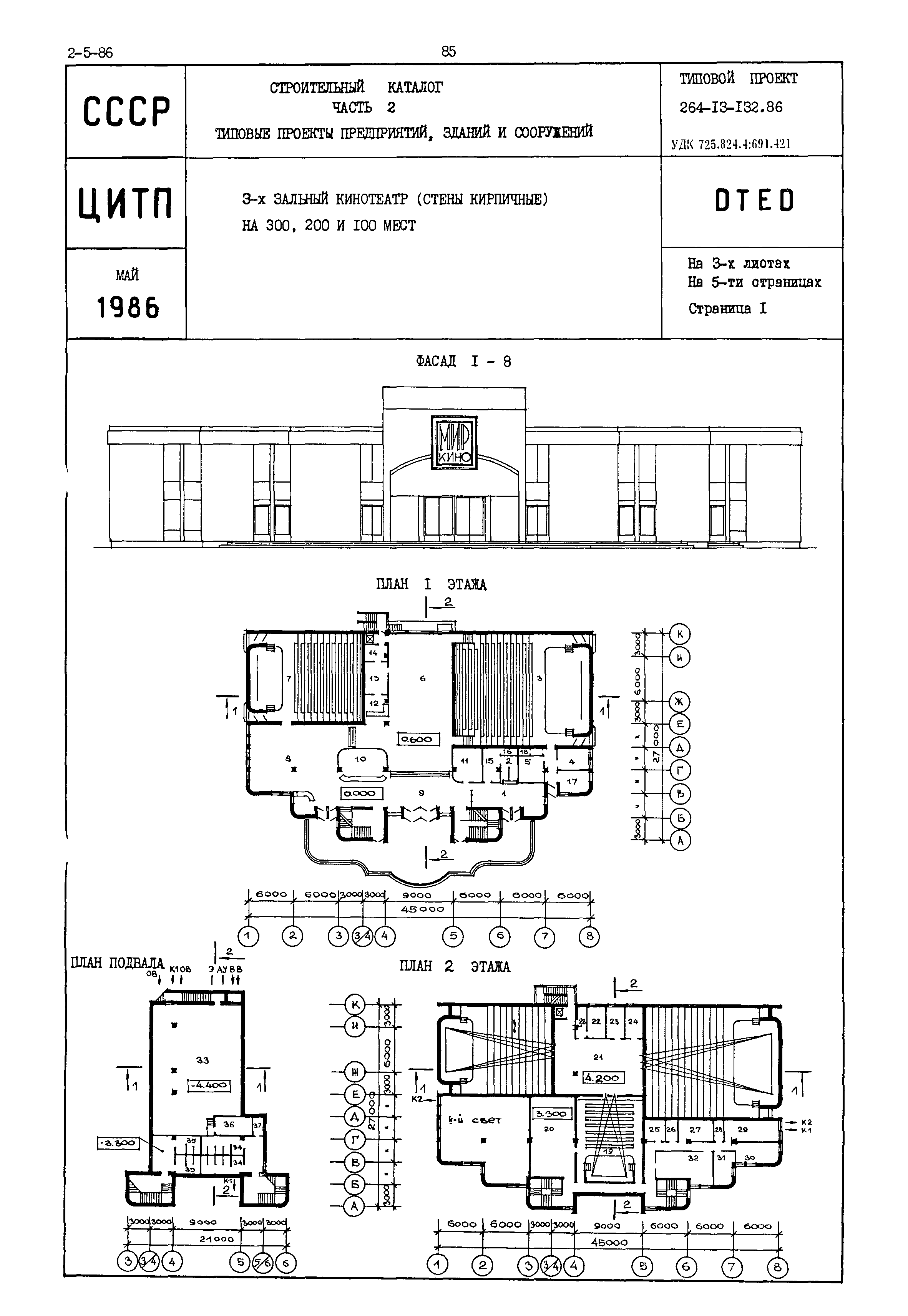
Скачать Типовой проект 264-13-132.86 Трехзальный кинотеатр (стены кирпичные) на 300, 200 и 100 мест

Дата актуализации: 10.08.2017

Типовой проект 264-13-132.86

Трехзальный кинотеатр (стены кирпичные) на 300, 200 и 100 мест

Обозначение: Типовой проект 264-13-132.86
Обозначение англ: 264-13-132.86
Статус:действует
Название рус.:Трехзальный кинотеатр (стены кирпичные) на 300, 200 и 100 мест
Дата добавления в базу:01.10.2014
Дата актуализации:05.05.2017
Расположен в:Техническая документация
Типовой проект 264-13-132.86Типовой проект 264-13-132.86Типовой проект 264-13-132.86Типовой проект 264-13-132.86Типовой проект 264-13-132.86

© 2013 Ёшкин Кот :-) Карта сайта