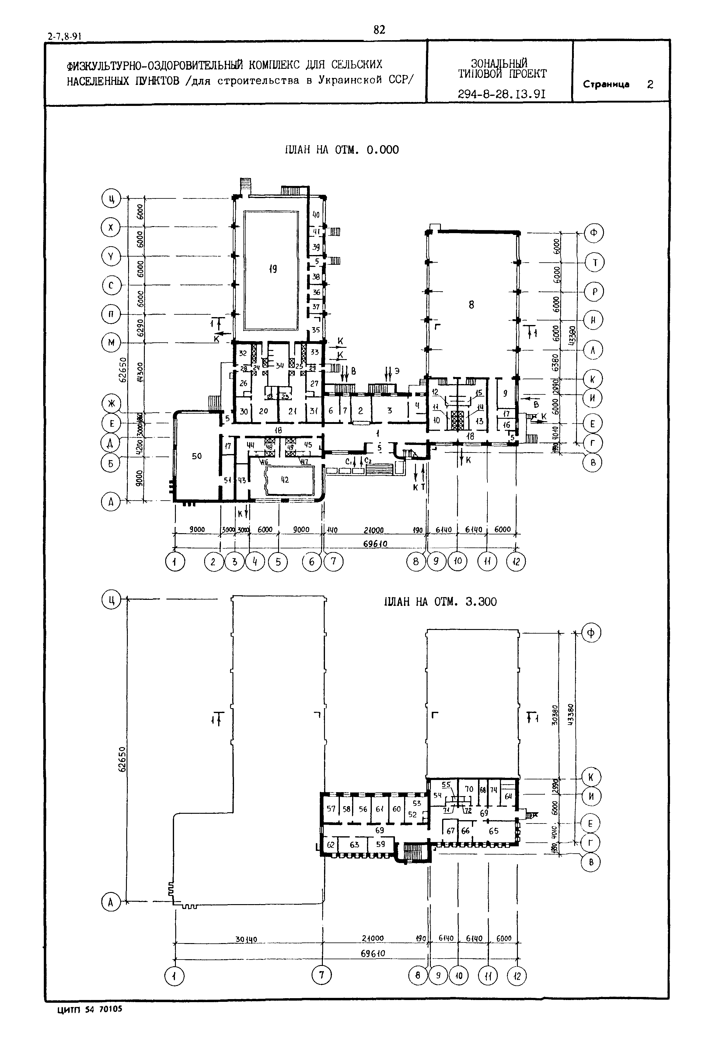
Скачать Типовой проект 294-8-28.13.91 Физкультурно-оздоровительный комплекс для сельских населенных пунктов (для строительства в Украинской ССР)Дата актуализации: 10.08.2017 Типовой проект 294-8-28.13.91
Физкультурно-оздоровительный комплекс для сельских населенных пунктов (для строительства в Украинской ССР)Обозначение: | Типовой проект 294-8-28.13.91 | Обозначение англ: | 294-8-28.13.91 | Статус: | действует | Название рус.: | Физкультурно-оздоровительный комплекс для сельских населенных пунктов (для строительства в Украинской ССР) | Дата добавления в базу: | 01.10.2014 | Дата актуализации: | 05.05.2017 | Расположен в: |
|
     
|