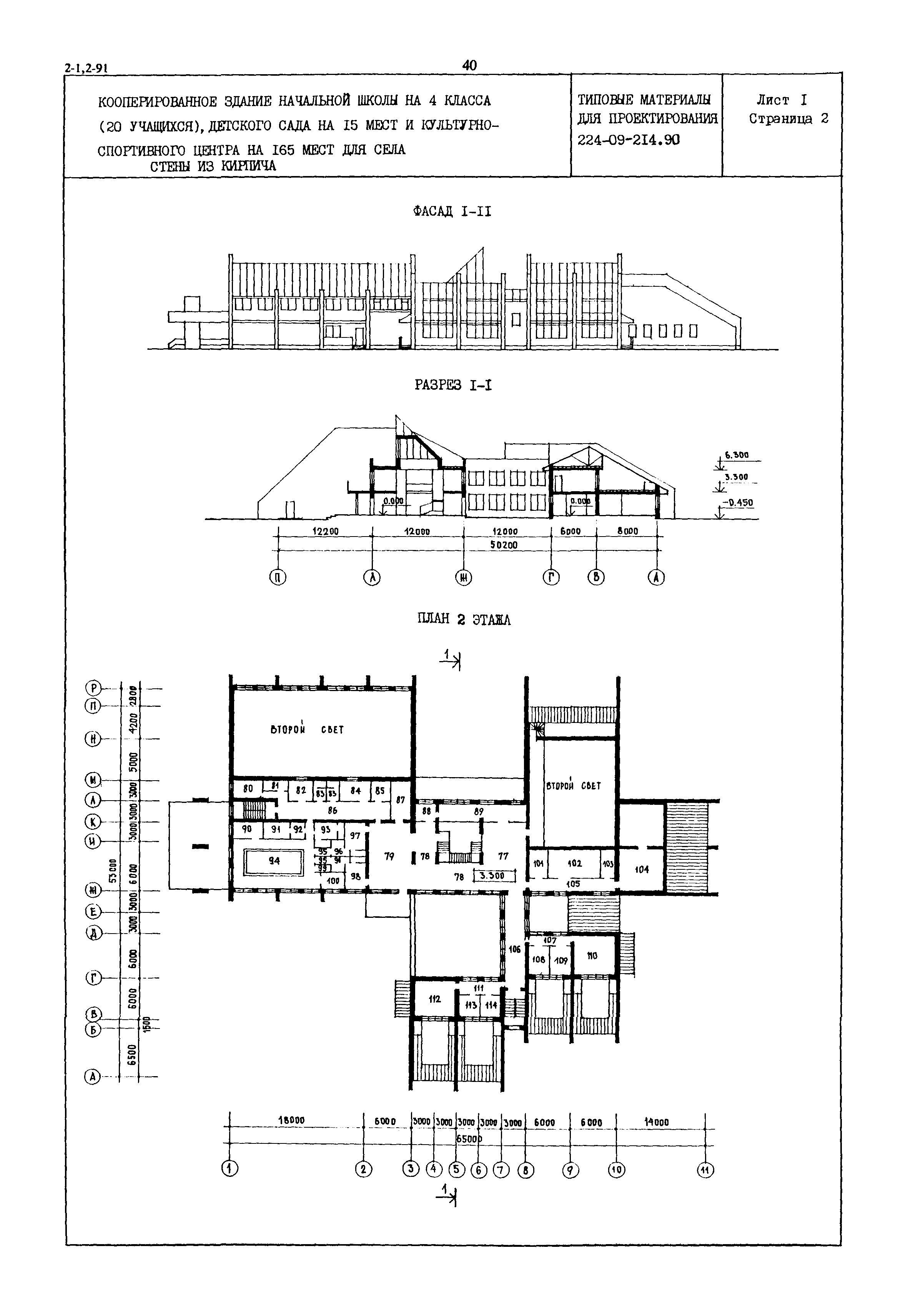
Скачать Типовые материалы для проектирования 224-09-214.90 Кооперированное здание начальной школы на 4 класса (20 учащихся), детского сада на 15 мест и культурно-спортивного центра на 165 мест для села. Стены из кирпичаДата актуализации: 10.08.2017 Типовые материалы для проектирования 224-09-214.90
Кооперированное здание начальной школы на 4 класса (20 учащихся), детского сада на 15 мест и культурно-спортивного центра на 165 мест для села. Стены из кирпича| Обозначение: | Типовые материалы для проектирования 224-09-214.90 | | Обозначение англ: | 224-09-214.90 | | Статус: | cправочные материалы, мп, тпр | | Название рус.: | Кооперированное здание начальной школы на 4 класса (20 учащихся), детского сада на 15 мест и культурно-спортивного центра на 165 мест для села. Стены из кирпича | | Дата добавления в базу: | 01.10.2014 | | Дата актуализации: | 05.05.2017 | | Дата введения: | 05.09.1990 | | Расположен в: |
|
    
|