Скачать Типовой проект 901-3-242.88 Блок микрофильтров для станции очистки воды поверхностных источников мутностью до 1500 мг/л производительностью 8,0 тыс. куб. м/суткиДата актуализации: 10.08.2017 Типовой проект 901-3-242.88
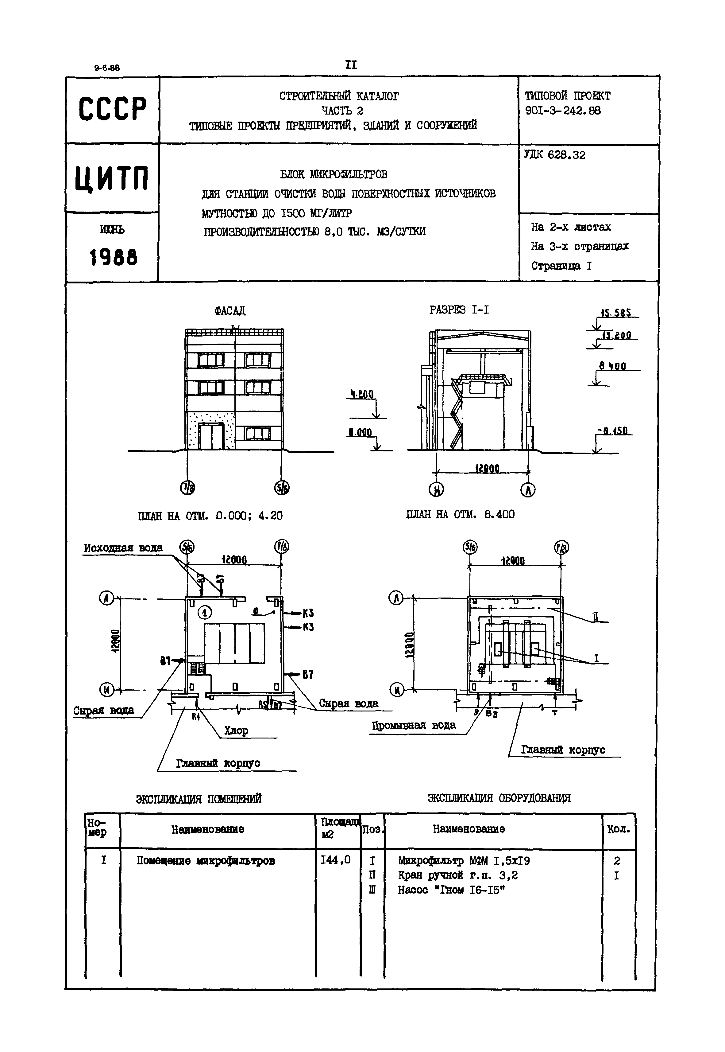
Блок микрофильтров для станции очистки воды поверхностных источников мутностью до 1500 мг/л производительностью 8,0 тыс. куб. м/суткиОбозначение: | Типовой проект 901-3-242.88 | Обозначение англ: | 901-3-242.88 | Статус: | не определен законодательством | Название рус.: | Блок микрофильтров для станции очистки воды поверхностных источников мутностью до 1500 мг/л производительностью 8,0 тыс. куб. м/сутки | Дата добавления в базу: | 01.09.2013 | Дата актуализации: | 05.05.2017 | Дата введения: | 09.03.1988 | Расположен в: |
| Список изменений: | |
  
Текстовое изменение Поправка от 01.05.2004
|