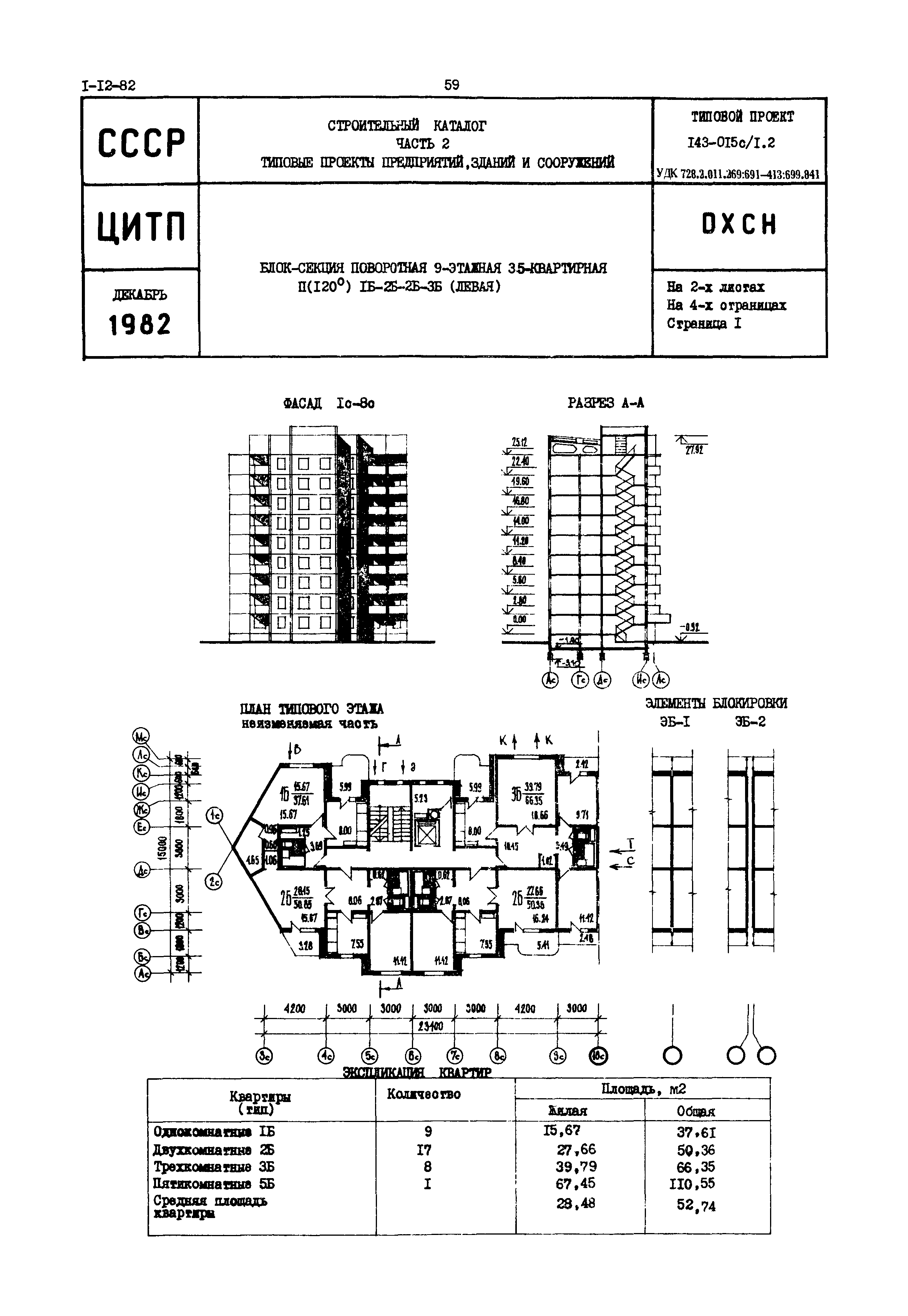
Скачать Типовой проект 143-015с/1.2 Блок-секция поворотная 9-этажная 36-квартирная II (120 градусов Цельсия) 1Б-2Б-3Б-3А (левая)Дата актуализации: 10.08.2017 Типовой проект 143-015с/1.2
Блок-секция поворотная 9-этажная 36-квартирная II (120 градусов Цельсия) 1Б-2Б-3Б-3А (левая)Обозначение: | Типовой проект 143-015с/1.2 | Обозначение англ: | 143-015с/1.2 | Статус: | действует | Название рус.: | Блок-секция поворотная 9-этажная 36-квартирная II (120 градусов Цельсия) 1Б-2Б-3Б-3А (левая) | Дата добавления в базу: | 01.09.2013 | Дата актуализации: | 05.05.2017 | Расположен в: |
| Список изменений: | |
   
Текстовое изменение № 5 от 01.01.1990
 
Текстовое изменение № 6 от 01.07.1992

|