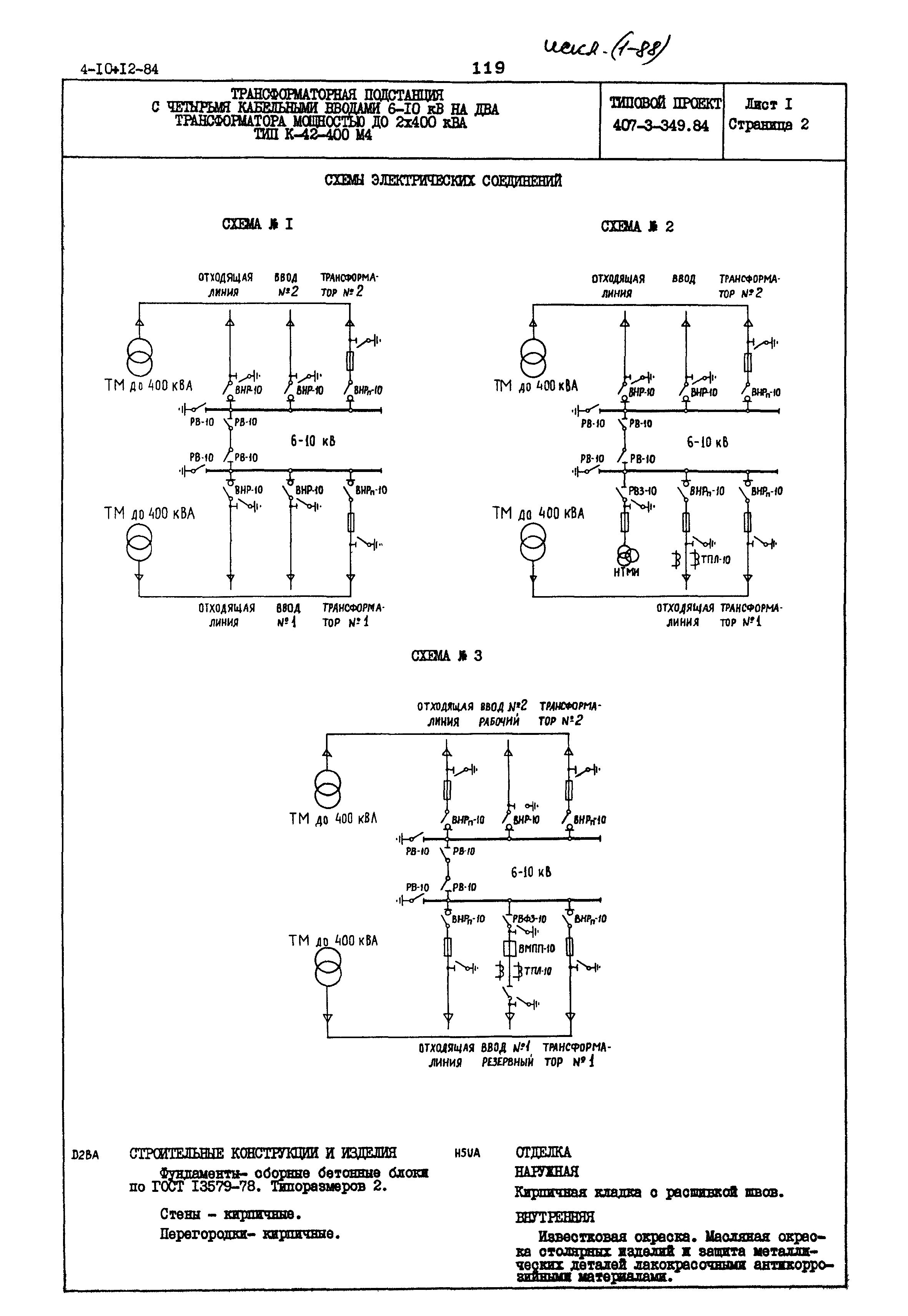
Скачать Типовой проект 407-3-349.84 Трансформаторная подстанция с четырьмя кабельными вводами 6 - 10 кВ на два трансформатора мощностью до 2х400 кВА. Тип К-42-400 м4Дата актуализации: 10.08.2017 Типовой проект 407-3-349.84
Трансформаторная подстанция с четырьмя кабельными вводами 6 - 10 кВ на два трансформатора мощностью до 2х400 кВА. Тип К-42-400 м4Обозначение: | Типовой проект 407-3-349.84 | Обозначение англ: | 407-3-349.84 | Статус: | не действует | Название рус.: | Трансформаторная подстанция с четырьмя кабельными вводами 6 - 10 кВ на два трансформатора мощностью до 2х400 кВА. Тип К-42-400 м4 | Дата добавления в базу: | 01.09.2013 | Дата актуализации: | 05.05.2017 | Дата введения: | 01.01.1988 | Расположен в: |
|
  
|