Скачать Типовой проект 165-102-27с/1 Общежитие на 243 человекаДата актуализации: 10.08.2017 Типовой проект 165-102-27с/1
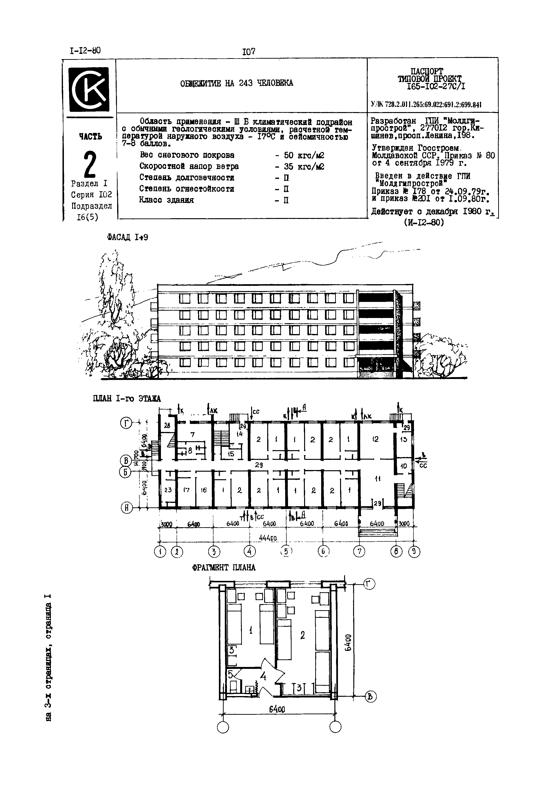
Общежитие на 243 человекаОбозначение: | Типовой проект 165-102-27с/1 | Обозначение англ: | 165-102-27с/1 | Статус: | действует | Название рус.: | Общежитие на 243 человека | Дата добавления в базу: | 01.09.2013 | Дата актуализации: | 05.05.2017 | Дата введения: | 01.09.1980 | Расположен в: |
| Список изменений: | |
  
Текстовое изменение № 1 от 01.01.1990
  
Текстовое изменение № 2 от 01.01.1993
    
|