Скачать Типовой проект 164-89-48/1 Пятиэтажное общежитие на 214 местДата актуализации: 10.08.2017 Типовой проект 164-89-48/1
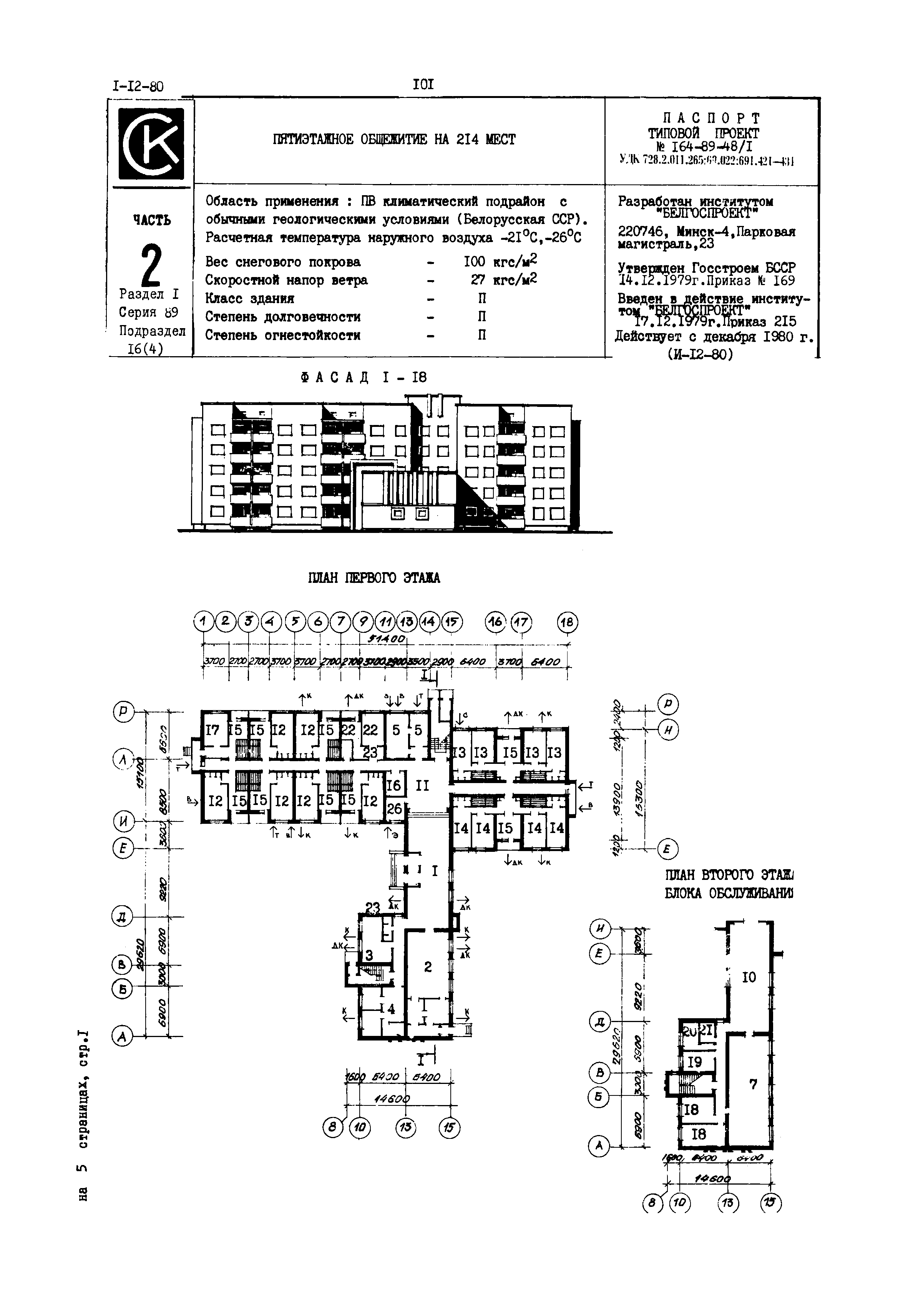
Пятиэтажное общежитие на 214 местОбозначение: | Типовой проект 164-89-48/1 | Обозначение англ: | 164-89-48/1 | Статус: | действует | Название рус.: | Пятиэтажное общежитие на 214 мест | Дата добавления в базу: | 01.09.2013 | Дата актуализации: | 05.05.2017 | Расположен в: |
|
   
|