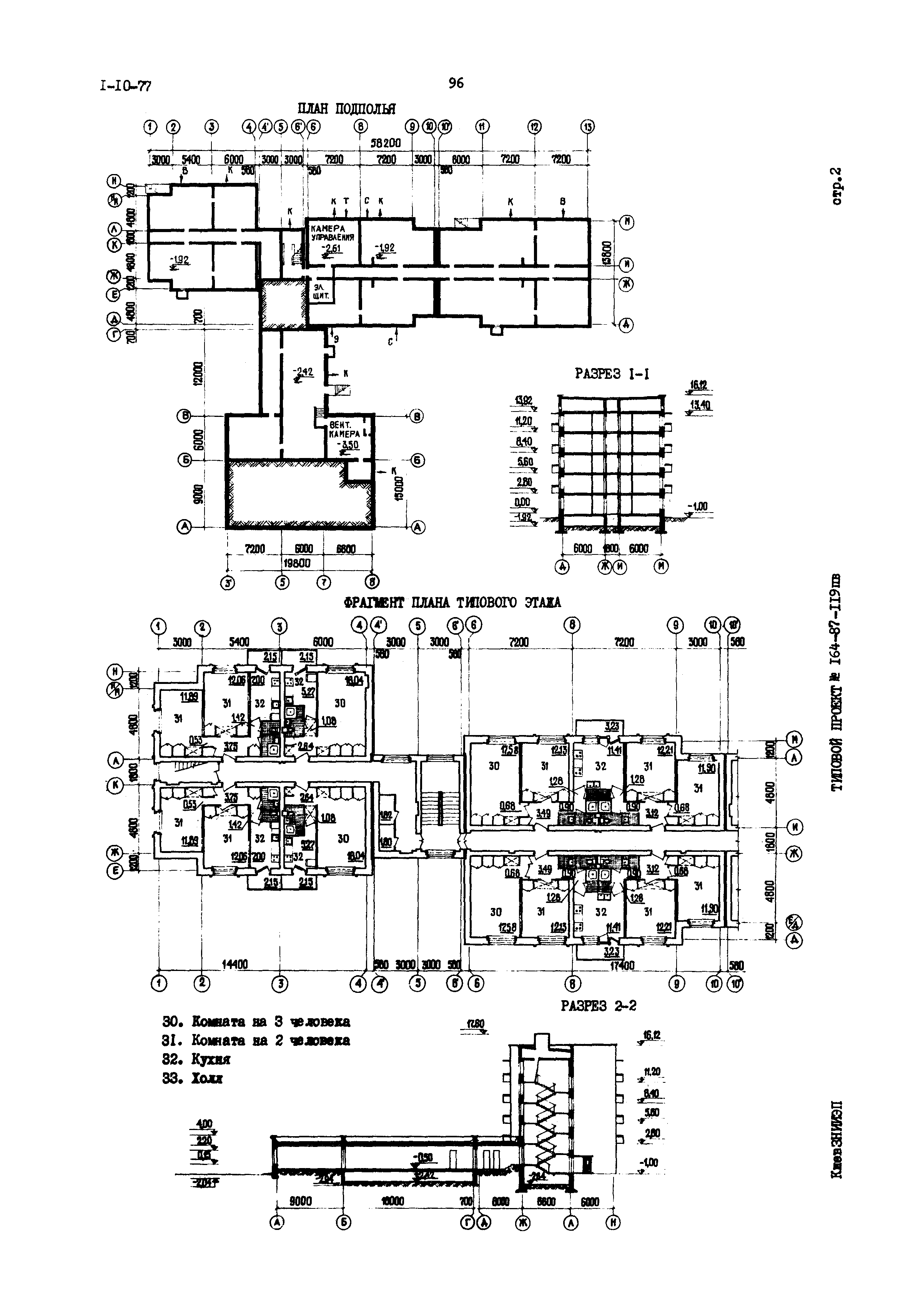
Скачать Типовой проект 164-87-119пв Унифицированный типовой проект пятиэтажного общежития для рабочих и служащих на 232 местаДата актуализации: 10.08.2017 Типовой проект 164-87-119пв
Унифицированный типовой проект пятиэтажного общежития для рабочих и служащих на 232 местаОбозначение: | Типовой проект 164-87-119пв | Обозначение англ: | 164-87-119пв | Статус: | действует | Название рус.: | Унифицированный типовой проект пятиэтажного общежития для рабочих и служащих на 232 места | Дата добавления в базу: | 01.09.2013 | Дата актуализации: | 05.05.2017 | Дата введения: | 30.12.1976 | Расположен в: |
| Список изменений: | |
    
|