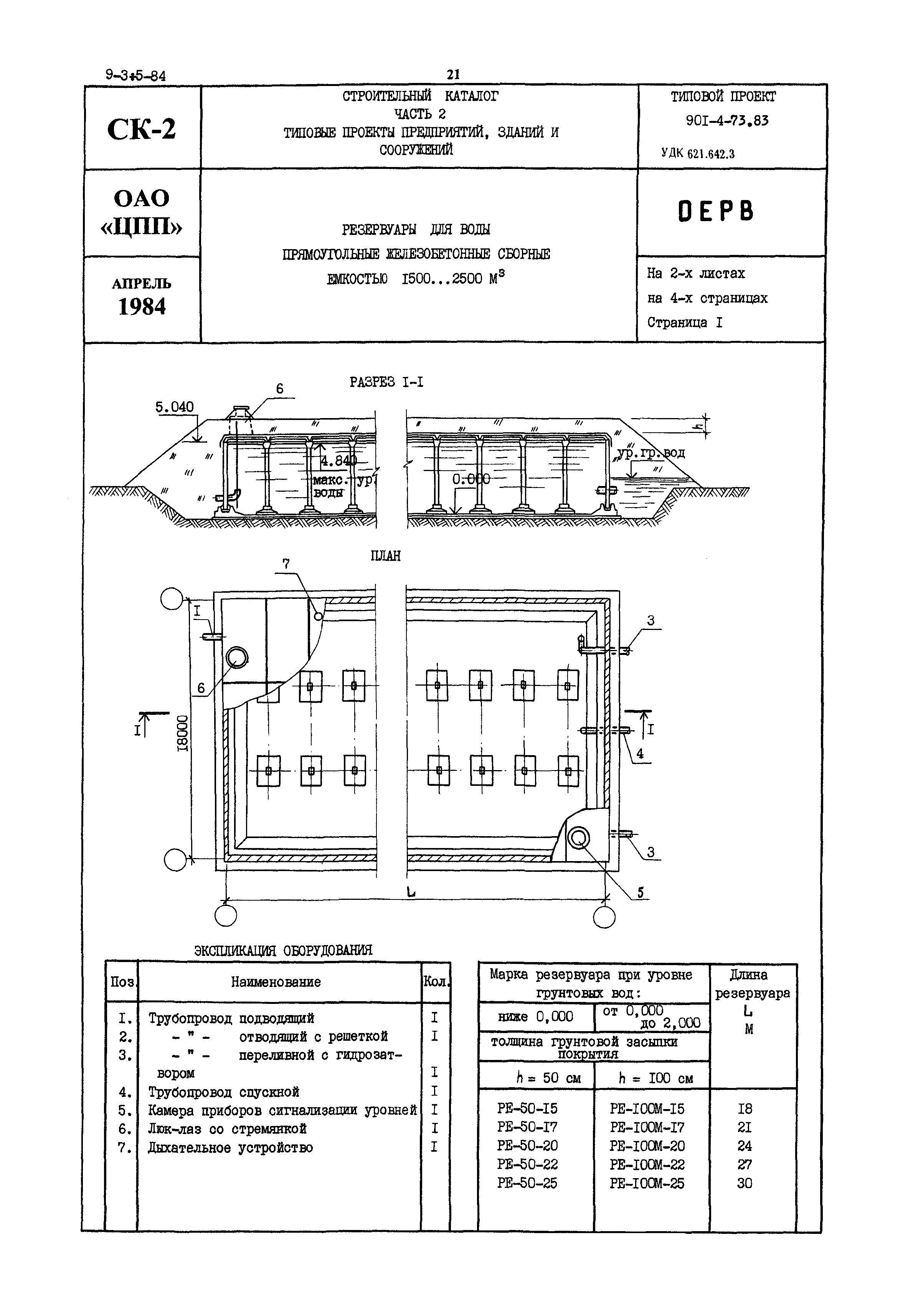
Скачать Типовой проект 901-4-73.83 Резервуары для воды прямоугольные железобетонные сборные емкостью от 1500 до 2500 куб. мДата актуализации: 10.08.2017 Типовой проект 901-4-73.83
Резервуары для воды прямоугольные железобетонные сборные емкостью от 1500 до 2500 куб. мОбозначение: | Типовой проект 901-4-73.83 | Обозначение англ: | 901-4-73.83 | Статус: | не определен законодательством | Название рус.: | Резервуары для воды прямоугольные железобетонные сборные емкостью от 1500 до 2500 куб. м | Дата добавления в базу: | 01.09.2013 | Дата актуализации: | 05.05.2017 | Дата введения: | 19.12.1983 | Расположен в: |
|
  
|