
ГОСУДАРСТВЕННЫЙ СТАНДАРТ СОЮЗА ССР
ЧАСТИ СОЕДИНИТЕЛЬНЫЕ ЧУГУННЫЕ,
ИЗГОТОВЛЕННЫЕ ЛИТЬЕМ В ПЕСЧАНЫЕ
ФОРМЫ ДЛЯ ТРУБОПРОВОДОВ
ТЕХНИЧЕСКИЕ УСЛОВИЯ
ГОСТ 5525-88
КОМИТЕТ СТАНДАРТИЗАЦИИ И МЕТРОЛОГИИ СССР
Москва
ГОСУДАРСТВЕННЫЙ СТАНДАРТ СОЮЗА ССР
|
ЧАСТИ СОЕДИНИТЕЛЬНЫЕ ЧУГУННЫЕ, Технические условия Pig iron connecting parts manufactured |
ГОСТ |
Срок действия с 01.01.90
до 01.01.95
1.1 Наименования и обозначения раструбных (черт. 1) и фланцевых (черт. 2) соединительных частей устанавливаются в соответствии с табл. 1.
Таблица 1
|
Наименование |
Эскиз |
Обозначения на схемах |
Обозначения в документах |
Чертеж |
|
1. Раструбное и фланцевое соединение |
|
|
|
|
|
2. Тройник фланцевый |
|
|
ТФ |
|
|
3. Тройник раструбный |
|
|
ТР |
|
|
4. Тройник раструб-фланец |
|
|
ТРФ |
|
|
5. Крест фланцевый |
|
|
КФ |
|
|
6. Крест раструбный |
|
|
КР |
|
|
7. Крест раструб - фланец |
|
|
КРФ |
|
|
8. Выпуск фланцевый |
|
|
ВФ |
|
|
9. Выпуск раструбный |
|
|
ВР |
|
|
10. Колено фланцевое |
|
|
УФ |
|
|
11. Колено раструбное |
|
|
УР |
|
|
12. Колено раструб - гладкий конец |
|
|
УРГ |
|
|
13. Отвод раструбный |
|
|
ОР |
|
|
14. Отвод раструб - гладкий конец |
|
|
ОРГ |
|
|
15. Переход фланцевый |
|
|
ХФ |
|
|
16. Переход раструб - фланец |
|
|
ХРФ |
|
|
17. Переход раструбный |
|
|
ХР |
|
|
18. Переход раструб - гладкий конец |
|
|
ХРГ |
|
|
19. Патрубок фланец - раструб |
|
|
ПФР |
|
|
20. Патрубок фланец - гладкий конец |
|
|
ПФГ |
|
|
21. Двойной раструб |
|
|
ДР |
|
|
22. Муфта надвижная |
|
|
МН |
|
|
23. Муфта свертная |
|
|
МС |
|
|
24. Заглушка фланцевая |
|
|
ЗФ |
|
|
25. Седелка фланцевая |
|
|
СФ |
|
|
26. Седелка с резьбой |
|
|
СР |
|
|
27. Пожарная подставка раструбная |
|
|
ППР |
|
|
28. Тройник раструб-фланец с пожарной подставкой |
|
|
ППТРФ |
|
|
29. Тройник фланцевый с пожарной подставкой |
|
|
ППТФ |
|
|
30. Крест фланец - раструб с пожарной подставкой |
|
|
ППКРФ |
|
|
31. Крест фланцевый с пожарной подставкой |
|
|
ППКФ |
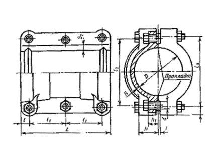
1.2. Размеры и масса раструбов приведены в табл. 2 и на черт. 1. Размеры и масса фланцев приведены в табл. 3 и на черт. 2. Форма и размеры соединительных частей приведены в табл. 4 - 24 и на черт. 3 - 32.
Примечания:
1. Размеры соединительных частей и допускаемые отклонения на них предусмотрены для изделий без покрытия.
2. Соединительные части с условными проходами 350 и 450 мм при новом проектировании не применять.
Раструбное соединение

Черт. 1
Фланцевое соединение

Черт. 2
Таблица 2
Размеры, мм
|
Условный проход D0 |
Dн |
Dр |
D1 |
S2 |
b |
c |
f |
h |
l1 |
l2 |
l3 |
l4 |
P |
R |
R1 |
Масса раструба, кг |
|
65 |
81 |
93 |
99 |
25 |
25 |
3 |
9,0 |
8 |
65 |
10 |
40 |
20 |
1,0 |
21,5 |
33,0 |
4,4 |
|
80 |
98 |
110 |
116 |
27 |
27 |
3 |
9,0 |
8 |
65 |
10 |
40 |
20 |
1,0 |
21,5 |
37,0 |
5,2 |
|
100 |
118 |
131 |
137 |
28 |
27 |
5 |
9,5 |
8 |
65 |
15 |
40 |
20 |
1,0 |
22,5 |
38,0 |
6,6 |
|
125 |
144 |
157 |
163 |
29 |
28 |
5 |
9,5 |
8 |
65 |
15 |
45 |
20 |
1,0 |
23,0 |
52,0 |
8,9 |
|
150 |
170 |
183 |
189 |
30 |
30 |
5 |
9,5 |
8 |
70 |
15 |
45 |
20 |
1,0 |
23,5 |
48,0 |
10,7 |
|
200 |
222 |
235 |
241 |
32 |
32 |
5 |
9,5 |
8 |
70 |
15 |
50 |
20 |
1,0 |
25,0 |
57,0 |
14,6 |
|
250 |
274 |
287 |
294 |
34 |
34 |
5 |
10,0 |
8 |
75 |
15 |
50 |
20 |
1,0 |
26,5 |
50 |
20,4 |
|
300 |
326 |
339 |
346 |
36 |
36 |
6 |
10,0 |
8 |
75 |
20 |
55 |
30 |
1,5 |
28,0 |
64 |
26,7 |
|
350 |
378 |
391 |
398 |
38 |
38 |
6 |
10,0 |
10 |
80 |
20 |
60 |
30 |
1,5 |
29,0 |
73 |
33,9 |
|
400 |
429 |
442 |
449 |
40 |
40 |
6 |
10,0 |
10 |
80 |
20 |
65 |
30 |
1,5 |
30,5 |
80 |
41,9 |
|
450 |
480 |
494 |
501 |
41 |
41 |
6 |
10,5 |
10 |
85 |
20 |
70 |
30 |
1,5 |
32,0 |
89 |
49,8 |
|
500 |
532 |
546 |
553 |
43 |
42 |
6 |
10,5 |
10 |
85 |
20 |
75 |
30 |
1,5 |
33,5 |
99 |
61,0 |
|
600 |
635 |
650 |
657 |
46 |
43 |
6 |
11,0 |
10 |
90 |
25 |
80 |
40 |
2,0 |
36,5 |
100 |
83,0 |
|
700 |
738 |
753 |
760 |
50 |
44 |
7 |
11,0 |
10 |
95 |
25 |
85 |
40 |
2,0 |
39,0 |
108 |
112,2 |
|
800 |
842 |
857 |
865 |
54 |
45 |
7 |
11,5 |
12 |
100 |
30 |
90 |
50 |
2,5 |
42,0 |
110 |
143,3 |
|
900 |
945 |
960 |
968 |
58 |
46 |
8 |
11,5 |
12 |
105 |
30 |
100 |
50 |
2,5 |
44,5 |
135 |
184,6 |
|
1000 |
1048 |
1064 |
1072 |
62 |
48 |
8 |
12,0 |
12 |
110 |
35 |
110 |
50 |
2,5 |
47,0 |
151 |
238,5 |
|
1200 |
1256 |
1273 |
1281 |
70 |
50 |
8 |
12,5 |
12 |
115 |
35 |
130 |
50 |
2,5 |
52,5 |
165 |
319,5 |
Примечания:
1. У соединительных частей переход цилиндра в раструб можно выполнить в виде уступа (вариант I) или же с уклоном (вариант II).
2. Толщина стенок соединительных частей S1 больше толщины стенок труб S. Утолщение стенок достигается за счет уменьшения внутреннего диаметра, как показано на чертеже штрих-пунктирной линией.
Таблица 3
Размеры, мм
|
D0 |
b |
f |
r |
d |
D1 |
D2 |
Резиновая прокладка |
D5 |
a |
Болты |
Масса фланца, кг |
||
|
D3 |
D4 |
кол-во |
диаметр |
||||||||||
|
65 |
21 |
40 |
6 |
19 |
140 |
180 |
69 |
132 |
132 |
3 |
4 |
М16 |
3,30 |
|
80 |
22 |
43 |
6 |
19 |
160 |
200 |
80 |
138 |
138 |
3 |
4 |
М16 |
4,03 |
|
100 |
22 |
43 |
6 |
19 |
180 |
220 |
105 |
158 |
158 |
3 |
4 |
М16 |
4,53 |
|
125 |
24 |
43 |
6 |
19 |
210 |
250 |
130 |
188 |
188 |
3 |
8 |
М16 |
6,00 |
|
150 |
24 |
43 |
6 |
23 |
240 |
285 |
156 |
212 |
212 |
3 |
8 |
М20 |
7,38 |
|
200 |
26 |
45 |
8 |
23 |
295 |
340 |
206 |
268 |
268 |
3 |
8 |
М20 |
10,30 |
|
250 |
28 |
45 |
8 |
23 |
350 |
395 |
256 |
320 |
320 |
3 |
12 |
М20 |
13,30 |
|
300 |
28 |
45 |
8 |
23 |
400 |
445 |
306 |
370 |
370 |
4 |
12 |
М20 |
15,30 |
|
350 |
30 |
50 |
8 |
23 |
460 |
505 |
356 |
430 |
430 |
4 |
16 |
М20 |
20,10 |
|
400 |
32 |
50 |
10 |
26 |
515 |
565 |
406 |
482 |
482 |
4 |
16 |
M22 |
25,40 |
|
450 |
32 |
50 |
10 |
26 |
565 |
615 |
456 |
530 |
530 |
4 |
20 |
M22 |
27,60 |
|
500 |
34 |
50 |
10 |
26 |
620 |
670 |
506 |
585 |
585 |
4 |
20 |
M22 |
32,90 |
|
600 |
36 |
55 |
10 |
31 |
725 |
780 |
606 |
685 |
685 |
5 |
20 |
M27 |
43,00 |
|
700 |
40 |
55 |
10 |
31 |
840 |
895 |
710 |
800 |
800 |
5 |
24 |
M27 |
58,10 |
|
800 |
44 |
60 |
10 |
34 |
950 |
1015 |
810 |
905 |
905 |
5 |
24 |
M30 |
80,10 |
|
900 |
46 |
60 |
10 |
34 |
1050 |
1115 |
910 |
1005 |
1005 |
5 |
28 |
M30 |
93,50 |
|
1000 |
50 |
65 |
10 |
37 |
1160 |
1230 |
1010 |
1115 |
1115 |
5 |
28 |
М30 |
119,00 |
|
1200 |
56 |
70 |
15 |
43 |
1380 |
1455 |
1210 |
1330 |
1330 |
5 |
32 |
M40 |
167,00 |
Примечания:
1. Болтовые отверстия на фланцах соединительных частей должны быть расположены так, чтобы их не было ни на вертикальной, ни на горизонтальной оси фланца.
2. Толщина стенок соединительных частей S1 больше толщины стенок труб S. Утолщение стенок достигается за счет уменьшения внутреннего диаметра, как показано на чертеже штрих-пунктирной линией.
3. Допускается выполнение фланцев с выступами согласно размерам Ds и а.
Тройник фланцевый

Обозначение фланцевого тройника со стволом условного прохода 400 мм и с отростком условного прохода 150 мм:
Тройник ТФ 400´150 ГОСТ 5525-88
Черт. 3
Тройник раструбный

Обозначение раструбного тройника со стволом условного прохода 500 мм и с отростком условного прохода 150 мм:
Тройник ТР 500´150 ГОСТ 5525-88
Черт. 4
Тройник раструб - фланец

Обозначение тройника раструба - фланца со стволом условного прохода 100 мм и с отростком условного прохода 80 мм:
Тройник ТРФ 100´80 ГОСТ 5525-88
Черт. 5
Крест фланцевый

Обозначение фланцевого креста со стволом условного прохода 600 мм и с отростком условного прохода 300 мм:
Крест КФ 600´300 ГОСТ 5525-88
Черт. 6
Крест раструбный

Обозначение раструбного креста со стволом условного прохода 600 мм и с отростком условного прохода 250 мм:
Крест КР 600´250 ГОСТ 5525-88
Черт. 7
Крест раструб - фланец

Обозначение креста раструба - фланца со стволом условного прохода 400 мм и с отростком условного прохода 125 мм:
Крест КРФ 400´125 ГОСТ 5525-88
Черт. 8
Примечание. На чертежах ось ствола расположена горизонтально, ось отростков - вертикально.
Таблица 4
Размеры, мм
|
Условный проход ствола D0 |
Обозначение размеров |
Условный проход отростка d0 |
Наружный диаметр ствола Dн |
Толщина стенки ствола S |
|||||||||||||||||
|
65 |
80 |
100 |
125 |
150 |
200 |
250 |
300 |
350 |
400 |
450 |
500 |
600 |
700 |
800 |
900 |
1000 |
1200 |
||||
|
65 |
l |
140 |
|
|
|
|
|
|
|
|
|
|
|
|
|
|
|
|
|
81 |
9 |
|
l1 |
140 |
|
|
|
|
|
|
|
|
|
|
|
|
|
|
|
|
|
|||
|
l2 |
115 |
|
|
|
|
|
|
|
|
|
|
|
|
|
|
|
|
|
|||
|
l3 |
115 |
|
|
|
|
|
|
|
|
|
|
|
|
|
|
|
|
|
|||
|
S1 |
9 |
|
|
|
|
|
|
|
|
|
|
|
|
|
|
|
|
|
|||
|
80 |
l |
150 |
150 |
|
|
|
|
|
|
|
|
|
|
|
|
|
|
|
|
98 |
10 |
|
l1 |
150 |
150 |
|
|
|
|
|
|
|
|
|
|
|
|
|
|
|
|
|||
|
l2 |
125 |
125 |
|
|
|
|
|
|
|
|
|
|
|
|
|
|
|
|
|||
|
l3 |
115 |
125 |
|
|
|
|
|
|
|
|
|
|
|
|
|
|
|
|
|||
|
S1 |
9 |
10 |
|
|
|
|
|
|
|
|
|
|
|
|
|
|
|
|
|||
|
100 |
l |
200 |
200 |
200 |
|
|
|
|
|
|
|
|
|
|
|
|
|
|
|
118 |
10 |
|
l1 |
150 |
175 |
200 |
|
|
|
|
|
|
|
|
|
|
|
|
|
|
|
|||
|
l2 |
125 |
125 |
150 |
|
|
|
|
|
|
|
|
|
|
|
|
|
|
|
|||
|
l3 |
125 |
125 |
150 |
|
|
|
|
|
|
|
|
|
|
|
|
|
|
|
|||
|
S1 |
9 |
10 |
10 |
|
|
|
|
|
|
|
|
|
|
|
|
|
|
|
|||
|
125 |
l |
225 |
225 |
225 |
225 |
|
|
|
|
|
|
|
|
|
|
|
|
|
|
144 |
11 |
|
l1 |
175 |
175 |
175 |
225 |
|
|
|
|
|
|
|
|
|
|
|
|
|
|
|||
|
l2 |
140 |
150 |
150 |
200 |
|
|
|
|
|
|
|
|
|
|
|
|
|
|
|||
|
l3 |
140 |
150 |
150 |
200 |
|
|
|
|
|
|
|
|
|
|
|
|
|
|
|||
|
S1 |
9 |
10 |
10 |
11 |
|
|
|
|
|
|
|
|
|
|
|
|
|
|
|||
|
150 |
l |
250 |
250 |
250 |
250 |
250 |
|
|
|
|
|
|
|
|
|
|
|
|
|
170 |
11 |
|
l1 |
200 |
200 |
200 |
200 |
250 |
|
|
|
|
|
|
|
|
|
|
|
|
|
|||
|
l2 |
140 |
150 |
150 |
200 |
200 |
|
|
|
|
|
|
|
|
|
|
|
|
|
|||
|
l3 |
150 |
150 |
150 |
200 |
200 |
|
|
|
|
|
|
|
|
|
|
|
|
|
|||
|
S1 |
9 |
10 |
10 |
11 |
11 |
|
|
|
|
|
|
|
|
|
|
|
|
|
|||
|
200 |
l |
300 |
300 |
300 |
300 |
300 |
300 |
|
|
|
|
|
|
|
|
|
|
|
|
222 |
13 |
|
l1 |
225 |
225 |
225 |
225 |
225 |
300 |
|
|
|
|
|
|
|
|
|
|
|
|
|||
|
l2 |
140 |
150 |
200 |
200 |
200 |
250 |
|
|
|
|
|
|
|
|
|
|
|
|
|||
|
l3 |
200 |
200 |
200 |
200 |
200 |
250 |
|
|
|
|
|
|
|
|
|
|
|
|
|||
|
S1 |
9 |
10 |
10 |
11 |
11 |
13 |
|
|
|
|
|
|
|
|
|
|
|
|
|||
|
250 |
l |
|
300 |
300 |
300 |
300 |
300 |
300 |
|
|
|
|
|
|
|
|
|
|
|
274 |
14 |
|
l1 |
|
250 |
250 |
250 |
250 |
275 |
300 |
|
|
|
|
|
|
|
|
|
|
|
|||
|
l2 |
|
150 |
200 |
200 |
200 |
250 |
250 |
|
|
|
|
|
|
|
|
|
|
|
|||
|
l3 |
|
200 |
200 |
250 |
250 |
250 |
250 |
|
|
|
|
|
|
|
|
|
|
|
|||
|
S1 |
|
10 |
10 |
11 |
11 |
13 |
14 |
|
|
|
|
|
|
|
|
|
|
|
|||
|
300 |
l |
|
300 |
300 |
300 |
300 |
300 |
300 |
300 |
|
|
|
|
|
|
|
|
|
|
326 |
15 |
|
l1 |
|
275 |
275 |
275 |
275 |
300 |
300 |
300 |
|
|
|
|
|
|
|
|
|
|
|||
|
l2 |
|
150 |
200 |
200 |
200 |
250 |
250 |
300 |
|
|
|
|
|
|
|
|
|
|
|||
|
l3 |
|
250 |
250 |
250 |
250 |
250 |
250 |
300 |
|
|
|
|
|
|
|
|
|
|
|||
|
S1 |
|
10 |
10 |
11 |
11 |
13 |
14 |
15 |
|
|
|
|
|
|
|
|
|
|
|||
|
350 |
l |
|
|
300 |
300 |
300 |
300 |
300 |
300 |
350 |
|
|
|
|
|
|
|
|
|
378 |
16 |
|
l1 |
|
|
300 |
300 |
300 |
300 |
325 |
325 |
350 |
|
|
|
|
|
|
|
|
|
|||
|
l2 |
|
|
200 |
200 |
200 |
250 |
250 |
300 |
300 |
|
|
|
|
|
|
|
|
|
|||
|
l3 |
|
|
250 |
300 |
300 |
300 |
300 |
300 |
300 |
|
|
|
|
|
|
|
|
|
|||
|
S1 |
|
|
10 |
11 |
11 |
13 |
14 |
15 |
16 |
|
|
|
|
|
|
|
|
|
|||
|
400 |
l |
|
|
300 |
300 |
300 |
300 |
300 |
400 |
400 |
400 |
|
|
|
|
|
|
|
|
429 |
17 |
|
l1 |
|
|
325 |
325 |
325 |
350 |
350 |
350 |
375 |
400 |
|
|
|
|
|
|
|
|
|||
|
l2 |
|
|
200 |
200 |
250 |
250 |
250 |
300 |
300 |
300 |
|
|
|
|
|
|
|
|
|||
|
l3 |
|
|
300 |
300 |
300 |
300 |
300 |
300 |
350 |
350 |
|
|
|
|
|
|
|
|
|||
|
S1 |
|
|
10 |
11 |
11 |
13 |
14 |
15 |
16 |
17 |
|
|
|
|
|
|
|
|
|||
|
450 |
l |
|
|
300 |
300 |
300 |
300 |
300 |
400 |
400 |
400 |
450 |
|
|
|
|
|
|
|
480 |
18 |
|
l1 |
|
|
350 |
350 |
350 |
375 |
375 |
400 |
400 |
400 |
450 |
|
|
|
|
|
|
|
|||
|
l2 |
|
|
200 |
200 |
250 |
250 |
250 |
300 |
300 |
400 |
400 |
|
|
|
|
|
|
|
|||
|
l3 |
|
|
300 |
350 |
350 |
350 |
350 |
350 |
350 |
350 |
400 |
|
|
|
|
|
|
|
|||
|
S1 |
|
|
10 |
11 |
11 |
13 |
14 |
15 |
16 |
17 |
18 |
|
|
|
|
|
|
|
|||
|
500 |
l |
|
|
300 |
300 |
300 |
300 |
400 |
400 |
400 |
400 |
500 |
500 |
|
|
|
|
|
|
532 |
19 |
|
l1 |
|
|
375 |
375 |
375 |
400 |
400 |
425 |
425 |
425 |
450 |
500 |
|
|
|
|
|
|
|||
|
l2 |
|
|
200 |
200 |
250 |
250 |
250 |
300 |
300 |
400 |
400 |
400 |
|
|
|
|
|
|
|||
|
l3 |
|
|
350 |
350 |
350 |
350 |
350 |
350 |
400 |
400 |
400 |
400 |
|
|
|
|
|
|
|||
|
S1 |
|
|
12 |
12 |
12 |
13 |
14 |
15 |
16 |
17 |
18 |
19 |
|
|
|
|
|
|
|||
|
600 |
l |
|
|
|
|
300 |
300 |
400 |
400 |
400 |
400 |
500 |
500 |
550 |
|
|
|
|
|
635 |
21 |
|
l1 |
|
|
|
|
450 |
450 |
450 |
475 |
475 |
475 |
500 |
500 |
550 |
|
|
|
|
|
|||
|
l2 |
|
|
|
|
250 |
250 |
300 |
300 |
400 |
400 |
400 |
400 |
450 |
|
|
|
|
|
|||
|
l3 |
|
|
|
|
400 |
400 |
400 |
400 |
450 |
450 |
450 |
450 |
450 |
|
|
|
|
|
|||
|
S1 |
|
|
|
|
14 |
14 |
14 |
15 |
16 |
17 |
18 |
19 |
21 |
|
|
|
|
|
|||
|
700 |
l |
|
|
|
|
400 |
400 |
400 |
400 |
400 |
500 |
500 |
500 |
600 |
600 |
|
|
|
|
738 |
24 |
|
l1 |
|
|
|
|
500 |
500 |
500 |
525 |
525 |
525 |
550 |
550 |
550 |
600 |
|
|
|
|
|||
|
l2 |
|
|
|
|
250 |
250 |
300 |
300 |
400 |
400 |
450 |
400 |
500 |
550 |
|
|
|
|
|||
|
l3 |
|
|
|
|
450 |
450 |
450 |
450 |
500 |
500 |
500 |
500 |
500 |
550 |
|
|
|
|
|||
|
S1 |
|
|
|
|
16 |
16 |
16 |
16 |
16 |
17 |
18 |
19 |
21 |
24 |
|
|
|
|
|||
|
800 |
l |
|
|
|
|
|
400 |
400 |
400 |
500 |
500 |
500 |
500 |
700 |
700 |
700 |
|
|
|
842 |
26 |
|
l1 |
|
|
|
|
|
550 |
550 |
575 |
575 |
575 |
600 |
600 |
625 |
625 |
700 |
|
|
|
|||
|
l2 |
|
|
|
|
|
300 |
300 |
300 |
400 |
400 |
400 |
500 |
500 |
600 |
600 |
|
|
|
|||
|
l3 |
|
|
|
|
|
500 |
500 |
550 |
550 |
550 |
550 |
550 |
550 |
550 |
600 |
|
|
|
|||
|
S1 |
|
|
|
|
|
18 |
18 |
18 |
18 |
18 |
18 |
19 |
21 |
24 |
26 |
|
|
|
|||
|
900 |
l |
|
|
|
|
|
400 |
400 |
400 |
500 |
500 |
500 |
500 |
700 |
700 |
700 |
750 |
|
|
945 |
28 |
|
l1 |
|
|
|
|
|
600 |
625 |
625 |
625 |
650 |
650 |
650 |
675 |
675 |
700 |
750 |
|
|
|||
|
l2 |
|
|
|
|
|
300 |
300 |
300 |
400 |
400 |
400 |
500 |
500 |
600 |
600 |
650 |
|
|
|||
|
l3 |
|
|
|
|
|
550 |
550 |
600 |
600 |
600 |
600 |
600 |
600 |
600 |
600 |
650 |
|
|
|||
|
S1 |
|
|
|
|
|
20 |
20 |
20 |
20 |
20 |
20 |
20 |
21 |
24 |
26 |
28 |
|
|
|||
|
1000 |
l |
|
|
|
|
|
|
500 |
500 |
500 |
500 |
500 |
700 |
700 |
700 |
700 |
800 |
800 |
|
1048 |
30 |
|
l1 |
|
|
|
|
|
|
675 |
675 |
675 |
700 |
700 |
700 |
725 |
750 |
800 |
800 |
800 |
|
|||
|
l2 |
|
|
|
|
|
|
400 |
400 |
400 |
400 |
400 |
500 |
500 |
600 |
600 |
700 |
700 |
|
|||
|
l3 |
|
|
|
|
|
|
600 |
650 |
650 |
650 |
650 |
650 |
650 |
650 |
700 |
700 |
700 |
|
|||
|
S1 |
|
|
|
|
|
|
21 |
21 |
21 |
21 |
21 |
21 |
21 |
24 |
26 |
28 |
30 |
|
|||
|
1200 |
l |
|
|
|
|
|
|
|
500 |
500 |
500 |
700 |
700 |
700 |
700 |
800 |
800 |
1000 |
1000 |
1256 |
34 |
|
l1 |
|
|
|
|
|
|
|
800 |
800 |
800 |
800 |
825 |
825 |
850 |
900 |
900 |
900 |
1000 |
|||
|
l2 |
|
|
|
|
|
|
|
400 |
400 |
400 |
400 |
500 |
500 |
600 |
600 |
700 |
700 |
850 |
|||
|
l3 |
|
|
|
|
|
|
|
750 |
750 |
750 |
750 |
750 |
750 |
750 |
800 |
800 |
800 |
850 |
|||
|
S1 |
|
|
|
|
|
|
|
24 |
24 |
24 |
24 |
24 |
24 |
24 |
26 |
28 |
30 |
34 |
|||

Таблица 5
Размеры, мм
|
Условный проход отростка, d0 |
65 |
80 |
100 |
125 |
150 |
200 |
250 |
300 |
350 |
400 |
450 |
500 |
600 |
700 |
800 |
900 |
1000 |
1200 |
|
Наружный диаметр отростка |
81 |
98 |
118 |
144 |
170 |
222 |
274 |
326 |
378 |
429 |
480 |
532 |
635 |
738 |
842 |
945 |
1048 |
1256 |
|
Радиус сопряжения |
25 |
25 |
30 |
30 |
30 |
40 |
40 |
40 |
50 |
50 |
50 |
50 |
50 |
50 |
60 |
60 |
70 |
80 |
|
Высота фаски |
7 |
8 |
9 |
10 |
11 |
12 |
13 |
14 |
15 |
17 |
19 |
20 |
22 |
25 |
28 |
31 |
35 |
40 |
Примечания:
1. Размеры раструбов - по черт. 1.
2. Размеры фланцев - по черт. 2.
3. При условных проходах ствола более 500 мм по согласованию изготовителя с потребителем допускается изготовление тройников и крестов с лазом размерами по черт. 9 и 10.
Таблица 6
Масса тройников и крестов
|
Условный проход ствола D0, мм |
Обозначение соединительной части |
Условный проход отростка d0, мм |
|||||||||||||||||||
|
65 |
80 |
100 |
125 |
150 |
200 |
250 |
300 |
350 |
400 |
450 |
500 |
600 |
700 |
800 |
900 |
1000 |
1200 |
||||
|
кг |
|||||||||||||||||||||
|
65 |
ТФ |
15,2 |
|
|
|
|
|
|
|
|
|
|
|
|
|
|
|
|
|
||
|
ТРФ |
16,7 |
|
|
|
|
|
|
|
|
|
|
|
|
|
|
|
|
|
|||
|
ТР |
17,4 |
|
|
|
|
|
|
|
|
|
|
|
|
|
|
|
|
|
|||
|
КФ |
19,7 |
|
|
|
|
|
|
|
|
|
|
|
|
|
|
|
|
|
|||
|
КРФ |
21,2 |
|
|
|
|
|
|
|
|
|
|
|
|
|
|
|
|
|
|||
|
КР |
22,6 |
|
|
|
|
|
|
|
|
|
|
|
|
|
|
|
|
|
|||
|
80 |
ТФ |
18,6 |
20,0 |
|
|
|
|
|
|
|
|
|
|
|
|
|
|
|
|
||
|
ТРФ |
19,9 |
21,3 |
|
|
|
|
|
|
|
|
|
|
|
|
|
|
|
|
|||
|
ТР |
20,5 |
22,0 |
|
|
|
|
|
|
|
|
|
|
|
|
|
|
|
|
|||
|
КФ |
23,1 |
25,9 |
|
|
|
|
|
|
|
|
|
|
|
|
|
|
|
|
|||
|
КРФ |
24,4 |
27,2 |
|
|
|
|
|
|
|
|
|
|
|
|
|
|
|
|
|||
|
КР |
25,6 |
28,8 |
|
|
|
|
|
|
|
|
|
|
|
|
|
|
|
|
|||
|
100 |
ТФ |
23,5 |
25,0 |
26,6 |
|
|
|
|
|
|
|
|
|
|
|
|
|
|
|
||
|
ТРФ |
23,7 |
25,4 |
28,3 |
|
|
|
|
|
|
|
|
|
|
|
|
|
|
|
|||
|
ТР |
24,5 |
25,6 |
29,1 |
|
|
|
|
|
|
|
|
|
|
|
|
|
|
|
|||
|
КФ |
27,4 |
31,2 |
34,3 |
|
|
|
|
|
|
|
|
|
|
|
|
|
|
|
|||
|
КРФ |
28,1 |
31,6 |
36,0 |
|
|
|
|
|
|
|
|
|
|
|
|
|
|
|
|||
|
КР |
29,6 |
31,9 |
37,6 |
|
|
|
|
|
|
|
|
|
|
|
|
|
|
|
|||
|
125 |
ТФ |
31,5 |
32,8 |
33,6 |
37,6 |
|
|
|
|
|
|
|
|
|
|
|
|
|
|
||
|
ТРФ |
31,7 |
33,6 |
34,4 |
41,7 |
|
|
|
|
|
|
|
|
|
|
|
|
|
|
|||
|
ТР |
32,3 |
34,3 |
35,9 |
43,8 |
|
|
|
|
|
|
|
|
|
|
|
|
|
|
|||
|
КФ |
36,1 |
38,7 |
40,4 |
48,3 |
|
|
|
|
|
|
|
|
|
|
|
|
|
|
|||
|
КРФ |
36,3 |
39,5 |
41,2 |
52,4 |
|
|
|
|
|
|
|
|
|
|
|
|
|
|
|||
|
КР |
37,4 |
40,8 |
44,1 |
56,6 |
|
|
|
|
|
|
|
|
|
|
|
|
|
|
|||
|
150 |
ТФ |
39,2 |
40,8 |
41,7 |
44,0 |
48,0 |
|
|
|
|
|
|
|
|
|
|
|
|
|
||
|
ТРФ |
37,2 |
39,4 |
40,3 |
46,6 |
50,6 |
|
|
|
|
|
|
|
|
|
|
|
|
|
|||
|
ТР |
37,6 |
39,5 |
41,1 |
49,5 |
51,9 |
|
|
|
|
|
|
|
|
|
|
|
|
|
|||
|
КФ |
44,1 |
46,8 |
48,6 |
53,3 |
59,0 |
|
|
|
|
|
|
|
|
|
|
|
|
|
|||
|
КРФ |
42,0 |
45,4 |
47,2 |
55,9 |
63,9 |
|
|
|
|
|
|
|
|
|
|
|
|
|
|||
|
КР |
42,7 |
45,8 |
48,9 |
61,7 |
66,6 |
|
|
|
|
|
|
|
|
|
|
|
|
|
|||
|
200 |
ТФ |
62,4 |
63,6 |
64,4 |
66,7 |
68,5 |
78,3 |
|
|
|
|
|
|
|
|
|
|
|
|
||
|
ТРФ |
51,2 |
53,6 |
60,6 |
62,9 |
64,7 |
80,7 |
|
|
|
|
|
|
|
|
|
|
|
|
|||
|
ТР |
51,9 |
54,4 |
62,5 |
65,4 |
67,5 |
81,9 |
|
|
|
|
|
|
|
|
|
|
|
|
|||
|
КФ |
67,1 |
69,6 |
71,3 |
75,7 |
79,4 |
98,9 |
|
|
|
|
|
|
|
|
|
|
|
|
|||
|
КРФ |
55,9 |
59,6 |
67,5 |
71,9 |
75,6 |
101 |
|
|
|
|
|
|
|
|
|
|
|
|
|||
|
КР |
57,4 |
61,0 |
70,4 |
76,1 |
80,2 |
104 |
|
|
|
|
|
|
|
|
|
|
|
|
|||
|
250 |
ТФ |
|
82,2 |
83,0 |
85,1 |
86,9 |
93,2 |
101 |
|
|
|
|
|
|
|
|
|
|
|
||
|
ТРФ |
|
71,5 |
80,6 |
82,8 |
83,6 |
99,1 |
107 |
|
|
|
|
|
|
|
|
|
|
|
|||
|
ТР |
|
71,7 |
81,4 |
85,7 |
87,8 |
102 |
110 |
|
|
|
|
|
|
|
|
|
|
|
|||
|
КФ |
|
88,1 |
89,7 |
94,0 |
97,5 |
110 |
125 |
|
|
|
|
|
|
|
|
|
|
|
|||
|
КРФ |
|
77,4 |
86,5 |
91,4 |
94,0 |
116 |
132 |
|
|
|
|
|
|
|
|
|
|
|
|||
|
КР |
|
77,7 |
88,4 |
97,4 |
102 |
122 |
137 |
|
|
|
|
|
|
|
|
|
|
|
|||
|
300 |
ТФ |
|
100 |
101 |
103 |
105 |
111 |
116 |
120 |
|
|
|
|
|
|
|
|
|
|
||
|
ТРФ |
|
90,7 |
102 |
105 |
106 |
123 |
128 |
143 |
|
|
|
|
|
|
|
|
|
|
|||
|
ТР |
|
91,7 |
104 |
107 |
109 |
124 |
131 |
155 |
|
|
|
|
|
|
|
|
|
|
|||
|
КФ |
|
106 |
108 |
112 |
115 |
127 |
137 |
147 |
|
|
|
|
|
|
|
|
|
|
|||
|
КРФ |
|
96,9 |
108 |
113 |
116 |
139 |
149 |
169 |
|
|
|
|
|
|
|
|
|
|
|||
|
КР |
|
98,2 |
112 |
117 |
121 |
142 |
155 |
192 |
|
|
|
|
|
|
|
|
|
|
|||
|
350 |
ТФ |
|
|
126 |
128 |
130 |
134 |
140 |
157 |
168 |
|
|
|
|
|
|
|
|
|
||
|
ТРФ |
|
|
127 |
129 |
130 |
148 |
154 |
172 |
183 |
|
|
|
|
|
|
|
|
|
|||
|
ТР |
|
|
128 |
132 |
134 |
153 |
160 |
181 |
190 |
|
|
|
|
|
|
|
|
|
|||
|
КФ |
|
|
132 |
136 |
140 |
148 |
161 |
182 |
204 |
|
|
|
|
|
|
|
|
|
|||
|
КРФ |
|
|
134 |
138 |
141 |
162 |
175 |
196 |
216 |
|
|
|
|
|
|
|
|
|
|||
|
КР |
|
|
135 |
143 |
148 |
171 |
185 |
214 |
233 |
|
|
|
|
|
|
|
|
|
|||
|
400 |
ТФ |
|
|
153 |
156 |
157 |
162 |
167 |
202 |
213 |
226 |
|
|
|
|
|
|
|
|
||
|
ТРФ |
|
|
155 |
156 |
174 |
179 |
185 |
204 |
214 |
243 |
|
|
|
|
|
|
|
|
|||
|
ТР |
|
|
156 |
157 |
175 |
180 |
186 |
209 |
224 |
252 |
|
|
|
|
|
|
|
|
|||
|
КФ |
|
|
159 |
163 |
166 |
178 |
187 |
226 |
247 |
273 |
|
|
|
|
|
|
|
|
|||
|
КРФ |
|
|
160 |
164 |
184 |
195 |
204 |
228 |
247 |
290 |
|
|
|
|
|
|
|
|
|||
|
КР |
|
|
162 |
167 |
186 |
196 |
208 |
239 |
267 |
307 |
|
|
|
|
|
|
|
|
|||
|
450 |
ТФ |
|
|
175 |
177 |
179 |
184 |
188 |
233 |
240 |
248 |
283 |
|
|
|
|
|
|
|
||
|
ТРФ |
|
|
182 |
184 |
204 |
210 |
214 |
238 |
246 |
294 |
308 |
|
|
|
|
|
|
|
|||
|
ТР |
|
|
182 |
186 |
207 |
212 |
219 |
245 |
253 |
301 |
321 |
|
|
|
|
|
|
|
|||
|
КФ |
|
|
182 |
186 |
188 |
200 |
208 |
258 |
273 |
289 |
340 |
|
|
|
|
|
|
|
|||
|
КРФ |
|
|
188 |
192 |
214 |
223 |
234 |
265 |
279 |
334 |
364 |
|
|
|
|
|
|
|
|||
|
КР |
|
|
188 |
197 |
220 |
229 |
243 |
276 |
292 |
348 |
389 |
|
|
|
|
|
|
|
|||
|
500 |
ТФ |
|
|
206 |
208 |
209 |
214 |
261 |
272 |
274 |
283 |
337 |
359 |
|
|
|
|
|
|
||
|
ТРФ |
|
|
217 |
219 |
243 |
247 |
251 |
280 |
286 |
339 |
349 |
370 |
|
|
|
|
|
|
|||
|
ТР |
|
|
219 |
221 |
245 |
249 |
254 |
283 |
297 |
351 |
362 |
376 |
|
|
|
|
|
|
|||
|
КФ |
|
|
213 |
216 |
219 |
229 |
281 |
293 |
306 |
322 |
386 |
430 |
|
|
|
|
|
|
|||
|
КРФ |
|
|
224 |
228 |
253 |
263 |
271 |
305 |
318 |
378 |
398 |
442 |
|
|
|
|
|
|
|||
|
600 |
ТФ |
|
|
|
|
273 |
277 |
338 |
343 |
353 |
357 |
425 |
434 |
498 |
|
|
|
|
|
||
|
ТРФ |
|
|
|
|
324 |
328 |
360 |
365 |
430 |
437 |
448 |
455 |
520 |
|
|
|
|
|
|||
|
ТР |
|
|
|
|
329 |
334 |
367 |
374 |
446 |
453 |
462 |
477 |
525 |
|
|
|
|
|
|||
|
КФ |
|
|
|
|
285 |
287 |
357 |
367 |
379 |
394 |
470 |
489 |
583 |
|
|
|
|
|
|||
|
КРФ |
|
|
|
|
336 |
343 |
378 |
388 |
440 |
474 |
490 |
510 |
609 |
|
|
|
|
|
|||
|
КР |
|
|
|
|
338 |
345 |
384 |
395 |
481 |
499 |
517 |
544 |
630 |
|
|
|
|
|
|||
|
700 |
ТФ |
|
|
|
|
440 |
442 |
447 |
451 |
455 |
539 |
548 |
555 |
649 |
699 |
|
|
|
|
||
|
ТРФ |
|
|
|
|
431 |
435 |
476 |
481 |
563 |
569 |
578 |
585 |
679 |
768 |
|
|
|
|
|||
|
ТР |
|
|
|
|
432 |
435 |
479 |
484 |
574 |
582 |
590 |
602 |
704 |
803 |
|
|
|
|
|||
|
КФ |
|
|
|
|
453 |
459 |
465 |
473 |
482 |
572 |
588 |
603 |
713 |
814 |
|
|
|
|
|||
|
КРФ |
|
|
|
|
443 |
450 |
495 |
503 |
590 |
603 |
618 |
633 |
743 |
883 |
|
|
|
|
|||
|
КР |
|
|
|
|
445 |
452 |
500 |
510 |
611 |
627 |
644 |
667 |
794 |
952 |
|
|
|
|
|||
|
800 |
ТФ |
|
|
|
|
|
562 |
566 |
570 |
672 |
675 |
681 |
689 |
901 |
930 |
1003 |
|
|
|
||
|
ТРФ |
|
|
|
|
|
592 |
595 |
597 |
701 |
705 |
707 |
812 |
833 |
960 |
1033 |
|
|
|
|||
|
ТР |
|
|
|
|
|
592 |
597 |
608 |
712 |
718 |
724 |
831 |
853 |
985 |
1048 |
|
|
|
|||
|
КФ |
|
|
|
|
|
579 |
585 |
594 |
700 |
708 |
719 |
731 |
966 |
1024 |
1171 |
|
|
|
|||
|
КРФ |
|
|
|
|
|
609 |
615 |
617 |
729 |
738 |
739 |
857 |
897 |
1054 |
1201 |
|
|
|
|||
|
КР |
|
|
|
|
|
609 |
618 |
641 |
750 |
762 |
774 |
891 |
935 |
1103 |
1230 |
|
|
|
|||
|
900 |
ТФ |
|
|
|
|
|
672 |
678 |
680 |
801 |
809 |
811 |
814 |
1064 |
1090 |
1134 |
1254 |
|
|
||
|
ТРФ |
|
|
|
|
|
737 |
744 |
745 |
867 |
874 |
876 |
996 |
1013 |
1155 |
1199 |
1320 |
|
|
|||
|
ТР |
|
|
|
|
|
736 |
742 |
753 |
876 |
881 |
888 |
1012 |
1030 |
1180 |
1214 |
1352 |
|
|
|||
|
КФ |
|
|
|
|
|
689 |
702 |
705 |
830 |
847 |
850 |
857 |
1123 |
1177 |
1262 |
1445 |
|
|
|||
|
КРФ |
|
|
|
|
|
755 |
768 |
770 |
896 |
912 |
915 |
1039 |
1071 |
1239 |
1327 |
1500 |
|
|
|||
|
КР |
|
|
|
|
|
753 |
764 |
786 |
916 |
927 |
939 |
1072 |
1107 |
1289 |
1357 |
1560 |
|
|
|||
|
1000 |
ТФ |
|
|
|
|
|
|
956 |
958 |
962 |
971 |
972 |
1253 |
1264 |
1297 |
1351 |
1523 |
1570 |
|
||
|
ТРФ |
|
|
|
|
|
|
1056 |
1058 |
1062 |
1071 |
1073 |
1214 |
1225 |
1397 |
1451 |
1623 |
1670 |
|
|||
|
ТР |
|
|
|
|
|
|
1054 |
1065 |
1071 |
1079 |
1083 |
1230 |
1243 |
1412 |
1467 |
1655 |
1725 |
|
|||
|
КФ |
|
|
|
|
|
|
980 |
983 |
990 |
1010 |
1011 |
1295 |
1317 |
1392 |
1491 |
1695 |
1784 |
|
|||
|
КРФ |
|
|
|
|
|
|
1080 |
1083 |
1090 |
1110 |
1111 |
1256 |
1278 |
1481 |
1591 |
1794 |
1882 |
|
|||
|
КР |
|
|
|
|
|
|
1076 |
1097 |
1110 |
1124 |
1134 |
1288 |
1314 |
1511 |
1621 |
1860 |
1984 |
|
|||
|
1200 |
ТФ |
|
|
|
|
|
|
|
1311 |
1314 |
1318 |
1698 |
1707 |
1712 |
1729 |
1966 |
1989 |
2409 |
2603 |
||
|
ТРФ |
|
|
|
|
|
|
|
1427 |
1430 |
1434 |
1435 |
1633 |
1638 |
1844 |
1885 |
2105 |
2146 |
2624 |
|||
|
ТР |
|
|
|
|
|
|
|
1430 |
1434 |
1440 |
1444 |
1640 |
1654 |
1860 |
1908 |
2137 |
2196 |
2935 |
|||
|
КФ |
|
|
|
|
|
|
|
1343 |
1348 |
1357 |
1736 |
1755 |
1765 |
1798 |
2085 |
2130 |
2591 |
2960 |
|||
|
КРФ |
|
|
|
|
|
|
|
1459 |
1464 |
1473 |
1473 |
1681 |
1691 |
1914 |
2012 |
2246 |
2328 |
3001 |
|||
|
КР |
|
|
|
|
|
|
|
1464 |
1472 |
1484 |
1494 |
1695 |
1721 |
1944 |
2042 |
2311 |
2428 |
2998 |
|||
Выпуски
Выпуск фланцевый

Обозначение фланцевого выпуска со стволом условного прохода 800 мм и отростком условного прохода 300 мм:
Выпуск ВФ 800´300 ГОСТ 5525-88
Черт. 9
Выпуск раструбный

Обозначение раструбного выпуска со стволом условного прохода 500 мм и с отростком условного прохода 100 мм:
Выпуск ВР 500´100 ГОСТ 5525-88
Черт. 10
Таблица 7
Размеры, мм
|
Условный проход |
d |
Dн |
dн |
S |
S1 |
S3 |
l |
l1 |
l2 |
l3 |
l4 |
b |
Масса выпуска, кг |
||
|
ствола D0 |
отростка d0 |
фланцевого |
раструбного |
||||||||||||
|
250 |
100 150 |
- |
274 274 |
118 170 |
14 14 |
10 11 |
- |
300 300 |
- |
250 250 |
250 250 |
75 50 |
14 14 |
83,1 86,8 |
80,6 84,2 |
|
300 |
100 150 |
- |
326 326 |
118 170 |
15 15 |
10 11 |
- |
300 300 |
- |
250 250 |
275 275 |
100 75 |
15 15 |
101 104 |
103 107 |
|
350 |
100 150 |
- |
378 378 |
118 170 |
16 16 |
10 11 |
- |
300 300 |
- |
250 250 |
300 300 |
124 99 |
16 16 |
125 128 |
128 131 |
|
400 |
100 150 |
- |
429 429 |
118 170 |
17 17 |
10 11 |
- |
300 300 |
- |
250 250 |
325 325 |
149 124 |
17 17 |
153 156 |
153 172 |
|
450 |
100 150 |
- |
480 480 |
118 170 |
18 18 |
10 11 |
- |
300 300 |
- |
250 250 |
350 375 |
174 149 |
18 18 |
175 178 |
182 203 |
|
500 |
100 150 |
500 500 |
532 532 |
118 170 |
19 19 |
12 12 |
19 19 |
500 500 |
500 500 |
400 400 |
375 425 |
201 175 |
19 19 |
264 267 |
276 301 |
|
600 |
150 200 |
600 600 |
635 635 |
170 222 |
21 21 |
14 14 |
21 21 |
550 550 |
550 550 |
450 450 |
425 450 |
227 201 |
20 20 |
331 334 |
382 385 |
|
700 |
150 200 |
600 600 |
738 738 |
170 222 |
24 24 |
16 16 |
21 21 |
600 600 |
550 550 |
500 500 |
450 500 |
279 253 |
20 20 |
475 478 |
467 471 |
|
800 |
200 300 |
600 600 |
842 842 |
222 326 |
26 26 |
18 18 |
21 21 |
700 700 |
625 625 |
500 500 |
525 575 |
305 253 |
22 25 |
580 585 |
617 624 |
|
900 |
200 300 |
600 600 |
945 945 |
222 326 |
28 28 |
20 20 |
21 21 |
700 700 |
675 675 |
500 500 |
575 625 |
356 304 |
24 26 |
670 675 |
751 756 |
|
1000 |
300 400 |
600 600 |
1048 1048 |
326 429 |
30 30 |
21 21 |
21 21 |
700 700 |
725 725 |
500 500 |
675 700 |
326 304 |
26 26 |
918 927 |
1047 1055 |
|
1200 |
300 400 |
600 600 |
1256 1256 |
326 429 |
34 34 |
24 24 |
2 24 |
700 700 |
825 825 |
500 500 |
750 800 |
460 408 |
26 28 |
1215 1221 |
1388 1394 |
Деталь построения. Колена фланцевые

Обозначение фланцевого колена условного прохода 300 мм:
Колено УФ 300 ГОСТ 5525-88
Черт. 11
Колено раструбное

Обозначение раструбного колена условного прохода 150 мм:
Колено УР 150 ГОСТ 5525-88
Черт. 12
Колено раструб - гладкий конец

Обозначение колена раструба - гладкого конца условного прохода 300 мм:
Колено УРГ 300 ГОСТ 5525-88
Черт. 13
Таблица 8
Размеры, мм
|
Условный проход D0 |
S |
Dн |
r |
q |
L |
L1 |
l |
l1 |
2q + 1 |
Q + l + l1 |
Масса колена, кг |
||
|
фланцевого |
раструбного |
раструба - гладкого конца |
|||||||||||
|
65 |
9 |
81 |
108 |
30 |
138 |
338 |
168 |
230 |
228 |
428 |
10,4 |
12,6 |
11,3 |
|
80 |
10 |
98 |
120 |
30 |
150 |
350 |
188 |
230 |
248 |
448 |
13,0 |
15,5 |
14,2 |
|
100 |
10 |
118 |
160 |
40 |
200 |
400 |
251 |
240 |
331 |
531 |
17,2 |
21,4 |
19,6 |
|
125 |
11 |
144 |
185 |
40 |
225 |
425 |
291 |
240 |
371 |
571 |
24,3 |
30,1 |
27,9 |
|
150 |
11 |
170 |
210 |
40 |
250 |
450 |
330 |
240 |
410 |
610 |
31,1 |
37,7 |
35,0 |
|
200 |
13 |
222 |
260 |
40 |
300 |
500 |
408 |
240 |
488 |
688 |
50,8 |
59,4 |
57,2 |
|
250 |
14 |
275 |
260 |
40 |
300 |
500 |
408 |
240 |
488 |
688 |
67,1 |
81,3 |
77,5 |
|
300 |
15 |
326 |
260 |
40 |
300 |
500 |
408 |
240 |
488 |
688 |
82,5 |
105 |
99,8 |
|
350 |
16 |
378 |
300 |
50 |
350 |
550 |
471 |
250 |
571 |
771 |
115 |
143 |
136 |
|
400 |
17 |
429 |
350 |
50 |
400 |
600 |
550 |
250 |
650 |
850 |
155 |
188 |
178 |
|
450 |
18 |
480 |
400 |
50 |
450 |
650 |
628 |
250 |
728 |
928 |
193 |
237 |
226 |
|
500 |
19 |
532 |
450 |
50 |
500 |
700 |
707 |
250 |
807 |
1007 |
245 |
301 |
284 |
|
600 |
21 |
635 |
490 |
60 |
550 |
850 |
770 |
360 |
890 |
1190 |
347 |
427 |
432 |
|
700 |
24 |
738 |
540 |
60 |
600 |
900 |
848 |
360 |
968 |
1268 |
494 |
602 |
607 |
|
800 |
26 |
842 |
640 |
60 |
700 |
1000 |
1005 |
360 |
1125 |
1425 |
704 |
831 |
830 |
|
900 |
28 |
945 |
680 |
70 |
750 |
1050 |
1068 |
370 |
1208 |
1508 |
893 |
1076 |
1067 |
|
1000 |
30 |
1048 |
730 |
70 |
800 |
1100 |
1147 |
370 |
1287 |
1587 |
1133 |
1872 |
1340 |
|
1200 |
34 |
1256 |
920 |
80 |
1000 |
1300 |
1445 |
380 |
1605 |
1905 |
1852 |
2137 |
2121 |
Примечания:
1. Размеры раструбов - по черт. 1.
2. Размеры фланцев - по черт. 2 и 11.
Отводы
Отвод раструбный

Обозначение раструбного отвода с центральным углом в 10° и с условным проходом 400 мм:
Отвод ОР 10° 400 ГОСТ 5525-88
Черт. 14
Отвод раструб - гладкий конец

Обозначение отвода раструба - гладкого конца с центральным углом в 15°и с условным проходом 800 мм:
Отвод ОРГ 15° 800 ГОСТ 5525-88
Черт. 15
Таблица 9
Размеры, мм
|
Условный |
S |
Dн |
q |
l1 |
Отвод a = 10° |
Отвод a = 15° |
Отвод a = 30 |
Отвод a = 45° |
L |
2q + L |
q + L + l1 |
Масса отвода, кг |
|||||
|
проход D0 |
r |
l |
r |
L |
r |
l |
r |
l |
раструбного |
раструба - гладкого конца |
|||||||
|
65 |
9 |
81 |
30 |
75 |
918 |
85 |
645 |
85 |
323 |
86 |
215 |
89 |
168 |
228 |
278 |
12,6 |
8,9 |
|
80 |
10 |
98 |
30 |
75 |
1080 |
95 |
720 |
95 |
360 |
96 |
240 |
99 |
188 |
248 |
293 |
15,4 |
11,1 |
|
100 |
10 |
118 |
40 |
80 |
1440 |
126 |
960 |
127 |
480 |
129 |
320 |
132 |
251 |
331 |
371 |
21,4 |
15,7 |
|
125 |
11 |
144 |
40 |
80 |
1665 |
146 |
1110 |
147 |
555 |
149 |
370 |
153 |
291 |
371 |
411 |
30,1 |
22,6 |
|
150 |
11 |
170 |
40 |
85 |
1890 |
165 |
1260 |
166 |
630 |
169 |
420 |
174 |
330 |
410 |
455 |
37,7 |
28,8 |
|
200 |
13 |
222 |
40 |
85 |
2340 |
205 |
1560 |
206 |
780 |
209 |
520 |
215 |
408 |
488 |
533 |
59,4 |
47,5 |
|
250 |
14 |
274 |
40 |
90 |
2340 |
205 |
1560 |
206 |
780 |
209 |
520 |
215 |
408 |
488 |
538 |
81,3 |
65,0 |
|
300 |
15 |
326 |
40 |
95 |
2340 |
205 |
1560 |
206 |
780 |
209 |
520 |
215 |
408 |
488 |
543 |
105 |
84,4 |
|
350 |
16 |
378 |
50 |
100 |
2700 |
236 |
1800 |
238 |
900 |
241 |
600 |
248 |
471 |
571 |
621 |
143 |
116 |
|
400 |
17 |
429 |
50 |
100 |
3150 |
276 |
2100 |
277 |
1050 |
281 |
700 |
290 |
550 |
650 |
700 |
188 |
154 |
|
450 |
18 |
480 |
50 |
105 |
3600 |
315 |
2400 |
317 |
1200 |
322 |
800 |
331 |
628 |
728 |
783 |
237 |
198 |
|
500 |
19 |
532 |
60 |
105 |
4050 |
354 |
2700 |
356 |
1350 |
362 |
900 |
373 |
707 |
807 |
862 |
301 |
252 |
|
600 |
21 |
635 |
60 |
115 |
4410 |
386 |
2940 |
288 |
1470 |
394 |
980 |
406 |
770 |
890 |
945 |
427 |
360 |
|
700 |
24 |
738 |
60 |
120 |
4860 |
425 |
3240 |
428 |
1620 |
434 |
1080 |
447 |
848 |
968 |
1028 |
602 |
513 |
|
800 |
26 |
842 |
60 |
130 |
5750 |
504 |
3840 |
507 |
1920 |
515 |
1280 |
530 |
1005 |
1125 |
1195 |
831 |
720 |
|
900 |
28 |
945 |
70 |
135 |
6120 |
536 |
4080 |
539 |
2040 |
547 |
1360 |
563 |
1068 |
1208 |
1273 |
1076 |
930 |
|
1000 |
30 |
1048 |
70 |
145 |
6570 |
575 |
4380 |
578 |
2190 |
587 |
1460 |
604 |
1147 |
1287 |
1362 |
1372 |
1186 |
|
1200 |
34 |
1256 |
80 |
155 |
8280 |
725 |
5520 |
729 |
2760 |
740 |
1840 |
762 |
1445 |
1605 |
1680 |
2157 |
1910 |
Примечание. Размеры раструбов - по черт. 1
Переходы
Переход фланцевый Деталь построения

Черт. 16
Обозначение фланцевого перехода условного прохода 200´100 мм:
Переход ХФ 200´100 ГОСТ 5525-88
Переход раструб - фланец

Черт. 17
Обозначение перехода раструба - фланца условного прохода 200´100 мм:
Переход ХРФ 200´100 ГОСТ 5525-88
Переход раструбный

Обозначение раструбного перехода условного прохода 200´100 мм:
Переход ХР 300´100 ГОСТ 5525-88
Черт. 18
Переход раструб - гладкий конец

Обозначение перехода раструба - гладкого конца прохода 200´100 мм:
Переход ХРГ 200´100 ГОСТ 5525-88
Черт. 19
Таблица 10
Размеры, мм
|
Обозначения размеров |
Условный проход D0 (или d0) |
|||||||||||||||||
|
65 |
80 |
100 |
125 |
150 |
200 |
250 |
300 |
350 |
400 |
450 |
500 |
600 |
700 |
800 |
900 |
1000 |
1200 |
|
|
D (или d) |
63 |
78 |
98 |
122 |
148 |
196 |
246 |
296 |
346 |
395 |
444 |
494 |
593 |
690 |
790 |
889 |
988 |
1188 |
|
D (или Sd) |
9 |
10 |
10 |
11 |
11 |
13 |
14 |
15 |
16 |
17 |
18 |
19 |
21 |
24 |
26 |
28 |
30 |
34 |
|
qD (или qd) |
30 |
30 |
40 |
40 |
40 |
40 |
40 |
40 |
50 |
50 |
50 |
60 |
60 |
60 |
60 |
70 |
70 |
80 |
|
fD (или fd) |
38 |
43 |
43 |
43 |
43 |
45 |
45 |
45 |
50 |
50 |
50 |
50 |
55 |
55 |
60 |
65 |
70 |
75 |
|
LD |
80 |
80 |
90 |
90 |
90 |
90 |
90 |
90 |
100 |
100 |
150 |
150 |
160 |
160 |
160 |
170 |
170 |
180 |
|
с |
7 |
8 |
9 |
10 |
11 |
12 |
13 |
14 |
15 |
17 |
19 |
20 |
22 |
25 |
28 |
31 |
35 |
40 |
Примечания:
1. Размеры раструбов по черт. 1.
2. Размеры фланцев - по черт. 2.
Таблица 11
Размеры, мм
|
Условный проход D0 |
Обозначение размеров |
Условный проход d0 |
||||||||||||||||
|
65 |
80 |
100 |
125 |
150 |
200 |
250 |
300 |
350 |
400 |
450 |
500 |
600 |
700 |
800 |
900 |
1000 |
||
|
80 |
L L1 L2 |
200 200 250 |
|
|
|
|
|
|
|
|
|
|
|
|
|
|
|
|
|
100 |
L L1 L2 |
250 250 300 |
200 200 250 |
|
|
|
|
|
|
|
|
|
|
|
|
|
|
|
|
125 |
L L1 L2 |
300 300 350 |
250 250 300 |
200 200 250 |
|
|
|
|
|
|
|
|
|
|
|
|
|
|
|
160 |
L L1 L2 |
|
300 300 350 |
250 250 300 |
200 200 250 |
|
|
|
|
|
|
|
|
|
|
|
|
|
|
200 |
L L1 L2 |
|
400 400 450 |
350 350 400 |
300 300 350 |
250 250 300 |
|
|
|
|
|
|
|
|
|
|
|
|
|
250 |
L L1 L2 |
|
|
450 450 500 |
400 400 450 |
350 350 400 |
250 250 300 |
|
|
|
|
|
|
|
|
|
|
|
|
300 |
L L1 L2 |
|
|
|
500 500 550 |
450 450 500 |
350 350 400 |
250 250 300 |
|
|
|
|
|
|
|
|
|
|
|
350 |
L L1 L2 |
|
|
|
|
550 550 600 |
450 450 500 |
350 350 400 |
250 250 300 |
|
|
|
|
|
|
|
|
|
|
400 |
L L1 L2 |
|
|
|
|
|
550 550 600 |
450 450 500 |
350 350 400 |
250 250 300 |
|
|
|
|
|
|
|
|
|
450 |
L L1 L2 |
|
|
|
|
|
650 700 750 |
550 600 650 |
450 500 550 |
350 400 450 |
250 300 350 |
|
|
|
|
|
|
|
|
500 |
L L1 L2 |
|
|
|
|
|
|
650 700 750 |
550 600 650 |
450 500 550 |
350 400 450 |
250 300 350 |
|
|
|
|
|
|
|
600 |
L L1 L2 |
|
|
|
|
|
|
|
750 800 850 |
650 700 750 |
550 600 650 |
450 500 500 |
350 400 450 |
|
|
|
|
|
|
700 |
L L1 L2 |
|
|
|
|
|
|
|
|
850 900 950 |
750 800 850 |
650 700 750 |
550 600 650 |
350 400 450 |
|
|
|
|
|
800 |
L L1 L2 |
|
|
|
|
|
|
|
|
|
950 1000 1050 |
850 900 950 |
750 800 850 |
550 600 650 |
350 400 450 |
|
|
|
|
900 |
L L1 L2 |
|
|
|
|
|
|
|
|
|
|
|
950 1000 1050 |
750 800 850 |
550 600 650 |
350 400 450 |
|
|
|
1000 |
L L1 L2 |
|
|
|
|
|
|
|
|
|
|
|
|
950 1000 1050 |
750 800 850 |
550 600 650 |
350 400 450 |
|
|
1200 |
L L1 L2 |
|
|
|
|
|
|
|
|
|
|
|
|
|
|
950 1000 1050 |
750 800 850 |
550 600 650 |
Таблица 12
Масса переходов
|
Условный проход D0 |
Обозначение перехода |
Условный проход d0, мм |
||||||||||||||||
|
65 |
80 |
100 |
125 |
150 |
200 |
250 |
300 |
350 |
400 |
450 |
500 |
600 |
700 |
800 |
900 |
1000 |
||
|
кг |
||||||||||||||||||
|
80 |
ХРФ ХФ ХРГ ХР |
11,35 11,25 8,3 12,5 |
|
|
|
|
|
|
|
|
|
|
|
|
|
|
|
|
|
100 |
ХРФ ХФ ХРГ ХР |
14,05 11,95 9,9 15,2 |
15,1 13,0 10,9 16,3 |
|
|
|
|
|
|
|
|
|
|
|
|
|
|
|
|
125 |
ХРФ ХФ ХРГ ХР |
18,65 15,75 12,6 19,8 |
19,6 16,7 13,6 20,8 |
19,2 16,3 14,1 21,3 |
|
|
|
|
|
|
|
|
|
|
|
|
|
|
|
150 |
ХРФ ХФ ХРГ ХР |
|
23,7 20,3 16,2 24,8 |
23,2 19,9 16,7 25,3 |
23,9 20,6 18,2 26,8 |
|
|
|
|
|
|
|
|
|
|
|
|
|
|
200 |
ХРФ ХФ ХРГ ХР |
|
34,5 30,2 24,6 35,7 |
33,9 29,6 25,1 36,0 |
34,7 30,4 26,3 37,6 |
34,6 30,3 26,6 37,9 |
|
|
|
|
|
|
|
|
|
|
|
|
|
250 |
ХРФ ХФ ХРГ ХР |
|
|
48,1 41,0 35,0 50,2 |
49,1 42,0 36,2 52,0 |
48,9 41,8 36,4 52,2 |
48,8 42,7 37,0 53,1 |
|
|
|
|
|
|
|
|
|
|
|
|
300 |
ХРФ ХФ ХРГ ХР |
|
|
|
66,4 55,0 48,4 69,3 |
66,0 54,6 48,5 69,3 |
66,2 54,8 49,4 70,5 |
63,6 52,2 49,1 70,7 |
|
|
|
|
|
|
|
|
|
|
|
350 |
ХРФ ХФ ХРГ ХР |
|
|
|
|
86,1 72,3 63,2 89,4. |
87,4 73,6 64,9 91,7 |
84,4 71,0 65,5 91,9 |
79,2 65,4 63,4 90,6 |
|
|
|
|
|
|
|
|
|
|
400 |
ХРФ ХФ ХРГ ХР |
|
|
|
|
|
112 94,4 83,0 116 |
109 92,6 83,3 116 |
104 87,2 81,5 115 |
98 81,9 78,5 112 |
|
|
|
|
|
|
|
|
|
450 |
ХРФ ХФ ХРГ ХР |
|
|
|
|
|
138 116 115 149 |
137 115 115 151 |
131 109 113 150 |
126 104 110 148 |
119 96,6 105 144 |
|
|
|
|
|
|
|
|
500 |
ХРФ ХФ ХРГ ХР |
|
|
|
|
|
|
172 144 142 186 |
165 138 139 186 |
160 132 136 183 |
153 125 131 179 |
140 112 124 173 |
|
|
|
|
|
|
|
600 |
ХРФ ХФ ХРГ ХР |
|
|
|
|
|
|
|
244 204 205 266 |
238 199 202 263 |
232 192 196 265 |
219 179 189 253 |
205 166 181 247 |
|
|
|
|
|
|
700 |
ХРФ ХФ ХРГ ХР |
|
|
|
|
|
|
|
|
346 292 294 373 |
338 284 285 368 |
325 271 277 361 |
312 257 269 354 |
275 220 243 331 |
|
|
|
|
|
800 |
ХРФ ХФ ХРГ ХР |
|
|
|
|
|
|
|
|
|
463 400 388 494 |
449 385 380 487 |
434 371 372 480 |
397 334 346 457 |
364 291 314 430 |
|
|
|
|
900 |
ХРФ ХФ ХРГ ХР |
|
|
|
|
|
|
|
|
|
|
|
589 498 492 620 |
552 461 471 613 |
508 417 411 588 |
452 361 390 542 |
|
|
|
1000 |
ХРФ ХФ ХРГ ХР |
|
|
|
|
|
|
|
|
|
|
|
|
740 620 617 804 |
700 581 589 780 |
642 522 539 734 |
556 436 480 679 |
|
|
1200 |
ХРФ ХФ ХРГ ХР |
|
|
|
|
|
|
|
|
|
|
|
|
|
|
1073 920 917 1169 |
984 831 956 1112 |
889 737 788 1050 |
Патрубки
Патрубок фланец - раструб

Обозначение патрубка фланца - раструба условного прохода 400 мм:
Патрубок ПФР 400 ГОСТ 5525-88
Черт. 20
Патрубок фланец - гладкий конец

Обозначение короткого патрубка фланца - гладкого конца условного прохода 200 мм:
Патрубок ПФГ 200 ГОСТ 5525-88
Обозначение того же патрубка длинного:
Патрубок дл. ПФГ 200 ГОСТ 5525-88
Черт. 21
Таблица 13
Размеры, мм
|
Условный проход D0 |
S |
Dн |
l |
L |
L1 |
Масса патрубка, кг |
|
|
фланца-раструба |
фланца - гладкого конца |
||||||
|
65 |
9 |
81 |
75 |
100 |
300 и 1200 |
9,2 |
8,1 и 22,5 |
|
80 |
10 |
98 |
75 |
100 |
300 и 1200 |
11,2 |
10,0 и 28,1 |
|
100 |
10 |
118 |
80 |
100 |
350 и 1200 |
13,6 |
13,1 и 34,0 |
|
126 |
11 |
144 |
80 |
100 |
350 и 1200 |
18,2 |
17,7 и 46,0 |
|
150 |
11 |
170 |
85 |
100 |
350 и 1200 |
22,1 |
21,3 и 55,2 |
|
200 |
13 |
222 |
85 |
100 |
350 и 1200 |
31,1 |
32,0 и 84,5 |
|
250 |
14 |
274 |
90 |
150 |
350 и 1200 |
46,2 |
42,3 и 113 |
|
300 |
15 |
326 |
95 |
150 |
400 и 1200 |
58,0 |
57,8 и 143 |
|
360 |
16 |
378 |
100 |
150 |
400 и 1200 |
73,8 |
72,8 и 178 |
|
400 |
17 |
429 |
100 |
150 |
400 и 1200 |
91,2 |
89,2 и 217 |
|
450 |
18 |
480 |
105 |
150 |
450 и 1200 |
106 |
113 и 255 |
|
500 |
19 |
532 |
105 |
150 |
450 и 1200 |
127 |
133 и 299 |
|
600 |
21 |
635 |
115 |
250 |
500 и 1200 |
200 |
190 и 395 |
|
700 |
24 |
738 |
120 |
250 |
500 и 1200 |
268 |
253 и 526 |
|
800 |
26 |
842 |
130 |
250 |
600 и 1200 |
345 |
370 и 660 |
|
900 |
28 |
945 |
135 |
300 |
600 и 1200 |
453 |
444 и 795 |
|
1000 |
30 |
1048 |
145 |
300 |
600 и 1200 |
566 |
536 и 953 |
|
1200 |
34 |
1256 |
155 |
300 |
600 и 1200 |
770 |
734 и 1302 |
Примечания:
1. Размеры раструбов - по черт. 1.
2. Размеры фланцев - по черт. 2.
3. По согласованию изготовителя с потребителем допускается изготовление патрубков фланец - гладкий конец длиной 2000 мм - для труб с условным проходом 100 - 300 и 2500 мм - для труб с условным проходом 350 - 1200 мм.
Двойные раструбы

Обозначение двойного патрубка условного прохода 150 мм:
Раструб ДР 150 ГОСТ 5525-88
Черт. 22
Таблица 14
Размеры, мм
|
Условный проход D0 |
D |
Dн |
l |
L |
Масса, кг |
|
65 80 100 125 150 200 250 300 350 400 450 500 600 700 800 900 1000 1200 |
71 85 106 130 156 206 260 310 360 410 460 510 600 710 810 920 1020 1230 |
122 140 163 194 220 276 330 385 438 492 546 600 710 822 930 1040 1150 1370 |
20 20 20 20 20 20 20 20 20 20 20 30 30 30 30 40 40 50 |
170 170 180 180 190 190 200 210 220 220 230 240 260 270 290 310 330 350 |
9,5 11,0 14,8 18,9 23,2 31,7 42,5 55,1 66,0 76,0 93,8 115 156 210 259 345 415 658 |
Муфты надвижные

Обозначение надвижной муфты условного прохода 300 мм:
Муфта МН 300 ГОСТ 5525-88
Черт. 23
Таблица 15
Размеры, мм
|
Условный проход D0 |
D |
S2 |
b |
с |
k |
r |
S |
L |
Масса, кг |
|
65 80 100 125 150 200 250 300 350 400 450 500 600 700 800 900 1000 1200 |
99 116 137 163 189 241 294 346 398 449 501 553 657 760 865 968 1072 1290 |
26 27 28 29 30 32 34 36 38 40 41 43 46 50 54 58 62 70 |
25 27 27 28 30 32 34 36 38 40 41 42 43 44 45 46 48 50 |
72 72 75 75 80 80 85 89 94 94 99 99 109 113 123 127 137 147 |
8 8 8 8 8 8 8 28 10 10 10 10 10 10 12 12 12 12 |
21 22 23 23 24 25 26 28 31 32 33 34 36 38 41 43 45 52 |
9 10 10 11 11 13 14 15 16 17 18 19 21 24 26 28 30 34 |
260 260 265 265 280 285 300 305 320 325 340 350 370 390 410 430 450 490 |
10,2 12,0 15,2 19,5 24,2 33,0 46,9 57,1 76,5 91,0 108 133 178 249 310 397 486 679 |
Примечание. Размеры раструбов - по черт. 1.
Муфты свертные

Обозначение свертной муфты условного прохода 200 мм:
Муфта МС 200 ГОСТ 5525-88
Черт. 24
Таблица 16
|
Условный проход D0 |
D |
L |
l |
l1 |
l2 |
l3 |
H |
h1 |
t |
S |
S1 |
d |
Болты |
|
|
Количество |
Диаметр резьбы |
|||||||||||||
|
65 |
99 |
260 |
18 |
112 |
157 |
169 |
43 |
20 |
1 |
9 |
15 |
18 |
6 |
М16 |
|
80 |
116 |
260 |
22 |
108,0 |
174 |
184 |
52 |
23 |
2 |
10 |
16 |
22 |
6 |
М20 |
|
100 |
137 |
265 |
22 |
110,5 |
200 |
212 |
56 |
29 |
6 |
10 |
16 |
22 |
6 |
М20 |
|
125 |
163 |
265 |
22 |
110,5 |
228 |
240 |
60 |
29 |
7 |
11 |
17 |
22 |
6 |
М20 |
|
150 |
189 |
280 |
22 |
118,0 |
254 |
270 |
66 |
35 |
13 |
11 |
17 |
22 |
6 |
М20 |
|
200 |
241 |
285 |
22 |
120,5 |
308 |
326 |
72 |
37 |
14 |
13 |
18 |
22 |
6 |
М20 |
|
250 |
294 |
300 |
25 |
125,0 |
365 |
385 |
83 |
43 |
17 |
14 |
19 |
25 |
6 |
M22 |
Заглушки фланцевые

Обозначение фланцевой заглушки условного прохода 400 мм:
Заглушка ЗФ 400 ГОСТ 5525-88
Черт. 25
Седелки фланцевые
Для D0 до 150 мм включ.

Для D0 более 150 мм

Обозначение седелки фланцевой на трубу с внутренним диаметром 400 мм:
Седелка СФ 400 ГОСТ 5525-88
Черт. 26
Таблица 17
Размеры, мм
|
Условный проход D0 |
b |
D |
D1 |
D2 |
d |
r |
h |
Болты |
Масса, кг |
|
|
Количество |
Диаметр резьбы |
|||||||||
|
65 |
21,0 |
- |
140 |
180 |
18 |
- |
- |
4 |
М16 |
3,75 |
|
80 |
21,0 |
- |
160 |
200 |
18 |
- |
- |
4 |
М16 |
4,63 |
|
100 |
- |
- |
180 |
220 |
18 |
- |
- |
4 |
М16 |
5,74 |
|
125 |
22,5 |
- |
210 |
250 |
18 |
- |
- |
8 |
М16 |
7,68 |
|
150 |
23,0 |
- |
240 |
285 |
22 |
- |
- |
8 |
М20 |
10,1 |
|
200 |
24,5 |
- |
295 |
340 |
22 |
- |
- |
8 |
М20 |
15,7 |
|
250 |
26,0 |
- |
350 |
395 |
22 |
- |
- |
12 |
М20 |
22,2 |
|
300 |
27,5 |
- |
400 |
445 |
22 |
- |
- |
12 |
М20 |
30,1 |
|
350 |
29,5 |
- |
460 |
505 |
22 |
- |
- |
16 |
М20 |
40,8 |
|
400 |
30,0 |
388 |
515 |
565 |
25 |
808 |
22 |
16 |
M22 |
53,2 |
|
450 |
32,0 |
432 |
565 |
615 |
25 |
878 |
26 |
20 |
M22 |
67,1 |
|
500 |
33,0 |
482 |
620 |
670 |
25 |
890 |
32 |
20 |
M22 |
82,8 |
|
600 |
36,0 |
560 |
725 |
780 |
30 |
964 |
40 |
20 |
M27 |
122 |
|
700 |
38,5 |
660 |
840 |
895 |
30 |
1074 |
50 |
24 |
M27 |
173 |
|
800 |
41,5 |
758 |
950 |
1015 |
34 |
1100 |
60 |
24 |
М30 |
241 |
|
900 |
44,0 |
858 |
1050 |
1115 |
34 |
1218 |
75 |
28 |
М30 |
309 |
|
1000 |
47,0 |
966 |
1160 |
1230 |
37 |
1264 |
90 |
28 |
М30 |
404 |
Таблица 18
Размеры, мм
|
Условный проход D0 |
h |
l |
d |
l1 |
l2 |
l3 |
R |
a |
b |
b1 |
с |
k |
d1 |
n |
m |
r |
Бандажи |
|
|
Количество |
Диаметр резьбы |
|||||||||||||||||
|
100 |
100 |
170 |
105 |
- |
133 |
66 |
64 |
- |
18 |
21 |
10 |
3,5 |
20 |
- |
- |
10 |
2 |
М16 |
|
125 |
100 |
200 |
115 |
- |
159 |
70 |
77 |
- |
19 |
22 |
8 |
3,5 |
20 |
- |
- |
10 |
2 |
М16 |
|
150 |
100 |
230 |
130 |
- |
185 |
80 |
90 |
- |
21 |
25 |
6 |
3,5 |
20 |
- |
- |
10 |
2 |
М16 |
|
200 |
100 |
280 |
140 |
150 |
225 |
90 |
117 |
28 |
23 |
27 |
- |
4,5 |
20 |
24 |
20 |
12 |
2 |
М16 |
|
250 |
115 |
300 |
140 |
160 |
246 |
90 |
143 |
35 |
26 |
30 |
- |
4,5 |
20 |
24 |
20 |
12 |
2 |
М16 |
|
300 |
120 |
320 |
140 |
170 |
264 |
90 |
169 |
43 |
28 |
34 |
- |
4,5 |
20 |
24 |
20 |
12 |
2 |
М16 |
|
350 |
125 |
340 |
145 |
180 |
276 |
95 |
195 |
51 |
30 |
38 |
- |
5,0 |
20 |
24 |
20 |
16 |
2 |
М16 |
|
400 |
130 |
360 |
145 |
190 |
288 |
95 |
221 |
59 |
32 |
42 |
- |
5,0 |
20 |
24 |
25 |
16 |
2 |
М16 |
|
450 |
135 |
380 |
145 |
200 |
300 |
95 |
247 |
67 |
34 |
45 |
- |
5,0 |
24 |
30 |
25 |
16 |
2 |
М20 |
|
500 |
140 |
390 |
150 |
210 |
315 |
95 |
273 |
75 |
36 |
48 |
- |
5,0 |
24 |
30 |
25 |
20 |
2 |
М20 |
|
600 |
140 |
410 |
150 |
230 |
336 |
95 |
325 |
92 |
38 |
52 |
- |
5,0 |
24 |
30 |
30 |
20 |
2 |
М20 |
|
700 |
145 |
420 |
155 |
250 |
356 |
95 |
378 |
110 |
40 |
54 |
- |
5,0 |
24 |
30 |
30 |
20 |
2 |
М20 |
|
800 |
150 |
430 |
155 |
265 |
268 |
95 |
431 |
128 |
42 |
56 |
- |
5,0 |
24 |
30 |
30 |
20 |
2 |
М20 |
|
900 |
155 |
440 |
160 |
280 |
380 |
100 |
484 |
146 |
44 |
58 |
- |
5,0 |
24 |
30 |
30 |
20 |
2 |
М20 |
|
1000 |
155 |
450 |
160 |
290 |
390 |
100 |
537 |
160 |
46 |
60 |
- |
5,0 |
24 |
30 |
30 |
20 |
2 |
М20 |
Примечание. Размеры фланцев - по черт. 2.
Седелки с резьбой
Для D0 до 150 мм включ. Для D0 более 150 мм

Обозначение седелки с резьбой на трубу с внутренним диаметром 300 мм:
Седелка ОР 300 ГОСТ 5525-88
Черт. 27
Пожарная подставка раструбная

Обозначение пожарной подставки раструбной со стволом условного прохода 200 мм:
Подставка ППР 200 ГОСТ 5525-88
Черт. 28
Таблица 19
Размеры, мм
|
Условный проход D0 |
h |
l |
d |
l1 |
l2 |
l3 |
R |
a |
b |
b1 |
с |
k |
d1 |
n |
т |
r |
Бандажи |
|
|
Количество |
Диаметр резьбы |
|||||||||||||||||
|
100 |
50 |
170 |
105 |
- |
133 |
66 |
64 |
- |
18 |
21 |
10 |
3,5 |
20 |
- |
- |
10 |
2 |
М16 |
|
125 |
60 |
200 |
115 |
- |
159 |
70 |
77 |
- |
19 |
22 |
8 |
3,5 |
20 |
- |
- |
10 |
2 |
М16 |
|
150 |
60 |
230 |
130 |
- |
185 |
80 |
90 |
- |
21 |
25 |
6 |
3,5 |
20 |
- |
- |
10 |
2 |
М16 |
|
200 |
70 |
280 |
140 |
150 |
225 |
90 |
117 |
28 |
23 |
27 |
- |
4,5 |
20 |
24 |
20 |
12 |
2 |
М16 |
|
250 |
70 |
300 |
140 |
160 |
246 |
90 |
143 |
35 |
26 |
30 |
- |
4,5 |
20 |
24 |
20 |
12 |
2 |
М16 |
|
300 |
80 |
320 |
140 |
170 |
264 |
90 |
169 |
43 |
28 |
34 |
- |
4,5 |
20 |
24 |
20 |
12 |
2 |
М16 |
|
350 |
80 |
340 |
145 |
180 |
276 |
95 |
195 |
51 |
30 |
38 |
- |
5,0 |
20 |
24 |
20 |
16 |
2 |
М16 |
|
400 |
80 |
360 |
145 |
190 |
288 |
95 |
221 |
59 |
32 |
42 |
- |
5,0 |
20 |
24 |
25 |
16 |
2 |
М16 |
|
450 |
90 |
380 |
145 |
200 |
300 |
95 |
247 |
67 |
34 |
45 |
- |
5,0 |
24 |
30 |
25 |
16 |
2 |
М20 |
|
500 |
90 |
390 |
150 |
210 |
315 |
95 |
273 |
75 |
36 |
48 |
- |
5,0 |
24 |
30 |
25 |
20 |
2 |
М20 |
|
600 |
100 |
410 |
150 |
230 |
336 |
95 |
325 |
92 |
38 |
52 |
- |
5,0 |
24 |
30 |
30 |
20 |
2 |
М20 |
|
700 |
100 |
420 |
155 |
250 |
355 |
95 |
378 |
110 |
40 |
54 |
- |
5,0 |
24 |
30 |
30 |
20 |
2 |
М20 |
|
800 |
100 |
430 |
155 |
265 |
368 |
95 |
431 |
128 |
42 |
56 |
- |
5,0 |
24 |
30 |
30 |
20 |
2 |
М20 |
|
900 |
100 |
440 |
160 |
280 |
380 |
100 |
484 |
146 |
44 |
58 |
- |
5,0 |
24 |
30 |
30 |
20 |
2 |
М20 |
|
1000 |
100 |
450 |
160 |
290 |
390 |
100 |
537 |
160 |
46 |
60 |
- |
5,0 |
24 |
30 |
30 |
20 |
2 |
М20 |
Примечание. Резьба седелки должна соответствовать размеру резьбы ответвления, но не превышать 2".
Таблица 20
Размеры, мм
|
Условный проход ствола D0 |
Dн |
S |
l |
l1 |
Mассa, кг |
|
100 |
118 |
10 |
200 |
225 |
38,0 |
|
125 |
144 |
11 |
200 |
250 |
48,0 |
|
150 |
170 |
11 |
200 |
250 |
52,5 |
|
200 |
222 |
13 |
250 |
275 |
75,0 |
|
250 |
274 |
14 |
250 |
300 |
97,0 |
|
300 |
326 |
15 |
250 |
325 |
121 |
Примечание. Размеры раструбов - по черт. 1.
Деталь построения фланца под пожарный кран

Черт. 28a
Тройник раструб - фланец с пожарной подставкой

Обозначение тройника раструба - фланца с пожарной подставкой со стволом условного прохода 250 мм и с отростком условного прохода 200 мм:
Тройник ППТРФ 250´200 ГОСТ 5525-88
Черт. 29
Тройник фланцевый с пожарной подставкой

Обозначение фланцевого тройника с пожарной подставкой со стволом условного прохода 300 мм и с отростком условного прохода 250 мм:
Тройник ППТФ 300´250 ГОСТ 5525-88
Черт. 30
Таблица 21
Размеры, мм
|
Условный проход |
Dн |
dн |
S |
S1 |
l |
l1 |
l2 |
Масса, кг |
|
|
ствола D0 |
отростка d0 |
||||||||
|
100 |
100 |
118 |
118 |
10 |
10 |
200 |
200 |
225 |
46,0 |
|
150 |
100 |
170 |
118 |
11 |
10 |
200 |
200 |
250 |
55,5 |
|
150 |
150 |
170 |
170 |
11 |
11 |
200 |
250 |
250 |
65,0 |
|
200 |
100 |
222 |
118 |
13 |
10 |
200 |
225 |
275 |
76,0 |
|
200 |
150 |
222 |
170 |
13 |
11 |
200 |
225 |
275 |
79,0 |
|
200 |
200 |
222 |
222 |
13 |
13 |
250 |
300 |
275 |
94,0 |
|
250 |
150 |
274 |
170 |
14 |
11 |
200 |
250 |
300 |
99,0 |
|
250 |
200 |
274 |
222 |
14 |
13 |
250 |
275 |
300 |
112 |
|
250 |
250 |
274 |
274 |
14 |
14 |
250 |
300 |
300 |
127 |
|
300 |
200 |
326 |
222 |
15 |
13 |
250 |
300 |
325 |
137 |
|
300 |
250 |
326 |
274 |
15 |
14 |
250 |
300 |
325 |
141 |
|
300 |
300 |
326 |
326 |
15 |
15 |
300 |
300 |
325 |
154 |
Примечания:
1. Размеры раструбов - по черт. 1.
2. Размеры фланца под пожарный кран - по чертежу детали построения к черт. 28.
Таблица 22
Размеры, мм
|
Условный проход |
Dн |
dн |
S |
S1 |
l |
l1 |
l2 |
Масса, кг |
|
|
ствола D0 |
отростка d0 |
||||||||
|
100 |
100 |
118 |
118 |
10 |
10 |
200 |
200 |
225 |
42 |
|
150 |
100 |
170 |
118 |
11 |
10 |
250 |
200 |
250 |
57 |
|
150 |
150 |
170 |
170 |
11 |
11 |
250 |
250 |
250 |
62 |
|
200 |
100 |
222 |
118 |
13 |
10 |
300 |
225 |
275 |
79 |
|
200 |
150 |
222 |
170 |
13 |
11 |
300 |
225 |
275 |
83 |
|
200 |
200 |
222 |
222 |
13 |
13 |
300 |
300 |
275 |
92 |
|
250 |
150 |
274 |
170 |
14 |
11 |
300 |
250 |
300 |
103 |
|
250 |
200 |
274 |
222 |
14 |
13 |
300 |
275 |
300 |
108 |
|
250 |
250 |
274 |
274 |
14 |
14 |
300 |
300 |
300 |
111 |
|
300 |
200 |
326 |
222 |
15 |
13 |
300 |
300 |
325 |
124 |
|
300 |
250 |
326 |
274 |
15 |
14 |
300 |
300 |
325 |
128 |
|
300 |
300 |
326 |
326 |
15 |
15 |
300 |
300 |
325 |
131 |
Примечания:
1. Размеры фланцев тройника - по черт. 2.
2. Размеры фланца под пожарный кран - по чертежу детали построения к черт. 28.
Крест раструб - фланец с пожарной подставкой

Обозначение креста раструба - фланца с пожарной подставкой со стволом условного прохода 200 мм и с отростком условного прохода 150 мм:
Крест ППКРФ 200´150 ГОСТ 5525-88
Черт. 31
Крест фланцевый с пожарной подставкой

Обозначение фланцевого креста с пожарной подставкой со стволом условного прохода 250 мм и с отростком условного прохода 200 мм:
Крест ППКФ 250´200 ГОСТ 5525-88
Черт. 32
Таблица 23
Размеры, мм
|
Условный проход |
Dн |
dн |
S |
S1 |
l |
l1 |
l2 |
Масса, кг |
|
|
ствола D0 |
отростка d0 |
||||||||
|
100 |
100 |
118 |
118 |
10 |
10 |
200 |
200 |
225 |
50,0 |
|
150 |
100 |
170 |
118 |
11 |
10 |
200 |
200 |
250 |
62,5 |
|
150 |
150 |
170 |
170 |
11 |
11 |
200 |
250 |
250 |
77,5 |
|
200 |
100 |
222 |
118 |
13 |
10 |
200 |
225 |
275 |
83,0 |
|
200 |
150 |
222 |
170 |
13 |
11 |
200 |
225 |
275 |
90,0 |
|
200 |
200 |
222 |
222 |
13 |
13 |
250 |
300 |
275 |
113 |
|
250 |
150 |
274 |
170 |
14 |
11 |
200 |
250 |
300 |
100 |
|
250 |
200 |
274 |
222 |
14 |
13 |
250 |
275 |
300 |
128 |
|
250 |
250 |
274 |
274 |
14 |
14 |
250 |
300 |
300 |
137 |
|
300 |
200 |
326 |
222 |
15 |
13 |
250 |
300 |
325 |
137 |
|
300 |
250 |
326 |
274 |
15 |
14 |
250 |
300 |
325 |
160 |
|
300 |
300 |
326 |
326 |
15 |
15 |
300 |
300 |
325 |
177 |
Примечания:
1. Размеры раструбов - по черт. 1.
2 Размеры фланцев креста - по черт. 2.
3. Размеры фланца под пожарный кран - по чертежу детали построения к черт. 28.
Таблица 24
Размеры, мм
|
Условный проход |
Dн |
dн |
S |
S1 |
l |
l1 |
l2 |
Масса, кг |
|
|
ствола D0 |
отростка d0 |
||||||||
|
100 |
100 |
118 |
118 |
10 |
10 |
200 |
200 |
225 |
53 |
|
125 |
125 |
144 |
144 |
11 |
11 |
225 |
225 |
250 |
75 |
|
150 |
100 |
170 |
118 |
11 |
10 |
250 |
200 |
250 |
63 |
|
150 |
150 |
170 |
170 |
11 |
11 |
250 |
250 |
250 |
79 |
|
200 |
150 |
222 |
170 |
13 |
11 |
300 |
225 |
275 |
94 |
|
200 |
200 |
222 |
222 |
13 |
13 |
300 |
300 |
275 |
111 |
|
250 |
150 |
274 |
170 |
14 |
11 |
300 |
250 |
300 |
111 |
|
250 |
200 |
274 |
222 |
14 |
13 |
300 |
275 |
300 |
124 |
|
250 |
250 |
274 |
274 |
14 |
14 |
300 |
300 |
300 |
131 |
|
300 |
200 |
326 |
222 |
15 |
13 |
300 |
300 |
325 |
140 |
|
300 |
250 |
326 |
274 |
15 |
14 |
300 |
300 |
325 |
148 |
|
300 |
300 |
326 |
326 |
15 |
15 |
300 |
300 |
325 |
154 |
Примечания:
1 Размеры фланцев креста - по черт. 2.
2. Размеры фланца под пожарный кран - по чертежу детали построения к черт. 28.
1.3. Допускаемые отклонения устанавливаются:
1) по длине соединительной части в соответствии с табл. 25.
Таблица 25
|
Вид отливки |
Условный проход, мм |
Допускаемые отклонения, мм |
|
Соединительные части с раструбами, с фланцем и раструбом, с фланцем и гладким концом |
До 450 включ. |
±20 |
|
Св. 450 |
+20 -30 |
|
|
Соединительные части с фланцами |
Все диаметры |
±10 |
2) по толщине стенки соединительной части (S1) - (20,05S1), мм;
3) по толщине фланца соединительной части (b) + (30,05b) мм;
4) по наружному диаметру и гладкому концу соединительной части (Dн + (4,5 + 0,0015D0) мм;
5) по внутреннему диаметру раструба (Dр) ± (1,5 + 0,001D0) мм:
до 600 мм включ. ±5 мм;
6) по глубине раструба (l1 + l2) для условного прохода ствола:
до 600 мм включ. ±5;
свыше 600 мм ±10 мм;
7) по диаметру центровых отверстий во фланцах (D1) + 1 мм;
8) по расстоянию между центрами отверстий ±0,5 мм;
9) по смещению центра окружности расположения центров болтовых отверстий относительно центра внутреннего диаметра фланца для условного прохода ствола:
от 50 до 150 мм включ. - не более 1 мм;
св. 150 до 500 мм включ. - не более 1,5 мм;
св. 500 мм - не более 2 мм.
Примечания:
1. Плюсовой допуск по толщине стенки соединительной части ограничивается допуском по массе.
2. На отдельных участках толщина стенки соединительной части может быть меньше, но не менее чем минимальная толщина стенки трубы класса Б того же диаметра, при условии, что площадь такого участка не превышает 1/10 площади поперечного сечения в свету.
3. Допускаемые отклонения по размерам наружного диаметра цилиндрической части трубы или гладкого конца соединительной части (Dн), а также по внутреннему диаметру раструба (Dp) не распространяются на соединительные части с резиновым уплотнением.
1.4. Отклонения фактической массы от теоретической не должно превышать:
для соединительных частей, за исключением отливок, приведенных ниже, +8 %;
для колен соединительных частей с двумя и более ответвлениями и нестандартных соединительных частей +12 %.
Примечания:
1. Допускается в партии 5 % соединительных частей, утяжеленных более чем указано.
2. По согласованию изготовителя с потребителем допускается увеличение максимальной массы соединительных частей при условии соблюдения всех остальных требований настоящего стандарта.
3. При подсчете массы изделий относительная масса чугуна принята равной 7,25.
2.1. Соединительные части изготовляют в соответствии с требованиями настоящего стандарта по технологическим регламентам, утвержденным в установленном порядке.
Соединительные части должны изготовляться из серого чугуна по ГОСТ 1412-85 и иметь однородную плотность.
2.2. Характеристики
2.2.1. Предел прочности разрыву металла соединительных частей при растяжении должен быть не менее 140 МПа (14 кгс/см2).
Твердость в центре толщины стенки отливки не должна превышать 250 единиц по Бринеллю.
2.2.2. Наружная и внутренняя поверхности соединительных частей должны быть чистыми и гладкими, без дефектов. Допускаются мелкие дефекты, обусловленные способом производства.
На внутренней и наружной поверхности соединительных частей допускается местный пригар песка толщиной не более 2 мм.
2.2.3. Соединительные части должны выдерживать гидравлическое давление, приведенное в табл. 26.
Таблица 26
|
Вид отливки |
Условный проход, мм |
Испытательное давление, МПа (кгс/см2) |
|
Соединительные части |
До 300 включ. Св. 300 |
2,5 (25) 2,0 (20) |
2.2.4. Допускается заварка дефектов на соединительных частях, а также на обработанных фланцах, при условии, что соединительные части будут подвергнуты в месте заварки зачистке и повторному гидравлическому испытанию давлением, повышенным на 0,5 МПа (5 кгс/см2) по сравнению с нормами, приведенными в табл. 26.
2.2.5. Торцы гладких концов соединительных частей, а также торцевые поверхности фланцев должны быть перпендикулярны к осям приведенных соединительных частей.
2.2.6. Оси болтовых отверстий фланцев на противоположных концах соединительной части должны составлять одну прямую линию. Отверстия могут быть просверлены или получены при отливке.
2.2.7. Соединительные части должны быть покрыты нефтяным битумом. Покрытие должно быть прочным, гладким, не должно иметь видимых трещин, не должно быть липким, растворяться в воде или придавать ей запах, размягчаться при температурах ниже +60 °С.
По требованию потребителя соединительные части должны быть без покрытия.
2.3. Маркировка и упаковка - по ГОСТ 10692-80 с дополнениями:
на каждой соединительной части должны быть приведены товарный знак предприятия-изготовителя, условный проход (мм) и год отливки. Маркировка наносится на наружной поверхности соединительной части.
3.1. Изделия принимают партиями. Партия должна состоять из изделий одной формы, одного размера, одной величины испытательного давления и оформлена одним документом о качестве в соответствии с ГОСТ 10692-80.
3.2. Осмотру, обмеру и гидравлическому испытанию должны быть подвергнуто каждое изделие.
3.3. Механические испытания чугуна изготовитель проводит в процессе производства от первого и последнего ковша каждой новой шихты или плавки.
3.4. Механические испытания и химический анализ на содержание углерода, кремния, марганца, фосфора и серы проводят на одних и тех же образцах.
3.5. При получении неудовлетворительных результатов испытаний хотя бы по одному из показателей по нему проводят повторное испытание на удвоенной выборке. Результаты повторных испытаний распространяются на всю партию.
4.1. Осмотр соединительных частей проводят без применения увеличительных приборов.
4.2. Химический анализ чугуна проводят по ГОСТ 22536.0-77 - ГОСТ 22536.6-77.
4.3. Гидравлическое испытание соединительных частей проводят по ГОСТ 3845-75 с выдержкой под давлением в течение 15 с.
При испытании изделие обстукивают стальным молотком.
4.4. Отбор образцов для механических испытаний - по ГОСТ 24648-81.
Образцы для испытания на растяжение (черт. 33) должны быть механически обработаны таким образом, чтобы диаметр был равен 20 - 25 мм. Концы образцов выполняются в соответствии с конструкцией испытательной машины.
4.5. Испытание на твердость должно проводиться по ГОСТ 9012-59. При разногласиях в оценке качества замеру твердости в центре толщины стенки отливки подвергается 1 % изделий от партии.
Транспортирование и хранение - по ГОСТ 10692-80.

Черт. 33
1. РАЗРАБОТАН И ВНЕСЕН Министерством черной металлургии СССР
РАЗРАБОТЧИКИ
В.И. Стрижак, В.М. Ворона, Г.А. Карпов, И.Г. Панюхно
2. УТВЕРЖДЕН И ВВЕДЕН В ДЕЙСТВИЕ Постановлением Государственного комитета СССР по стандартам от 29.06.88 № 2516
3. ВЗАМЕН ГОСТ 5525-61
4. ССЫЛОЧНЫЕ НОРМАТИВНО-ТЕХНИЧЕСКИЕ ДОКУМЕНТЫ
|
Обозначение НТД, на который дана ссылка |
Номер пункта |
|
3.1, 5.1 |
|
|
ГОСТ 24648-90 |
5. Переиздание. Ноябрь 1991 г.
СОДЕРЖАНИЕ