Информационная система
«Ёшкин Кот»

XXXecatmenu

МИНИСТЕРСТВО
СТРОИТЕЛЬСТВА И ЖИЛИЩНО-КОММУНАЛЬНОГО
ХОЗЯЙСТВА РОССИЙСКОЙ ФЕДЕРАЦИИ

(МИНСТРОЙ РОССИИ)

ПРИКАЗ

от «30» сентября

№ 686/пр

Москва

Об утверждении Изменения № 1 к СП 137.13330.2012 «Жилая среда
с планировочными элементами» доступными инвалидам.
Правила проектирования»

В соответствии с Правилами разработки, утверждения, опубликования» изменения и отмены сводов, правил, утвержденными постановлением Правительства Российской Федерации от 1 июля 2016 г. № 624, подпунктом 5.2.9 пункта 5 Положения о Министерстве строительства и жилищно-коммунального хозяйства Российской Федерации, утвержденного постановлением Правительства Российской Федерации от 18 ноября 2013 г, № 1038, пунктом 168 Плана разработки и утверждения сводов правил и актуализации ранее утвержденных сводов правил» строительных норм и правил на 2015 г. и плановый период до 2017 г., утвержденного приказом Министерства строительства и жилищно-коммунального хозяйства Российской Федерации от 30 июня 2015 г. № 470/пр с изменениями внесенными приказом Министерства строительства и жилищно-коммунального хозяйства Российской Федерации от 14 сентября 2015 г. № 659/пр, приказываю:

1. Утвердить и ввести в действие через 6 месяцев со дня издания настоящего приказа Изменение № 1 к СП 137.13330.2012 «Жилая среда с планировочными элементами, доступными инвалидам. Правила проектирования», утвержденному приказом Федерального агентства по строительству и жилищно-коммунальному хозяйству от 27 декабря 2012 г. № 119/ГС, согласно приложению и настоящему приказу.

2. Департаменту градостроительной деятельности и архитектуры в течение 15 дней со дня издания приказа направить утвержденное Изменение № 1 к СП 137.13330.2012 «Жилая среда с планировочными элементами, доступными инвалидам. Правила проектирования» на регистрацию в национальный орган Российской Федерации по стандартизации.

3. Департаменту градостроительной деятельности и архитектуры обеспечить опубликование на официальном сайте Минстроя России в информационно-телекоммуникационной сети «Интернет» текста утвержденного Изменения № 1 к СП 137.13330.2012 «Жилая среда с планировочными элементами, доступными инвалидам. Правила проектирования» в электронно-цифровой форме в течение 10 дней со дня регистрации свода правил национальным органом Российской Федерации по стандартизации.

4. Контроль за исполнением настоящего приказа возложить на заместителя Министра строительства и жилищно-коммунального хозяйства Российской Федерации Х.Д. Мавлиярова.

И. о. Министра

О.И. Бетин

Изменение № 1 к СП 137.13330.2012 «ЖИЛАЯ СРЕДА С ПЛАНИРОВОЧНЫМИ ЭЛЕМЕНТАМИ» ДОСТУПНЫМИ ИНВАЛИДАМ. ПРАВИЛА ПРОЕКТИРОВАНИЯ»

УТВЕРЖДЕНО и введено в действие приказом Министерства строительства и жилищно-коммунального хозяйства Российской Федерации от 30 сентября 2016 г.686/пр

Дата введения 2017-04-01

Содержание

Вставить между приложением А и библиографией наименование приложения Б в следующей редакции:

«Приложение Б (справочное) Требования к проектированию жилых ячеек для инвалидов-колясочников».

Введение

Второй абзац изложить в новой редакции:

«В настоящем своде правил реализованы требования федеральных законов [1] - [4], [6] и постановления Правительства Российской Федерации [5].».

Раздел 1 Область применения

Пункт 1.1. Изложить в новой редакции:

«1.1 Настоящий свод правил распространяется на проектирование жилых домов массового строительства, включая блокированные и жилые дома фонда социального использования, жилых частей общежитий, гостиниц, домов отдыха, пансионатов и других зданий временного пребывания, семейных детских домов, а также жилых помещений в составе других общественных зданий с целью обеспечения условий проживания инвалидов.

Допускается применение положений настоящего свода правил при проектировании одноквартирных (в том числе усадебных и коттеджей, а также блокированных) жилых домов.».

Раздел 2 Нормативные ссылки

Изменить шифр нормативного документа «СП 59.13330.2011» на «СП 59.13330.2016».

Исключить ссылку «ГОСТ Р 51633-2000 «Устройства и приспособления реабилитационные, используемые инвалидами в жилых помещениях. Общие технические требования».

Дополнить ссылками на следующие нормативные документы:

ГОСТ Р 55641-2013 Платформы подъемные для инвалидов и других маломобильных групп населения. Диспетчерский контроль. Общие технические требования

ГОСТ Р 55642-2013 Платформы подъемные для инвалидов и других маломобильных групп населения. Правила и методы исследований (испытаний) и измерений. Правила отбора образцов

ГОСТ Р 55555-2013 (ИСО 9386-1:2000) Платформы подъемные для инвалидов и других маломобильных групп населения. Требования безопасности и доступности. Часть 1. Платформы подъемные с вертикальным перемещением

ГОСТ Р 55556-2013 (ИСО 9386-2:2000) Платформы подъемные для инвалидов и других маломобильных групп населения. Требования безопасности и доступности. Часть 2. Платформы подъемные с наклонным перемещением

СП 1.13130.2009 «Системы противопожарной защиты. Эвакуационные пути и выходы» (с изменением № 1)

СП 7.13130.2013 «Отопление, вентиляция и кондиционирование. Требования пожарной безопасности»

СП 55.13330.2011 «СНиП 31-02-2001 Дома жилые одноквартирные».

Раздел 3 Термины и определения

Пункт 3.3. Изложить в новой редакции:

«3.3

жилищный фонд социального использования: Совокупность предоставляемых гражданам по договорам социального найма жилых помещений государственного и муниципального жилищных фондов, а также предоставляемых гражданам по договорам найма жилищного фонда социального использования жилых помещений государственного, муниципального и частного жилищных фондов.

[7, статья 19, часть 3, подпункт 2]

Пункт 3.4. Дополнить словами: «, предназначенные для временного проживания (пребывания)».

Дополнить раздел 3 терминами в следующей редакции:

«3.8

безопасная зона: Зона, в которой люди защищены от воздействия опасных факторов пожара или в которой опасные факторы пожара отсутствуют либо не превышают предельно допустимых значений.

[СП 59.13330.2012, приложение Б, пункт Б.12]

3.9

одноквартирный жилой дом: Дом, состоящий из отдельной квартиры (автономного жилого блока), включающий комплекс помещений, предназначенных для индивидуального и/или односемейного заселения жильцов, при их постоянном, длительном или кратковременном проживании (в т.ч. сезонном, отпускном и т.п.).

[СП 55.13330.2011, приложение Б, пункт 1.3]

3.10

блокированный жилой дом: Здание, состоящее из двух квартир и более, каждая из которых имеет непосредственно выход на приквартирный участок, в том числе при расположении ее выше первого этажа. Блокированный тип многоквартирного дома может иметь объемно-планировочные решения, когда один или несколько уровней одной квартиры располагаются над помещениями другой квартиры или когда автономные жилые блоки имеют общие входы, чердаки, подполья, шахты коммуникаций, инженерные системы.

[СП 54.13330.2011, приложение Б, пункт 1.1, перечисление г)]

Пункт 4.3. Изложить в новой редакции:

«Положения настоящего документа следует соблюдать при проектировании жилища любой формы собственности, в том числе располагаемых в общежитиях, жилой части общественных зданий временного пребывания (гостиниц, домов отдыха и пансионатов категорий «три звезды» и выше), а также в других общественных зданиях».

Пункт 5.4. Первый абзац. Изложить в новой редакции:

«5.4 В жилых зданиях и жилых группах помещений общественных зданий, нового строительства и реконструируемого жилищного фонда помещения, предназначенные для проживания инвалидов, должны быть обеспечены:

жилые комнаты квартир и общежитий квартирного типа - инсоляцией согласно СП 54.13330 и СанПиН 2.2.1/2.1.1.1076;

жилые комнаты квартир, жилых ячеек общежитий, номеров общественных зданий временного пребывания, а также кухни - естественным освещением согласно СП 52.13330 и СанПиН 2.1.2.2645.».

Второй абзац. Исключить.

Пункт 5.7. Первый абзац изложить в новой редакции:

«5.7 На территории зданий, имеющих квартиры (номера или жилые ячейки) для проживания инвалидов, следует предусмотреть доступность (по габаритам, уклонам и информационному сопровождению и оборудованию) следующих площадок и зон;

площадки перед всеми входами в жилую часть (или части) жилого дома, главный вход (выделенный для инвалидов) в общественное здание временного пребывания (или в каждый из блоков);

вход в нежилые помещения (кроме технических), расположенные на придомовой территории;

стоянки с местами для автомобилей инвалидов на кресле-коляске;

места кратковременной стоянки автотранспорта (вблизи жилого дома);

хозяйственные площадки (для размещения мусоросборников и др.);

площадки для отдыха взрослого населения;

площадки для игр детей;

площадки для занятий физкультурой;

площадки для выгула собак, в том числе собак-поводырей.».

Пункт 5.8. Слова «категориями граждан» заменить на «проживающими, оборудованных с учетом потребностей различных категорий инвалидов».

Пункт 5.9. Первое предложение. Слова: «на придомовой территории» дополнить словами «и участках зданий общественных зданий временного пребывания»: после слов «скамьями» дополнить текстом «(не менее одной, со спинкой и подлокотниками, размещение сиденья на высоте 0,5 м от уровня установки скамьи)».

Второе предложение. Исключить слова «также» и «здесь».

Пункт 5.10. Первое предложение. Заменить слова: «(гостиниц, общежитий и иных зданий временного пребывания)» на «(общежитий, гостиниц и других зданий временного пребывания)».

Пункт 5.12. Изложить в новой редакции:

«5.12 На придомовой территории или на территории общественных зданий временного пребывания с жилыми помещениями для инвалидов на креслах-колясках, с нарушениями зрения и слуха ширину и уклоны тротуаров и прогулочных дорожек, устройство и оборудование на путях движения площадок для отдыха следует принимать по СП 59.13330.».

Пункт 5.13. Заменить «0,9 м» на «1,2 м», дополнить словами «(с габаритами не менее 1,5×1,5 м)».

Пункт 5.14. Изложить в новой редакции:

«5.14 На участках общественных зданий временного пребывания и на придомовых территориях жилых зданий, имеющих уклон более 5 % или значительный перепад рельефа, следует предусматривать доступные для инвалидов пути движения, оборудованные пандусами с уклонами по СП 59.13330:

от входа(ов) в здание до входов на участок (или придомовую территорию);

до открытой стоянки с местами для автомобилей инвалидов на кресле-коляске;

не менее чем до одной зоны (площадки) отдыха.».

Пункт 5.15. Изложить в новой редакции:

«5.15 Места для машин инвалидов с учетом требований СП 59.13330 следует предусматривать:

на открытых автостоянках на придомовой территории многоквартирных жилых зданий;

в гаражах-стоянках, встроенных (встроенно-пристроенных и пристроенных) в жилые здания и общественные здания временного пребывания;

на открытых автостоянках общественных зданий временного пребывания.

Число мест для машин инвалидов определяется в соответствие с заданием на проектирование:

для общественных зданий временного пребывания - не менее 5 % общего числа мест;

жилых зданий и участков жилой застройки рекомендуется предусматривать не менее 3 % от общего числа мест, но не менее одного места; при проектировании жилого дома с квартирами для инвалидов - не менее числа этих квартир.».

Раздел 6 Требования к зданиям

Пункт 6.1. Изложить в новой редакции:

«6.1 При проектировании здании с жилыми помещениями для инвалидов следует учитывать требования:

для многоквартирных жилых зданий и общежитий квартирного типа - СП 54.13330 и настоящего свода правил;

для гостиниц, пансионатов, домов отдыха и других общественных зданий временного пребывания - СП 118.13330 и настоящего свода правил.».

Пункт 6.2. Слово «повреждениями» заменить словом «нарушениями».

Пункт 6.3. Слово «рекомендуется» заменить словом «следует», слова «конкретных условий, в доступно полном объеме в универсальной или в специализированной форме отдельных зон» на «конкретных условиях:

в доступно полном объеме в универсальной форме (для всех маломобильных групп населения);

в специализированной форме - в виде отдельных зон в зданиях (корпусов или частей корпусов), комплексно оборудованных для всех или для отдельных категорий инвалидов.».

Пункт 6.4. Первый абзац. Заменить слова: «слабовидящих, незрячих и глухих» на «инвалидов по зрению (незрячих и слабовидящих) и инвалидов с нарушениями слуха». Второй и третий абзацы изложить в новой редакции:

«При проектировании зданий с жилыми помещениями для инвалидов, передвигающихся на креслах-колясках, следует обеспечивать:

доступность этажа проживания (в том числе с использованием пандусов, лифтов или подъемников);

устройство безопасных зон;

необходимые габариты внутридомовых и внутриквартирных коммуникаций;

помещения и зоны квартиры (жилой ячейки или номера) за счет наличия пространств, обеспечивающих маневрирование на кресле-коляске в жилой комнате, передней, санитарно-гигиенических помещениях, на кухне, в летних помещениях (на балконе, лоджии, террасе или веранде).

Количество, размещение и вместимость безопасных зон - согласно требованиям СП 59.13330, СП 1.13130 и СП 7.13130. Допускается размещение безопасных зон смежно с лестницами или внеквартирными коридорами (см. рисунок А.1).

При реконструкции жилых зданий и общежитий допускается обеспечение доступности для движения инвалида на кресле-коляске (в том числе с сопровождающим) с использованием пандусов к входу в здание (с уклоном не более 1/6), от входа до лифтового холла и далее до этажа проживания (квартиры, жилой ячейки).».

Пункт 6.5. Заменить слово «дом» на «жилой дом», слово «квартирных» исключить.

Пункт 6.6. Второе предложение изложить в новой редакции:

«В квартире в минимальный состав помещений включаются также кухня, встроенные шкафы и (или) кладовая.».

Пункт 6.7. Изложить в новой редакции:

«6.7 Допускается устройство для проживания инвалидов одно- и двухкомнатных квартир односторонней ориентации в жилых домах секционного, коридорного или галерейного типа при соблюдении необходимых в соответствии с указаниями СП 54.13330 кратностей воздухообмена.».

Пункт 6.8. Изложить в новой редакции:

«6.8 При новом строительстве жилых, домов массового строительства (в том числе домов жилищного фонда социального использования) квартиры и жилые помещения рекомендуется проектировать с учетом возможности последующего их приспособления или дооборудования для проживания:

инвалидов с поражением опорно-двигательного аппарата с учетом требований к габаритам и качеству коммуникаций;

инвалидов по зрению и с нарушениями слуха - с учетом требований к дополнительным устройствам и оборудованию, обеспечивающим мероприятия по ориентированию в жилой среде.».

Пункт 6.10. Первый абзац. Исключить слова «и (или) общей комнаты (гостиной)».

Второй абзац. Изложить в новой редакции:

«В квартирах для семей с инвалидами в блокированных жилых домах с приквартирными участками жилые помещения для инвалидов следует размещать на уровне 1-го этажа, рекомендуется предусматривать выход (выезд) на участок.».

Пункты 6.11 и 6.12. Изложить в новой редакции:

«6.11 Квартиры для одиноко проживающих молодых инвалидов допускается объединять в группы с выделением на две - три квартиры дополнительной общей гостиной или других помещений согласно заданию на проектирование.

6.12 В квартирах (одноквартирных домах) для семей с детьми-инвалидами, в том числе предназначенных для семейных детских домов, следует проектировать отдельную спальню для ребенка-инвалида.».

Пункт 6.13. Заменить слова: «местного и мигрирующего населения» на «заселяемых».

Пункт 6.15. Изложить в новой редакции:

«6.15 Количество универсальных жилых ячеек в общежитиях, жилых номеров в гостиницах, мотелях, пансионатах, кемпингах и других общественных зданиях временного пребывания следует проектировать согласно СП 59.13330.».

Пункт 6.18. Изложить в новой редакции;

«6.18 В общежитиях, гостиницах, пансионатах, домах отдыха и других общественных зданиях временного пребывания должна быть обеспечена возможность пользования инвалидами следующими помещениями обслуживания (с учетом положений СП 59.13330, СП 136.13330 и СП 138.13330):

- в приемно-входной группе - бюро заказов, помещений дежурного медицинского персонала, офиса администрации, санузлов;

- на этажах с жилыми ячейками (или номерами) для инвалидов - помещений сушки одежды, поэтажных кладовых, гостиных и холлов (включая телевизионные), санузлов, а также поэтажных буфетов и летних помещений.».

Пункт 6.20. Изложить в новой редакции:

«6.20 При наличии перепадов уровней при входе в жилое здание, общежитие, гостиницу и другие общественные здания временного пребывания следует предусматривать пандус, обеспечивая движение кресло-коляски в одном направлении с уровня земли до отметки входа, или другие планировочные решения и (или) применение технических устройств для перемещения маломобильных групп населения, в том числе подъемных платформ. Ширину, уклон, ограждения и поручни пандусов следует принимать согласно СП 59.13330.».

Для жилых домов массового строительства (в том числе домов жилищного фонда социального использования) рекомендуется предусматривать планировочные решения без перепадов уровней между вестибюльно-входной группой и входами в лифты (см. рисунок А.2), а также минимальный перепад от уровня земли до входа(ов).

При наличии в жилых зданиях (в том числе реконструируемых) перепада уровней от входа до уровня пола 1-го этажа следует предусматривать технические устройства для перемещения маломобильных групп населения (подъемные платформы согласно требованиям ГОСТ Р 55642, ГОСТ Р 55641, ГОСТ Р 55555 и ГОСТ Р 55556), допускается применение потолочных систем для перемещения кресла-коляски.

В зданиях с проветриваемым подпольем, проектируемых в I климатическом районе, вместо пандусов при входе рекомендуется предусматривать дополнительные наземные вестибюли с подъемником или лифтом, достигающие отметки 1-го этажа.».

Пункт 6.21. Второй абзац. Заменить слова: «коттедж (квартиру блокированного жилого дома)» на «одноквартирный жилой дом (коттедж или усадебный жилой дом), в квартиру блокированного жилого дома».

Пункт 6.22. Первый абзац. Заменить обозначения рисунков «А.1 - А.3» на «А.3 - А.5», слова «а также к лифту» на «а также к лифту, в том числе для».

Второй абзац дополнить словами «(рисунок А.6)».

Пункт 6.23. Дополнить ссылками «СП 54.13330 и СП 118.13330».

Пункт 6.24. Первый абзац. Первое предложение. Заменить «расположенные на высоте 0,9 м» на «расположенные поперек дверного полотна (или под углом) на высоте 0,8 - 1,1 м».

Третье предложение. Изложить в новой редакции:

«В жилых помещениях рекомендуется применение регуляторов, запорных и замковых устройств, устройств для проветривания (фрамуги, форточки) с расположением ручек или других элементов открывания на высоте 0,8 - 1,1 м, а также по заданию на проектирование - выключателей (включателей) дистанционного управления электроосвещением, зашториванием, электронными приборами и иной техникой.».

Второй абзац. Изложить в новой редакции:

«Рекомендуется предусматривать на входной двери два глазка: как правило, на высоте 1,4 м от уровня пола - для стоящих людей; 1,2 м - для людей в кресле-коляске.».

Дополнить раздел 6 пунктом 6.25 в следующей редакции:

«6.25 При проектировании общественных зданий с временным пребыванием лиц с девиантным поведением на дверях эвакуационных выходов допускается применение электромагнитных замков. При этом следует предусмотреть разблокирование этих дверей одним из приведенных способов:

при срабатывании автоматической пожарной сигнализации и (или) автоматической установки пожаротушения;

дистанционно с пожарного поста (с поста охраны);

по месту с применением ручных магнитных ключей.».

Пункт 7.1.1. Первый абзац. Первое предложение. После слов «допускается увеличивать» дополнить словами «(по сравнению с указанным в таблице 5.1 СП 54.13330.2011)»; заменить «(рисунок А.4)» на «(рисунок А.7)».

Второй абзац. Заменить «таблицы 1» на «таблицы 5.1».

Пункт 7.1.2. Третье предложение изложить в новой редакции:

«Параметры подъемных платформ для маломобильных групп населения принимаются по ГОСТ Р 55642, ГОСТ Р 55641, ГОСТ Р 55555 и ГОСТ Р 55556.».

Пункт 7.1.3. Второй абзац. Заменить слова: «они должны быть связаны с общественной частью комплекса переходами (при круглогодичной эксплуатации - теплыми)» на «их рекомендуется соединять с общественной частью комплекса теплыми переходами».

Пункт 7.1.4. Четвертый абзац. Заменить слова: «инвалидом/инвалидами» на «инвалидом или инвалидами».

Пункт 7.2.1. Пункт изложить в новой редакции:

«7.2.1 Жилые комнаты для инвалидов в жилых домах (в том числе в домах жилищного фонда социального использования) могут быть рассчитаны на проживание:

- одного человека - одиноко проживающего инвалида, взрослого члена семьи или ребенка-инвалида;

- двух человек - супружеская пара, в которой инвалидом(ами) является(ются) один или оба члена семьи.».

Пункт 7.2.2. Таблица 1. В третьей графе заменить «номер» на «номер (или жилая ячейка)».

Примечание к таблице 1 изложить в новой редакции:

«Примечание - Цифры в скобках - площадь при проживании инвалида, передвигающегося на кресле-коляске.».

«7.2.3 Ширина (по наружной стене) жилой комнаты (спальни, общей комнаты или гостиной) квартиры, жилой ячейки или номера для проживания инвалидов должна быть не менее 3,0 м, для передвигающихся на креслах-колясках - 3,4 м.

Глубина (перпендикулярно наружной стене) помещения должна быть не менее 2,5 м, рекомендуемая глубина - не более ее двойной ширины. При наличии летнего помещения глубиной 1,5 м и более глубину комнаты определяют на основании нормативных требований по обеспечению коэффициента естественной освещенности по СП 52.13330 и СанПиН 2.1.2.2645.».

Пункт 7.2.4. Первый абзац. Изложить в новой редакции:

«7.2.4 В квартирах для семей с инвалидами, пользующимися креслами-колясками, допускается предусматривать непосредственный вход из жилой комнаты (спальни, гостиной или общей комнаты) в санитарно-гигиеническое помещение, в том числе оборудованное унитазом; рекомендуется предусматривать сдвижную (или складную) дверь.».

Второй абзац. Заменить слово «(спальню)» на «(номер, жилую ячейку, а в квартире - спальню, гостиную или общую комнату)».

Третий абзац. Заменить слово «(спальню)» на «(номера, жилой ячейки, а в квартире - спальни, гостиной или общей комнаты)», «(рисунок А.5)» на «(рисунок А.8)».

Пункт 7.2.5. Заменить слова: «в спальне (жилой комнате)» на «жилой комнате (номере, жилой ячейке, а в квартире - спальне, гостиной или общей комнате)».

Пункт 7.2.6. Слово «поворотные» исключить, заменить «стен» на «стен или передвижные подъемники».

Дополнить вторым абзацем в следующей редакции:

«Согласно заданию на проектирование допускается предусматривать для перемещения по квартире инвалида с нарушением опорно-двигательного аппарата оборудование в составе потолочной рельсовой системы для подвески подъемника.».

Пункт 7.2.7. Изложить в новой редакции:

«7.2.7 В двухместных номерах гостиниц, пансионатов и других общественных зданиях временного пребывания кровати, как правило, должны располагаться раздельно.».

Пункт 7.2.8. Второй абзац изложить в новой редакции:

«В гостиницах, пансионатах, домах отдыха, кемпингах и других общественных зданиях временного пребывания рекомендуется для облегчения доступа в номер дежурному персоналу для оказания помощи инвалиду предусматривать электронный замок запирания двери номера с применением магнитных ключей, в том числе с возможностью для проживающего дистанционного управления им.».

Пункт 7.2.10. Изложить в новой редакции:

«7.2.10 Жилые комнаты квартир и общежитий квартирного типа не допускается размещать смежно с помещениями с повышенным уровнем шума.».

Пункт 7.2.11. Слова «(рисунок А.6)» заменить на «(рисунки А.9, А.10)».

Пункт 7.2.12. Заменить «18 м2» на «площадью 18 - 20 м2».

Пункт 7.2.13. Первый абзац изложить в новой редакции:

«7.2.13 Планировка жилой комнаты (номера, жилой ячейки, в квартире - общей комнаты или гостиной, спальни) должна обеспечивать возможность подъезда на кресле-коляске к месту отдыха, элементам мебели, местам установки бытовой техники и окну.».

Пункт 7.2.14. Второй абзац. Первое предложение исключить.

Второе предложение. Слово «штучного» исключить.

Пункт 7.3.1. Исключить ссылку «(рисунок А.7)» и слово «полная».

Пункт 7.3.2. Четвертый абзац. Заменить слова: «В передней» на «В передней (или в кладовой при передней)».

Второе предложение исключить.

Пункт 7.3.4. Заменить «рисунок А.8» на «рисунок А.11».

Пункт 7.3.5. Исключить ссылку «(рисунок А.9)».

Пункт 7.4.2. Пятый абзац изложить в новой редакции:

«В квартирах для семей с инвалидами, пользующимися креслами-колясками, допускается проектировать вход из кухни в помещение (совмещенный санузел или уборная), оборудованное унитазом, рекомендуется предусматривать сдвижную (или складную) дверь.».

Пункт 7.4.3. Заменить «(рисунки А.10, А.11)» на «(рисунки А.12, А.13», «1,6» на «1,4».

Дополнить подраздел 7.4 пунктом 7.4.6 в следующей редакции:

«7.4.6 Краны на кухнях должны быть обеспечены открывателями локтевого типа и снабжены термостатами, ограничивающими температуру поступающей воды до 50 °С.».

Пункт 7.5.1. Шестой абзац. Изложить в новой редакции:

«В санитарно-гигиенических помещениях для перечисленных групп маломобильных граждан предусматриваются следующие зоны, площади и оборудование:

группы а) - зона пересадки с кресла-коляски на унитаз, установка подъемника для пересадки в ванну и на унитаз с помощью совместно проживающих или персонала;

группы б) - дополнительная площадка для самостоятельного маневра на кресле-коляске, зона пересадки с кресла-коляски на унитаз, сиденье ванной или для душа (откидное или поворотное), опорные поручни около унитаза, раковины, душа или ванной, подъемники или потолочные кольца и штанги;

групп в) и г) - дополнительное оборудование (поручни и т.п.) и увеличение площади с учетом пользования указанным оборудованием, а также для передвижения с помощью костылей или трости.».

Пункт 7.5.2. Заменить «т.п.» на «других».

Пункт 7.5.3. Второй абзац. Заменить слова: «следует использовать дополнительные подкладки или сиденья» на «рекомендуется применение накладок-сидений на унитаз (или применение унитазов с возможностью регулировки по высоте)».

Пункт 7.5.4. Первый абзац. Заменить слова: «или раздельных санузлов» на «или раздельных санузлов уборных», «(рисунки А.12, А.13)» на «(рисунки А.14, А.15)».

Третье предложение набрать с абзацным отступом и далее текст изложить в следующей редакции:

«В совмещенных санузлах или ванных комнатах для инвалидов рекомендуется:

- применение сидячих ванн, ванн с открывающимися боковыми дверцами или аналогичного санитарного оборудования;

- при иных типах ванн - применение средств для пересадки инвалида, передвигающегося на кресло-коляске, - сиденье (поворотное, откидное и т.п., различные виды подъемных устройств);

- применение душей с поддонами в уровне пола со сливным отверстием (трапом);

- расстановка санитарного оборудования с учетом индивидуальных потребностей проживающих инвалидов, а также с возможностью регулировки устанавливаемого оборудования по высоте.

Досягаемость умывальника целесообразно предусматривать как с кресла-коляски, так и с унитаза.

Для уменьшения числа перемещений допускается применение унитазов, совмещенных с биде, или размещение рядом с унитазом душа-биде.».

Пункт 7.5.5. Изложить в новой редакции:

«7.5.5 В свободных от оборудования зонах следует предусматривать настенные поручни на высоте 0,75 - 0,9 м диаметром до 25 мм (настенной или напольной установки и фиксации), потолочную рельсовую систему для подвески подъемника (или подъемник напольного и настенного крепления).

При отсутствии подъемников с учетом индивидуальных возможностей инвалида допускается предусматривать трапеции, штанги с кольцами и другое оборудование. Диаметр подвесных штанг для поддержания должен быть 25 - 32 мм.

Поручни, штанги, опорные подвесные элементы должны иметь усиленное крепление, рассчитанное на статическую нагрузку не менее 120 кгс.

Следует предусматривать установку оборудования с возможностью индивидуальной регулировки по высоте.

Уровень дна ванны должен, как правило, находиться на отметке пола; при. использовании передвижных подъемных устройств для пересадки инвалидов в ванну следует обеспечивать возможность подъезда под нее нижней конструкции подъемника с учетом его технических характеристик.

Допускается предусматривать около ванной ступеньку высотой до 0,15 м.

При устройстве в санитарно-гигиенических помещениях душа пол помещения рекомендуется выполнять без перепадов высоты со сливным отверстием (трапом). При вариантах оборудования в санитарно-гигиенических помещениях душа и ванны должна обеспечиваться возможность отвода воды для каждого из указанных элементов оборудования.

Отделка пола санитарно-технических помещений должна быть выполнена из нескользких материалов.».

Пункт 7.5.6. Заменить «типа» на «типа, их следует устанавливать на высоте 0,85 м для удобного подъезда кресло-коляски», «Краны в ванных и кухнях» на «Краны в санитарно-гигиенических помещениях».

Пункт 7.5.7. Исключить.

Пункт 7.5.8. Первое предложение. Заменить слова: «санитарных узлов» на «санитарно-гигиенических помещений».

Второе предложение изложить в новой редакции: «При открывании дверей внутрь помещения они должны иметь размеры, обеспечивающие требования 7.2 и 7.5, в том числе зону для разворота кресла-коляски, не пересекающуюся с зоной открывания двери и свободную от оборудования.».

Третье предложение набрать с абзацного отступа, заменить «санитарных узлов» на «санитарно-гигиенических помещений».

Пункт 7.6.1. Заменить «(рисунок А.14)» на «(рисунок А.16)».

Пункт 7.6.2. Первый абзац. Заменить «6.1.6 СП 59.13330» на «СП 59.13330».

Третий абзац изложить в новой редакции;

«В необходимых случаях для выравнивания уровней полов помещений квартиры (или жилой ячейки) и летних помещений рекомендуется устройство фальшполов, пропускающих атмосферные осадки до уровня основного пола летнего помещения.».

Приложение А. Изложить в новой редакции:

«Приложение А
(справочное)
Примеры устройства элементов жилой среды с учетом обеспечения
требований доступности для инвалидов

Рисунок А.1 - Вариант устройства безопасной зоны в жилом здании -
при лестнично-лифтовом узле

Рисунок А.2 - Варианты решений первого этажа в жилых домах нового строительства
без перепада уровня между вестибюльно-входной группой и входом в лифты:
рядовая блок-секция (а); угловая блок-секция (б)

Рисунок А.2 - Решение первых этажей блок-секций жилых домов
нового строительства без перепада между уровнями
вестибюль-входной зоны и входами в лифты:
блок-секция (а); угловая блок-секция (б)

1 - контрастная маркировка нижней проступи ступени и верхней горизонтальной
площадки завершения марша (ширина 60 - 300 мм);
2 - контрастная поверхность марша пандуса;
3 - ограждение с поручнем на высоте 900 мм;
4 - контрастная маркировка нижней проступи ступени и верхней горизонтальной
площадки завершения марша;
5 - поручень на высоте 900 мм;
6 - дренажная решетка с размерами ячеек не более 13×15 (ширинах длина) мм;
7 - ограждение с поручнями на высоте 900 и 700 мм

Рисунок А.3 - Решение входной группы с наружным пандусом с установкой
в вестибюле подъемной платформы с вертикальным перемещением

Рисунок А.4 - Решение вестибюльно-входной группы
с установкой в вестибюле подъемной платформы с наклонным перемещением

Рисунок А.5 - Решение вестибюльно-входной группы
с установкой в вестибюле подъемной платформы с вертикальным перемещением

Рисунок А.6 - Зоны хранения:
кресла-коляски для инвалида (а); детской коляски (б);
вариант колясочной с местом для пересадки на кресло-коляску (в)

* В числителе указана суммарная площадь жилых комнат. В знаменателе указана общая площадь
квартиры (без учета летних помещений).

Рисунок А.7 - Варианты планировочных решений квартир с различным
количеством комнат для семей с инвалидом-колясочником

Рисунок А.8 - Варианты размещения спального места и функциональные зоны
в жилых комнатах (спальнях)

Рисунок А.9 - Гостиничные номера для одного инвалида,
передвигающегося на кресле-коляске

Рисунок А.10 - Гостиничные номера для одного инвалида,
не пользующегося креслом-коляской

Рисунок А.11 - Продуктовые кладовые (а); кладовые бытовые (б); встроенные
шкафы (в) и гардеробные (г)

1 - мойка консольного типа; 2 - электроплита консольного типа; 3 - жарочный шкаф настольный;
4 - холодильник; 5 - полки навесные; 6 - полки поворотные; 7 - стол консольный

Рисунок A.12 - Функциональная зона у обеденного стола (а) и Г- и П-образное
размещение кухонного фронта оборудования (б) для семьи
с инвалидом-колясочником

Рисунок А.13 - Варианты кухонь для квартир с различным количеством жилых
комнат: для 1 - 2-комнатной квартиры (а), для квартиры с количеством жилых
комнат 3 и более (б)

1 - поручень настенный; 2 - сиденье; 3 - поручень для умывальника;
4 - гидроподъемник; 5 - поручень
ручка дверная

Рисунок А.14 - Совмещенные санузлы, оборудованные ванной для инвалидов,
пользующихся креслом-коляской

1 - подлокотник на Н = 500;
2 - поручень настенный горизонтальный;
3 - поручень настенный вертикальный;
4 - откидная скамья;
5 - смеситель настенный;
6 - трап;
7 - раковина с опорным поручнем;
8 - поручень откидной

1 - поручень настенный;
2 - сиденье;
3 - поручень для умывания;
4 - поручень для шторок;
5 - поручень откидной;
6 - поручень ручка дверная

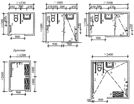
Рисунок А.15 - Варианты оборудования санитарно-гигиенических помещений

Рисунок A.16 - Варианты решений летних помещений

Дополнить приложением Б в следующей редакции:

«Приложение Б
(справочное)
Требования к проектированию жилых ячеек для инвалидов-колясочников
(введено дополнительно, Изменение № 1)

Таблица Б.1

Характеристика

Основные требования

Дополнительные требования

Квартиры для семьи с инвалидом-колясочником

Площадь:

 

 

1-комнатная

≥ 47 м2

 

2-комнатная

≥ 63 м2

 

3-комнатная

≥ 74 м2

 

4-комнатная

≥ 87 м2

 

Помещения квартир

Гостиная, общая комната, площадь:

 

 

1 - 2 - комнатные квартиры

≥ 18 - 20 м2

 

3 - 4 - комнатные квартиры

≥ 20 - 22 м2

 

ширина

≥ 3,0 м

 

глубина

≥ 2,5 м

 

Спальня, площадь

≥ 20 м2

Для двух проживающих

≥ 24 м2

ширина

≥ 3,0 м

 

глубина

≥ 2,5 м

 

Кухня, площадь

≥ 9 м2

Для жилых домов, не входящих в фонд социального использования, и семейных детских домов рекомендуется 12 м2

ширина

≥ 2,3 м

При одностороннем размещении оборудования

≥ 2,9 м

При угловом или двухстороннем размещении оборудования

Передняя, ширина

≥ 1,4 м

 

Коридоры, ширина

≥ 1,15 м

 

Помещение для надомного труда, мастерская, площадь

≥ 8 м2

По заданию на проектирование

Кладовая, площадь

Наличие

Рекомендуется ≥ 4 м2

Зона для хранения уличной кресло-коляски

Наличие

Допускается в передней или кладовой

Ванная комната или совмещенный санитарный узел

≥ 2,2×2,2 м

При открывании дверей наружу; габариты могут быть уточнены с учетом

Уборная:

 

- с умывальником

≥ 1,6×2,2 м

расстановки оборудования

- без умывальника

≥ 1,2×1,6 м

Тамбур для установки платформы, площадь

12 м2

При входе в квартиру с приквартирного участка

Летние помещения (лоджии, балконы)

Ширина (от наружной стены до ограждения)

≥ 1,4 м,

Высота ограждения - 1,15 - 1,2 м

≥ 1,2 при длине помещения более 3,2 м (по 1,2 м в каждую сторону от двери)

Жилая комната в номере (или жилой ячейке общежития)

Площадь:

 

 

- для одного проживающего

12 м2

 

- для двух проживающих

22 м2

 

- для четырех проживающих

30 м2

 

Зоны разворота

В каждом помещении (в том числе в передней, кладовой и каждом коридоре), диаметр

≥ 1,4 м

 

Перед дверью, у кровати, перед шкафами, перед окнами, диаметр

≥ 1,4 м

 

Двери

Входная дверь в квартиру, на летнее помещение (балкон, лоджия, терраса, веранда)

≥ 0,9 м

Высота второго дверного глазка 1,2 м

Другие внутриквартирные двери, дверь в санузел для инвалида

≥ 0,8 м

 

Пороги

Высота каждого элемента порога входной двери, двери на балкон

≥ 1,4 см

 

Дверные проемы внутри квартиры

Без порогов

Допускается ≤ 1,4 см

Проходы между мебелью

Между спинкой кровати и стеной с окном

≥ 0,5 м

 

Между кроватью и стеной с окном

≥ 0,9 м

 

Между кроватями

≥ 1,0 м

 

Между спинками кроватей или спинкой и стеной

≥ 1,4 м

 

Между кроватью и шкафом с распашными дверцами

≥ 1,4 м

 

Между спинкой кровати и соседней кроватью

≥ 1,0 м»

 

Библиография

[2]. Заменить «191-ФЗ» на «190-ФЗ».

Заменить [4] на [4] - [7] в следующей редакции:

«[4] Федеральный закон от 22 июля 2008 г. № 123-ФЗ «Технический регламент о требованиях пожарной безопасности»

[5] Постановление Правительства Российской Федерации от 17 апреля 2014 г. № 297 «Об утверждении государственной программы Российской Федерации «Доступная среда» на 2011 - 2015 годы» (программа продлена распоряжением Правительства Российской Федерации от 27 октября 2014 г. № 2136-р до 2020 г.)

[6] Федеральный закон Российской Федерации от 01 декабря 2014 г. № 419-ФЗ «О внесении изменений в отдельные законодательные акты Российской Федерации по вопросам социальной защиты инвалидов в связи с ратификацией Конвенции о правах инвалидов»

[7] Федеральный закон от 29 декабря 2004 г. № 188-ФЗ «Жилищный кодекс Российской Федерации»

Ключевые слова: жилые здания, инвалиды, маломобильные группы населения, гостиница, общежитие, квартира, жилая ячейка, кухня, спальня, летнее помещение

 

Директор НИИСФ РААСН

______________

личная подпись

И.Л. Шубин

СОИСПОЛНИТЕЛИ

ООО «Институт общественных зданий»

 

 

Директор по науке, канд. арх., профессор, Почетный арх. России

______________

личная подпись

А.М. Гарнец

Канд. архитектуры Заместитель начальника Управления ДТП г. Москвы

______________

личная подпись

С.И. Яхкинд

Президент Ассоциации МОАБ, доктор технических наук

______________

личная подпись

М.М. Мирфатуллаев

Профессиональное объединение универсального дизайна «Доступная городская среда

 

 

Директор

______________

личная подпись

В.В. Коновалова

 



© 2013 Ёшкин Кот :-)