| ||||||||||||||||||||||||||||||||||||||||||||||||||||||||||||||||||||||||||||||||||||||||||||||||||||||||||||||||||||||||||||||||||||||||||||||||||||||||||||||||||||||||||||||||||||||||||||||||||||||||||||||||||||||||||||||||||||||||||||||||||||||||||||||||||||||||||||||||||||||||||||||||||||||||||||||||||||||||||||||||||||||||||||||||||||||||||||||||||||||||||||||||||||||||||||||||||||||||||||||||||||||||||||||||||||||||||||||||||||||||||||||||||||||||||||||||||||||||||||||||||||||||||||||||||||||||
|
МЕЖГОСУДАРСТВЕННЫЙ СОВЕТ ПО
СТАНДАРТИЗАЦИИ, МЕТРОЛОГИИ И СЕРТИФИКАЦИИ INTERSTATE
COUNCIL FOR STANDARDIZATION, METROLOGY AND CERTIFICATION
Система
проектной документации ПРАВИЛА
ВЫПОЛНЕНИЯ
Цели, основные принципы и основной порядок проведения работ по межгосударственной стандартизации установлены ГОСТ 1.0-92 «Межгосударственная система стандартизации. Основные положения» и ГОСТ 1.2-2009 «Межгосударственная система стандартизации. Стандарты межгосударственные, правила и рекомендации по межгосударственной стандартизации. Правила разработки, принятия, применения, обновления и отмены» Сведения о стандарте 1 РАЗРАБОТАН Открытым акционерным обществом «Центр методологии нормирования и стандартизации в строительстве» (ОАО «ЦНС») 2 ВНЕСЕН Техническим комитетом ТК 465 «Строительство» 3 ПРИНЯТ Межгосударственной научно-технической комиссией по стандартизации, техническому нормированию и оценке соответствия в строительстве (МНТКС) (протокол от 8 декабря 2011 г. № 39) За принятие проголосовали:
4 Приказом Федерального агентства по техническому регулированию и метрологии от 11 октября 2012 г. № 485-ст введен в действие в качестве национального стандарта Российской Федерации с 1 мая 2013 г. 5 ВЗАМЕН ГОСТ 21.501-93 Информация о введении в действие (прекращении действия) настоящего стандарта публикуется в ежемесячно издаваемом указателе «Национальные стандарты». Информация об изменениях к настоящему стандарту публикуется в ежегодно издаваемом информационном указателе «Национальные стандарты», а текст изменений и поправок - в ежемесячно издаваемом информационном указателе «Национальные стандарты». В случае пересмотра или отмены настоящего стандарта соответствующая информация будет опубликована в ежемесячно издаваемом информационном указателе «Национальные стандарты» СОДЕРЖАНИЕ Система проектной документации для строительства ПРАВИЛА
ВЫПОЛНЕНИЯ РАБОЧЕЙ ДОКУМЕНТАЦИИ System of design documents for
construction. Дата введения - 2013-05-01 1 Область примененияНастоящий стандарт устанавливает состав и правила оформления рабочей документации архитектурных и конструктивных решений зданий и сооружений различного назначения, а также рабочей документации на строительные изделия. Состав и правила оформления рабочей документации конструктивных решений металлических строительных конструкций установлены в ГОСТ 21.502. 2 Нормативные ссылкиВ настоящем стандарте использованы ссылки на следующие стандарты: ГОСТ 2.109-73 Единая система конструкторской документации. Основные требования к чертежам ГОСТ 2.113-75 Единая система конструкторской документации. Групповые и базовые конструкторские документы ГОСТ 2.306-68 Единая система конструкторской документации. Обозначения графические материалов и правила их нанесения на чертежах ГОСТ 21.101-97* Система проектной документации для строительства. Основные требования к проектной и рабочей документации __________ * На территории Российской Федерации действует ГОСТ Р 21.1101-2009. ГОСТ 21.110-95 Система проектной документации для строительства. Правила выполнения спецификации оборудования, изделий и материалов ГОСТ 21.113-88 Система проектной документации для строительства. Обозначения характеристик точности ГОСТ 21.201-2011 Система проектной документации для строительства. Условные изображения элементов зданий, сооружений и конструкций ГОСТ 21.205-93 Система проектной документации для строительства. Условные обозначения элементов санитарно-технических систем ГОСТ 21.502-2007 Система проектной документации для строительства. Правила выполнения проектной и рабочей документации металлических конструкций ГОСТ 82-70 Прокат стальной горячекатаный широкополосный универсальный. Сортамент ГОСТ 103-2006 Прокат сортовой горячекатаный полосовой. Сортамент ГОСТ 5781-82 Сталь горячекатаная для армирования железобетонных конструкций. Технические условия ГОСТ 6727-80 Проволока из низкоуглеродистой стали холоднотянутая для армирования железобетонных конструкций. Технические условия ГОСТ 8510-86 Уголки стальные горячекатаные неравнополочные. Сортамент ГОСТ 13015-2003 Изделия железобетонные и бетонные для строительства. Общие технические требования. Правила приемки, маркировки, транспортирования и хранения ГОСТ 14098-91 Соединения сварные арматуры и закладных изделий железобетонных конструкций. Типы, конструкции и размеры ГОСТ 21780-2006 Система обеспечения точности геометрических параметров в строительстве. Расчет точности ГОСТ 23009-78 Конструкции и изделия бетонные и железобетонные сборные. Условные обозначения (марки) Примечание - При пользовании настоящим стандартом целесообразно проверить действие ссылочных стандартов на территории государства по соответствующему указателю стандартов, составленному по состоянию на 1 января текущего года, и по соответствующим информационным указателям, опубликованным в текущем году. Если ссылочный стандарт заменен (изменен), то при пользовании настоящим стандартом следует руководствоваться заменяющим (измененным) стандартом. Если ссылочный стандарт отменен без замены, то положение, в котором дана ссылка на него, применяется в части, не затрагивающей эту ссылку. 3 Термины и определенияВ настоящем стандарте применены следующие термины с соответствующими определениями: 3.1 чертежи архитектурных решений: Чертежи здания или сооружения, отображающие авторский замысел объекта с комплексным решением пространственных, планировочных, функциональных и эстетических требований к нему, зафиксированный в виде контурного условного изображения несущих и ограждающих конструкций. 3.2 чертежи конструктивных решений: Чертежи, отображающие в виде условных изображений строительные конструкции (железобетонные, каменные, металлические, деревянные, пластмассовые и т.п.), примененные в зданиях или сооружениях, и их взаимное размещение и соединение. 3.3 строительная конструкция: Часть здания или сооружения, выполняющая определенные несущие, ограждающие и (или) эстетические функции. 3.4 строительное изделие: Изделие, предназначенное для применения в качестве элемента зданий, сооружений и строительных конструкций. 3.5 элемент строительной конструкции: Составная часть сборной или монолитной конструкции. 3.6 строительный материал: Материал, в том числе штучный, предназначенный для изготовления строительных изделий и возведения строительных конструкций зданий и сооружений. 4 Общие положения4.1 Рабочую документацию архитектурных и конструктивных решений, а также строительных изделий выполняют в соответствии с требованиями ГОСТ 21.101 и настоящего стандарта. 4.2 Условные графические изображения элементов зданий, сооружений и строительных конструкций принимают по ГОСТ 21.201. 4.3 Графические обозначения материалов в сечениях, разрезах и на фасадах, а также правила их нанесения принимают по ГОСТ 2.306. 4.4 Элементы санитарно-технических систем (ванны, раковины, унитазы и др.) в зависимости от масштаба чертежа изображают упрощенно, учитывая их конструктивные особенности, или условными графическими обозначениями по ГОСТ 21.205. 4.5 Буквенно-цифровые обозначения (марки) элементов и строительных конструкций зданий (сооружений), а также строительных изделий составляют из буквенного обозначения их типа и порядкового номера. Обозначение типа элемента, конструкции и изделия состоит из условного буквенного обозначения их наименования. Буквенные обозначения наименований конструкций и изделий принимают по соответствующим стандартам, например по ГОСТ 23009. Порядковый номер элементу, конструкции и изделию присваивают в пределах обозначения типа, начиная с единицы. Пример - Б1; Б2, ПР1 Для марок монолитных железобетонных и бетонных конструкций принимают обозначения с дополнительным индексом «м». Пример - Бм1, ПРм1; ПРм2 4.6 На чертежах архитектурных и конструктивных решений указывают характеристики точности геометрических параметров зданий, сооружений, конструкций и их элементов по ГОСТ 21.113. Требования к точности функциональных геометрических параметров зданий, сооружений и конструкций должны быть увязаны с требованиями к точности изготовления изделий (элементов конструкций), разбивки осей и установки элементов конструкций путем расчета точности по ГОСТ 21780. 4.7 На рабочих чертежах (на изображениях фундаментов, стен, перегородок, перекрытий) указывают проемы, борозды, ниши, гнезда и отверстия с необходимыми размерами и привязками. 4.8 Рекомендуемые масштабы изображений на чертежах приведены в таблице 1. Таблица 1
5 Архитектурные решения5.1 Общие требования5.1.1 В состав рабочей документации архитектурных решений включают рабочие чертежи, предназначенные для производства строительных и монтажных работ (основной комплект рабочих чертежей марки АР), а также при необходимости: - рабочую документацию на строительные изделия; - спецификацию оборудования, изделий и материалов; - опросные листы и габаритные чертежи, выполняемые в соответствии с данными поставщиков оборудования; - локальную смету. 5.1.2 В состав основного комплекта рабочих чертежей марки АР включают: - общие данные по рабочим чертежам; - планы этажей, в том числе подвала, технического подполья, технического этажа и чердака; - разрезы; - фасады; - планы полов (при необходимости); - план кровли (крыши); - схемы расположения элементов сборных перегородок*; - схемы расположения элементов заполнения оконных и других проемов*; ________ * Схемы расположения металлических элементов сборных перегородок и заполнения оконных проемов выполняют в составе рабочих чертежей металлических конструкций. Схемы расположения элементов сборных железобетонных перегородок выполняют, как правило, в составе основного комплекта рабочих чертежей железобетонных конструкций. - выносные элементы (узлы, фрагменты); - спецификации к схемам расположения. 5.2 Общие данные по рабочим чертежам5.2.1 В состав общих данных по рабочим чертежам кроме сведений, предусмотренных ГОСТ 21.101, включают ведомость отделки помещений по форме 1 приложения А (при отсутствии основного комплекта рабочих чертежей интерьеров и если это предусмотрено заданием на проектирование). 5.2.2 В общих указаниях в дополнение к сведениям, предусмотренным ГОСТ 21.101, приводят: - уровень ответственности здания (сооружения); - категорию здания (сооружения) по взрывопожарной и пожарной опасности; - степень огнестойкости здания (сооружения); - класс конструктивной пожарной опасности здания; - класс функциональной пожарной опасности здания; - класс пожарной опасности строительных конструкций; - расчетный срок службы здания (сооружения); - характеристику стеновых и изоляционных материалов*; - указания по устройству гидроизоляции и отмостки*; - указания по наружной отделке здания (сооружения)*; _______ * Приводят, если нет соответствующих указаний на чертежах. - указания о мероприятиях при производстве работ в зимнее время; - указания о мероприятиях, обеспечивающих защиту помещений от шума, вибрации и других воздействий. 5.3 Планы этажей5.3.1 При выполнении плана этажа положение мнимой горизонтальной секущей плоскости разреза принимают на уровне оконных проемов или на 1/3 высоты изображаемого этажа. В случаях, когда оконные проемы расположены выше секущей плоскости, по периметру плана располагают сечения соответствующих стен на уровне оконных проемов. 5.3.2 На планы этажей наносят: а) координационные оси здания (сооружения); б) размеры, определяющие расстояния между координационными осями и проемами, толщину стен и перегородок, отметки участков, расположенных на разных уровнях, другие необходимые размеры; в) линии и обозначения разрезов. Линии разрезов проводят, как правило, с таким расчетом, чтобы в разрез попадали проемы окон, наружных ворот и дверей, лестничные клетки, шахты лифтов, балконы, лоджии и т.п.; г) позиции (марки) элементов здания (сооружения), заполнения проемов ворот и дверей (кроме входящих в состав щитовых перегородок), перемычек, лестниц и др. Позиционные обозначения проемов ворот и дверей рекомендуется указывать в кружках диаметром 5 - 7 мм; д) обозначения узлов и фрагментов планов; е) наименования помещений, их площади, категории по взрывопожарной и пожарной опасности (кроме жилых зданий). Площадь проставляют в нижнем правом углу помещения и подчеркивают. Категорию помещения по взрывопожарной и пожарной опасности проставляют под его наименованием в прямоугольнике. Для жилых зданий, при необходимости, на планах указывают тип и площадь квартир, при этом сведения рекомендуется приводить в соответствии с рисунком 1. Рисунок 1 Допускается наименования помещений, их площади и категории приводить в экспликации помещений по форме 2 (приложение А). В этом случае на планах вместо наименований помещений проставляют их номера. Для жилых зданий экспликацию помещений, как правило, не выполняют; ж) границы зон передвижения технологических кранов (при необходимости); и) расположение санитарно-технического оборудования (при необходимости). 5.3.3 Встроенные помещения и другие участки здания (сооружения), на которые выполняют отдельные чертежи, изображают схематично сплошной тонкой линией с показом несущих конструкций. 5.3.4 Площадки, антресоли и другие конструкции, расположенные выше секущей плоскости, изображают схематично тонкой штрихпунктирной линией с двумя точками. 5.3.5 Примеры выполнения планов этажей зданий приведены на рисунках Б.1 и Б.2 (приложение Б). 5.3.6 Для зданий со стенами из кирпича или мелких блоков выполняют, при необходимости, кладочные планы. На кладочном плане изображают план кладки стен, перегородок, колонн, столбов и других элементов, возводимых из кирпича или мелких блоков, оконные и дверные проемы, отверстия, вентиляционные каналы и дымоходы, ниши, борозды и т.п. Схематично сплошными тонкими линиями изображают лестницы, шахты лифтов, балконы, лоджии. На кладочном плане указывают сведения в соответствии с перечислениями а) - д) 5.3.2, обозначают участки кладки, армируемые арматурными сетками и стержнями, и приводят указания о размещении сеток и стержней в кладке. В дополнение к кладочному плану выполняют план перемычек, на котором указывают позиции (марки) перемычек в местах их укладки. 5.3.7 К планам этажей выполняют: - ведомость перемычек по форме 3 (приложение А). - спецификации заполнения элементов оконных, дверных и др. проемов, сборных перегородок, перемычек, замаркированных на планах, разрезах и фасадах, - по форме 7 или 8 приложения Ж ГОСТ 21.101; - другие ведомости по усмотрению разработчика (например, ведомость отверстий для инженерных коммуникаций). 5.3.8 Примеры выполнения ведомости и спецификации элементов перемычек приведены на рисунках В.1 и В.2 (приложение В). Пример выполнения спецификации элементов заполнения проемов приведен на рисунке В.3 (приложение В). 5.4 Разрезы и фасады5.4.1 Линии контуров элементов конструкций в разрезе изображают сплошной толстой основной линией, видимые линии контуров, не попадающие в плоскость сечения, - сплошной тонкой линией. 5.4.2 На разрезы и фасады наносят: - координационные оси здания (сооружения), проходящие в характерных местах разреза и фасада (крайние, у деформационных швов, несущих конструкций, в местах перепада высот и т.п.) с размерами, определяющими расстояния между ними (только на разрезах), и общее расстояние между крайними осями; - отметки, характеризующие расположение элементов несущих и ограждающих конструкций по высоте; - размеры и привязки по высоте проемов, отверстий, ниш и гнезд в стенах и перегородках, изображенных в разрезах; - позиции (марки) элементов здания (сооружения), не указанные на планах; - обозначения узлов и фрагментов разрезов и фасадов. На фасадах указывают также типы заполнения оконных проемов, материалы отдельных участков стен, отличающиеся от основных материалов. Допускается типы оконных проемов указывать на планах этажей. На листе, где изображены фасады, приводят, при необходимости, ведомость отделки фасадов по форме 9 приложения А. В этом случае позиционные обозначения типов отделки фасадов указывают на линиях-выносках в кружках диаметром 6 - 8 мм. 5.4.3 Примеры выполнения разрезов приведены на рисунках Г.1 - Г.3 (приложение Г), фасадов и их фрагментов - на рисунках Д.1 - Д.2 (приложение Д). 5.5 Планы полов и кровли (крыши)5.5.1 На планы полов наносят: - координационные оси: крайние, у деформационных швов, по краям участков с различными конструктивными и другими особенностями и с размерными привязками таких участков; - обозначения уклонов полов; - тип полов. Цифровые обозначения типов полов проставляют в равносторонних треугольниках высотой 8 - 10 мм; - отметки в местах перепадов полов. Стены здания (сооружения) и перегородки на планах полов изображают сплошной толстой основной линией. На планах полов указывают элементы здания (сооружения) и устройства, влияющие на конструкцию пола (проемы ворот и дверей, деформационные швы, каналы, трапы и др.), границы участков с различной конструкцией пола. Деформационные швы изображают двумя тонкими сплошными линиями, границы участков пола - пунктирными линиями. 5.5.2 Планы полов допускается совмещать с планами этажей. 5.5.3 К планам полов составляют экспликацию полов по форме 4 (приложение А). Пример выполнения плана полов приведен на рисунке Е.1 (приложение Е). 5.5.4 На план кровли (крыши) наносят: - координационные оси: крайние, у деформационных швов, по краям участков кровли (крыши) с различными конструктивными и другими особенностями, с размерными привязками таких участков; - обозначения уклонов кровли; - отметки или схематический поперечный профиль кровли; - позиции (марки) элементов и устройств кровли (крыши). На плане кровли (крыши) указывают деформационные швы двумя тонкими линиями, парапетные плиты и другие элементы ограждения кровли (крыши), воронки, дефлекторы, вентшахты, пожарные лестницы, прочие элементы и устройства, которые указывать и маркировать на других чертежах нецелесообразно. 5.5.5 К плану кровли (крыши) составляют спецификацию по форме 7 ГОСТ 21.101, в которую записывают элементы и устройства кровли (крыши). 5.5.6 Пример выполнения плана кровли приведен на рисунке Ж.1 (приложение Ж). 5.6 Схемы расположения элементов сборных перегородок, заполнения оконных и других проемов5.6.1 Схемы расположения элементов сборных перегородок (кроме панельных железобетонных), заполнения оконных и других проемов выполняют с учетом требований 6.3. 5.6.2 Допускается схемы расположения элементов сборных перегородок совмещать с планами этажей. Пример выполнения схемы расположения элементов сборных перегородок приведен на рисунке И.1 (приложение И). 5.6.3 Схему расположения элементов заполнения оконных проемов составляют на заполнение каждого типа. Сплошное заполнение между двумя смежными координационными осями учитывают как заполнение одного типа. При комплектной поставке панелей с заполненными проемами схему расположения элементов заполнения не выполняют. 5.6.4 Пример выполнения схемы расположения элементов заполнения оконных проемов приведен на рисунке К.1 (приложение К). 5.7 Спецификация оборудования, изделий и материалов5.7.1 Спецификацию оборудования, изделий и материалов (далее - спецификация) к основному комплекту рабочих чертежей марки АР выполняют и обозначают по ГОСТ 21.110 с учетом дополнительных требований настоящего стандарта. - производственная часть; Если в жилом здании предусматриваются пристроенные или встроенные части для размещения предприятий и учреждений общественного назначения, то спецификацию также составляют по частям: - жилая часть; - вспомогательная часть. Наименование каждой части записывают в виде заголовка в графе «Наименование и техническая характеристика» и подчеркивают. 5.7.3 При необходимости спецификацию или ее части, указанные в 5.7.2, дополнительно делят на разделы: - подземная часть здания (сооружения); - надземная часть здания (сооружения). Если требуется выделить ресурсы по отдельным конструктивным частям здания, то каждый раздел делят на подразделы: - стены, перегородки (кроме железобетонных); - полы; - кровля (крыша). При делении разделов спецификации на указанные подразделы оборудование, предусмотренное основным комплектом рабочих чертежей марки АР, как правило, выделяют в самостоятельный подраздел с наименованием «Оборудование». 5.7.4 Оборудование, элементы здания, сооружения (изделия) и материалы в разделах (подразделах) записывают по группам в следующей последовательности: - оборудование; - элементы заполнения проемов (ворота, блоки дверные и оконные, в том числе с механизмами открывания, решетки жалюзийные и др.); - элементы перемычек; - элементы сборных перегородок; - другие элементы здания (сооружения); - основные материалы. В спецификацию не включают отдельные виды изделий и материалов (болты, гайки, шайбы, дюбели, гвозди и др.), номенклатуру и количество которых определяют по действующим технологическим и производственным нормам при выполнении строительно-монтажных работ. 5.7.5 В спецификации принимают следующие единицы измерений: - оборудование, изделия (элементы здания) - шт.; - материалы покрытий, защиты (например, рубероид, толь, листы гипсовые сухие*, линолеум, стекло оконное, ткани, сетки, прокат тонколистовой, плитки керамические, паркет, в том числе штучный, щиты паркетные, плиты древесно-волокнистые*, плиты древесно-стружечные* - м2; ________ * При необходимости применяют в качестве изделий с указанием технической характеристики и количества в штуках. - материалы изоляционные, заполнители (например, минеральная вата, щебень, гравий, бутовый камень, песок, бетон) - м3; - другие материалы (например, цемент, асбест, известь строительная, битум, раствор, асфальтобетон) - кг (допускается - т). 6 Конструктивные решения6.1 Общие требования6.1.1 В состав рабочей документации конструктивных решений включают: - рабочие чертежи, предназначенные для производства строительно-монтажных работ (основной комплект рабочих чертежей конструктивных решений); - рабочую документацию на строительные изделия; - локальную смету (при необходимости). Марки и наименования основных комплектов рабочих чертежей конструктивных решений присваивают по ГОСТ 21.101 в зависимости от вида строительных конструкций. 6.1.2 В состав основного комплекта рабочих чертежей конструктивных решений включают: - общие данные по рабочим чертежам; - схемы расположения элементов конструкций; - спецификации к схемам расположения элементов конструкций. В состав рабочих чертежей монолитных железобетонных конструкций дополнительно включают: - схемы армирования монолитных железобетонных конструкций; - ведомость расхода стали на монолитные конструкции по форме 5 (приложение А). 6.2 Общие данные по рабочим чертежам6.2.1 В состав общих данных по рабочим чертежам конструктивных решений включают сведения, предусмотренные ГОСТ 21.101. При выполнении в составе основного комплекта чертежей фундаментов и свайных оснований в состав общих данных дополнительно включают фрагмент разбивочного плана с нанесенными осями здания или сооружения, положением инженерно-геологических выработок (скважин, шурфов, точек зондирования и др.), линий инженерно-геологических разрезов и др. 6.2.2 В состав общих указаний, приводимых в составе общих данных по рабочим чертежам, в дополнение к сведениям, предусмотренным ГОСТ 21.101, включают: - сведения о нагрузках и воздействиях, принятых для расчета конструкций здания или сооружения; - сведения о грунтах (основаниях), уровне и характере грунтовых вод, глубине промерзания*; - указания о мероприятиях по устройству подготовки под фундаменты и об особых условиях производства работ*; ________ * Приводят при отсутствии их в технических требованиях к схемам расположения элементов фундаментов. - сведения о мероприятиях по антикоррозионной защите конструкций (при отсутствии основного комплекта рабочих чертежей марки A3); - указания о мероприятиях при производстве работ в зимнее время. 6.3 Схемы расположения элементов конструкций6.3.1 На схеме расположения элементов конструкций (далее - схема расположения) указывают в виде условных или упрощенных графических изображений элементы конструкций и связи между ними. 6.3.2 Схему расположения выполняют для каждой группы элементов конструкций, связанных условиями и последовательностью производства строительных работ. Примеры 1 Схема расположения элементов фундаментов и фундаментных балок 2 Схема расположения блоков стен подвала (развертка блочных стен подвала) 3 Схема расположения колонн, связей по колоннам, подкрановых балок 4 Схема расположения ферм (балок) 5 Схема расположения панелей стен и перегородок 6.3.3 Схемы расположения выполняют в виде планов, фасадов или разрезов соответствующих конструкций с упрощенным изображением элементов. 6.3.4 На схеме расположения наносят: - координационные оси здания (сооружения), размеры, определяющие расстояния между ними и между крайними осями, размерную привязку осей или поверхностей элементов конструкций к координационным осям здания (сооружения) или, в необходимых случаях, к другим элементам конструкций, другие необходимые размеры; - отметки наиболее характерных уровней элементов конструкций; - позиции (марки) элементов конструкций; - обозначения узлов и фрагментов; - данные о допустимых монтажных нагрузках. На разрезах фундамента или свайного основания здания или сооружения наносят линии геологических разрезов, разграничивающие слои грунта с различными геологическими характеристиками. 6.3.5 Одинаковые позиции (марки) последовательно расположенных элементов конструкций на схеме расположения допускается наносить только по концам ряда с указанием количества позиций. 6.3.6 Схему расположения панелей стен при многоярусном расположении панелей в пределах этажа выполняют в плоскости стен на виде, при однорядном расположении - в плане. 6.3.7 В наименовании схемы расположения, при необходимости, приводят сведения, определяющие положение конструкции в здании (сооружении). Допускается схемам расположения присваивать порядковые номера. Пример - Схема расположения элементов перекрытия на отм. +7,200 между осями 1-15, В-Г (схема 1) 6.3.8 На схеме расположения наносят метки для установки в проектное положение элементов конструкций, имеющих несимметричное расположение закладных изделий и другие отличительные признаки. 6.3.9 В технических требованиях к схеме расположения приводят, при необходимости, указания о порядке монтажа, замоноличивания швов, требования к монтажным соединениям. 6.3.10 Примеры выполнения схем расположения элементов сборных конструкций приведены на рисунках Л.1 - Л.6 (приложение Л). 6.3.11 Если монолитная железобетонная конструкция состоит из нескольких элементов (балок, плит и др.), на каждый из которых выполняют отдельные схемы армирования, то этим элементам присваивают позиционные обозначения или марки, которые указывают на схеме расположения элементов монолитной железобетонной конструкции в соответствии с рисунком 2. Рисунок 2 На схеме расположения дополнительно указывают опалубочные размеры элементов конструкции (толщину плиты, высоту ригеля, сечение балки, колонны и т.п.). 6.3.12 На схемах армирования монолитных железобетонных конструкций наносят: - контуры конструкций - сплошной толстой основной линией; - координационные оси здания (сооружения); - арматурные и закладные изделия - очень толстой сплошной линией (в 1,5 - 2 раза толще сплошной толстой основной линии); - позиции (марки) арматурных и закладных изделий; - размеры, определяющие положение арматурных и закладных изделий, и толщину защитного слоя бетона; - фиксаторы для обеспечения проектного положения арматуры (при необходимости); - указания о способе соединения арматурных стержней. 6.3.13 На схемах армирования применяют, при необходимости, следующие упрощения: а) каркасы и сетки изображают контуром в соответствии с рисунком 3; б) для обеспечения правильной установки в проектное положение несимметричных каркасов и сеток указывают только их характерные особенности (диаметр отличающихся по диаметрам стержней и др.) в соответствии с рисунком 4; Рисунок 3 Рисунок 4 в) если железобетонная конструкция имеет несколько участков с равномерно расположенными одинаковыми каркасами или сетками, то их контуры наносят на одном из участков, указывая номера позиций и в скобках - количество изделий этой позиции. На остальных участках проставляют только позиции и в скобках - количество изделий этой позиции в соответствии с рисунком 5; Рисунок 5 г) на участках с отдельными стержнями, расположенными на равных расстояниях, изображают один стержень с указанием на полке-линии выноски его позиции, а под полкой линии-выноски - шаг стержней в соответствии с рисунком 6. Примечание - Распределительную арматуру (поз. 6) укладывать в пределах позиций 1 и 2 поверху, в пределах позиций 3 - 5 - понизу. Рисунок 6 Если шаг стержней не нормируется, то рядом с обозначением стержней указывают в скобках количество стержней в соответствии с рисунком 7; Рисунок 7 Рисунок 8 д) при изображении каркаса или сетки одинаковые стержни, расположенные на равных расстояниях, наносят только по концам каркаса или сетки, а также в местах изменения шага стержней. При этом под полкой линии-выноски с обозначением позиции стержня указывают их шаг в соответствии с рисунком 8; е) арматуру элементов, пересекающих изображаемый элемент, как правило, не указывают (см. рисунок 9); Рисунок 9 ж) в сложной схеме армирования допускается указывать позиции у обоих концов одного и того же арматурного изделия или отдельного стержня в соответствии с рисунком 9; Рисунок 10 и) размеры гнутых стержней указывают по наружным, а хомутов - по внутренним граням в соответствии с рисунком 10. 6.3.14 Рабочие чертежи арматурных и закладных изделий, разработанные для монолитных железобетонных конструкций в качестве самостоятельных документов, в состав основного комплекта рабочих чертежей не включают, а записывают в разделе «Прилагаемые документы» ведомости ссылочных и прилагаемых документов. 6.3.15 Допускается не выполнять чертежи на простые детали, непосредственно входящие в состав монолитной железобетонной конструкции, а все необходимые данные для их изготовления приводить в спецификации и, при необходимости, помещать изображения этих деталей на чертеже монолитной конструкции. При большом количестве деталей данные, необходимые для их изготовления, приводят в ведомости по форме 6 (приложение А). Пример заполнения ведомости приведен на рисунке М.1 (приложение М). 6.4 Спецификации к схемам расположения элементов конструкций6.4.1 Спецификации к схемам расположения элементов конструкций составляют по формам 7 или 8 приложения К ГОСТ 21.101. 6.4.2 Спецификацию к схеме расположения сборных конструкций заполняют по разделам: - элементы сборных конструкций; - монолитные участки; - стальные и другие изделия. 6.4.3 Наименование каждого раздела и подраздела спецификации указывают в виде заголовка в графе «Наименование» и подчеркивают. 6.4.4 Спецификацию монолитной конструкции, состоящей из нескольких элементов, на каждый из которых выполняют отдельную схему армирования, составляют по разделам на каждый элемент. 6.4.5 В наименования разделов монолитной конструкции включают марку элемента и через тире - количество элементов на монолитную конструкцию. Примеры 1 Балки Бм1 - 2 шт. 2 Плита Пм1 - 1 шт. 7 Рабочая документация на строительные изделия7.1 Общие требования7.1.1 В состав рабочей документации на строительное изделие в общем случае включают спецификацию, сборочный чертеж, чертежи деталей и, при необходимости, технические условия. Рабочие чертежи строительных изделий (далее - изделия) выполняют в соответствии с требованиями ГОСТ 2.109, ГОСТ 2.113 и с учетом дополнительных требований настоящего стандарта. 7.1.2 При выполнении группового рабочего документа на изделия в одну группу объединяют изделия одного наименования, единой конфигурации и имеющие общие конструктивные признаки. 7.1.3 Переменные размеры, не одинаковые для всех исполнений, охваченных одним изображением, наносят буквенными обозначениями, количество которых должно быть, как правило, не более трех. 7.1.4 При необходимости к чертежам изделий приводят схему испытания, расчетную схему или указывают их несущую способность. 7.1.5 На сборочном чертеже изделия или на его схематичном изображении указывают, при необходимости, места нанесения маркировочных надписей и изображения монтажных знаков, наносимых на изделие, в соответствии с ГОСТ 13015. Пример нанесения монтажного знака приведен на рисунке 11. Рисунок 11 7.1.6 Монтажный знак для указания ориентации изделия в конструкции наносят в соответствии с рисунком 12. Рисунок 12 7.1.7 В технических требованиях на сборочном чертеже изделия приводят: - требования к отделке поверхности изделия, в том числе, при необходимости, категорию бетонной поверхности изделия по ГОСТ 13015. Участки поверхности, требующие специальной обработки, отмечают, как показано на рисунке 13, с указанием размеров, определяющих положение этих участков; Рисунок 13 - другие требования к качеству изделия; - ссылки на документы, содержащие технические требования, распространяющиеся на данное изделие, но не приведенные на чертеже. 7.1.8 В сборочные чертежи железобетонных изделий кроме видов, разрезов и сечений включают схемы армирования. Схемы армирования железобетонных изделий выполняют применительно к 6.3.12 и 6.3.13. 7.1.9 На чертеже железобетонного изделия приводят ведомость расхода стали по форме 5 (приложение А). Пример заполнения ведомости расхода стали приведен на рисунке Н.1 (приложение Н). 7.1.10 Спецификации на изделия выполняют по форме 7 ГОСТ 21.101. Групповые спецификации на изделия выполняют по форме 8 ГОСТ 21.101. Запись сборочных единиц и материалов в соответствующих подразделах спецификации на изделие производят в соответствии с 6.4.2. Примечания 1 В графе «Обозначение» спецификации на изделие приводят только обозначения изделий и, при необходимости, деталей в соответствии с 7.2. 2 В графе «Наименование» для деталей, на которые не выпущены чертежи, указывают наименование, материал и другие данные, необходимые для изготовления, в соответствии с указаниями к формам 7 и 8 в приложении А. 3 Графу «Масса ед., кг» для деталей, на которые выпущены чертежи, не заполняют. 7.1.11 Допускается совмещать спецификацию со сборочным чертежом независимо от формата листа. 7.1.12 На изделия (арматурные, закладные, соединительные и т.п.), состоящие только из деталей, составляют спецификацию по форме 7 (приложение А), при групповом способе выполнения чертежей таких изделий - по форме 8 (приложение А). Пример выполнения группового чертежа на сетки приведен на рисунке П.1 (приложение П). 7.1.13 В составе рабочих чертежей железобетонных конструкций допускается выполнять рабочие чертежи металлических изделий, перечень которых приведен в приложении Р. 7.1.14 Каждый чертеж строительного изделия или выпуск чертежей строительных изделий при их комплектации в виде отдельного выпуска записывают в разделе «Прилагаемые документы» ведомости ссылочных и прилагаемых документов, входящей в общие данные по рабочим чертежам соответствующего основного комплекта. 7.2 Обозначение строительных изделий7.2.1 Обозначение изделия одновременно является обозначением его спецификации. Примеры 1 845 - 5 - АР.И2 2 845 - 5 - КЖ.И - Б1 7.2.3 Изделия многократного применения допускается обозначать без привязки к объекту строительства и марке основного комплекта рабочих чертежей. В этом случае обозначение изделия назначает проектная организация. 7.2.4 В обозначение сборочного чертежа изделия включают обозначение изделия и код документа. Примеры 1 845 - 5 - АР.И2СБ 2 845 - 5 - КЖ.И - Б1СБ 7.2.5 В обозначение технических условий на всю группу изделий включают обозначение соответствующего основного комплекта рабочих чертежей с добавлением через точку шифра «И» и через тире - кода документа. Пример - 845 - 5 - КЖ.И - ТУ Если технические условия разрабатывают на одноименную группу изделий, то перед кодом документа дополнительно указывают (через точку) марку изделий данной группы. Пример - 845 - 5 - КЖ.И - Б.ТУ 7.2.6 При выполнении группового рабочего документа на изделия каждому исполнению присваивают самостоятельное обозначение. В обозначение исполнения включают общее обозначение изделий, оформленных одним групповым рабочим документом, и номер исполнения. 7.2.7 Порядковый номер исполнения устанавливают в пределах общего обозначения, начиная с 01, и отделяют от общего обозначения через тире. Примеры 1 845 - 5 - КЖ.И - Б2 - 01 2 845 - 5 - КЖ.И2 - 01 Исполнению, принятому условно за основное, присваивают только общее обозначение, без порядкового номера исполнения в соответствии с 7.2.2. 7.2.8 Деталям, на которые не выполняют отдельные чертежи, обозначения не присваивают. 7.2.9 В случае повторного применения чертежей строительных изделий организацией, осуществившей разработку и утверждение этих чертежей, их записывают в разделе «Прилагаемые документы» ведомости ссылочных и прилагаемых документов без изменения обозначения. 7.2.10 Пример выполнения чертежа изделия приведен на рисунке С.1 (приложение С). 7.2.11 При выполнении к соответствующему основному комплекту рабочих чертежей более трех чертежей изделий их рекомендуется комплектовать в виде отдельного выпуска. Выпуску «Чертежи строительных изделий» присваивают обозначение, состоящее из обозначения соответствующего основного комплекта рабочих чертежей и через точку - шифра «И». Пример - 845 - 5 - КЖ.И Первым листом выпуска является титульный лист, который выполняют по форме 15 ГОСТ 21.101. 7.2.12 После титульного листа выпуска чертежей строительных изделий помещают содержание, которое выполняют в соответствии с ГОСТ 21.101. Содержанию присваивают обозначение, состоящее из обозначения выпуска чертежей изделий и шифра «С». Пример - 845 - 5 - КЖ.ИС 7.3 Применение рабочих чертежей типовых изделий7.3.1 Если по условиям применения рабочих чертежей типового изделия в них необходимо внести изменения (например, предусмотреть установку дополнительных закладных изделий, устройство отверстий), то в составе рабочей документации здания (сооружения) на это изделие должна быть выполнена дополнительная рабочая документация с учетом следующих требований: - типовое изделие изображают упрощенно; - на изображении типового изделия указывают только те элементы и размеры, которые относятся к изменениям. При необходимости наносят другие размеры (например, общую длину и ширину изделия), приведенные в рабочих чертежах типового изделия, которые отмечают знаком «*», а в технических требованиях на чертеже указывают: «* Размеры для справок»; - в спецификацию измененного изделия записывают типовое изделие как сборочную единицу и другие изделия, устанавливаемые при изменении; - графы «Поз.» и «Кол.» для типового изделия не заполняют, в графе «Обозначение» указывают обозначение спецификации на типовое изделие, в графе «Наименование» - его наименование и марку. 7.3.2 Измененному изделию присваивают самостоятельную марку, включающую марку типового изделия и дополнительный индекс. Пример - 1К84 - 1а, где 1К84 - 1 - марка типового изделия; а - индекс, присвоенный измененному изделию. 7.3.3 Пример выполнения чертежа типового изделия с дополнительными закладными изделиями приведен на рисунке Т.1 (приложение Т). Приложение А
| ||||||||||||||||||||||||||||||||||||||||||||||||||||||||||||||||||||||||||||||||||||||||||||||||||||||||||||||||||||||||||||||||||||||||||||||||||||||||||||||||||||||||||||||||||||||||||||||||||||||||||||||||||||||||||||||||||||||||||||||||||||||||||||||||||||||||||||||||||||||||||||||||||||||||||||||||||||||||||||||||||||||||||||||||||||||||||||||||||||||||||||||||||||||||||||||||||||||||||||||||||||||||||||||||||||||||||||||||||||||||||||||||||||||||||||||||||||||||||||||||||||||||||||||||||||||||
|
Обозначение |
Наименование |
Кол. на этаж |
Масса ед., кг |
Примечание |
||||
|
1 |
2 |
3 |
Всего |
|||||
|
1 |
ГОСТ ... |
2ПБ19-3 |
16 |
8 |
4 |
28 |
81 |
|
|
2 |
5ПБ18-27 |
5 |
2 |
1 |
8 |
250 |
||
|
3 |
8ПБ18-8 |
3 |
2 |
1 |
6 |
119 |
||
Рисунок В.2 - Пример выполнения спецификации элементов перемычек
|
Обозначение |
Наименование |
Кол. по фасадам |
Масса ед., кг |
Примечание |
|||||
|
1-10 |
10-1 |
Л-А |
А-Л |
Всего |
|||||
|
1.436.3-16 |
Окна |
||||||||
|
1 |
ОГД 18.12-2 |
10 |
9 |
19 |
1200 |
||||
|
2 |
ОГД 18.18-2 |
10 |
10 |
1800 |
|||||
|
3 |
ОГД 18.18-2 |
10 |
13 |
9 |
13 |
45 |
|||
|
4 |
ОГД 24.18-2 |
15 |
9 |
14 |
38 |
2400 |
|||
|
5 |
ОГД 24.12-2 |
3 |
3 |
||||||
|
Жалюзийные решетки |
|||||||||
|
6 |
3453 - 1 - КЖ.И5 |
РШ1 |
1 |
1 |
2400 |
||||
|
7 |
РШ2 |
1 |
1 |
5000 |
|||||
|
Дверные блоки |
|||||||||
|
8 |
ГОСТ ... |
ДВГ21-15 |
4 |
2 |
6 |
2070 |
|||
|
9 |
ДВГ24-15 |
1 |
1 |
2370 |
|||||
|
10 |
ГОСТ ... |
ДУ24-10 |
2 |
1 |
3 |
||||
|
11 |
ГОСТ ... |
ДАО24-10ВЛ |
8 |
8 |
|||||
|
12 |
ТУ ... |
Ворота 3,6´3,6 |
2 |
2 |
3600 |
||||
|
Примечание - В графе «Примечание» приводят дополнительные данные, например высоту проема. |
|||||||||
Рисунок В.3 - Пример выполнения спецификации элементов заполнения проемов
Примеры выполнения разрезов зданий
Рисунок Г.1 - Пример выполнения разреза одноэтажного производственного здания

Рисунок Г.2 - Пример выполнения разреза многоэтажного производственного здания
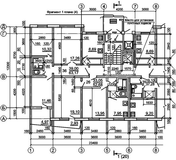
Рисунок Г.3 - Пример выполнения разреза жилого дома
Примеры выполнения фасадов зданий
Рисунок Д.1 -
Пример выполнения фасада и фрагмента фасада
производственного здания
Рисунок Д.2 - Пример выполнения фасада жилого дома
Рисунок Е.1
Пример выполнения плана кровли
Рисунок Ж.1
Пример выполнения схемы расположения элементов сборных перегородок
Рисунок И.1
Пример выполнения схемы расположения элементов заполнения оконного проема
Рисунок К.1
Примеры выполнения схем расположения элементов сборных конструкций
Рисунок Л.1 - Схема расположения элементов фундаментов и фундаментных балок

Рисунок Л.2 - Схема расположения колонн и подкрановых балок

Рисунок Л.3 - Схема расположения плит покрытия

Рисунок Л.4 - Схема расположения панелей стен

Рисунок Л.5 -
Схема расположения панелей стен, перегородок и других
элементов жилого дома
Рисунок Л.6 - Схема расположения колонн, ригелей и балок перекрытия на отм. ...
Пример заполнения ведомости деталей
Рисунок М.1
Пример заполнения ведомости расхода стали
Ведомость расхода стали, кг
|
Напрягаемая арматура класса |
Изделия арматурные |
Изделия закладные |
||||||||||||||||||
|
Арматура класса |
Всего |
Арматура класса |
Прокат марки |
Всего |
||||||||||||||||
|
А600 |
Итого |
А400 |
В500 |
А400 |
С245 |
|||||||||||||||
|
Æ 14 |
Æ16 |
Æ 20 |
Æ 6 |
Æ 8 |
Æ 10 |
Итого |
Æ 5 |
Итого |
Æ 16 |
Æ 20 |
Итого |
5´14 |
5´16 |
Итого |
L75´50´5 |
Итого |
||||
|
2БФ6-2А600а |
- |
- |
30,4 |
30,4 |
4,7 |
- |
9,3 |
14,0 |
4,0 |
4,0 |
18,0 |
25,1 |
- |
25,1 |
5,5 |
13,8 |
19,3 |
40,3 |
40,3 |
84,7 |
|
2БФ6-5А600а |
14,8 |
- |
- |
14,8 |
- |
4,7 |
2,0 |
6,7 |
7,1 |
7,1 |
13,8 |
30,6 |
15,3 |
45,9 |
2,8 |
- |
2,8 |
45,3 |
45,3 |
94,0 |
|
2БФ6-9А600а |
- |
- |
- |
- |
4,7 |
- |
8,7 |
13,4 |
4,0 |
4,0 |
17,4 |
41,2 |
15,8 |
57,0 |
3,2 |
- |
3,2 |
38,1 |
38,1 |
98,3 |
Рисунок Н.1
Пример выполнения группового чертежа на сетки
|
Марка изделия |
Поз. дет. |
Наименование |
Кол. |
Масса 1 дет., кг |
Масса изделия, кг |
|
С1 |
1 |
16-А400 / = 3050 |
7 |
4,8 |
36,9 |
|
2 |
8А-А240 / = 650 |
11 |
0,3 |
||
|
С2 |
1 |
12-А400 / = 2150 |
6 |
1,9 |
12,2 |
|
2 |
6-А240 / = 550 |
8 |
0,1 |
||
|
С3 |
1 |
10-А400 / = 1550 |
6 |
1,0 |
6,6 |
|
2 |
6-А240 / = 550 |
6 |
0,1 |
||
|
С4 |
3 |
16-А400 / = 3500 |
1 |
5,5 |
20,6 |
|
4 |
16-А400 / = 3400 |
1 |
5,4 |
||
|
5 |
16-А400 / = 3050 |
1 |
4,8 |
||
|
6 |
8-А240 / = 350 |
1 |
0,1 |
||
|
7 |
8-А240 / = 650 |
16 |
0,3 |
||
|
С5 |
3 |
12-А400 / = 2500 |
1 |
2,2 |
7,3 |
|
4 |
12-А400 / = 2400 |
1 |
2,1 |
||
|
5 |
12-А400 / = 2050 |
1 |
1,8 |
||
|
6 |
6-А240 / = 350 |
1 |
0,1 |
||
|
7 |
6-А240 / = 650 |
11 |
0,1 |
||
|
Примечания 1 Арматура по ГОСТ 5781. 2 Предельные отклонения от размеров стержней и выпусков ±2 мм. |
|||||
Рисунок П.1
Р.1 Наружные металлические лестницы шириной не более 1,0 м.
Р.2 Косоуры лестниц с железобетонными ступенями и площадками.
Р.3 Ограждение: на кровле, площадок, проемов, приямков, лестниц (железобетонных, металлических).
Р.4 Щиты над каналами шириной до 1,0 м с нагрузкой не более 20 кПа (2000 кгс/м2).
Р.5 Щиты над проемами (например, монолитными) площадью до 2 м2 с нагрузкой не более 20 кПа (2000 кгс/м2).
Р.6 Конструкции козырьков выносом не более 1,5 м.
Р.8 Другие металлические изделия, конструкции, параметры которых аналогичны перечисленным в Р.1 - Р.7.
Пример выполнения чертежа индивидуального изделия
Рисунок С.1
Пример
выполнения чертежа типового изделия с дополнительными
закладными изделиями
Рисунок Т.1
Ключевые слова: правила выполнения, рабочая документация, архитектурные решения, чертежи строительных конструкций, общие данные по рабочим чертежам, схемы расположения элементов конструкций, строительные изделия