Информационная система
«Ёшкин Кот»

XXXecatmenu

Методическая документация в строительстве

ЗАО «ЦНИИОМТП»

ПРОЕКТ ПРОИЗВОДСТВА РАБОТ
НА ДЕМОНТАЖ ПАНЕЛЬНОГО ДОМА

МДС 12-59.2011

Москва 2011

В документе содержатся рекомендации и методический пример по составлению проекта производства работ на демонтаж панельного жилого дома.

Документ разработан в развитие и дополнение МДС 12-46.2008.

Документ разработан сотрудниками ЦНИИОМТП (отв. исполнитель канд. техн. наук Ю.А. Корытов).

Документ предназначен для проектных и строительно-монтажных организаций, разрабатывающих проекты производства работ на демонтаж панельных домов.

СОДЕРЖАНИЕ

Введение. 2

I. Общий раздел. 3

1. Пояснительная записка. 3

2. Нормативно-технические документы.. 4

3. Организация и технология выполнения работ. 4

3.1. Подготовительные работы.. 4

3.2. Основные работы.. 6

4. Требования к качеству и приемка работ. 12

5. Потребность в технологическом оборудовании, инструменте и приспособлениях. 13

6. Техника безопасности, охрана труда и окружающей среды.. 14

Ii. Технологическая карта. Демонтаж типового этажа. 16

1. Область применения. 16

2. Организация и технология демонтажа сборных элементов. 16

3. Схема расстановки контейнеров и инвентаря на перекрытии. 17

4. Схема временного крепления демонтируемых элементов. 18

5. Последовательность демонтажа сборных элементов на перекрытии. 19

6. Схема расположения на перекрытии временного ограждения опасной зоны и страховочных приспособлений. 19

7. Последовательность демонтажа плит перекрытия. 21

8. Спецификация демонтируемых элементов, их масса, номера схем строповки. 21

9. План-график работ. 21

Iii. Технологическая карта. Демонтаж чердака. 22

Iv. Технологическая карта. Демонтаж машинного помещения. 23

ВВЕДЕНИЕ

В городах России отмечается рост объемов работ по демонтажу панельных домов с истекшим сроком службы. Заканчивается демонтаж (снос) пятиэтажных, разворачиваются работы по демонтажу ветхих девятиэтажных домов.

При сносе дома (взрывом или механическим способом) отходы не перерабатываются, а вывозятся в отвал (на полигоны, свалки), загрязняя окружающую среду. Если условия (стесненность, например) не позволяют осуществить снос, то производят демонтажные работы.

Необходимость в демонтажных работах возникает также при реконструкции дома, например, путем понижения этажности дома, к примеру, с 12 до 8 этажей. Такое решение может быть принято после технического обследования дома с целью уменьшить нагрузки на несущие конструкции, в том числе на фундамент.

При демонтаже дома (или только верхних этажей) конструктивные элементы и отходы сортируют, и они могут быть переработаны во вторичные строительные материалы и изделия.

Проекты производства работ наряду с проектами организации работ являются основными организационно-технологическими документами на демонтаж таких домов.

В проекте производства работ рассматриваются типовые, наиболее распространенные способы и приемы работ. Рекомендуемые организационные и технологические решения подлежат уточнению и привязке к конкретным домам и условиям работ.

Проект производства работ состоит из общего раздела и технологических карт на демонтаж типового этажа, чердака и машинного помещения.

Технологическая карта на демонтаж типового этажа содержит полный состав и объем сведений, необходимых для производства работ. Остальные технологические карты, с целью исключения повторов, содержат только особенности, присущие данным этапам работ.

Настоящий документ содержит рекомендации по разработке проекта производства работ в виде методического примера, из которого видны состав и содержание разделов, а также их изложение и оформление.

Проект производства работ состоит из текстовой и графической частей. Графическая часть представлена несколькими схемами: привязки башенного крана, строповок, расположения ограждения опасной зоны и страховочных приспособлений, расстановки контейнеров и инвентаря на перекрытии, временного крепления сборных элементов, последовательности демонтажа стен и перекрытия.

Такие разделы как план организации площадки работ здесь не приводятся в связи с тем, что их разработка не имеет особенностей и не представляет трудностей.

Настоящий методический документ предназначен для того, чтобы оказать проектной, проектно-технологической и другим организациям помощь в разработке проекта производства работ на демонтаж панельного жилого дома (верхних этажей).

В основу методического документа положены работы ЗАО «ЦНИИОМТП» и других проектно-технологических институтов, а также обобщение практического опыта демонтажа панельных домов.

I. ОБЩИЙ РАЗДЕЛ

1. ПОЯСНИТЕЛЬНАЯ ЗАПИСКА

Проект производства работ разрабатывается на демонтаж надземной и подземной части жилого панельного дома. Такой дом может быть с первым нежилым этажом и перекрытием из монолитного железобетона.

План дома - прямоугольник, близкий к квадрату, площадью, как правило, от 700 до 1300 м2. Высота дома не превышает, как правило, 18 этажей.

Сборные элементы дома в основном плиты перекрытий и покрытия, панели наружных и внутренних стен и перегородок. Панели стен и перегородок - с проемами и без проемов. Внутренние панели, как правило, несущие, наружные панели - самонесущие или навесные. Панели размером обычно на одну комнату, могут иметь оконные и дверные блоки.

Основной материал панелей - различные виды железобетона. Несущие панели выполнены из тяжелого армированного бетона, а ненесущие - из легкого бетона. Поскольку монтажные отверстия в панелях заделаны при возведении дома, в панелях стен устраивают демонтажные отверстия для их временного крепления. В плитах перекрытия этажей и в плитах покрытия дома устраивают отверстия для строповки и крепления страховочных приспособлений.

Размеры панелей обычно не превышают 18 м2, перекрытия - на комнату, толщина панелей - до 420 мм, а масса - до 7,15 т.

Высота помещений - 3,0 (2,6) м.

Кровельное покрытие чаще всего из рулонного битумосодержащего материала на картонной (синтетической) основе, реже - из металлопрофиля по деревянным или стальным настилам и стропилам. Конструкция кровли состоит из плит покрытия, карнизных плит, фризовых (парапетных) панелей и теплоизоляции.

Перекрытия - многопустотные железобетонные плиты.

Наружные и внутренние стены - панели, которые могут быть из керамзитобетона, шлакобетона, кирпича, двух- и трехслойными, типа скорлуп.

Перегородки - гипсоопилочные, гипсошлакобетонные, гипсобетонные.

Фундаменты - ленточные, из сборных железобетонных блоков или монолитные.

Инженерные коммуникации размещены чаще всего в подполье.

Настоящий проект производства работ предусматривает демонтаж сборных элементов типового этажа, чердака и машинного помещения.

Демонтажные работы производятся с применением свободностоящего башенного крана.

При разработке проекта производства работ использованы нормативно-технические документы, основные из которых указаны в разделе 2.

2. НОРМАТИВНО-ТЕХНИЧЕСКИЕ ДОКУМЕНТЫ

СНиП 12-03-2001. Безопасность труда в строительстве. Часть 1. Общие требования

СНиП 12-04-2002. Безопасность труда в строительстве. Часть 2. Строительное производство

ГОСТ 12.1.004-91*. ССБТ. Пожарная безопасность. Общие требования

ГОСТ 12.1.046-85. ССБТ. Строительство. Нормы освещения строительных площадок

ГОСТ 12.3.003-86. ССБТ. Работы электросварочные. Требования безопасности. Изменение (И-I-VIII-89)

ГОСТ 12.3.009-76. ССБТ. Работы погрузочно-разгрузочные. Общие требования безопасности. Изменение (И-I-XI-82)

ГОСТ 12.4.011-89. Средства защиты работающих. Общие требования и классификация

ГОСТ Р 12.4.026-01. ССБТ. Цвета сигнальные и знаки опасности

ГОСТ 12.4.059-89. ССБТ. Строительство. Ограждения защитные инвентарные. Общие технические условия

ГОСТ 12.4.107-82. ССБТ. Строительство. Канаты страховочные. Общие технические требования

ГОСТ 23407-78. Ограждения инвентарные строительных площадок и участков производства строительно-монтажных работ. Технические условия

ГОСТ Р 50849-96. ССБТ. Строительство. Пояса предохранительные. Общие технические условия

ГОСТ Р 51248-99. Наземные рельсовые крановые пути. Общие технические требования

МДС 12-29.2006. Методические рекомендации по разработке и оформлению технологической карты

МДС 12-41.2008. Монтажная оснастка для временного закрепления сборных элементов возводимых и разбираемых зданий

МДС 12-45.2008. Рекомендации по составлению проекта производства работ на установку и эксплуатацию башенного крана

МДС 12-46.2008. Проект организации строительства, проект организации работ по сносу (демонтажу), проект производства работ. Разработка и оформление

СП 12-136-2002. БТС. Решения по охране труда и промышленной безопасности в ПОС и ППР

ППБ 01-03. Правила пожарной безопасности в Российской Федерации. Утверждены ГУ ГПС МВД России 16.10.93 с изменениями и дополнениями от 25.07.95 № 282, от 10.12.97 № 814, от 20.10.99 № 817

ПОТ Р М-007-98. Правила по охране труда при погрузочно-разгрузочных работах и размещении грузов. Постановление Минтруда России от 20.03.98 № 16

ПОТ Р М-012-2000. Межотраслевые правила по охране труда при работе на высоте. Утверждены Минтруда России от 04.10.2000 г. № 68

ПОТ Р М-016-2001. Межотраслевые правила по охране труда (правила безопасности) при эксплуатации электроустановок. Постановление Минтруда России от 05.01.2001 № 3

ПОТ Р М-020-2001. Межотраслевые правила по охране труда при электро- и газосварочных работах. Постановление Минтруда России от 09.10.2001 № 72

Постановление Правительства Москвы «О порядке обращения с отходами строительства и сноса в г. Москве» от 25.06.2002 № 469-ПП.

3. ОРГАНИЗАЦИЯ И ТЕХНОЛОГИЯ ВЫПОЛНЕНИЯ РАБОТ

3.1. Подготовительные работы

3.1.1. Подготовительные работы к демонтажу дома выполняются в целом согласно требованиям, предъявляемым к возведению дома.

Площадка для демонтажа дома ограждается забором высотой не менее 1,6 м. В местах прохода людей забор высотой не менее 2,0 м должен быть оборудован сплошным защитным козырьком.

3.1.2. Площадка для демонтажа дома должна быть оборудована так же, как и строительная:

инвентарными зданиями различного назначения, в том числе для бытового обслуживания работников;

средствами тушения пожара и предупредительными знаками;

ограждениями, временными подъездными путями и временными сетями электро-, водо- и теплоснабжения, связи;

местами временного складирования демонтируемых элементов;

местом для очистки колес автотранспортных средств и т.д.

3.1.3. Деревья, не подлежащие вырубке, должны быть защищены.

Входы в демонтируемый дом должны быть защищены сплошным навесом шириной не менее ширины входа с вылетом от стены здания не менее 2 м и ограждены инвентарными средствами с предупредительными знаками.

3.1.4. Опасные зоны от падения предметов с высоты, от работы крана должны быть ограждены и оборудованы предупредительными знаками.

3.1.5. В местах погрузки панелевозов у демонтируемого дома при сквозном проезде необходимо устраивать уширение дороги до 9 м длиной 20 - 30 м (из сборных железобетонных плит), а при отсутствии сквозного проезда - дополнительную площадку (из инвентарных плит) для разворота и стоянки автотранспорта, рассчитанную для одновременной стоянки одного - двух панелевозов.

3.1.6. Для подъема и спуска рабочих в период демонтажа дома и для подачи инструмента (техоснастки) могут устанавливаться грузовые (грузопассажирские) подъемники с демонтажем секций по мере демонтажа этажей. Места установки подъемников указывают на плане дома. Установленные подъемники ограждают инвентарными ограждениями.

3.1.7. По проекту кранового пути согласно требованиям ГОСТ Р 51248-99 устраивается рельсовый путь башенного крана. Установка башенного крана и сдача в эксплуатацию производятся согласно рекомендациям МДС 12-45-2008. Вертикальная привязка крана приведена на рисунке 1.

Установка крана над действующими подземными коммуникациями должна быть согласована с эксплуатирующими организациями.

3.1.8. В зоне действия крана, с учетом погрузки демонтируемых сборных элементов дома на транспортные средства, организуется складская площадка для размещения:

контейнера для малогабаритных демонтируемых элементов и деталей;

контейнера с демонтажными приспособлениями и инструментом;

склада-пирамиды для временного хранения до погрузки демонтированных стеновых панелей и перегородок;

места для грузозахватных приспособлений.

3.1.9. Площадка для демонтажа оснащается демонтажной оснасткой, съемными грузозахватными приспособлениями, инвентарем, предусмотренными проектом производства работ и испытанными в соответствии с действующими правилами.

Техническое освидетельствование съемных грузозахватных приспособлений производится по МДС 12-31.2007.

3.1.10. На лиц, ответственных за безопасное производство работ краном, за исправное состояние съемных грузозахватных приспособлений, энергетических установок, должны быть оформлены приказы по организации о назначении.

3.1.11. В демонтажной зоне на перекрытиях каждого этажа устраивают временные ограждения опасной зоны и закрепляют страховочные приспособления.

На перекрытиях каждого этажа с помощью башенного крана размещают контейнеры для демонтажной оснастки, инструмента, инвентаря.

Освещение рабочих мест может обеспечиваться прожекторами, установленными на поэтажных прожекторных вышках.

3.2. Основные работы

3.2.1. До начала основных работ должны быть:

организованы рабочие места, размещены демонтажные приспособления, установлены контейнеры для оснастки, инвентаря, инструмента;

ограждена опасная зона и установлены страховочные приспособления.

3.2.2. Основные работы выполняют с учетом оценки технического состояния несущих железобетонных конструкций, содержащейся в акте технического обследования дома.

Демонтаж дома выполняется в целом в последовательности, обратной его возведению, то есть сверху вниз, по этажам, по секциям, способом «на себя».

Разборка инженерных коммуникаций выполняется до разборки ограждающих и несущих конструкций. В следующей последовательности выполняют:

разборку внутренних инженерных сетей (тепло-, водо-, газо- и электроснабжение, канализация);

снятие оконных рам и дверей с коробками, встроенных шкафов и других деревянных элементов;

снятие покрытия полов (досок, линолеума, паркета и т.д.).

Рисунок 1 - Вертикальная привязка башенного крана

Работы производятся по стоякам (секциям) начиная с верхнего этажа.

Материалы разборки (дерево, металл, фаянс, стекло и т.д.) сортируют по видам и складируют в соответствующие контейнеры (пакеты).

3.2.3. До демонтажа крыши, стен и фундамента дома выполняют следующие работы:

временное закрепление демонтируемых элементов дома с помощью технологической оснастки;

вскрытие замоноличенных стыков и швов отбойными молотками с комплектом ударных насадок;

резка закладных деталей - газовая или отрезными кругами;

сверление (пробивка) строповочных отверстий в панелях и плитах: диаметром 40 - 50 мм ручными сверлильными машинами, 40 - 60 мм - перфораторами, 85 - 160 мм - сверлильным станком.

3.2.4. Демонтаж крыши состоит из разборки кровельного покрытия, плит (настилов), фризовых панелей и плит покрытия.

Кровельное покрытие (мягкое рулонное, мастичное, металлические листы) разрезается на полосы 1000´500 мм (плиты 1000´1000 мм), удобные для переноски и складирования, или разбирается (металлочерепица, шифер).

Замоноличенные стыки, швы, металлические связи кровельных плит (настилов) должны быть освобождены от раствора.

Строповка кровельных плит производится с помощью четырехветвевого стропа (4СК) и четырех захватов, устанавливаемых в специально просверленные (пробитые) отверстия. Для строповки можно использовать два двухпетлевых (СКП) или кольцевых (СКК) стропа. Затем осуществляют краном слабый натяг строп, и рабочие разрезают металлические связи.

Кровельную плиту отрывают гидроклином (металлическими клиньями) и приподнимают на несколько сантиметров краном при наименьшей скорости, чтобы убедиться, что она не защемлена.

Перед подъемом кровельную плиту перемещают на высоту 20 - 30 см и убеждаются в надежности строповки.

Таким же способом демонтируют фризовые панели, карнизные блоки и плиты покрытия дома.

3.2.5. Демонтаж ограждающих и несущих конструкций дома состоит из демонтажа внутренних и наружных стеновых панелей, плит и блоков.

До демонтажа наружные и внутренние стеновые панели должны быть закреплены. Для этого в панелях на высоте 1,8 - 2,5 м от уровня пола сверлят отверстия, в которые вставляют анкеры.

Напротив этих отверстий в плитах перекрытия (в полу) сверлят отверстия, вставляют анкеры и соединяют их между собой, закрепляя каждую панель.

Затем производится разборка гипсобетонных перегородок и стен санитарно-технических кабин.

Балконы перед разборкой наружных стеновых панелей подпирают телескопическими стойками с нижнего этажа.

Демонтаж наружных и внутренних стеновых панелей и блоков осуществляется описанным выше способом.

3.2.6. Строповка лестничного марша осуществляется с помощью вилочных подхватов. В остальном демонтаж лестничного марша и площадки выполняется так же, как и других сборных железобетонных частей дома.

3.2.7. До снятия плит перекрытия (настилов) над техническим подпольем необходимо выкопать грунт, например экскаватором (со смещенной осью копания), по наружному периметру дома на глубину заложения фундамента.

Наружные цокольные панели и внутренние панели укрепляют временно продольными связями.

После снятия плит перекрытия (настилов) разрушают отбойными молотками бетонную подготовку, освобождают изнутри фундамент от грунта.

Затем демонтируют, используя описанные выше приемы, цокольные панели (блоки стен) подполья и блоки фундамента.

3.2.8. Освобождение элемента от связей выполняют, как правило, на подвесе крюка крана.

При этом в общем случае необходимо:

проверить правильность строповки и надежность закрепления съемного грузозахватного приспособления;

поднимать и перемешать элемент плавно, без рывков, раскачивания и вращения;

перемещение элемента осуществлять в два приема: сначала на высоту 20 - 30 см, а дальнейшее - после проверки надежности строповки;

не допускать толчков и ударов демонтируемого элемента по другим элементам и конструкциям дома;

подаваемый к месту погрузки на транспортное средство элемент опускать и принимать на высоте не более 1 м, а наводить на высоте 30 см от уровня установки в транспортное положение.

3.2.9. Производство работ при температуре воздуха ниже -20 °C не рекомендуется. Демонтаж сборных элементов дома в зимнее время (при среднесуточной температуре ниже +5 °C и минимальной суточной температуре ниже 0 °C) производится в соответствии с указаниями ВСН 159-81, ВСН 202-90.

В случае образования наледи и снега в стыках поверхности панелей следует очищать металлическими щетками или скребками, продувать сжатым воздухом.

Запрещается отогревать и очищать поверхности панелей паром или горячей водой.

3.2.10. Схемы строповки разрабатывают на сборные элементы дома (наружные и внутренние панели и перегородки, плиты перекрытий и покрытий, блоки инженерных коммуникаций, детали шахты лифтов и т.д.) и на непроизводственные грузы (контейнеры с демонтажной оснасткой, инструментом и т.д.).

Схемы строповки разрабатывают с учетом конструкции, габаритов и масс сборных элементов. Одна схема может быть применима для строповки нескольких однотипных элементов. Схемы строповки нумеруют и приводят в проекте производства работ на двух - трех листах формата А2. На рисунке 2 приведены в качестве примера первые четыре (в кружках) схемы строповки. Номерами 6, 7, 8 обозначены стропы, указанные в разделе 5.

Захват для панелей показан на рисунке 3.

Для плит перекрытия применяется захват, один из вариантов конструкции которого приведен на рисунке 4.

3.2.11. Массу и номера схем строповок непроизводственных грузов приводят как в таблице 1, фрагмент которой показан ниже.

Рисунок 2 - Схемы строповки

Таблица 1 - Непроизводственные грузы, перемещаемые башенным краном

Наименование грузов

Масса груза с СГП, т

Номера схем строповки

Контейнер для демонтажной оснастки

1,5

21

Ящик для хранения инструмента

0,7

19

Вышка прожекторная

0,45

16

Массу сборных элементов и номера схем их строповки указывают в соответствующих разделах Технологических карт.

3.2.12. Устойчивость демонтируемых сборных элементов дома обеспечивается за счет их временного крепления.

Схемы временного крепления разрабатывают на наружные и внутренние панели, на перегородки, блоки инженерных коммуникаций, детали шахты лифтов и т.д.

Схемы временного крепления элементов разрабатывают с учетом их конструкции, габаритов и масс.

Рисунок 3 - Захват для демонтажа стеновых панелей

Одна схема может быть применена для крепления ряда однотипных элементов.

Схемы временного крепления приводят в проекте производства работ на листах формата А2. На рисунке 5 приведены в качестве примера схемы временного крепления наружных панелей с помощью отверстий в плитах перекрытия (схема 1а) или фундаментных блоков (схема 1б). Цифрами (9), (10), (11) обозначены демонтажные приспособления - подкосы разной длины. Применение захвата (14), например, показано в узлах А и Б.

Для плит перекрытий может быть применен поворотный захват (15).

Для крепления внутренних панелей без проемов применяют подкосы с захватами и струбцинами, связи со струбцинами, а с проемами - опоры и связи со струбцинами.

Внутренние панели чердака временно закрепляют с двух сторон опорами (20).

Перегородки временно закрепляют стойками (22).

Демонтажная оснастка указана в разделе 5.

Параметры захвата

Грузоподъемность, т = 2,5

Размеры щели в плите, мм:

наименьший - 85;

наибольший - 145

Масса, кг - 2,0

Рисунок 4 - Захват для плит

3.2.13. Демонтируемые элементы дома могут быть использованы непосредственно или подлежат переработке и утилизации.

Железобетонные элементы дома, удовлетворяющие требованиям качества (см. раздел 4), используют в сельском (например, животноводческие фермы, овощехранилища, ремонтные мастерские и т.п.), городском (например, склады, гаражи и т.п.), дорожном и другом строительстве.

Железобетонные элементы, не удовлетворяющие требованиям качества (см. раздел 4), подлежат переработке на строительный щебень и песок.

Отходы утеплителя, стекла и керамики перерабатывают на технологических линиях в сырье для производства строительных материалов и изделий (например, стеновых плит и блоков).

Из битумосодержащих кровельных отходов в специальных установках выплавляют битум, имеющий многоцелевое применение (например, в строительстве).

Рисунок 5 - Временное крепление наружных панелей

4. ТРЕБОВАНИЯ К КАЧЕСТВУ И ПРИЕМКА РАБОТ

4.1. Качество демонтажных работ оценивается по степени безопасности их выполнения для окружающих домов, для существующих инженерных коммуникаций и природной среды, для рабочих-демонтажников и других участников работ, а также по степени сохранности демонтированных элементов дома.

4.2. Демонтажные работы должны обеспечить возможность дальнейшего использования не менее 85 % продуктов демонтажа дома: железобетонных панелей, плит и блоков - в строительстве, остальных - в процессе утилизации. Степень сохранности (целостности) демонтируемых железобетонных элементов зависит от точности (чистоты) сортировки по видам отходов, подлежащих утилизации и переработке во вторичные строительные материалы и изделия.

4.3. Качество работ должно быть на контроле на протяжении всего периода демонтажа в соответствии с проектом производства работ. Контроль осуществляется за последовательностью, режимом и составом описанных выше работ, за соблюдением правил складирования, хранения и транспортирования демонтируемых элементов.

4.4. Контролируемые параметры и характеристики демонтируемых элементов, способы их измерения и оценки приведены в таблице 2.

Таблица 2 - Контролируемые параметры демонтируемых элементов

Демонтируемые элементы, отходы демонтажа дома

Параметры, характеристики

Способы контроля, инструмент

Железобетонные панели, плиты, блоки

Размеры поверхностных трещин не более половины размеров панелей, плит, блоков. Размеры сколов граней и углов не более 12 % их размеров

Металлическая рулетка Р3-10, линейка 300 по ГОСТ 427-75

Объем обнаженной арматуры не более 7 % объема панелей, плит, блоков. Отсутствие сквозных трещин

Визуально

Отходы разборки кровли

Отклонения размеров нарезок (1´1 м) не более ±50 мм

Металлическая рулетка Р3-10, линейка 300 по ГОСТ 427-75

Отходы утеплителя и стекла

Объем посторонних включений не более 5 %

Визуально

5. ПОТРЕБНОСТЬ В ТЕХНОЛОГИЧЕСКОМ ОБОРУДОВАНИИ, ИНСТРУМЕНТЕ И ПРИСПОСОБЛЕНИЯХ

Демонтаж дома производится с применением стреловых (на автомобильном, пневмоколесном или гусеничном ходу) или башенных кранов. Грузоподъемность кранов - до 8 т, вылет - до 25 м, высота подъема крюка - до 36 м.

Работы производятся с использованием универсальных ручных электрических и пневматических машин (перфораторов, шлифовальных с отрезным диском, сверлильных), газорезчиков.

Для размещения рабочих на высотах 0,9 и 1,7 м требуются переставные и передвижные средства подмащивания, например, подмости.

В качестве съемных грузозахватных приспособлений требуются универсальные - стропы четырехветвевые, кольцевые, ленточные, а также специальные захваты для панелей и перегородок, вилочный подхват для лестничных маршей и площадок.

Для отрыва и перемещения панелей и блоков применяют гидравлические устройства типа клиновых домкратов.

Для предотвращения падения рабочих с высоты могут быть использованы универсальные (применяемые в строительстве) и специальные средства техники безопасности - инвентарные ограждения.

Потребность в технологической оснастке, ограждениях и инвентаре приведена в таблице 3.

Таблица 3 - Технологическая оснастка, ограждения, инвентарь

№ п.п.

Наименование и назначение

Тип, марка, ГОСТ, разработчик, номер чертежа

Основная техническая характеристика, параметр

Грузозахватные приспособления

1

Устройство для панелей стен

ЗАО ЭЛМЗ, 4047Н

Грузоподъемность 8 т

2

Устройство для плит перекрытий, лоджий и балконов

Трест Мосоргстрой, 6118

То же

3

Траверса для лифтовых шахт

ООО «Кранмонтаж», 24-00033 СБ

»

4

Универсальная траверса

СПКТБ «Кассетдеталь», ТФ 13262

Грузоподъемность 7 т

5

Вилочный захват для монтажа лестничных маршей

СПКТБ «Кассетдеталь», ОР-5230

Грузоподъемность 2,1 т

6

Строп кольцевой СКК 1-4,5

ГОСТ 25573*

Грузоподъемность 5 т, длина 8 м

7

Строп текстильный ленточный СТЛ-4.0-8000

ГОСТ 30055-93

Грузоподъемность 4 т, длина 8 м

8

Строп цепной ВЦ-5,0-400

РД 10-33

Грузоподъемность 5 т, длина 4 м

Демонтажная оснастка

9

Подкос для панелей стен

ЗАО ЭРМЗ, 10803

Длина 2500 - 4500 мм

10

Подкос для панелей стен

ЗАО ЭРМЗ, 10802

Длина 1900 - 2400 мм

11

Подкос для панелей стен

ЗАО ЭРМЗ, 10805

Длина 1300 - 1800 мм

12

Подкос (пятка) для панелей наружных стен

Трест Мосоргстрой, 10806

Длина 2570 - 2800 мм

13

Связь для внутренних стен и перегородок

Трест Мосоргстрой, 10561

Зев 130 - 230 мм.,

длина 980 - 1230 мм

14

Захват для панелей стен

Инвентарный

Толщина панелей до 420 мм

15

Захват для плит перекрытий

Инвентарный

Толщина плит 250 мм

16

Струбцина

ЗАО ЭРМЗ, 10552

Зев 120 - 240 мм

17

Струбцина для портала

ЗАО ЭРМЗ, 10557

Зев 340 - 460 мм

18

Связь СМ125

Трест Мосоргстрой, 10561

Зев 120 - 240 мм,

длина 980 - 1230 мм

19

Опора для панелей внутренних стен

Трест Мосоргстрой, 10819

Зев 100 - 260 мм

20

Опора для чердачных рам

Трест Мосоргстрой, 5938

Зев 140 - 260 мм

21

Стойка для перегородок

Трест Мосоргстрой, 10813

Зев 50 - 130 мм

Временные ограждения

22

Временное ограждение опасной зоны на перекрытии (типовое)

Трест Мосоргстрой, 12022

Звено с расстоянием между стойками 2560 мм

23

Временное ограждение опасной зоны на перекрытии

ЗАО ЭРМЗ, Р 15.347.00

Звено с расстоянием между стойками 3460 мм

24

Звено цепное

Инвентарное

Длина 1800 мм

25

Ограждение лестничных площадок и маршей

СПКТБ «Кассетдеталь»

11371А

26

Страховочное приспособление на монолитном перекрытии

Трест Мосоргстрой, 4645Е

Длина 11500 мм

Складской инвентарь

27

Склад-пирамида для складирования панелей стен и перегородок

ЗАО ЭРМЗ, 10825

-

28

Лестница для склада

Трест Мосоргстрой, 10075АЛ

Высота 1,2 м

Контейнеры, тара

29

Ларь для хранения инструментов

Трест Мосоргстрой, П64АБ

Размеры 1,5´0,6 м

30

Контейнер для хранения оснастки

Инвентарный

Размеры 2,0´1,2 м

Инвентарь для производства работ

31

Комплект съемных решеток для закрытия проемов вентблоков, вентшахт, мусоропроводов

Инвентарный

-

32

Съемная крышка для лифтовых шахт

Инвентарная

-

33

Вышка прожекторная

Инвентарная

Размеры 1,2´1,2 м

Примечание - При отсутствии средств, указанных в таблице, используются аналогичные оснастка, грузозахватные приспособления и инвентарь, технические характеристики которых не хуже указанных в таблице.

6. ТЕХНИКА БЕЗОПАСНОСТИ, ОХРАНА ТРУДА И ОКРУЖАЮЩЕЙ СРЕДЫ

6.1. Безопасность работ и охрана труда обеспечиваются организационными, техническими и технологическими решениями, предусмотренными в проекте производства работ и в технологических картах.

Основное требование, предъявляемое к безопасности работ, - временное закрепление и соблюдение последовательности демонтажа строительных конструкций.

Рабочие допускаются к работам после инструктажа на рабочем месте по безопасности труда с учетом особенностей демонтажа дома данной конструкции.

Демонтаж дома производится под непосредственным руководством инженерно-технического работника, назначенного приказом по организации.

6.2. При организации строительной площадки, размещении участков работ, рабочих мест, проездов машин и транспортных средств, проходов для людей следует установить опасные зоны.

Опасные зоны должны быть обозначены знаками безопасности и надписями установленной формы в соответствии с требованиями ГОСТ 12.4.026-76.

На границе опасных зон ставят временные защитные ограждения в соответствии с требованиями СНиП 12-03-2001 и ГОСТ 12.4.059-89.

6.3. Пожарная безопасность и электробезопасность на площадке должны удовлетворять требованиям типовых правил.

Электрорезные работы по стали выполняют с учетом требований СНиП 12-03-2001, СНиП 12-04-2002, ГОСТ 12.3.003-86.

Электрорезные работы на открытом воздухе во время дождя и снегопада должны быть прекращены.

6.4. Работы по демонтажу дома производят, как правило, в светлое время суток.

Демонтажные работы в ночное время суток (с 22.00 до 6.00 ч) выполняются при соблюдении ряда условий и после соответствующего разрешения органов местной власти.

6.5. Проемы в перекрытии, в том числе шахты лифтов, вентшахт и блоков, остающиеся временно незакрытыми по ходу демонтажа, закрывают инвентарными сплошными щитами или ставят по периметру временные ограждения.

Открытые проемы стен дома должны закрываться инвентарными сплошными щитами или иметь закрепленные временные ограждения по всему периметру, снимаемые по ходу демонтажа плит перекрытия.

При временном закреплении панелей:

с помощью опор - необходимо, чтобы оба опорных башмака опоры стояли на плитах перекрытия, установка подкладок под опорные башмаки не допускается;

связями, имеющими струбцины с винтовыми зажимами, - необходимо, чтобы винты зажимов, зажимающие конструкцию, были плотно затянуты.

6.6. При выполнении работ на высоте более 1,3 м (установка временных связей, креплений и ограждений, демонтаж наружных панелей, плит балконов, панелей перекрытий и т.п.) рабочие должны прикрепляться с помощью карабина на монтажном поясе к специально натянутому тросу или за противовысотное устройство (ПВУ).

6.7. Не допускается выполнение работ по демонтажу дома на разных этажах одновременно по одной вертикали (секции).

Вход в нижележащие помещения во время работ должен быть закрыт.

6.8. Загрузка панелевозов производится на горизонтальной ровной площадке.

При работе крана машинист крана и демонтажники (стропальщики) должны быть обеспечены радиопереговорными устройствами.

При подъеме и опускании демонтированных элементов должно быть обеспечено вертикальное положение грузовых канатов.

Не допускаются вытягивание краном защемленных стропов и канатов, подъем не полностью освобожденных от связей железобетонных элементов, оттягивание их во время подъема, перемещения и опускания.

Для разворота элементов во время их перемещения должны применяться крючья или оттяжки соответствующей длины.

Запрещается нагружать перекрытия дома панелями, плитами и другими демонтируемыми элементами.

6.9. Строповку железобетонных элементов дома следует производить грузозахватными приспособлениями или инвентарными стропами.

Запрещается строповка железобетонных элементов за сохранившиеся монтажные петли.

Крюки должны быть с предохранительными замыкающими устройствами.

При строповке вертикальных панелей необходимо пользоваться стремянкой (а не лестницей).

6.10. Строительный мусор должен опускаться по закрытым желобам, в закрытых ящиках или контейнерах.

Нижний конец желоба должен входить в бункер для мусора или находиться не выше 1 м над землей.

Сбрасывать мусор без желобов разрешается с высоты не более 3 м.

Запыленность воздуха должна соответствовать санитарным нормам в строительстве.

6.11. При производстве демонтажных работ должны быть соблюдены условия по охране окружающей среды.

Выезды автотранспорта с площадки работ должны быть оборудованы пунктами мойки колес. В Москве пункты мойки колес должны быть с замкнутым циклом водоснабжения и утилизацией стоков типа установки «Автосток».

Зеленые насаждения, на которые не имеется порубочного билета, подлежат охране: их огораживают и защищают деревянными щитами.

6.12. Мелкоштучные отходы демонтажа должны транспортироваться к пунктам переработки в контейнерах (пакетами), в предназначенной для этого таре.

Отходы от демонтажа в Москве должны быть утилизированы согласно требованиям «Технологического регламента процесса обращения с отходами строительства и сноса объекта...» (см. постановление Правительства Москвы от 25.06.2002 № 469-ПП).

II. ТЕХНОЛОГИЧЕСКАЯ КАРТА. ДЕМОНТАЖ ТИПОВОГО ЭТАЖА

1. ОБЛАСТЬ ПРИМЕНЕНИЯ

Технологическая карта разработана на демонтаж сборных элементов типового этажа: плит покрытия, перегородок, блоков инженерных коммуникаций, ограждений балконов и лоджий, шахт лифтов, лестничных маршей, внутренних и наружных стеновых панелей, плит перекрытия и других сборных элементов.

Спецификация сборных элементов и их масса приведены в разделе 7.

2. ОРГАНИЗАЦИЯ И ТЕХНОЛОГИЯ ДЕМОНТАЖА СБОРНЫХ ЭЛЕМЕНТОВ

До начала демонтажа сборных элементов типового этажа должны быть выполнены подготовительные работы (см. раздел 3.1).

До демонтажных работ требуется прежде всего обеспечить их безопасность: составляется схема расположения на перекрытии временного ограждения опасной зоны (от падения с высоты) и страховочных приспособлений. Затем составляется схема расстановки на перекрытии контейнеров с оснасткой, инвентарем и инструментом. Для демонтажных работ на перекрытии разрабатываются схемы последовательности демонтажа и временного крепления сборных элементов, составляется таблица демонтируемых элементов с указанием их масс, схем строповки.

Демонтаж производят захватками в зависимости от местных условий.

Демонтаж по данной карте производится на одной из четырех захваток, в направлении «на себя», в следующей последовательности:

демонтаж блоков инженерных коммуникаций и элементов лестнично-лифтового узла;

демонтаж перегородок и вентиляционных блоков, санитарно-технических кабин;

демонтаж ограждений балконов и лоджий, панелей внутренних и наружных стен;

демонтаж плит балконов и лоджий, плит перекрытия.

2.1. Демонтаж блоков инженерных коммуникаций и элементов лестнично-лифтового узла

Блоки инженерных коммуникаций демонтируют поэтажно, разрушая опирание железобетонного поддона блока на смежные панели стен лестничной клетки.

Для демонтажа объемных элементов шахты лифтов разбирают кронштейны, крепящие направляющие кабины и противовеса. Монтаж объемных элементов производится также поэтажно.

Демонтаж лестниц начинают с разборки ограждений площадок и маршей, затем разбирают смежные плиты перекрытия и междуэтажные лестничные площадки.

Освобожденные от связей марши удаляют с места установки вилочными захватами.

2.2. Демонтаж перегородок и вентиляционных блоков, санитарно-технических кабин

Панели перегородок временно закрепляют подкосами или треугольными стойками в сочетании с угловыми связями (панели с проемами) и с двумя угловыми связями (сплошные панели).

Демонтаж вентиляционных блоков с опорных полок ведется поэтажно.

Удаляют крепления вентиляционного блока в проемах перекрытия и демонтируют блок с этажа.

Удаляют поэтажно водопроводный и канализационный стояки. Санитарно-технические кабины освобождают от связей и упругих звукоизолирующих прокладок, уложенных по перекрытию, затем демонтируют кабину.

2.3. Демонтаж ограждений балконов и лоджий, панелей наружных и внутренних стен

При демонтаже панелей выполняются следующие операции: подготовка панели к строповке, включающая устройство строповочных отверстий, строповка, временное крепление к перекрытию или к внутренней стене при помощи инвентарной оснастки, освобождение от бетона (раствора) и резка постоянных связей на сварке, уборка оснастки временного крепления, отрыв панели от подушки при помощи клинового гидравлического домкрата, вывешивание на крюке, перемещение панели на транспортное средство (панелевоз).

Демонтаж ограждений балконов и лоджий производится «по месту».

2.4. Демонтаж плит балконов и лоджий, плит перекрытия

Балконные плиты временно могут быть закреплены не только при помощи стоек, но и пригрузкой со стороны внутреннего контура дома путем укладки на них стандартных бетонных блоков, например ФБС-12-3-3т массой 270 кг.

Плиты балконов и лоджий освобождают при помощи резки от постоянных связей на сварке со смежными плитами перекрытия.

Плиты балконов и лоджий отрывают домкратами от цементного раствора посадочных мест.

Строповка плит осуществляется, как правило, за проделанные в них демонтажные отверстия.

Демонтаж плит перекрытия начинают с демонтажа плит, примыкающих к лестнично-лифтовому узлу: освобождают от связей на сварке между собой, отрывают домкратами.

Демонтаж производится с соблюдением принципа: «на себя» и « на колеса».

3. СХЕМА РАССТАНОВКИ КОНТЕЙНЕРОВ И ИНВЕНТАРЯ НА ПЕРЕКРЫТИИ

Расстановка контейнеров и инвентаря производится с учетом расположения ограждения опасной зоны и страховочных приспособлений. Расставлять контейнеры и инвентарь следует так, чтобы они не мешали ведению демонтажных работ, удалению заделки и разгерметизации стыков и швов. На рисунке 6 показан один из вариантов расстановки контейнеров и инвентаря на перекрытии типового этажа (на первой захватке). Цифрами обозначены контейнеры, инвентарь и прожекторные вышки, приведенные в разделе 5.

4. СХЕМА ВРЕМЕННОГО КРЕПЛЕНИЯ ДЕМОНТИРУЕМЫХ ЭЛЕМЕНТОВ

А. Схема с устройством демонтажных отверстий.

Схема разрабатывается на основе чертежей элементов и последовательности их демонтажа. При разработке схемы используются данные о крепежных приспособлениях и типовых способах их применения (см. раздел 5).

Схема составляется на плане этажа, на листе формата А2 или A3. На схеме показывают условное изображение и номер крепежного приспособления для каждого сборного элемента.

На рисунке 7 показан фрагмент схемы, из которой видно, как следует временно крепить наружные и внутренние панели на первой захватке. Так, крепление наружной панели, например панели НС - Г, осуществляется в двух точках с помощью двух подкосов (9) и двух захватов (14). Другие концы подкосов закрепляются в плите перекрытия с помощью захватов (14) (см. схему 1а, рисунок 5).

Б. Схема с применением фундаментных блоков.

Особенность схемы в том, что для временного крепления демонтируемых элементов используются фундаментные блоки. В этом случае в составе подготовительных работ выполняют работы по установке на перекрытии фундаментных блоков типа ФБС-24-4-6т и ФБС-24-5-6т по ГОСТ 13579-78.

Рисунок 6 - Схема расстановки контейнеров, ларей и прожекторных вышек

Рисунок 7 - Схема временного крепления наружных панелей

Нижние концы подкосов при этом закрепляются на строповочные петли упомянутых фундаментных блоков (см. схему 1б, рисунок 5).

Возможность применения этой схемы должна быть подтверждена расчетом прочности перекрытия дома от нагрузки устанавливаемых на перекрытии фундаментных блоков.

5. ПОСЛЕДОВАТЕЛЬНОСТЬ ДЕМОНТАЖА СБОРНЫХ ЭЛЕМЕНТОВ НА ПЕРЕКРЫТИИ

Последовательность демонтажа указывается на схеме с учетом того, что работы ведутся по захваткам.

Сначала демонтируют центральные элементы дома: вентиляционные блоки, шахты лифтов, лестницы, перегородки и т.д. Затем демонтируют по периметру перекрытия наружные и внутренние панели.

Схема составляется на листе формата А4 или A3. На схеме воспроизводится план этажа с обозначением сборных элементов. Около каждого сборного элемента проставляется в кружке порядковый номер его демонтажа.

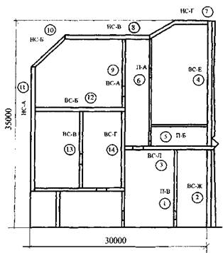
На рисунке 8 показан фрагмент схемы для первой захватки. Из рисунка 8 видна последовательность демонтажа внутренних и наружных элементов. Так, последовательность демонтажа первых семи элементов следующая: 1-ПВ-1, 2-ВС-Ж, 3-ВС-Л, 4-ВС-Е, 5-ПБ-5, 6-ПА-6, 7-НС-7.

Из условия технологической последовательности демонтажа может быть составлен график движения на объект транспортных средств.

6. СХЕМА РАСПОЛОЖЕНИЯ НА ПЕРЕКРЫТИИ ВРЕМЕННОГО ОГРАЖДЕНИЯ ОПАСНОЙ ЗОНЫ И СТРАХОВОЧНЫХ ПРИСПОСОБЛЕНИЙ

Схема составляется на листе формата А4 или A3. На рисунке 9 показан фрагмент этой схемы на первой захватке. На схеме показано расположение страховочного приспособления (27) и деталей ограждения: (23) - с расстоянием между стойками 2560 мм, (24) - с расстоянием между стойками 3460 мм и (25) - цепное звено длиной 1800 мм. Цифры соответствуют номерам временного ограждения опасной зоны и страховочных приспособлений, указанным в разделе 5. Временное ограждение и страховочные приспособления крепятся к плитам перекрытия с помощью проделанных в них отверстий.

Для крепления ограждения опасной зоны и страховочных приспособлений могут быть использованы фундаментные блоки. В этом случае в составе подготовительных работ выполняют работы по установке на перекрытии фундаментных блоков типа ФБС-12-3-3т для устройства страховочного приспособления и блоков тина БЦС 200-1 для установки защитного ограждения.

Рисунок 8 - Последовательность демонтажа сборных элементов на перекрытии

Рисунок 9 - Схема расположения ограждения опасной зоны и страховочных приспособлений

Основной трос длиной 11,5 м страховочного приспособления крепится своими карабинами к строповочным петлям фундаментных блоков типа ФБС-12-3-3т.

На основной трос надевают, как обычно, карабины индивидуальных тросов демонтажников.

Вместо защитного ограждения в ряде случаев может быть применено обычное сигнальное ограждение на базе блоков типа БЦС 200-1. Сигнальное ограждение ставится по периметру на расстоянии до опасной зоны не менее 2 м.

7. ПОСЛЕДОВАТЕЛЬНОСТЬ ДЕМОНТАЖА ПЛИТ ПЕРЕКРЫТИЯ

Последовательность демонтажа плит перекрытия указывают на схеме, которая приводится на листах формата A3. На рисунке 10 приведен фрагмент схемы на первой захватке. Цифрами указана последовательность 1 - 9 демонтажа плит перекрытия.

8. СПЕЦИФИКАЦИЯ ДЕМОНТИРУЕМЫХ ЭЛЕМЕНТОВ, ИХ МАССА, НОМЕРА СХЕМ СТРОПОВКИ

Сводные данные об основных сборных элементах, их количестве на этаж, массе, номера схем строповки и последовательности демонтажа приводятся в таблице. Перечень основных сборных элементов на этаж может включать несколько десятков наименований. В таблице 4 представлена, в качестве примера, спецификация основных демонтируемых элементов.

Рисунок 10 - Последовательность демонтажа плит перекрытия

9. ПЛАН-ГРАФИК РАБОТ

График работ составлен на демонтаж типового этажа площадью 1050 м2 панельного жилого дома (см. график).

Таблица 4 - Спецификация демонтируемых элементов

Наименование сборных элементов

Кол-во на этаж

Масса, кг

Номера схем строповки

Номера последовательности демонтажа

Блоки инженерных коммуникаций

ВБ-1

5

910

2

94, 101, 107, 124, 140

ШЛ-1

2

7200

6

58, 59

...

Перегородки

П-А

2

1460

2

146, 166

...

Внутренние стеновые панели

ВС-А

4

4350

2

65, 114, 129, 158

ВС-Б

4

6500

1

66, 115, 130, 159

...

Ограждения балконов и лоджий

ОБ-1

2

3150

1

77, 96

...

Наружные стеновые панели

НС-А

4

2520

1

1, 15, 34, 45

НС-Б

2

510

11

2, 20

...

Календарный план-график работ по демонтажу типового этажа

(объем работ - 1050 м2 площади этажа)

Наименование работ

Трудоемкость работ, чел.-ч

Численность рабочих

Затраты времени, смены

График работ, смены

1 - 2

3 - 4

5 - 6

7 - 8

9 - 10

Подготовительно-заключительные работы

32

8

0,5

Демонтаж блоков инженерных коммуникаций и элементов лестнично-лифтового узла

192

16

1,5

Демонтаж перегородок и вентиляционных блоков, санитарно-технических кабин

256

16

2,0

Демонтаж ограждений балконов и лоджий, панелей внутренних и наружных стен

448

16

3,5

Демонтаж плит балконов и лоджий, плит перекрытия

200

10

2,5

Основными несущими конструкциями дома служат внутренние поперечные и продольные панели, наружные панели и плиты перекрытий. Стыки их выполнены сваркой закладных деталей.

Кровля - плоская, из рулонного битумосодержащего материала.

Наружные панели - тонкостенные с внутренним утеплителем. Перегородки - гипсолитовые.

Работы производятся комплексной бригадой из 16 рабочих, в составе которых крановщик, стропальщики, газорезчики, такелажники и другие рабочие.

Работы по разборке инженерных коммуникаций произведены до разборки дома и не включены в график.

Трудоемкость демонтажа типового этажа не превышает 1128 чел.-ч. Продолжительность работ - не более 10 смен.

График составлен для последовательного выполнения работ, когда демонтаж выполняется поэтажно, то есть пока не демонтирован верхний этаж, демонтаж элементов нижнего этажа не выполняется. При осуществлении дополнительных мер безопасности (например, оснащении башенного крана приборами, ограничивающими зону его действия) возможно параллельное выполнение работ. Например, одновременно с работами на первой захватке восьмого этажа производятся работы на четвертой захватке седьмого этажа. Продолжительность демонтажа типового этажа при таком способе работ сокращается до 8 смен.

III. ТЕХНОЛОГИЧЕСКАЯ КАРТА. ДЕМОНТАЖ ЧЕРДАКА

Технологическая карта разрабатывается на демонтаж чердака из сборных элементов: наружных фризовых панелей, кровельных плит покрытия и чердачных рам.

Состав разделов и их содержание в этой технологической карте в целом такое же, как и в технологической карте на этаж.

Демонтаж чердака производится по захваткам в следующей последовательности:

демонтаж наружных фризовых панелей;

демонтаж кровельных плит покрытия;

демонтаж панелей стен лестнично-лифтовых узлов, чердачных рам.

Демонтаж наружных фризовых панелей выполняется аналогично демонтажу панелей наружных стен дома.

Панель временно закрепляют подкосами (9) или (10), которые используют с захватами (14). Крепление панелей между собой, а также с плитами покрытия производится в двух уровнях с помощью связей.

Демонтаж кровельных плит производят так же, как и плит перекрытия на типовом этаже. Демонтаж кровельных плит начинают с удаления лотковых плит, затем удаляют остальные плиты, соблюдая при этом принцип демонтажа «на себя». Удаление водосточных воронок, разборка примыканий, разрушение заделки стыков производятся по месту.

Демонтаж панелей лестнично-лифтовых узлов и чердачных рам выполняется в целом аналогично демонтажу панелей внутренних стен.

Для временного в одной (торцевая рама) или в двух точках крепления чердачной рамы используют опоры (20), устанавливаемые со стороны свободных торцов панели, и связи (13), указанные в разделе 5.

IV. ТЕХНОЛОГИЧЕСКАЯ КАРТА. ДЕМОНТАЖ МАШИННОГО ПОМЕЩЕНИЯ

Состав разделов и их содержание в этой технологической карте в целом такое же, как и в предыдущих технологических картах. Некоторые особенности могут быть при демонтаже машин и оборудования лифтов, при демонтаже плит покрытия машинного отделения.

Отверстия в плитах перекрытия машинного отделения закрывают инвентарными щитами.

Демонтаж плит покрытия машинного отделения выполняется в основном так же, как и демонтаж плит покрытия дома.



© 2013 Ёшкин Кот :-)