| ||||||||||||||||||||||||||||||||
Скачать ВСП 33-02-05 МО РФ Инструкция по расчету и проектированию плавучих рейдовых причалов ВМФДата актуализации: 10.08.2017
|
| Обозначение: | ВСП 33-02-05 МО РФ |
| Обозначение англ: | VSP 33-02-05 МО РФ |
| Статус: | взамен |
| Название рус.: | Инструкция по расчету и проектированию плавучих рейдовых причалов ВМФ |
| Дата добавления в базу: | 01.02.2017 |
| Дата актуализации: | 05.05.2017 |
| Дата введения: | 12.09.2005 |
| Область применения: | Свод правил устанавливает основные положения и требования, которые рекомендуется соблюдать при проектировании плавучих рейдовых причалов различного типа и назначения с целью обеспечения требуемой надежности и безопасности стоянки кораблей, эксплуатации причалов, предупреждения возникновения аварийных ситуаций, связанных с угрозой безопасности окружающей среды. В правилах содержатся общие требования к акватории рейдов и плавучим рейдовым причалам, рекомендации по выбору конструкции и комплектации рейдовых причалов, указания по определению нагрузок на причалы и усилий в их элементах. Правила рекомендуются для применения проектными и другими организациями ВМФ, осуществляющими проектирование, строительство и эксплуатацию различных плавучих рейдовых причалов. |
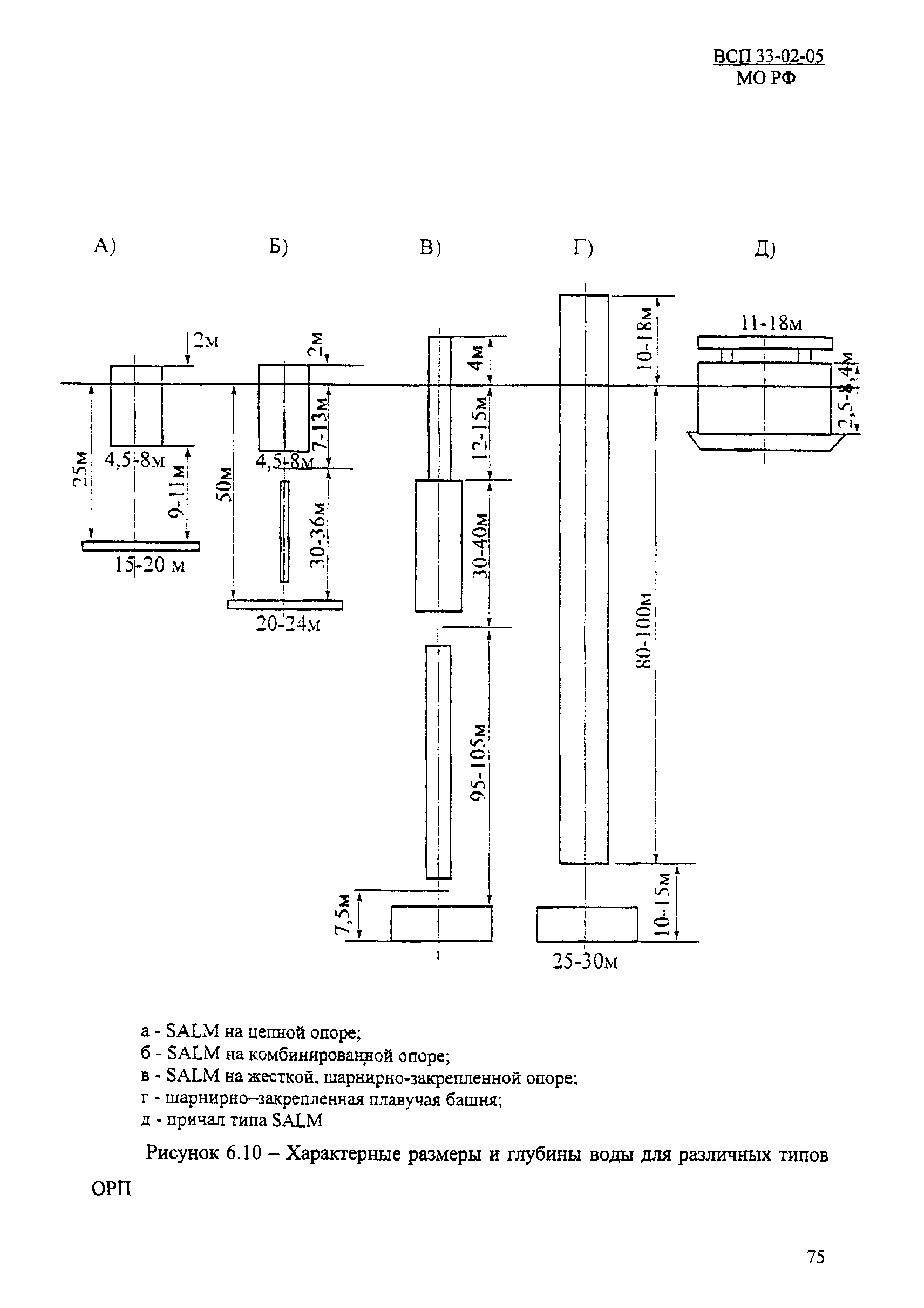
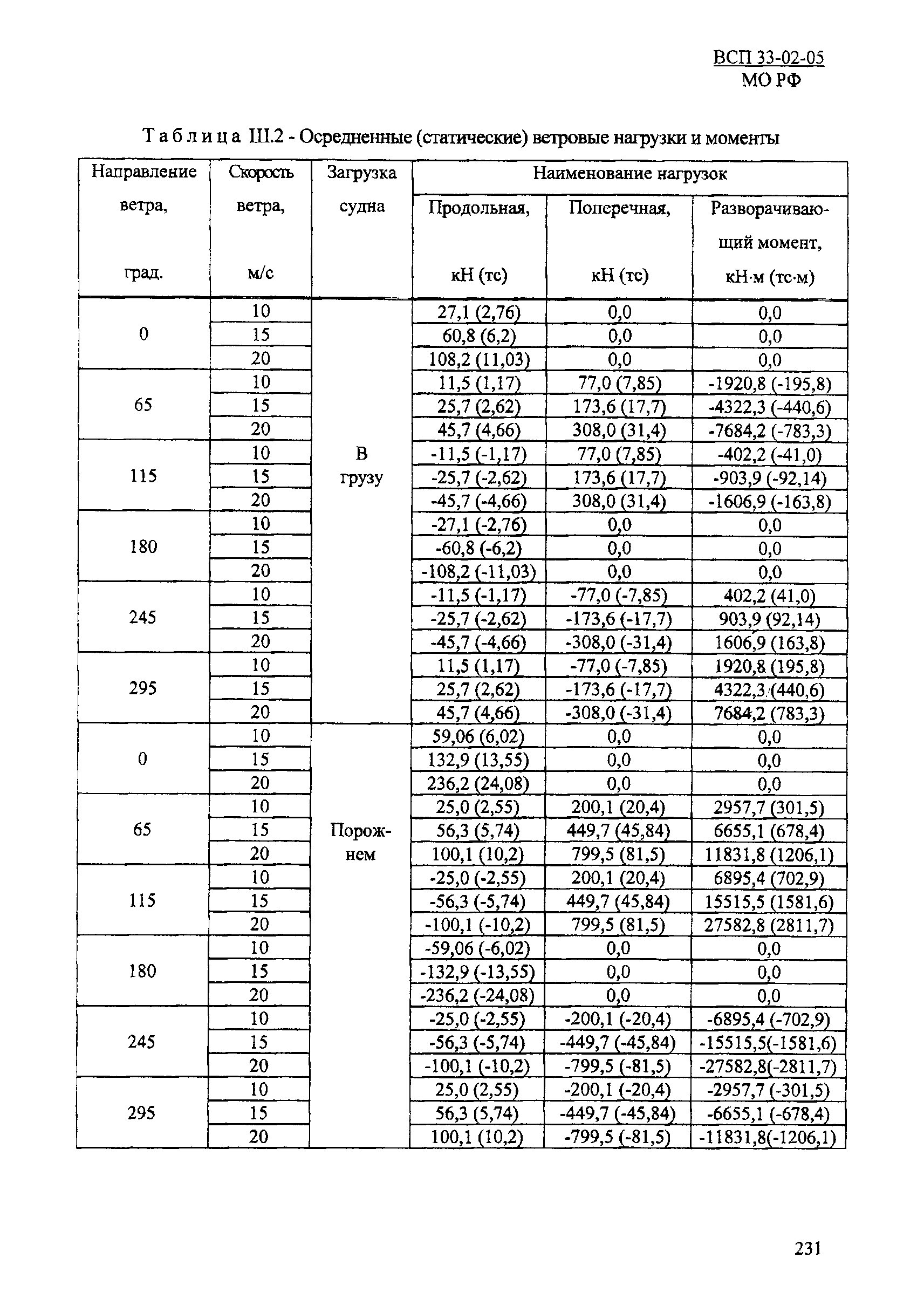
| Оглавление: | Введение 1 Область применения 2 Нормативные ссылки 3 Термины и определения 4 Обозначения и сокращения 5 Общие положения 5.1 Классификация плавучих рейдовых причалов 5.2 Общие положения по проектированию плавучих рейдовых причалов 6 Одноточечные рейдовые плавучие причалы (ОРПП) 6.1 Рейдовые стоянки на одиночных швартовных бочках со свободно провисающим бриделем 6.1.1 Описание и технические данные рейдового оборудования 6.1.2 Основные положения проектирования рейдовых стоянок на одиночных швартовных бочках со свободно провисающим бриделем 6.1.3 Определение основных характеристик элементов рейдовой стоянки 6.1.4 Рекомендации по швартовке и стоянке корабля на бочке 6.2 Одноточечные плавучие рейдовые причалы специальной конструкции 6.2.1 Общие положения 6.2.2 Рекомендации по выбору типа причала и требования к отдельным его элементам 6.2.3 Расчет нагрузок на причал, усилий в швартовах и бриделях 7 Многоточечные плавучие рейдовые причалы 7.1 Общие положения по проектированию многоточечных рейдовых плавучих причалов 7.2 Рекомендации по расчету многоточечных рейдовых причалов Приложение А (справочное). Основные буквенные обозначения Приложение Б (справочное). Нормы обеспечения рейдовым оборудованием кораблей и судов ВМФ Приложение В (справочное). Основные технические характеристики стандартных рейдовых бочек Приложение Г (справочное). Конструктивные схемы стандартных рейдовых бочек Приложение Д (справочное). Элементы якорных цепей, используемые для бриделей рейдовых причалов Приложение Е (справочное). Основные характеристики гравитационных железобетонных якорей кругового действия Приложение Ж (справочное). Рекомендации по определению характеристик расчетных кораблей Приложение К (справочное). Данные по предварительному выбору бриделя и якоря Приложение Л (справочное). Данные по предварительному выбору рейдовой бочки Приложение М (справочное). Относительные глубины погружения рейдовой бочки и усилия в бриделе Приложение Н (справочное). Допускаемые значения относительных глубин погружения рейдовой бочки и коэффициенты запаса прочности бриделя и швартовов Приложение П (справочное). Ориентировочные коэффициенты трения Приложение Р (справочное). Примеры решения задач по оборудованию рейдовых стоянок на одиночных рейдовых бочках со свободно провисающим бриделем Приложение С (справочное). Характеристики некоторых существующих ОРПП типа CALM, SALM, и ALP Приложение Т (справочное). Примеры решения задач по определению основных характеристик ОРПП (нагрузок на причал, усилий в швартове и бриделе) Приложение У (справочное). Основные характеристики подвесных массивов якорных цепей Приложение Ф (справочное). Общее описание программных средств по расчету многоточечных плавучих рейдовых причалов Приложение Ц (справочное). Основные положения оценки надежности многоточечных плавучих рейдовых причалов Приложение Ш (справочное). Примеры решения задач по определению основных характеристик многоточечных плавучих рейдовых причалов Библиография |
| Разработан: | ОАО Ленморниипроект Научно-исследовательский Центр 26 ЦНИИ МО РФ 23 ГМПИ |
| Утверждён: | 29.08.2005 Министерство обороны РФ (Russian Federation Ministry of Defense ) 12.09.2005 Главнокомандующий Военно-Морским Флотом |
| Расположен в: | |
| Заменяет собой: |
|
| Нормативные ссылки: |
|

























































































































































































































































































