| ||||||||||||||||||||||||||||||||||||
Скачать ГОСТ 21.608-2014 Система проектной документации для строительства. Правила выполнения рабочей документации внутреннего электрического освещенияДата актуализации: 10.08.2017
|
| Обозначение: | ГОСТ 21.608-2014 |
| Обозначение англ: | GOST 21.608-2014 |
| Статус: | взамен |
| Название рус.: | Система проектной документации для строительства. Правила выполнения рабочей документации внутреннего электрического освещения |
| Название англ.: | System of building design documents. Rules for execution of working documents of interior electric lighting |
| Дата добавления в базу: | 21.05.2015 |
| Дата актуализации: | 05.05.2017 |
| Дата введения: | 01.07.2015 |
| Область применения: | Стандарт устанавливает состав и правила оформления рабочей документации внутренних сетей электрического освещения помещений зданий и сооружений различного назначения. |
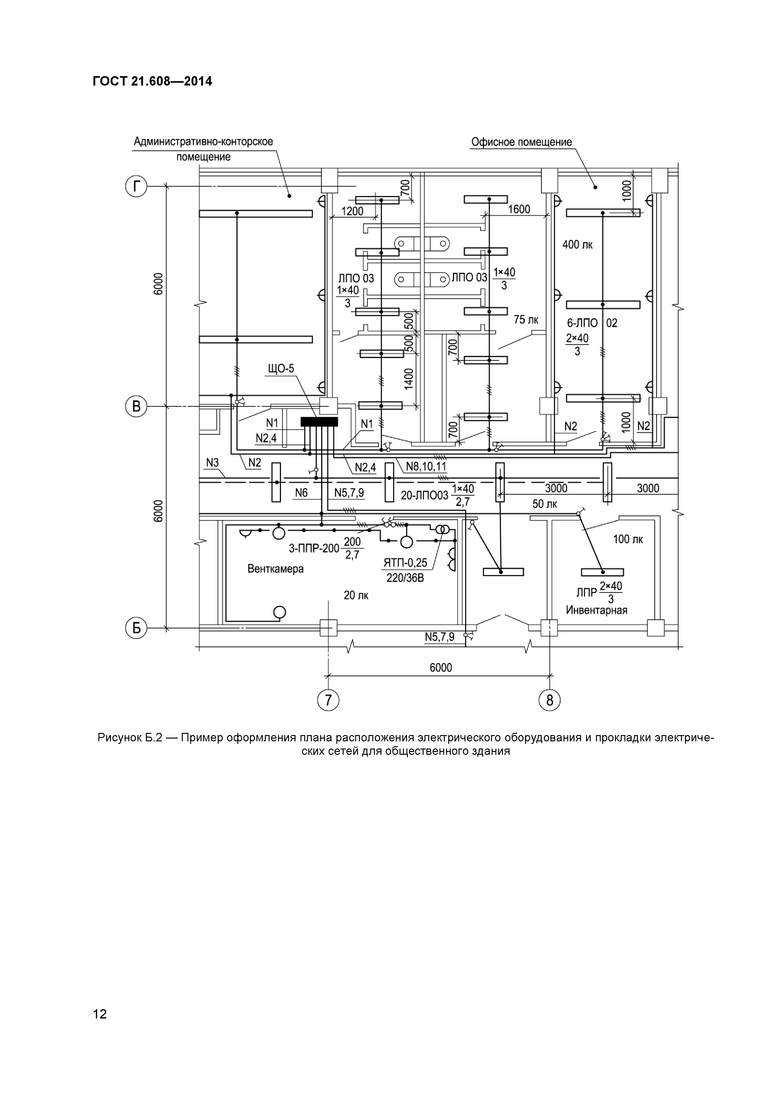
| Оглавление: | 1 Область применения 2 Нормативные ссылки 3 Общие положения 4 Общие данные по рабочим чертежам 5 Чертежи и схемы 6 Эскизные чертежи общих видов нетиповых конструкций 7 Спецификация оборудования, изделий и материалов 8 Опросные листы и габаритные чертежи Приложение А (справочное) Примеры условных обозначений на планах расположения электрического оборудования и прокладки электрических сетей Приложение Б (справочное) Примеры оформления планов расположения электрического оборудования и прокладки электрических сетей Приложение В (справочное) Пример заполнения ведомости узлов установки электрического оборудования на плане расположения Приложение Г (справочное) Пример оформления принципиальной схемы питающей и распределительной сетей Приложение Д (справочное) Пример оформления принципиальной схемы группового щитка освещения Приложение Е (справочное) Пример оформления принципиальной схемы питающей и распределительной сети многоэтажного здания Приложение Ж (рекомендуемое) Поясняющие надписи на принципиальной схеме питающей и распределительной сетей, выполняемой с учетом расположения электрического оборудования по частям и этажам здания |
| Разработан: | ОАО ВНИПИ Тяжпромэлектропроект ОАО ЦНС |
| Утверждён: | 14.11.2014 Межгосударственный Совет по стандартизации, метрологии и сертификации (Inter-Governmental Council on Standardization, Metrology, and Certification 72-П) 26.11.2014 Федеральное агентство по техническому регулированию и метрологии (1837-ст) |
| Издан: | Стандартинформ (2015 г. ) |
| Расположен в: | |
| Заменяет собой: | |
| Нормативные ссылки: |
|



















